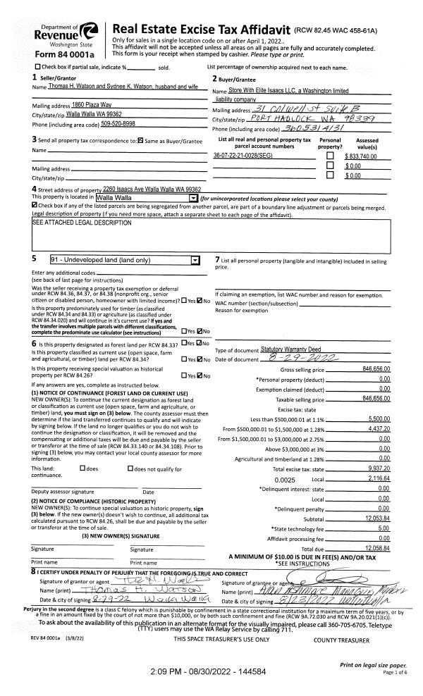
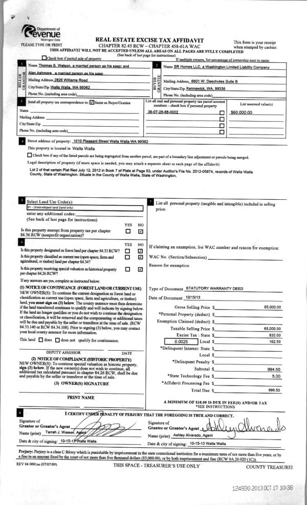
Property
Account |
| Property ID: | 31012 | Abbreviated Legal Description: | ROBERTS TAX 13, LESS NWLY PTN; PLUS STRIP FROM TAX 21 BLOCK 28 |
| Parcel Number: | 360720872834 | Agent Code: | |
| Type: | Real | | |
| Tax Area: | 1 - OL-140-F | Land Use Code | 11 |
| Open Space: | N | DFL | N |
| Historic Property: | N | Remodel Property: | N |
| Multi-Family Redevelopment: | N | | |
| Township: | 7 | Section: | 20 |
| Range: | 36 |
Location |
| Address: | 392 CATHERINE ST WA 99362 | Mapsco: | |
| Neighborhood: | G-SFR | Map ID: | |
| Neighborhood CD: | 514011 |
Owner |
| Name: | BEEGLE JEFFREY RYAN & JAYDE ALEXANDRA AUFRECHT | Owner ID: | 71500 |
| Mailing Address: | 392 CATHERINE ST WALLA WALLA, WA 99362 | % Ownership: | 100.0000000000% |
| | | Exemptions: | |
Taxes and Assessment Details
Values
| (+) Improvement Homesite Value: | + | $0 | |
| (+) Improvement Non-Homesite Value: | + | $634,740 | |
| (+) Land Homesite Value: | + | $0 | |
| (+) Land Non-Homesite Value: | + | $72,770 | |
| (+) Curr Use (HS): | + | $0 | $0 |
| (+) Curr Use (NHS): | + | $0 | $0 |
| | | -------------------------- | |
| (=) Market Value: | = | $707,510 | |
| (–) Productivity Loss: | – | $0 | |
| | | -------------------------- | |
| (=) Subtotal: | = | $707,510 | |
| (+) Senior Appraised Value: | + | $0 | |
| (+) Non-Senior Appraised Value: | + | $707,510 | |
| | | -------------------------- | |
| (=) Total Appraised Value: | = | $707,510 | |
| (–) Senior Exemption Loss: | – | $0 | |
| (–) Exemption Loss: | – | $0 | |
| | | -------------------------- | |
| (=) Taxable Value: | = | $707,510 | |
Taxing Jurisdiction
| Owner: | BEEGLE JEFFREY RYAN & JAYDE ALEXANDRA AUFRECHT | | |
| % Ownership: | 100.0000000000% | | |
| Total Value: | $707,510 | | |
| Tax Area: | 1 - OL-140-F |
| CERFD | CURRENT EXPENSE REFUND 010 | 0.0000000000 | $707,510 | $707,510 | $0.00 | | |
| CURREXP | CURRENT EXPENSE 010 | 1.0175366760 | $707,510 | $707,510 | $719.92 | | |
| HUMNSERV | HUMAN SERVICES 119 | 0.0250000000 | $707,510 | $707,510 | $17.69 | | |
| SLDREL | SOLDIERS RELIEF 121 | 0.0155990005 | $707,510 | $707,510 | $11.04 | | |
| EMERGSER | EMS 147 | 0.3792580840 | $707,510 | $707,510 | $268.33 | | |
| EMSRFD | EMS REFUND 147 | 0.0000000000 | $707,510 | $707,510 | $0.00 | | |
| PORTRFD | PORT REFUND 640 | 0.0000000000 | $707,510 | $707,510 | $0.00 | | |
| PORTWWGEN | PORT OF WW 640 | 0.2460186015 | $707,510 | $707,510 | $174.06 | | |
| SD140BOND | SD #140 BOND 764 | 0.8342371393 | $707,510 | $707,510 | $590.23 | | |
| SD140GEN | SD #140 GENERAL 760 | 2.0646500647 | $707,510 | $707,510 | $1,460.76 | | |
| ST2 | STATE SCHOOL PART 2 600 | 0.8131451643 | $707,510 | $707,510 | $575.31 | | |
| STATESCHL | STATE SCHOOL 600 | 1.5158548041 | $707,510 | $707,510 | $1,072.48 | | |
| STREFUND | STATE REFUND LEVY 603 | 0.0000000000 | $707,510 | $707,510 | $0.00 | | |
| CWWBOND | C OF WW BOND 643 | 0.2760494372 | $707,510 | $707,510 | $195.31 | | |
| CWWGEN | CITY OF WW 631 | 1.6100204973 | $707,510 | $707,510 | $1,139.11 | | |
| CWWRFD | CITY OF WALLA WALLA REFUND 631 | 0.0000000000 | $707,510 | $707,510 | $0.00 | | |
| | Total Tax Rate: | 8.7973694689 | | | | | |
| | | | | Taxes w/Current Exemptions: | $6,224.24 | | |
| | | | | Taxes w/o Exemptions: | $6,224.24 | | |
Improvement / Building
| Improvement #1: | RESIDENTIAL | State Code: | 11 | 2694.0 sqft | Value: | $634,740 |
| Exterior Wall: | SIDING | Heating/Cooling: | FLOOR RADIANT | | Number of Bathrooms: | 3 | Number of Bedrooms: | 5 | | Plumbing: | 12 | Roof Covering: | COMP SHINGLE |
|
| | Type | Description | Class CD | Sub Class CD | Year Built | Area |
| | MA | Main Area | 2 | 45 | 1896 | 2694.0 |
| | RCD | WOOD DECK W/ROOF, CEILED | 2 | 45 | 0 | 80.0 |
| | SI1 | SITE IMPROVEMENT | 2 | 45 | 0 | 3.5 |
| | BASE | BASEMENT | 2 | 45 | 1896 | 545.0 |
| | ATG | Attached Garage | 2 | 45 | 1896 | 300.0 |
| | S1F | Single One Story Fireplace | 2 | 45 | 1896 | 1.0 |
| | RPS | PORCH W/STEPS,ROOF | 2 | 45 | 1896 | 40.0 |
| | RPS | PORCH W/STEPS,ROOF | 2 | 45 | 1896 | 32.0 |
| | WOD | Wood Deck | 2 | 45 | 0 | 90.0 |
| | WOD | Wood Deck | 2 | 45 | 0 | 90.0 |
| | UPFL | Upper Floor (included in main area) | 2 | 45 | 1896 | 1299.0 |
| | BIG | Built In Garage | 2 | 45 | 1896 | 240.0 |
| | SOLR | SOLAR POWER PANELS | 2 | 45 | 0 | 1.0 |
Sketch
Property Image
Land
| 1 | RES 1 | Converted: Residential | 0.2410 | 10500.00 | 0.00 | 0.00 | 1.00 | $72,770 | $0 |
Roll Value History
| 2025 | N/A | N/A | N/A | N/A | N/A |
| 2024 | $684,150 | $115,500 | $0 | $799,650 | $799,650 |
| 2023 | $634,740 | $72,770 | $0 | $707,510 | $707,510 |
| 2022 | $604,510 | $72,770 | $0 | $677,280 | $677,280 |
| 2021 | $431,800 | $72,770 | $0 | $504,570 | $504,570 |
| 2020 | $359,830 | $72,770 | $0 | $432,600 | $432,600 |
| 2019 | $359,830 | $72,770 | $0 | $432,600 | $432,600 |
| 2018 | $359,830 | $72,770 | $0 | $432,600 | $432,600 |
| 2017 | $315,380 | $45,300 | $0 | $360,680 | $360,680 |
| 2016 | $315,380 | $45,300 | $0 | $360,680 | $360,680 |
| 2015 | $315,380 | $45,300 | $0 | $360,680 | $360,680 |
| 2014 | $252,300 | $45,300 | $0 | $297,600 | $297,600 |
| 2013 | $252,300 | $45,300 | $0 | $297,600 | $297,600 |
| 2012 | $252,300 | $45,300 | $0 | $0 | $0 |
| 2011 | $252,300 | $45,300 | $0 | $0 | $0 |
| 2010 | $238,100 | $45,300 | $0 | $0 | $0 |
| 2009 | $252,300 | $45,300 | $0 | $0 | $0 |
Deed and Sales History
| 1 | 04/21/2022 | SWD | STATUTORY WARRANTY DEED | CARTER FREDERICK THACHER | BEEGLE JEFFREY RYAN & JAYDE ALEXANDRA AUFRECHT | | | $707,050.00 | 143801 | 2022-03382 |
| 2 | 01/24/2013 | WARRANTY D | WARRANTY DEED | SCHMIDT, CHRIS M & DIANA M | CARTER, FREDERICK THACHER | | | $365,000.00 | 123371 | 2013-00698 |
Payout Agreement
| No payout information available.. |