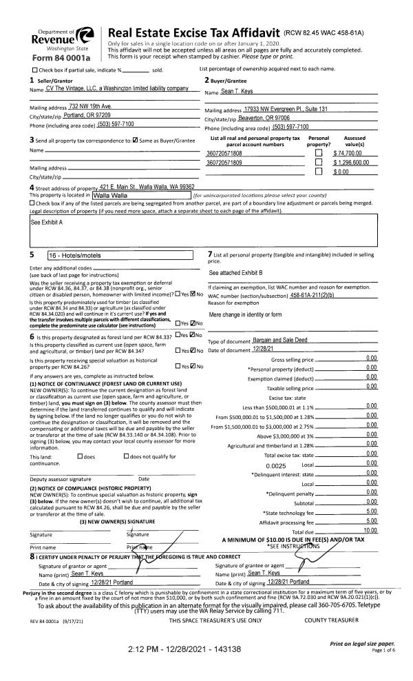
Property
Account |
| Property ID: | 31007 | Abbreviated Legal Description: | BROCK DEVEL. #1 LOT 13 |
| Parcel Number: | 310818530013 | Agent Code: | |
| Type: | Real | | |
| Tax Area: | 328 - 400-M-5 | Land Use Code | 11 |
| Open Space: | N | DFL | N |
| Historic Property: | N | Remodel Property: | N |
| Multi-Family Redevelopment: | N | | |
| Township: | 8 | Section: | 18 |
| Range: | 31 |
Location |
| Address: | 2477 HANSON LOOP WA 99323 | Mapsco: | |
| Neighborhood: | G BURBANK SFR | Map ID: | |
| Neighborhood CD: | 214711 |
Owner |
| Name: | BRUCKELMYER JEFF & JERI | Owner ID: | 59258 |
| Mailing Address: | 2477 HANSON LOOP BURBANK, WA 99323 | % Ownership: | 100.0000000000% |
| | | Exemptions: | |
Taxes and Assessment Details
Values
| (+) Improvement Homesite Value: | + | $0 | |
| (+) Improvement Non-Homesite Value: | + | $449,790 | |
| (+) Land Homesite Value: | + | $0 | |
| (+) Land Non-Homesite Value: | + | $95,150 | |
| (+) Curr Use (HS): | + | $0 | $0 |
| (+) Curr Use (NHS): | + | $0 | $0 |
| | | -------------------------- | |
| (=) Market Value: | = | $544,940 | |
| (–) Productivity Loss: | – | $0 | |
| | | -------------------------- | |
| (=) Subtotal: | = | $544,940 | |
| (+) Senior Appraised Value: | + | $0 | |
| (+) Non-Senior Appraised Value: | + | $544,940 | |
| | | -------------------------- | |
| (=) Total Appraised Value: | = | $544,940 | |
| (–) Senior Exemption Loss: | – | $0 | |
| (–) Exemption Loss: | – | $0 | |
| | | -------------------------- | |
| (=) Taxable Value: | = | $544,940 | |
Taxing Jurisdiction
| Owner: | BRUCKELMYER JEFF & JERI | | |
| % Ownership: | 100.0000000000% | | |
| Total Value: | $544,940 | | |
| Tax Area: | 328 - 400-M-5 |
| CERFD | CURRENT EXPENSE REFUND 010 | 0.0000000000 | $544,940 | $544,940 | $0.00 | | |
| CURREXP | CURRENT EXPENSE 010 | 1.0175366760 | $544,940 | $544,940 | $554.50 | | |
| HUMNSERV | HUMAN SERVICES 119 | 0.0250000000 | $544,940 | $544,940 | $13.62 | | |
| SLDREL | SOLDIERS RELIEF 121 | 0.0155990005 | $544,940 | $544,940 | $8.50 | | |
| EMERGSER | EMS 147 | 0.3792580840 | $544,940 | $544,940 | $206.67 | | |
| EMSRFD | EMS REFUND 147 | 0.0000000000 | $544,940 | $544,940 | $0.00 | | |
| FD5EXP | FD #5 EXPENSE 689 | 1.2045331840 | $544,940 | $544,940 | $656.40 | | |
| RLBRFD | RURAL LIBRARY REFUND 623 | 0.0000000000 | $544,940 | $544,940 | $0.00 | | |
| RURALLIB | RURAL LIBRARY 623 | 0.3710609029 | $544,940 | $544,940 | $202.21 | | |
| PORTRFD | PORT REFUND 640 | 0.0000000000 | $544,940 | $544,940 | $0.00 | | |
| PORTWWGEN | PORT OF WW 640 | 0.2460186015 | $544,940 | $544,940 | $134.07 | | |
| SD400BOND | SD #400 BOND 793 | 0.0000000000 | $544,940 | $544,940 | $0.00 | | |
| SD400CAP | SD #400 CP 792 | 0.3443722657 | $544,940 | $544,940 | $187.66 | | |
| SD400GEN | SD #400 GENERAL 790 | 1.9278469916 | $544,940 | $544,940 | $1,050.56 | | |
| ST2 | STATE SCHOOL PART 2 600 | 0.8131451643 | $544,940 | $544,940 | $443.12 | | |
| STATESCHL | STATE SCHOOL 600 | 1.5158548041 | $544,940 | $544,940 | $826.05 | | |
| STREFUND | STATE REFUND LEVY 603 | 0.0000000000 | $544,940 | $544,940 | $0.00 | | |
| COROAD | COUNTY ROAD 115 | 1.6549953990 | $544,940 | $544,940 | $901.87 | | |
| CRPRD | COUNTY ROAD REFUND 115 | 0.0000000000 | $544,940 | $544,940 | $0.00 | | |
| | Total Tax Rate: | 9.5152210736 | | | | | |
| | | | | Taxes w/Current Exemptions: | $5,185.23 | | |
| | | | | Taxes w/o Exemptions: | $5,185.23 | | |
Improvement / Building
| Improvement #1: | RESIDENTIAL | State Code: | 11 | 2210.0 sqft | Value: | $449,790 |
| Exterior Wall: | HARDBOARD | Heating/Cooling: | WARM & COOLED AIR | | Number of Bathrooms: | 2.5 | Number of Bedrooms: | 3 | | Plumbing: | 15 | Roof Covering: | COMP SHINGLE |
|
| | Type | Description | Class CD | Sub Class CD | Year Built | Area |
| | MA | Main Area | 1 | 40 | 2016 | 2210.0 |
| | ATG | Attached Garage | 1 | 40 | 2016 | 866.0 |
| | PRC | PORCH W STEPS, ROOF,CEILED | 1 | 40 | 2016 | 300.0 |
| | PRC | PORCH W STEPS, ROOF,CEILED | 1 | 40 | 2016 | 300.0 |
| | SI1 | SITE IMPROVEMENT | 1 | 40 | 2016 | 2.5 |
| | SMP | SWIMMING POOL | * | 40 | 2023 | 1.0 |
Sketch
Property Image
Land
| 1 | RES 1 | Converted: Residential | 2.5800 | 0.00 | 0.00 | 0.00 | 1.00 | $95,150 | $0 |
Roll Value History
| 2025 | N/A | N/A | N/A | N/A | N/A |
| 2024 | $449,790 | $95,150 | $0 | $544,940 | $544,940 |
| 2023 | $449,790 | $95,150 | $0 | $544,940 | $544,940 |
| 2022 | $394,350 | $95,150 | $0 | $489,500 | $489,500 |
| 2021 | $292,110 | $95,150 | $0 | $387,260 | $387,260 |
| 2020 | $250,490 | $45,400 | $0 | $295,890 | $295,890 |
| 2019 | $250,490 | $45,400 | $0 | $295,890 | $295,890 |
| 2018 | $250,490 | $45,400 | $0 | $295,890 | $295,890 |
| 2017 | $250,490 | $45,400 | $0 | $295,890 | $295,890 |
| 2016 | $0 | $45,400 | $0 | $45,400 | $45,400 |
| 2015 | $0 | $45,400 | $0 | $45,400 | $45,400 |
| 2014 | $0 | $45,400 | $0 | $45,400 | $45,400 |
| 2013 | $0 | $45,400 | $0 | $45,400 | $45,400 |
| 2012 | $0 | $45,400 | $0 | $0 | $0 |
| 2011 | $0 | $45,400 | $0 | $0 | $0 |
| 2010 | $0 | $45,400 | $0 | $0 | $0 |
| 2009 | $0 | $42,100 | $0 | $0 | $0 |
| 2008 | $0 | $42,100 | $0 | $0 | $0 |
| 2007 | $0 | $42,100 | $0 | $0 | $0 |
| 2006 | $0 | $42,100 | $0 | $0 | $0 |
Deed and Sales History
| 1 | 01/04/2017 | FUL | FULFILLMENT DEED | BROCK BOBBIE R | BRUCKELMYER JEFF & JERI | | | | 0 | 2017-00088 |
| 2 | 07/18/2016 | REAL ESTAT | REAL ESTATE CONTRACT | BROCK BOBBIE R | BRUCKELMYER JEFF & JERI | | | $90,000.00 | 130641 | 2016-05558 |
Payout Agreement
| No payout information available.. |