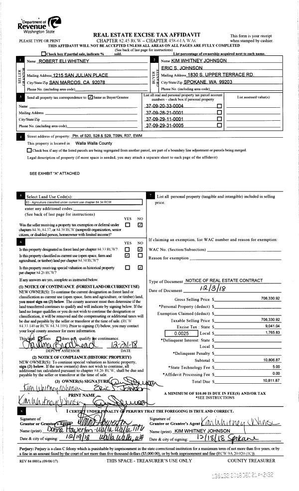
Property
Account |
| Property ID: | 30999 | Abbreviated Legal Description: | FAIRFIELD TAX 2 BLK 3 |
| Parcel Number: | 360729610313 | Agent Code: | |
| Type: | Real | | |
| Tax Area: | 1 - OL-140-F | Land Use Code | 11 |
| Open Space: | N | DFL | N |
| Historic Property: | N | Remodel Property: | N |
| Multi-Family Redevelopment: | N | | |
| Township: | 7 | Section: | 29 |
| Range: | 36 |
Location |
| Address: | 1220 S 4TH AVE WA 99362 | Mapsco: | |
| Neighborhood: | Fair Res | Map ID: | |
| Neighborhood CD: | 612011 |
Owner |
| Name: | WALLA WALLA COUNTY OF | Owner ID: | 47 |
| Mailing Address: | 315 W MAIN ST WALLA WALLA, WA 99362 | % Ownership: | 100.0000000000% |
| | | Exemptions: | EX |
Taxes and Assessment Details
Values
| (+) Improvement Homesite Value: | + | $103,520 | |
| (+) Improvement Non-Homesite Value: | + | $0 | |
| (+) Land Homesite Value: | + | $69,260 | |
| (+) Land Non-Homesite Value: | + | $0 | |
| (+) Curr Use (HS): | + | $0 | $0 |
| (+) Curr Use (NHS): | + | $0 | $0 |
| | | -------------------------- | |
| (=) Market Value: | = | $172,780 | |
| (–) Productivity Loss: | – | $0 | |
| | | -------------------------- | |
| (=) Subtotal: | = | $172,780 | |
| (+) Senior Appraised Value: | + | $0 | |
| (+) Non-Senior Appraised Value: | + | $172,780 | |
| | | -------------------------- | |
| (=) Total Appraised Value: | = | $172,780 | |
| (–) Senior Exemption Loss: | – | $0 | |
| (–) Exemption Loss: | – | $172,780 | |
| | | -------------------------- | |
| (=) Taxable Value: | = | $0 | |
Taxing Jurisdiction
| Owner: | WALLA WALLA COUNTY OF | | |
| % Ownership: | 100.0000000000% | | |
| Total Value: | $172,780 | | |
| Tax Area: | 1 - OL-140-F |
| CERFD | CURRENT EXPENSE REFUND 010 | 0.0000000000 | $172,780 | $0 | $0.00 | | |
| CURREXP | CURRENT EXPENSE 010 | 1.0175366760 | $172,780 | $0 | $0.00 | | |
| HUMNSERV | HUMAN SERVICES 119 | 0.0250000000 | $172,780 | $0 | $0.00 | | |
| SLDREL | SOLDIERS RELIEF 121 | 0.0155990005 | $172,780 | $0 | $0.00 | | |
| EMERGSER | EMS 147 | 0.3792580840 | $172,780 | $0 | $0.00 | | |
| EMSRFD | EMS REFUND 147 | 0.0000000000 | $172,780 | $0 | $0.00 | | |
| PORTRFD | PORT REFUND 640 | 0.0000000000 | $172,780 | $0 | $0.00 | | |
| PORTWWGEN | PORT OF WW 640 | 0.2460186015 | $172,780 | $0 | $0.00 | | |
| SD140BOND | SD #140 BOND 764 | 0.8342371393 | $172,780 | $0 | $0.00 | | |
| SD140GEN | SD #140 GENERAL 760 | 2.0646500647 | $172,780 | $0 | $0.00 | | |
| ST2 | STATE SCHOOL PART 2 600 | 0.8131451643 | $172,780 | $0 | $0.00 | | |
| STATESCHL | STATE SCHOOL 600 | 1.5158548041 | $172,780 | $0 | $0.00 | | |
| STREFUND | STATE REFUND LEVY 603 | 0.0000000000 | $172,780 | $0 | $0.00 | | |
| CWWBOND | C OF WW BOND 643 | 0.2760494372 | $172,780 | $0 | $0.00 | | |
| CWWGEN | CITY OF WW 631 | 1.6100204973 | $172,780 | $0 | $0.00 | | |
| CWWRFD | CITY OF WALLA WALLA REFUND 631 | 0.0000000000 | $172,780 | $0 | $0.00 | | |
| | Total Tax Rate: | 8.7973694689 | | | | | |
| | | | | Taxes w/Current Exemptions: | $0.00 | | |
| | | | | Taxes w/o Exemptions: | $1,520.03 | | |
Improvement / Building
| Improvement #1: | RESIDENTIAL | State Code: | 11 | 1921.0 sqft | Value: | $103,520 |
| Exterior Wall: | SIDING | Foundation: | SLAB | | Heating/Cooling: | BASEBOARD ELECTRIC | Number of Bathrooms: | 1 | | Number of Bedrooms: | 4 | Plumbing: | 9 | | Roof Covering: | COMP SHINGLE |   |   |
|
| | Type | Description | Class CD | Sub Class CD | Year Built | Area |
| | MA | Main Area | 4 | 20 | 1940 | 1921.0 |
| | SI1 | SITE IMPROVEMENT | 4 | 20 | 1940 | 1.0 |
| | UPFL | Upper Floor (included in main area) | 4 | 20 | 1940 | 300.0 |
| | RPO | OPEN PORCH W/ROOF | 4 | 20 | 1940 | 132.0 |
| | CPC | COVERED CARPORT/PATIO | 4 | 20 | 1940 | 294.0 |
| | ATG | Attached Garage | 4 | 20 | 1940 | 306.0 |
Sketch
Property Image
Land
| 1 | RES 1 | Converted: Residential | 0.2548 | 11100.00 | 0.00 | 0.00 | 1.00 | $69,260 | $0 |
Roll Value History
| 2025 | N/A | N/A | N/A | N/A | N/A |
| 2024 | $103,520 | $69,260 | $0 | $172,780 | $0 |
| 2023 | $103,520 | $69,260 | $0 | $172,780 | $0 |
| 2022 | $103,520 | $54,390 | $0 | $157,910 | $0 |
| 2021 | $69,010 | $54,390 | $0 | $123,400 | $123,400 |
| 2020 | $69,010 | $54,390 | $0 | $123,400 | $123,400 |
| 2019 | $69,010 | $54,390 | $0 | $123,400 | $123,400 |
| 2018 | $84,260 | $48,100 | $0 | $132,360 | $132,360 |
| 2017 | $84,260 | $48,100 | $0 | $132,360 | $52,944 |
| 2016 | $84,260 | $48,100 | $0 | $132,360 | $132,360 |
| 2015 | $76,600 | $48,100 | $0 | $124,700 | $124,700 |
| 2014 | $76,600 | $48,100 | $0 | $124,700 | $124,700 |
| 2013 | $76,600 | $48,100 | $0 | $124,700 | $124,700 |
| 2012 | $76,600 | $48,100 | $0 | $0 | $0 |
| 2011 | $76,600 | $48,100 | $0 | $0 | $0 |
| 2010 | $76,600 | $48,100 | $0 | $0 | $0 |
| 2009 | $90,400 | $48,100 | $0 | $0 | $0 |
| 2008 | $90,400 | $48,100 | $0 | $0 | $0 |
| 2007 | $61,300 | $20,300 | $0 | $0 | $0 |
| 2006 | $61,300 | $20,300 | $0 | $0 | $0 |
Deed and Sales History
| 1 | 12/28/2018 | SWD | STATUTORY WARRANTY DEED | DOUGLAS L SHARP HOLDINGS LLC | WALLA WALLA COUNTY OF | | | $125,000.00 | 136177 | 2018-10693 |
| 2 | 11/15/2018 | SWD | STATUTORY WARRANTY DEED | MAHER GERALD G | DOUGLAS L SHARP HOLDINGS LLC | | | $104,000.00 | 135951 | 2018-09487 |
| 3 | 03/29/1979 | QCD | QUIT CLAIM DEED | | | | | $0.00 | 0 | 1007-902855 |
Payout Agreement
| No payout information available.. |