Property
Account |
| Property ID: | 30998 | Abbreviated Legal Description: | AMENDED RUBLE ADDN LOT 2 |
| Parcel Number: | 360723500002 | Agent Code: | |
| Type: | Real | | |
| Tax Area: | 105 - 140-F-4 | Land Use Code | 11 |
| Open Space: | N | DFL | N |
| Historic Property: | N | Remodel Property: | N |
| Multi-Family Redevelopment: | N | | |
| Township: | 7 | Section: | 23 |
| Range: | 36 |
Location |
| Address: | 3090 RESERVOIR RD WA 99362 | Mapsco: | |
| Neighborhood: | SFR MH | Map ID: | |
| Neighborhood CD: | 413061 |
Owner |
| Name: | CONRAD DAN | Owner ID: | 65275 |
| Mailing Address: | VIRGINIA L WRIGHT 3090 RESERVIOR RD WALLA WALLA, WA 99362 | % Ownership: | 100.0000000000% |
| | | Exemptions: | SNR/DSBL |
Taxes and Assessment Details
Values
| (+) Improvement Homesite Value: | + | $48,300 | |
| (+) Improvement Non-Homesite Value: | + | $0 | |
| (+) Land Homesite Value: | + | $100,270 | |
| (+) Land Non-Homesite Value: | + | $0 | |
| (+) Curr Use (HS): | + | $0 | $0 |
| (+) Curr Use (NHS): | + | $0 | $0 |
| | | -------------------------- | |
| (=) Market Value: | = | $148,570 | |
| (–) Productivity Loss: | – | $0 | |
| | | -------------------------- | |
| (=) Subtotal: | = | $148,570 | |
| (+) Senior Appraised Value: | + | $97,520 | |
| (+) Non-Senior Appraised Value: | + | $0 | |
| | | -------------------------- | |
| (=) Total Appraised Value: | = | $97,520 | |
| (–) Senior Exemption Loss: | – | $60,000 | |
| (–) Exemption Loss: | – | $0 | |
| | | -------------------------- | |
| (=) Taxable Value: | = | $37,520 | |
Taxing Jurisdiction
| Owner: | CONRAD DAN | | |
| % Ownership: | 100.0000000000% | | |
| Total Value: | $148,570 | | |
| Tax Area: | 105 - 140-F-4 |
| CERFD | CURRENT EXPENSE REFUND 010 | 0.0000000000 | $148,570 | $37,520 | $0.00 | | |
| CURREXP | CURRENT EXPENSE 010 | 1.0175366760 | $148,570 | $37,520 | $38.18 | | |
| HUMNSERV | HUMAN SERVICES 119 | 0.0250000000 | $148,570 | $37,520 | $0.94 | | |
| SLDREL | SOLDIERS RELIEF 121 | 0.0155990005 | $148,570 | $37,520 | $0.59 | | |
| EMERGSER | EMS 147 | 0.3792580840 | $148,570 | $37,520 | $14.23 | | |
| EMSRFD | EMS REFUND 147 | 0.0000000000 | $148,570 | $37,520 | $0.00 | | |
| FD4EXP | FD #4 EXPENSE 686 | 0.8836993059 | $148,570 | $37,520 | $33.16 | | |
| RLBRFD | RURAL LIBRARY REFUND 623 | 0.0000000000 | $148,570 | $37,520 | $0.00 | | |
| RURALLIB | RURAL LIBRARY 623 | 0.3710609029 | $148,570 | $37,520 | $13.92 | | |
| PORTRFD | PORT REFUND 640 | 0.0000000000 | $148,570 | $37,520 | $0.00 | | |
| PORTWWGEN | PORT OF WW 640 | 0.2460186015 | $148,570 | $37,520 | $9.23 | | |
| SD140BOND | SD #140 BOND 764 | 0.0000000000 | $148,570 | $0 | $0.00 | | |
| SD140GEN | SD #140 GENERAL 760 | 0.0000000000 | $148,570 | $0 | $0.00 | | |
| ST2 | STATE SCHOOL PART 2 600 | 0.0000000000 | $148,570 | $0 | $0.00 | | |
| STATESCHL | STATE SCHOOL 600 | 1.5158548041 | $148,570 | $37,520 | $56.87 | | |
| STREFUND | STATE REFUND LEVY 603 | 0.0000000000 | $148,570 | $37,520 | $0.00 | | |
| COROAD | COUNTY ROAD 115 | 1.6549953990 | $148,570 | $37,520 | $62.10 | | |
| CRPRD | COUNTY ROAD REFUND 115 | 0.0000000000 | $148,570 | $37,520 | $0.00 | | |
| | Total Tax Rate: | 6.1090227739 | | | | | |
| | | | | Taxes w/Current Exemptions: | $229.22 | | |
| | | | | Taxes w/o Exemptions: | $1,459.12 | | |
Improvement / Building
| Improvement #1: | MANUFACTURED HOME | State Code: | 11 | 1100.0 sqft | Value: | $48,300 |
| Exterior Wall: | VINYL | Heating/Cooling: | BASEBOARD ELECTRIC | | Number of Bathrooms: | 2 | Number of Bedrooms: | 3 | | Plumbing: | 8 | Roof Covering: | GALVANIZED METAL |
|
| | Type | Description | Class CD | Sub Class CD | Year Built | Area |
| | MOBHOME | MANUFACTURD HOMES | 1 | 20 | 1968 | 1100.0 |
| | CPC | COVERED CARPORT/PATIO | 1 | 20 | 0 | 168.0 |
| | MI1 | MH SET-UP COSTS | 1 | 20 | 0 | 1.0 |
| | POL2 | POLE BUILDING-CONCRETE | 1 | 20 | 0 | 720.0 |
| | RESUTST | RESIDENTIAL UTILITY STORAGE | 1 | 30 | 1968 | 450.0 |
Sketch
Property Image
Land
| 1 | RES 1 | Converted: Residential | 1.0100 | 0.00 | 0.00 | 0.00 | 1.00 | $100,270 | $0 |
Roll Value History
| 2025 | N/A | N/A | N/A | N/A | N/A |
| 2024 | $48,300 | $100,270 | $0 | $148,570 | $37,520 |
| 2023 | $48,300 | $100,270 | $0 | $148,570 | $37,520 |
| 2022 | $27,340 | $79,300 | $0 | $106,640 | $97,520 |
| 2021 | $18,220 | $79,300 | $0 | $97,520 | $48,760 |
| 2020 | $18,220 | $79,300 | $0 | $97,520 | $48,760 |
| 2019 | $18,220 | $79,300 | $0 | $97,520 | $48,760 |
| 2018 | $22,780 | $79,300 | $0 | $102,080 | $51,040 |
| 2017 | $22,780 | $79,300 | $0 | $102,080 | $40,832 |
| 2016 | $36,980 | $65,100 | $0 | $102,080 | $40,832 |
| 2015 | $36,980 | $65,100 | $0 | $102,080 | $40,832 |
| 2014 | $35,900 | $65,100 | $0 | $101,000 | $40,400 |
| 2013 | $35,900 | $65,100 | $0 | $101,000 | $40,400 |
| 2012 | $35,900 | $65,100 | $0 | $0 | $0 |
| 2011 | $37,400 | $65,100 | $0 | $0 | $0 |
| 2010 | $37,400 | $65,100 | $0 | $0 | $0 |
| 2009 | $42,800 | $65,100 | $0 | $0 | $0 |
| 2008 | $42,800 | $65,100 | $0 | $0 | $0 |
| 2007 | $42,800 | $65,100 | $0 | $0 | $0 |
| 2006 | $41,700 | $30,100 | $0 | $0 | $0 |
Deed and Sales History
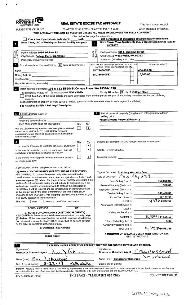
| 1 | 06/20/2019 | QCD | QUIT CLAIM DEED | WRIGHT VIRGINIA L | CONRAD DAN | | | | 137113 | 2019-04339 |
| 2 | 06/20/2019 | QCD | QUIT CLAIM DEED | WRIGHT LESLIE P & VIRGINIA L | WRIGHT VIRGINIA L | | | $0.00 | 137113 | 2019-04531 |
| 3 | 08/14/2017 | FUL | FULFILLMENT DEED | RUBLE JO ANNE | WRIGHT LESLIE P & VIRGINIA L | | | | 0 | 2017-06208 |
| 4 | 07/18/2007 | WARRANTY D | WARRANTY DEED | RUBLE, JOANNE | LIPPITT, DEBRA JEAN | | | | 0 | 2007-08296 |
Payout Agreement
| No payout information available.. |