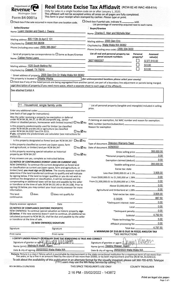
Property
Account |
| Property ID: | 30993 | Abbreviated Legal Description: | BUTLERS E 43.45' OF LOT 3 BLK 9; W 17.75' OF LOT 4 BLK 9 |
| Parcel Number: | 360719520903 | Agent Code: | |
| Type: | Real | | |
| Tax Area: | 1 - OL-140-F | Land Use Code | 11 |
| Open Space: | N | DFL | N |
| Historic Property: | N | Remodel Property: | N |
| Multi-Family Redevelopment: | N | | |
| Township: | 7 | Section: | 19 |
| Range: | 36 |
Location |
| Address: | 948 CARRIE AVE WA 99362 | Mapsco: | |
| Neighborhood: | A-SFR | Map ID: | |
| Neighborhood CD: | 313011 |
Owner |
| Name: | PEREZ FAVIOLA | Owner ID: | 66912 |
| Mailing Address: | 948 CARRIE AVE WALLA WALLA, WA 99362 | % Ownership: | 100.0000000000% |
| | | Exemptions: | |
Taxes and Assessment Details
Values
| (+) Improvement Homesite Value: | + | $193,700 | |
| (+) Improvement Non-Homesite Value: | + | $0 | |
| (+) Land Homesite Value: | + | $42,570 | |
| (+) Land Non-Homesite Value: | + | $0 | |
| (+) Curr Use (HS): | + | $0 | $0 |
| (+) Curr Use (NHS): | + | $0 | $0 |
| | | -------------------------- | |
| (=) Market Value: | = | $236,270 | |
| (–) Productivity Loss: | – | $0 | |
| | | -------------------------- | |
| (=) Subtotal: | = | $236,270 | |
| (+) Senior Appraised Value: | + | $0 | |
| (+) Non-Senior Appraised Value: | + | $236,270 | |
| | | -------------------------- | |
| (=) Total Appraised Value: | = | $236,270 | |
| (–) Senior Exemption Loss: | – | $0 | |
| (–) Exemption Loss: | – | $0 | |
| | | -------------------------- | |
| (=) Taxable Value: | = | $236,270 | |
Taxing Jurisdiction
| Owner: | PEREZ FAVIOLA | | |
| % Ownership: | 100.0000000000% | | |
| Total Value: | $236,270 | | |
| Tax Area: | 1 - OL-140-F |
| CERFD | CURRENT EXPENSE REFUND 010 | 0.0000000000 | $236,270 | $236,270 | $0.00 | | |
| CURREXP | CURRENT EXPENSE 010 | 1.0175366760 | $236,270 | $236,270 | $240.41 | | |
| HUMNSERV | HUMAN SERVICES 119 | 0.0250000000 | $236,270 | $236,270 | $5.91 | | |
| SLDREL | SOLDIERS RELIEF 121 | 0.0155990005 | $236,270 | $236,270 | $3.69 | | |
| EMERGSER | EMS 147 | 0.3792580840 | $236,270 | $236,270 | $89.61 | | |
| EMSRFD | EMS REFUND 147 | 0.0000000000 | $236,270 | $236,270 | $0.00 | | |
| PORTRFD | PORT REFUND 640 | 0.0000000000 | $236,270 | $236,270 | $0.00 | | |
| PORTWWGEN | PORT OF WW 640 | 0.2460186015 | $236,270 | $236,270 | $58.13 | | |
| SD140BOND | SD #140 BOND 764 | 0.8342371393 | $236,270 | $236,270 | $197.11 | | |
| SD140GEN | SD #140 GENERAL 760 | 2.0646500647 | $236,270 | $236,270 | $487.81 | | |
| ST2 | STATE SCHOOL PART 2 600 | 0.8131451643 | $236,270 | $236,270 | $192.12 | | |
| STATESCHL | STATE SCHOOL 600 | 1.5158548041 | $236,270 | $236,270 | $358.15 | | |
| STREFUND | STATE REFUND LEVY 603 | 0.0000000000 | $236,270 | $236,270 | $0.00 | | |
| CWWBOND | C OF WW BOND 643 | 0.2760494372 | $236,270 | $236,270 | $65.22 | | |
| CWWGEN | CITY OF WW 631 | 1.6100204973 | $236,270 | $236,270 | $380.40 | | |
| CWWRFD | CITY OF WALLA WALLA REFUND 631 | 0.0000000000 | $236,270 | $236,270 | $0.00 | | |
| | Total Tax Rate: | 8.7973694689 | | | | | |
| | | | | Taxes w/Current Exemptions: | $2,078.56 | | |
| | | | | Taxes w/o Exemptions: | $2,078.56 | | |
Improvement / Building
| Improvement #1: | RESIDENTIAL | State Code: | 11 | 886.0 sqft | Value: | $193,700 |
| Exterior Wall: | SIDING | Heating/Cooling: | WARM & COOLED AIR | | Number of Bathrooms: | 2 | Number of Bedrooms: | 3 | | Plumbing: | 10 | Roof Covering: | COMP SHINGLE |
|
| | Type | Description | Class CD | Sub Class CD | Year Built | Area |
| | MA | Main Area | 1 | 25 | 1910 | 886.0 |
| | CPCD | CARPORT/DIRT FLOOR | 1 | 25 | 1910 | 165.0 |
| | SI1 | SITE IMPROVEMENT | 1 | 25 | 1910 | 2.0 |
| | BASE | BASEMENT | 1 | 25 | 1910 | 480.0 |
| | BPF | BASEMENT -PARTITIONED FINISH | 1 | 25 | 1910 | 480.0 |
| | DTG | Detached Garage | 1 | 25 | 1910 | 420.0 |
| | RPS | PORCH W/STEPS,ROOF | 1 | 25 | 1910 | 150.0 |
| | CPC | COVERED CARPORT/PATIO | 1 | 25 | 1910 | 160.0 |
Sketch
Property Image
Land
| 1 | RES 1 | Converted: Residential | 0.1185 | 5160.00 | 0.00 | 0.00 | 1.00 | $42,570 | $0 |
Roll Value History
| 2025 | N/A | N/A | N/A | N/A | N/A |
| 2024 | $193,700 | $42,570 | $0 | $236,270 | $236,270 |
| 2023 | $193,700 | $42,570 | $0 | $236,270 | $236,270 |
| 2022 | $149,000 | $42,570 | $0 | $191,570 | $191,570 |
| 2021 | $158,410 | $11,600 | $0 | $170,010 | $170,010 |
| 2020 | $113,150 | $11,600 | $0 | $124,750 | $124,750 |
| 2019 | $113,150 | $11,600 | $0 | $124,750 | $124,750 |
| 2018 | $113,150 | $11,600 | $0 | $124,750 | $124,750 |
| 2017 | $113,150 | $11,600 | $0 | $124,750 | $124,750 |
| 2016 | $107,760 | $11,600 | $0 | $119,360 | $119,360 |
| 2015 | $101,400 | $11,600 | $0 | $113,000 | $113,000 |
| 2014 | $67,600 | $11,600 | $0 | $79,200 | $79,200 |
| 2013 | $67,600 | $11,600 | $0 | $79,200 | $19,200 |
| 2012 | $63,800 | $11,600 | $0 | $0 | $0 |
| 2011 | $63,800 | $11,600 | $0 | $0 | $0 |
| 2010 | $73,400 | $11,600 | $0 | $0 | $0 |
| 2009 | $90,400 | $9,000 | $0 | $0 | $0 |
| 2008 | $46,200 | $9,000 | $0 | $0 | $0 |
| 2007 | $46,200 | $9,000 | $0 | $0 | $0 |
| 2006 | $46,200 | $9,000 | $0 | $0 | $0 |
Deed and Sales History
| 1 | 03/31/2020 | SWD | STATUTORY WARRANTY DEED | LOMELI EMMANUEL | PEREZ FAVIOLA | | | $179,000.00 | 138870 | 2020-02791 |
| 2 | 05/02/2014 | SWD | STATUTORY WARRANTY DEED | RINCON RAMON M & MARIA | LOMELI EMMANUEL | | | $125,000.00 | 125819 | 2014-03023 |
| 3 | 11/20/1995 | WARRANTY D | WARRANTY DEED | | | | | $49,000.00 | 85139 | 2359-511280 |
Payout Agreement
| No payout information available.. |