Property
Account |
| Property ID: | 30977 | Abbreviated Legal Description: | DAMSON GARDEN ESTATES LOT 7 |
| Parcel Number: | 350725630007 | Agent Code: | |
| Type: | Real | | |
| Tax Area: | 75 - CP 250 | Land Use Code | 11 |
| Open Space: | N | DFL | N |
| Historic Property: | N | Remodel Property: | N |
| Multi-Family Redevelopment: | N | | |
| Township: | 7 | Section: | 25 |
| Range: | 35 |
Location |
| Address: | 364 NE SPITZENBURG ST WA 99324 | Mapsco: | |
| Neighborhood: | A MH | Map ID: | |
| Neighborhood CD: | 113061 |
Owner |
| Name: | DEURS RALPH VAN | Owner ID: | 70601 |
| Mailing Address: | 364 NE SPITZENBURG ST COLLEGE PLACE, WA 99324 | % Ownership: | 100.0000000000% |
| | | Exemptions: | |
Taxes and Assessment Details
Values
| (+) Improvement Homesite Value: | + | $0 | |
| (+) Improvement Non-Homesite Value: | + | $214,320 | |
| (+) Land Homesite Value: | + | $0 | |
| (+) Land Non-Homesite Value: | + | $55,000 | |
| (+) Curr Use (HS): | + | $0 | $0 |
| (+) Curr Use (NHS): | + | $0 | $0 |
| | | -------------------------- | |
| (=) Market Value: | = | $269,320 | |
| (–) Productivity Loss: | – | $0 | |
| | | -------------------------- | |
| (=) Subtotal: | = | $269,320 | |
| (+) Senior Appraised Value: | + | $0 | |
| (+) Non-Senior Appraised Value: | + | $269,320 | |
| | | -------------------------- | |
| (=) Total Appraised Value: | = | $269,320 | |
| (–) Senior Exemption Loss: | – | $0 | |
| (–) Exemption Loss: | – | $0 | |
| | | -------------------------- | |
| (=) Taxable Value: | = | $269,320 | |
Taxing Jurisdiction
| Owner: | DEURS RALPH VAN | | |
| % Ownership: | 100.0000000000% | | |
| Total Value: | $269,320 | | |
| Tax Area: | 75 - CP 250 |
| CERFD | CURRENT EXPENSE REFUND 010 | 0.0000000000 | $269,320 | $269,320 | $0.00 | | |
| CURREXP | CURRENT EXPENSE 010 | 1.0175366760 | $269,320 | $269,320 | $274.04 | | |
| HUMNSERV | HUMAN SERVICES 119 | 0.0250000000 | $269,320 | $269,320 | $6.73 | | |
| SLDREL | SOLDIERS RELIEF 121 | 0.0155990005 | $269,320 | $269,320 | $4.20 | | |
| COLLPLBOND | C OF CP BOND 644 | 0.4374241808 | $269,320 | $269,320 | $117.81 | | |
| COLLPLGEN | CITY OF CP 632 | 1.4453819216 | $269,320 | $269,320 | $389.27 | | |
| EMERGSER | EMS 147 | 0.3792580840 | $269,320 | $269,320 | $102.14 | | |
| EMSRFD | EMS REFUND 147 | 0.0000000000 | $269,320 | $269,320 | $0.00 | | |
| RURALLIB | RURAL LIBRARY 623 | 0.3710609029 | $269,320 | $269,320 | $99.93 | | |
| PORTRFD | PORT REFUND 640 | 0.0000000000 | $269,320 | $269,320 | $0.00 | | |
| PORTWWGEN | PORT OF WW 640 | 0.2460186015 | $269,320 | $269,320 | $66.26 | | |
| SD250BOND | SD #250 BOND 773 | 1.4560608159 | $269,320 | $269,320 | $392.15 | | |
| SD250GEN | SD #250 GENERAL 770 | 2.3880724087 | $269,320 | $269,320 | $643.16 | | |
| ST2 | STATE SCHOOL PART 2 600 | 0.8131451643 | $269,320 | $269,320 | $219.00 | | |
| STATESCHL | STATE SCHOOL 600 | 1.5158548041 | $269,320 | $269,320 | $408.25 | | |
| STREFUND | STATE REFUND LEVY 603 | 0.0000000000 | $269,320 | $269,320 | $0.00 | | |
| | Total Tax Rate: | 10.1104125603 | | | | | |
| | | | | Taxes w/Current Exemptions: | $2,722.94 | | |
| | | | | Taxes w/o Exemptions: | $2,722.94 | | |
Improvement / Building
| Improvement #1: | MANUFACTURED HOME | State Code: | 11 | 1456.0 sqft | Value: | $214,320 |
| Exterior Wall: | PLYWOOD | Heating/Cooling: | WARM & COOLED AIR | | Number of Bathrooms: | 2 | Number of Bedrooms: | 2 | | Plumbing: | 8 | Roof Covering: | COMP SHINGLE |
|
| | Type | Description | Class CD | Sub Class CD | Year Built | Area |
| | MOBHOME | MANUFACTURD HOMES | 1 | 30 | 1995 | 1456.0 |
| | MI1 | MH SET-UP COSTS | 1 | 30 | 1995 | 1.0 |
| | DTG | Detached Garage | 1 | 30 | 1995 | 552.0 |
| | WOD | Wood Deck | 1 | 30 | 1995 | 120.0 |
Sketch
Property Image
Land
| 1 | RES 1 | Converted: Residential | 0.1604 | 6989.00 | 0.00 | 0.00 | 1.00 | $55,000 | $0 |
Roll Value History
| 2025 | N/A | N/A | N/A | N/A | N/A |
| 2024 | $214,320 | $55,000 | $0 | $269,320 | $269,320 |
| 2023 | $214,320 | $55,000 | $0 | $269,320 | $269,320 |
| 2022 | $186,360 | $55,000 | $0 | $241,360 | $241,360 |
| 2021 | $169,420 | $55,000 | $0 | $224,420 | $224,420 |
| 2020 | $84,710 | $55,000 | $0 | $139,710 | $139,710 |
| 2019 | $97,810 | $41,900 | $0 | $139,710 | $139,710 |
| 2018 | $78,250 | $41,900 | $0 | $120,150 | $120,150 |
| 2017 | $74,520 | $41,900 | $0 | $116,420 | $46,568 |
| 2016 | $62,100 | $41,900 | $0 | $104,000 | $41,600 |
| 2015 | $62,100 | $41,900 | $0 | $104,000 | $41,600 |
| 2014 | $62,100 | $41,900 | $0 | $104,000 | $41,600 |
| 2013 | $62,100 | $41,900 | $0 | $104,000 | $41,600 |
| 2012 | $62,100 | $41,900 | $0 | $0 | $0 |
| 2011 | $88,100 | $41,900 | $0 | $0 | $0 |
| 2010 | $88,100 | $41,900 | $0 | $0 | $0 |
| 2009 | $94,900 | $41,900 | $0 | $0 | $0 |
| 2008 | $86,700 | $21,000 | $0 | $0 | $0 |
| 2007 | $86,700 | $21,000 | $0 | $0 | $0 |
| 2006 | $86,700 | $21,000 | $0 | $0 | $0 |
Deed and Sales History
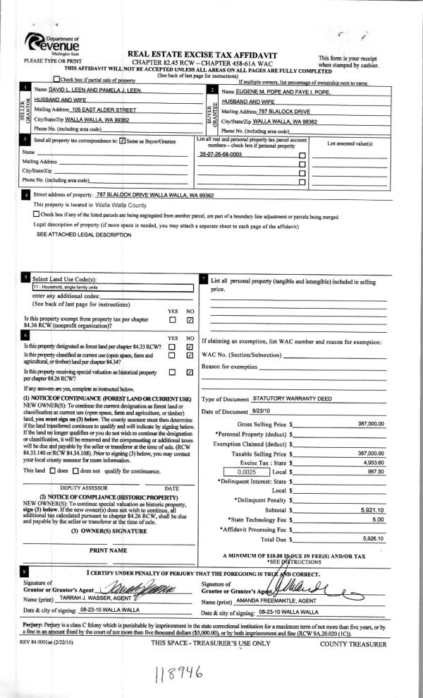
| 1 | 11/09/2021 | SWD | STATUTORY WARRANTY DEED | LALIBERTE MICHELLE J | DEURS RALPH VAN | | | $250,000.00 | 142851 | 2021-13445 |
| 2 | 08/17/2018 | SWD | STATUTORY WARRANTY DEED | MOON WILLIAM F | LALIBERTE MICHELLE J | | | $147,500.00 | 135351 | 2018-06770 |
| 3 | 12/22/2010 | WARRANTY D | WARRANTY DEED | UNGERECHT, MONNA M | MOON, WILLIAM F | | | $100,000.00 | 119492 | 2010-10618 |
| 4 | 11/30/2004 | WARRANTY D | WARRANTY DEED | WASHINGTON MUTUAL BANK FA | UNGERECHT, MONNA M | | | $102,820.00 | 0 | 2004-13734 |
| 5 | 05/13/2004 | WARRANTY D | WARRANTY DEED | PROFESSIONAL FORECLOSURE CORP | WASHINGTON MUTUAL BANK FA | | | $94,500.00 | 104739 | 2004-05138 |
Payout Agreement
| No payout information available.. |