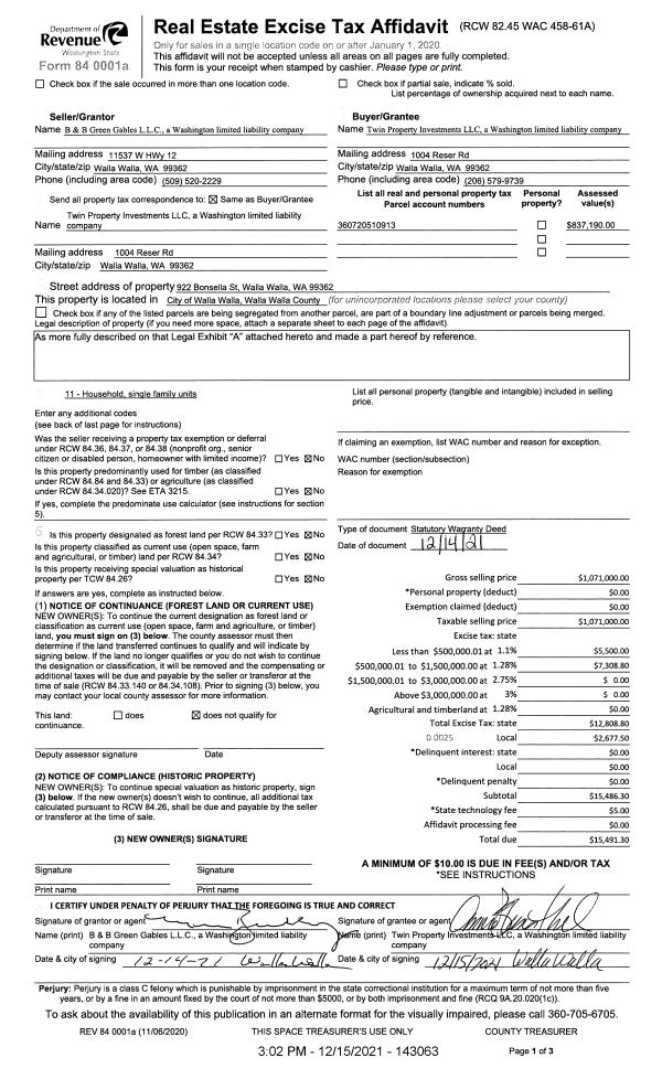
Property
Account |
| Property ID: | 30937 | Abbreviated Legal Description: | VALLEY MARKETING N 35' OF LOT 3; S 28.35' OF LOT 5 BLK 3(C) |
| Parcel Number: | 350725570316 | Agent Code: | |
| Type: | Real | | |
| Tax Area: | 75 - CP 250 | Land Use Code | 11 |
| Open Space: | N | DFL | N |
| Historic Property: | N | Remodel Property: | N |
| Multi-Family Redevelopment: | N | | |
| Township: | 7 | Section: | 25 |
| Range: | 35 |
Location |
| Address: | 112 NE BIRCH AVE WA 99324 | Mapsco: | |
| Neighborhood: | A SFR | Map ID: | |
| Neighborhood CD: | 113011 |
Owner |
| Name: | STALLINGS GREGORY S | Owner ID: | 68940 |
| Mailing Address: | 112 NE BIRCH AVE COLLEGE PLACE, WA 99324 | % Ownership: | 100.0000000000% |
| | | Exemptions: | |
Taxes and Assessment Details
Values
| (+) Improvement Homesite Value: | + | $0 | |
| (+) Improvement Non-Homesite Value: | + | $173,780 | |
| (+) Land Homesite Value: | + | $0 | |
| (+) Land Non-Homesite Value: | + | $52,340 | |
| (+) Curr Use (HS): | + | $0 | $0 |
| (+) Curr Use (NHS): | + | $0 | $0 |
| | | -------------------------- | |
| (=) Market Value: | = | $226,120 | |
| (–) Productivity Loss: | – | $0 | |
| | | -------------------------- | |
| (=) Subtotal: | = | $226,120 | |
| (+) Senior Appraised Value: | + | $0 | |
| (+) Non-Senior Appraised Value: | + | $226,120 | |
| | | -------------------------- | |
| (=) Total Appraised Value: | = | $226,120 | |
| (–) Senior Exemption Loss: | – | $0 | |
| (–) Exemption Loss: | – | $0 | |
| | | -------------------------- | |
| (=) Taxable Value: | = | $226,120 | |
Taxing Jurisdiction
| Owner: | STALLINGS GREGORY S | | |
| % Ownership: | 100.0000000000% | | |
| Total Value: | $226,120 | | |
| Tax Area: | 75 - CP 250 |
| CERFD | CURRENT EXPENSE REFUND 010 | 0.0000000000 | $226,120 | $226,120 | $0.00 | | |
| CURREXP | CURRENT EXPENSE 010 | 1.0175366760 | $226,120 | $226,120 | $230.09 | | |
| HUMNSERV | HUMAN SERVICES 119 | 0.0250000000 | $226,120 | $226,120 | $5.65 | | |
| SLDREL | SOLDIERS RELIEF 121 | 0.0155990005 | $226,120 | $226,120 | $3.53 | | |
| COLLPLBOND | C OF CP BOND 644 | 0.4374241808 | $226,120 | $226,120 | $98.91 | | |
| COLLPLGEN | CITY OF CP 632 | 1.4453819216 | $226,120 | $226,120 | $326.83 | | |
| EMERGSER | EMS 147 | 0.3792580840 | $226,120 | $226,120 | $85.76 | | |
| EMSRFD | EMS REFUND 147 | 0.0000000000 | $226,120 | $226,120 | $0.00 | | |
| RURALLIB | RURAL LIBRARY 623 | 0.3710609029 | $226,120 | $226,120 | $83.90 | | |
| PORTRFD | PORT REFUND 640 | 0.0000000000 | $226,120 | $226,120 | $0.00 | | |
| PORTWWGEN | PORT OF WW 640 | 0.2460186015 | $226,120 | $226,120 | $55.63 | | |
| SD250BOND | SD #250 BOND 773 | 1.4560608159 | $226,120 | $226,120 | $329.24 | | |
| SD250GEN | SD #250 GENERAL 770 | 2.3880724087 | $226,120 | $226,120 | $539.99 | | |
| ST2 | STATE SCHOOL PART 2 600 | 0.8131451643 | $226,120 | $226,120 | $183.87 | | |
| STATESCHL | STATE SCHOOL 600 | 1.5158548041 | $226,120 | $226,120 | $342.77 | | |
| STREFUND | STATE REFUND LEVY 603 | 0.0000000000 | $226,120 | $226,120 | $0.00 | | |
| | Total Tax Rate: | 10.1104125603 | | | | | |
| | | | | Taxes w/Current Exemptions: | $2,286.17 | | |
| | | | | Taxes w/o Exemptions: | $2,286.17 | | |
Improvement / Building
| Improvement #1: | RESIDENTIAL | State Code: | 11 | 1256.0 sqft | Value: | $173,780 |
| Exterior Wall: | SIDING | Heating/Cooling: | FORCED AIR | | Number of Bathrooms: | 1 | Number of Bedrooms: | 2 | | Plumbing: | 6 | Roof Covering: | COMP SHINGLE |
|
| | Type | Description | Class CD | Sub Class CD | Year Built | Area |
| | MA | Main Area | 1 | 25 | 1951 | 1256.0 |
| | SI1 | SITE IMPROVEMENT | 1 | 25 | 1951 | 1.0 |
| | ATG | Attached Garage | 1 | 25 | 1951 | 260.0 |
| | RPS | PORCH W/STEPS,ROOF | 1 | 25 | 1951 | 26.0 |
| | S1F | Single One Story Fireplace | 1 | 25 | 1951 | 1.0 |
| | CPC | COVERED CARPORT/PATIO | 1 | 25 | 1951 | 168.0 |
Sketch
Property Image
Land
| 1 | RES 1 | Converted: Residential | 0.1780 | 7754.00 | 0.00 | 0.00 | 1.00 | $52,340 | $0 |
Roll Value History
| 2025 | N/A | N/A | N/A | N/A | N/A |
| 2024 | $182,470 | $52,340 | $0 | $234,810 | $234,810 |
| 2023 | $173,780 | $52,340 | $0 | $226,120 | $226,120 |
| 2022 | $157,980 | $52,340 | $0 | $210,320 | $210,320 |
| 2021 | $157,980 | $52,340 | $0 | $210,320 | $210,320 |
| 2020 | $92,930 | $52,340 | $0 | $145,270 | $145,270 |
| 2019 | $100,070 | $45,200 | $0 | $145,270 | $145,270 |
| 2018 | $90,970 | $45,200 | $0 | $136,170 | $136,170 |
| 2017 | $75,810 | $45,200 | $0 | $121,010 | $121,010 |
| 2016 | $72,200 | $45,200 | $0 | $117,400 | $117,400 |
| 2015 | $72,200 | $45,200 | $0 | $117,400 | $117,400 |
| 2014 | $72,200 | $45,200 | $0 | $117,400 | $117,400 |
| 2013 | $72,200 | $45,200 | $0 | $117,400 | $117,400 |
| 2012 | $72,200 | $45,200 | $0 | $0 | $0 |
| 2011 | $72,200 | $45,200 | $0 | $0 | $0 |
| 2010 | $66,600 | $45,200 | $0 | $0 | $0 |
| 2009 | $79,000 | $45,200 | $0 | $0 | $0 |
| 2008 | $62,000 | $22,700 | $0 | $0 | $0 |
| 2007 | $62,000 | $22,700 | $0 | $0 | $0 |
| 2006 | $62,000 | $22,700 | $0 | $0 | $0 |
Deed and Sales History
| 1 | 03/02/2021 | SWD | STATUTORY WARRANTY DEED | STRANGE JOSHUA | STALLINGS GREGORY S | | | $212,000.00 | 141021 | 2021-02405 |
| 2 | 08/30/2011 | WARRANTY D | WARRANTY DEED | SECRETARY OF HOUSING & URBAN D | STRANGE, JOSHUA | | | $100,000.00 | 120621 | 2011-06819 |
| 3 | 05/04/2011 | WARRANTY D | WARRANTY DEED | WELLS FARGO BANK NA | SECRETARY OF HOUSING & URBAN D | | | $129,321.00 | 120084 | 2011-03552 |
| 4 | 03/03/2011 | WARRANTY D | WARRANTY DEED | NORTHWEST TRUSTEE SERVICES INC | WELLS FARGO BANK NA | | | $145,225.00 | 119832 | 2011-01953 |
| 5 | 07/08/2008 | WARRANTY D | WARRANTY DEED | BENTON, GARY L & TAMI A | CAIN, CHERYL L | | | $133,500.00 | 115297 | 2008-06988 |
| 6 | 09/18/2001 | WARRANTY D | WARRANTY DEED | | | | | $84,000.00 | 98043 | 3190-110124 |
Payout Agreement
| No payout information available.. |