Property
Account |
| Property ID: | 30787 | Abbreviated Legal Description: | CP #2 PARCEL 17 BLK 10 |
| Parcel Number: | 350736601017 | Agent Code: | |
| Type: | Real | | |
| Tax Area: | 75 - CP 250 | Land Use Code | 11 |
| Open Space: | N | DFL | N |
| Historic Property: | N | Remodel Property: | N |
| Multi-Family Redevelopment: | N | | |
| Township: | 7 | Section: | 36 |
| Range: | 35 |
Location |
| Address: | 418 SE 8TH ST WA 99324 | Mapsco: | |
| Neighborhood: | A SFR | Map ID: | |
| Neighborhood CD: | 113011 |
Owner |
| Name: | RICKS MATTHEW E | Owner ID: | 64536 |
| Mailing Address: | 418 SE 8TH ST COLLEGE PLACE, WA 99324 | % Ownership: | 100.0000000000% |
| | | Exemptions: | |
Taxes and Assessment Details
Values
| (+) Improvement Homesite Value: | + | $0 | |
| (+) Improvement Non-Homesite Value: | + | $232,450 | |
| (+) Land Homesite Value: | + | $0 | |
| (+) Land Non-Homesite Value: | + | $60,750 | |
| (+) Curr Use (HS): | + | $0 | $0 |
| (+) Curr Use (NHS): | + | $0 | $0 |
| | | -------------------------- | |
| (=) Market Value: | = | $293,200 | |
| (–) Productivity Loss: | – | $0 | |
| | | -------------------------- | |
| (=) Subtotal: | = | $293,200 | |
| (+) Senior Appraised Value: | + | $0 | |
| (+) Non-Senior Appraised Value: | + | $293,200 | |
| | | -------------------------- | |
| (=) Total Appraised Value: | = | $293,200 | |
| (–) Senior Exemption Loss: | – | $0 | |
| (–) Exemption Loss: | – | $0 | |
| | | -------------------------- | |
| (=) Taxable Value: | = | $293,200 | |
Taxing Jurisdiction
| Owner: | RICKS MATTHEW E | | |
| % Ownership: | 100.0000000000% | | |
| Total Value: | $293,200 | | |
| Tax Area: | 75 - CP 250 |
| CERFD | CURRENT EXPENSE REFUND 010 | 0.0000000000 | $293,200 | $293,200 | $0.00 | | |
| CURREXP | CURRENT EXPENSE 010 | 1.0175366760 | $293,200 | $293,200 | $298.34 | | |
| HUMNSERV | HUMAN SERVICES 119 | 0.0250000000 | $293,200 | $293,200 | $7.33 | | |
| SLDREL | SOLDIERS RELIEF 121 | 0.0155990005 | $293,200 | $293,200 | $4.57 | | |
| COLLPLBOND | C OF CP BOND 644 | 0.4374241808 | $293,200 | $293,200 | $128.25 | | |
| COLLPLGEN | CITY OF CP 632 | 1.4453819216 | $293,200 | $293,200 | $423.79 | | |
| EMERGSER | EMS 147 | 0.3792580840 | $293,200 | $293,200 | $111.20 | | |
| EMSRFD | EMS REFUND 147 | 0.0000000000 | $293,200 | $293,200 | $0.00 | | |
| RURALLIB | RURAL LIBRARY 623 | 0.3710609029 | $293,200 | $293,200 | $108.80 | | |
| PORTRFD | PORT REFUND 640 | 0.0000000000 | $293,200 | $293,200 | $0.00 | | |
| PORTWWGEN | PORT OF WW 640 | 0.2460186015 | $293,200 | $293,200 | $72.13 | | |
| SD250BOND | SD #250 BOND 773 | 1.4560608159 | $293,200 | $293,200 | $426.92 | | |
| SD250GEN | SD #250 GENERAL 770 | 2.3880724087 | $293,200 | $293,200 | $700.18 | | |
| ST2 | STATE SCHOOL PART 2 600 | 0.8131451643 | $293,200 | $293,200 | $238.41 | | |
| STATESCHL | STATE SCHOOL 600 | 1.5158548041 | $293,200 | $293,200 | $444.45 | | |
| STREFUND | STATE REFUND LEVY 603 | 0.0000000000 | $293,200 | $293,200 | $0.00 | | |
| | Total Tax Rate: | 10.1104125603 | | | | | |
| | | | | Taxes w/Current Exemptions: | $2,964.37 | | |
| | | | | Taxes w/o Exemptions: | $2,964.37 | | |
Improvement / Building
| Improvement #1: | RESIDENTIAL | State Code: | 11 | 1232.0 sqft | Value: | $232,450 |
| Exterior Wall: | PLYWOOD | Heating/Cooling: | WARM & COOLED AIR | | Number of Bathrooms: | 2 | Number of Bedrooms: | 3 | | Plumbing: | 9 | Roof Covering: | COMP SHINGLE |
|
| | Type | Description | Class CD | Sub Class CD | Year Built | Area |
| | MA | Main Area | 1 | 30 | 1976 | 1232.0 |
| | SI1 | SITE IMPROVEMENT | 1 | 30 | 1976 | 1.5 |
| | RPS | PORCH W/STEPS,ROOF | 1 | 30 | 1976 | 88.0 |
| | S1F | Single One Story Fireplace | 1 | 30 | 1976 | 1.0 |
| | RPO | OPEN PORCH W/ROOF | 1 | 30 | 1976 | 320.0 |
| | ATG | Attached Garage | 1 | 30 | 1976 | 504.0 |
Sketch
Property Image
Land
| 1 | RES 1 | Converted: Residential | 0.2066 | 9000.00 | 0.00 | 0.00 | 1.00 | $60,750 | $0 |
Roll Value History
| 2025 | N/A | N/A | N/A | N/A | N/A |
| 2024 | $244,070 | $60,750 | $0 | $304,820 | $304,820 |
| 2023 | $232,450 | $60,750 | $0 | $293,200 | $293,200 |
| 2022 | $193,710 | $60,750 | $0 | $254,460 | $254,460 |
| 2021 | $161,420 | $60,750 | $0 | $222,170 | $222,170 |
| 2020 | $124,170 | $60,750 | $0 | $184,920 | $184,920 |
| 2019 | $138,620 | $46,300 | $0 | $184,920 | $184,920 |
| 2018 | $132,020 | $46,300 | $0 | $178,320 | $86,556 |
| 2017 | $132,020 | $46,300 | $0 | $178,320 | $64,240 |
| 2016 | $125,730 | $46,300 | $0 | $172,030 | $64,240 |
| 2015 | $114,300 | $46,300 | $0 | $160,600 | $64,240 |
| 2014 | $114,300 | $46,300 | $0 | $160,600 | $104,390 |
| 2013 | $114,300 | $46,300 | $0 | $160,600 | $104,390 |
| 2012 | $114,300 | $46,300 | $0 | $0 | $0 |
| 2011 | $114,300 | $46,300 | $0 | $0 | $0 |
| 2010 | $114,300 | $46,300 | $0 | $0 | $0 |
| 2009 | $132,100 | $46,300 | $0 | $0 | $0 |
| 2008 | $76,200 | $23,800 | $0 | $0 | $0 |
| 2007 | $76,200 | $23,800 | $0 | $0 | $0 |
| 2006 | $76,200 | $23,800 | $0 | $0 | $0 |
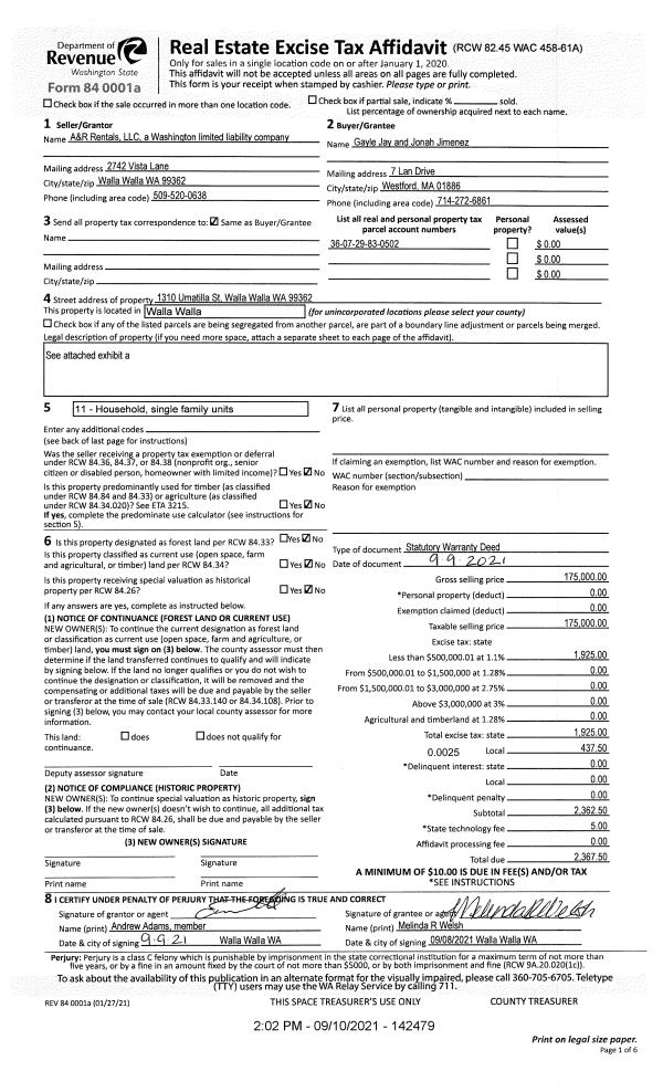
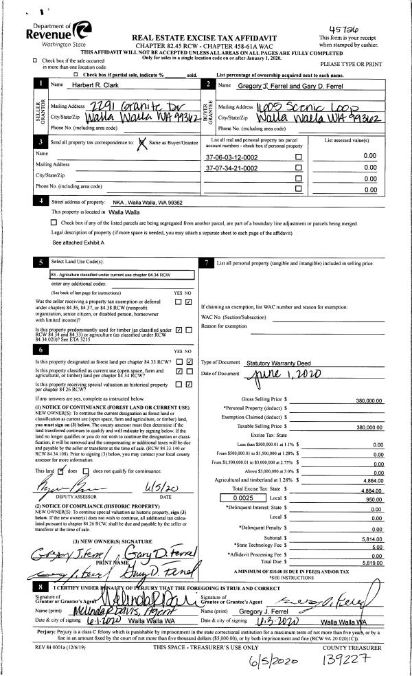
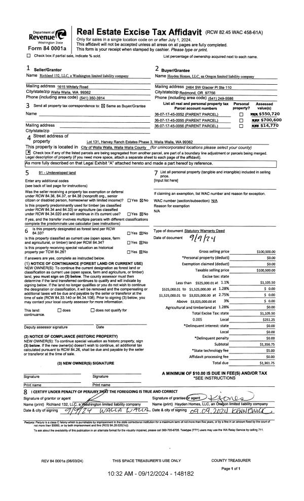
Deed and Sales History
| 1 | 06/20/2025 | QCD | QUIT CLAIM DEED | RICKS MATTHEW E | REIJONEN GEOFFREY | | | | 149569 | 2025-03507 |
| 2 | 05/15/2020 | SWD | STATUTORY WARRANTY DEED | RICKS SHARON J | RICKS MATTHEW E | | | $210,000.00 | 139114 | 2020-04256 |
| 3 | 06/14/2006 | WARRANTY D | WARRANTY DEED | BERENTSEN, TYE K | RICKS, SHARON J | | | $165,000.00 | 110505 | 2006-06883 |
| 4 | 05/08/2002 | WARRANTY D | WARRANTY DEED | | | | | $92,000.00 | 99471 | 2002-0005494 |
Payout Agreement
| No payout information available.. |