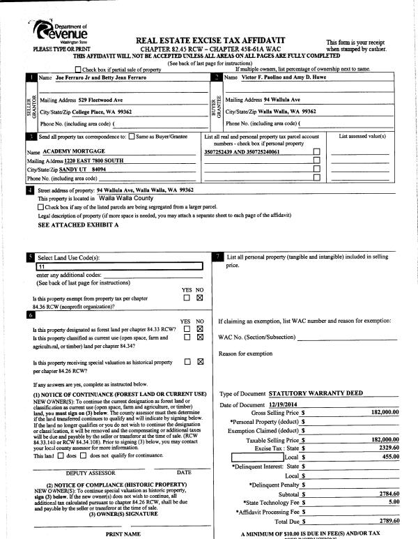
Property
Account |
| Property ID: | 30745 | Abbreviated Legal Description: | RANSOM CLARK DC TAX 2 BLK 65 |
| Parcel Number: | 360605516502 | Agent Code: | |
| Type: | Real | | |
| Tax Area: | 101 - 140-4 | Land Use Code | 11 |
| Open Space: | N | DFL | N |
| Historic Property: | N | Remodel Property: | N |
| Multi-Family Redevelopment: | N | | |
| Township: | 6 | Section: | 5 |
| Range: | 36 |
Location |
| Address: | 758 W LANGDON RD WA 99362 | Mapsco: | |
| Neighborhood: | G Res Rural/City Inf | Map ID: | |
| Neighborhood CD: | 614012 |
Owner |
| Name: | HALL DAVID & REVA | Owner ID: | 51556 |
| Mailing Address: | 758 W LANGDON RD WALLA WALLA, WA 99362 | % Ownership: | 100.0000000000% |
| | | Exemptions: | |
Taxes and Assessment Details
Values
| (+) Improvement Homesite Value: | + | $0 | |
| (+) Improvement Non-Homesite Value: | + | $232,380 | |
| (+) Land Homesite Value: | + | $0 | |
| (+) Land Non-Homesite Value: | + | $160,000 | |
| (+) Curr Use (HS): | + | $0 | $0 |
| (+) Curr Use (NHS): | + | $0 | $0 |
| | | -------------------------- | |
| (=) Market Value: | = | $392,380 | |
| (–) Productivity Loss: | – | $0 | |
| | | -------------------------- | |
| (=) Subtotal: | = | $392,380 | |
| (+) Senior Appraised Value: | + | $0 | |
| (+) Non-Senior Appraised Value: | + | $392,380 | |
| | | -------------------------- | |
| (=) Total Appraised Value: | = | $392,380 | |
| (–) Senior Exemption Loss: | – | $0 | |
| (–) Exemption Loss: | – | $0 | |
| | | -------------------------- | |
| (=) Taxable Value: | = | $392,380 | |
Taxing Jurisdiction
| Owner: | HALL DAVID & REVA | | |
| % Ownership: | 100.0000000000% | | |
| Total Value: | $392,380 | | |
| Tax Area: | 101 - 140-4 |
| CERFD | CURRENT EXPENSE REFUND 010 | 0.0000000000 | $392,380 | $392,380 | $0.00 | | |
| CURREXP | CURRENT EXPENSE 010 | 1.0175366760 | $392,380 | $392,380 | $399.26 | | |
| HUMNSERV | HUMAN SERVICES 119 | 0.0250000000 | $392,380 | $392,380 | $9.81 | | |
| SLDREL | SOLDIERS RELIEF 121 | 0.0155990005 | $392,380 | $392,380 | $6.12 | | |
| EMERGSER | EMS 147 | 0.3792580840 | $392,380 | $392,380 | $148.81 | | |
| EMSRFD | EMS REFUND 147 | 0.0000000000 | $392,380 | $392,380 | $0.00 | | |
| FD4EXP | FD #4 EXPENSE 686 | 0.8836993059 | $392,380 | $392,380 | $346.75 | | |
| RLBRFD | RURAL LIBRARY REFUND 623 | 0.0000000000 | $392,380 | $392,380 | $0.00 | | |
| RURALLIB | RURAL LIBRARY 623 | 0.3710609029 | $392,380 | $392,380 | $145.60 | | |
| PORTRFD | PORT REFUND 640 | 0.0000000000 | $392,380 | $392,380 | $0.00 | | |
| PORTWWGEN | PORT OF WW 640 | 0.2460186015 | $392,380 | $392,380 | $96.53 | | |
| SD140BOND | SD #140 BOND 764 | 0.8342371393 | $392,380 | $392,380 | $327.34 | | |
| SD140GEN | SD #140 GENERAL 760 | 2.0646500647 | $392,380 | $392,380 | $810.13 | | |
| ST2 | STATE SCHOOL PART 2 600 | 0.8131451643 | $392,380 | $392,380 | $319.06 | | |
| STATESCHL | STATE SCHOOL 600 | 1.5158548041 | $392,380 | $392,380 | $594.79 | | |
| STREFUND | STATE REFUND LEVY 603 | 0.0000000000 | $392,380 | $392,380 | $0.00 | | |
| COROAD | COUNTY ROAD 115 | 1.6549953990 | $392,380 | $392,380 | $649.39 | | |
| CRPRD | COUNTY ROAD REFUND 115 | 0.0000000000 | $392,380 | $392,380 | $0.00 | | |
| | Total Tax Rate: | 9.8210551422 | | | | | |
| | | | | Taxes w/Current Exemptions: | $3,853.59 | | |
| | | | | Taxes w/o Exemptions: | $3,853.59 | | |
Improvement / Building
| Improvement #1: | RESIDENTIAL | State Code: | 11 | 2002.0 sqft | Value: | $232,380 |
| Exterior Wall: | VINYL | Foundation: | SLAB FOUNDATION | | Heating/Cooling: | WALL FURNACE | Number of Bathrooms: | 2 | | Number of Bedrooms: | 3 | Plumbing: | 8 | | Roof Covering: | COMP SHINGLE |   |   |
|
| | Type | Description | Class CD | Sub Class CD | Year Built | Area |
| | MA | Main Area | 3 | 30 | 1948 | 2002.0 |
| | SI1 | SITE IMPROVEMENT | 3 | 30 | 1948 | 1.7 |
| | UPFL | Upper Floor (included in main area) | 3 | 30 | 1948 | 394.0 |
| | RPO | OPEN PORCH W/ROOF | 3 | 30 | 1948 | 120.0 |
| | DTG | Detached Garage | 3 | 30 | 2007 | 1600.0 |
| | RPO | OPEN PORCH W/ROOF | 3 | 30 | 1948 | 216.0 |
Sketch
Property Image
Land
| 1 | RES 1 | Converted: Residential | 2.0000 | 0.00 | 0.00 | 0.00 | 1.00 | $160,000 | $0 |
Roll Value History
| 2025 | N/A | N/A | N/A | N/A | N/A |
| 2024 | $232,380 | $160,000 | $0 | $392,380 | $392,380 |
| 2023 | $232,380 | $160,000 | $0 | $392,380 | $392,380 |
| 2022 | $232,380 | $95,000 | $0 | $327,380 | $327,380 |
| 2021 | $193,650 | $95,000 | $0 | $288,650 | $288,650 |
| 2020 | $129,100 | $95,000 | $0 | $224,100 | $224,100 |
| 2019 | $129,100 | $95,000 | $0 | $224,100 | $224,100 |
| 2018 | $105,290 | $83,000 | $0 | $188,290 | $188,290 |
| 2017 | $100,280 | $83,000 | $0 | $183,280 | $183,280 |
| 2016 | $100,280 | $83,000 | $0 | $183,280 | $183,280 |
| 2015 | $100,280 | $83,000 | $0 | $183,280 | $183,280 |
| 2014 | $95,500 | $83,000 | $0 | $178,500 | $178,500 |
| 2013 | $95,500 | $83,000 | $0 | $178,500 | $178,500 |
| 2012 | $78,900 | $83,000 | $0 | $0 | $0 |
| 2011 | $78,900 | $83,000 | $0 | $0 | $0 |
| 2010 | $78,900 | $83,000 | $0 | $0 | $0 |
| 2009 | $96,900 | $83,000 | $0 | $0 | $0 |
| 2008 | $96,900 | $83,000 | $0 | $0 | $0 |
| 2007 | $68,800 | $50,000 | $0 | $0 | $0 |
| 2006 | $68,800 | $50,000 | $0 | $0 | $0 |
Deed and Sales History
| 1 | 07/16/2013 | QCD | QUIT CLAIM DEED | FEDERAL NATIONAL MORTGAGE ASSO | BANK OF AMERICA | | | $0.00 | 124297 | 2013-07156 |
| 2 | 09/21/2012 | WARRANTY D | WARRANTY DEED | FEDERAL NATIONAL MORTGAGE ASSO | HALL, DAVID & REVA | | | $0.00 | 0 | 2012-08227 |
| 3 | 03/04/2011 | WARRANTY D | WARRANTY DEED | RECONTRUST COMPANY NA | FEDERAL NATIONAL MORTGAGE~ASSO | | | $313,551.00 | 119840 | 2011-02026 |
| 4 | 05/29/2007 | QCD | QUIT CLAIM DEED | HALL, REVA W | HALL, DAVID & REVA | | | | 112917 | 2007-06048 |
| 5 | 12/29/2005 | QCD | QUIT CLAIM DEED | HALL, DAVID L | HALL, REVA W | | | | 109347 | 2005-16229 |
| 6 | 01/29/1962 | WARRANTY D | WARRANTY DEED | | | | | $7,500.00 | 0 | 7053-1182 |
Payout Agreement
| No payout information available.. |