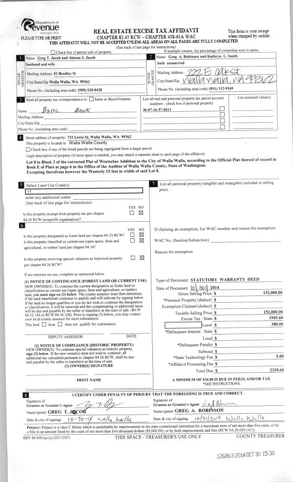
Property
Account |
| Property ID: | 30705 | Abbreviated Legal Description: | MTN VIEW LOT 6 BLK 1 |
| Parcel Number: | 360728850106 | Agent Code: | |
| Type: | Real | | |
| Tax Area: | 1 - OL-140-F | Land Use Code | 11 |
| Open Space: | N | DFL | N |
| Historic Property: | N | Remodel Property: | N |
| Multi-Family Redevelopment: | N | | |
| Township: | 7 | Section: | 28 |
| Range: | 36 |
Location |
| Address: | 520 BRYANT AVE WA 99362 | Mapsco: | |
| Neighborhood: | A Res | Map ID: | |
| Neighborhood CD: | 613011 |
Owner |
| Name: | SHECKLER KYLIE | Owner ID: | 70587 |
| Mailing Address: | MITCHEL MOLLER 87 COYOTE RIDGE DR WALLA WALLA, WA 99362-8737 | % Ownership: | 100.0000000000% |
| | | Exemptions: | |
Taxes and Assessment Details
Values
| (+) Improvement Homesite Value: | + | $0 | |
| (+) Improvement Non-Homesite Value: | + | $307,360 | |
| (+) Land Homesite Value: | + | $0 | |
| (+) Land Non-Homesite Value: | + | $51,750 | |
| (+) Curr Use (HS): | + | $0 | $0 |
| (+) Curr Use (NHS): | + | $0 | $0 |
| | | -------------------------- | |
| (=) Market Value: | = | $359,110 | |
| (–) Productivity Loss: | – | $0 | |
| | | -------------------------- | |
| (=) Subtotal: | = | $359,110 | |
| (+) Senior Appraised Value: | + | $0 | |
| (+) Non-Senior Appraised Value: | + | $359,110 | |
| | | -------------------------- | |
| (=) Total Appraised Value: | = | $359,110 | |
| (–) Senior Exemption Loss: | – | $0 | |
| (–) Exemption Loss: | – | $0 | |
| | | -------------------------- | |
| (=) Taxable Value: | = | $359,110 | |
Taxing Jurisdiction
| Owner: | SHECKLER KYLIE | | |
| % Ownership: | 100.0000000000% | | |
| Total Value: | $359,110 | | |
| Tax Area: | 1 - OL-140-F |
| CERFD | CURRENT EXPENSE REFUND 010 | 0.0000000000 | $359,110 | $359,110 | $0.00 | | |
| CURREXP | CURRENT EXPENSE 010 | 1.0175366760 | $359,110 | $359,110 | $365.41 | | |
| HUMNSERV | HUMAN SERVICES 119 | 0.0250000000 | $359,110 | $359,110 | $8.98 | | |
| SLDREL | SOLDIERS RELIEF 121 | 0.0155990005 | $359,110 | $359,110 | $5.60 | | |
| EMERGSER | EMS 147 | 0.3792580840 | $359,110 | $359,110 | $136.20 | | |
| EMSRFD | EMS REFUND 147 | 0.0000000000 | $359,110 | $359,110 | $0.00 | | |
| PORTRFD | PORT REFUND 640 | 0.0000000000 | $359,110 | $359,110 | $0.00 | | |
| PORTWWGEN | PORT OF WW 640 | 0.2460186015 | $359,110 | $359,110 | $88.35 | | |
| SD140BOND | SD #140 BOND 764 | 0.8342371393 | $359,110 | $359,110 | $299.58 | | |
| SD140GEN | SD #140 GENERAL 760 | 2.0646500647 | $359,110 | $359,110 | $741.44 | | |
| ST2 | STATE SCHOOL PART 2 600 | 0.8131451643 | $359,110 | $359,110 | $292.01 | | |
| STATESCHL | STATE SCHOOL 600 | 1.5158548041 | $359,110 | $359,110 | $544.36 | | |
| STREFUND | STATE REFUND LEVY 603 | 0.0000000000 | $359,110 | $359,110 | $0.00 | | |
| CWWBOND | C OF WW BOND 643 | 0.2760494372 | $359,110 | $359,110 | $99.13 | | |
| CWWGEN | CITY OF WW 631 | 1.6100204973 | $359,110 | $359,110 | $578.17 | | |
| CWWRFD | CITY OF WALLA WALLA REFUND 631 | 0.0000000000 | $359,110 | $359,110 | $0.00 | | |
| | Total Tax Rate: | 8.7973694689 | | | | | |
| | | | | Taxes w/Current Exemptions: | $3,159.23 | | |
| | | | | Taxes w/o Exemptions: | $3,159.23 | | |
Improvement / Building
| Improvement #1: | RESIDENTIAL | State Code: | 11 | 1455.0 sqft | Value: | $307,360 |
| Exterior Wall: | SIDING | Heating/Cooling: | BASEBOARD ELECTRIC | | Number of Bathrooms: | 1 | Number of Bedrooms: | 2 | | Plumbing: | 7 | Roof Covering: | COMP SHINGLE |
|
| | Type | Description | Class CD | Sub Class CD | Year Built | Area |
| | MA | Main Area | 1 | 35 | 1890 | 1455.0 |
| | SI1 | SITE IMPROVEMENT | 1 | 30 | 1890 | 2.0 |
| | RPC | OPEN PORCH W/ROOF , CEILED | 1 | 30 | 1890 | 72.0 |
| | UTST | Utility Storage Shed | 1 | 30 | 1890 | 224.0 |
Sketch
Property Image
Land
| 1 | RES 1 | Converted: Residential | 0.1320 | 5750.00 | 0.00 | 0.00 | 1.00 | $51,750 | $0 |
Roll Value History
| 2025 | N/A | N/A | N/A | N/A | N/A |
| 2024 | $322,730 | $51,750 | $0 | $374,480 | $374,480 |
| 2023 | $307,360 | $51,750 | $0 | $359,110 | $359,110 |
| 2022 | $279,420 | $41,690 | $0 | $321,110 | $321,110 |
| 2021 | $214,940 | $41,690 | $0 | $256,630 | $256,630 |
| 2020 | $143,290 | $41,690 | $0 | $184,980 | $184,980 |
| 2019 | $143,290 | $41,690 | $0 | $184,980 | $184,980 |
| 2018 | $100,760 | $34,500 | $0 | $135,260 | $135,260 |
| 2017 | $91,600 | $34,500 | $0 | $126,100 | $126,100 |
| 2016 | $87,240 | $34,500 | $0 | $121,740 | $121,740 |
| 2015 | $87,240 | $34,500 | $0 | $121,740 | $121,740 |
| 2014 | $84,700 | $34,500 | $0 | $119,200 | $119,200 |
| 2013 | $84,700 | $34,500 | $0 | $119,200 | $119,200 |
| 2012 | $72,300 | $34,500 | $0 | $0 | $0 |
| 2011 | $118,100 | $34,500 | $0 | $0 | $0 |
| 2010 | $104,200 | $34,500 | $0 | $0 | $0 |
| 2009 | $119,600 | $34,500 | $0 | $0 | $0 |
| 2008 | $119,600 | $34,500 | $0 | $0 | $0 |
| 2007 | $82,200 | $17,300 | $0 | $0 | $0 |
| 2006 | $59,100 | $17,300 | $0 | $0 | $0 |
Deed and Sales History
| 1 | 11/08/2021 | QCD | QUIT CLAIM DEED | SHECKLER KYLIE | SHECKLER KYLIE | | | $0.00 | 142829 | 2021-13354 |
| 2 | 06/28/2019 | SWD | STATUTORY WARRANTY DEED | MARTINEZ JUAN CARLOS | SHECKLER KYLIE | | | $240,000.00 | 137196 | 2019-04667 |
| 3 | 03/03/2011 | WARRANTY D | WARRANTY DEED | FCDB SNPWL REO LLC | MARTINEZ, JUAN CARLOS | | | $95,500.00 | 119838 | 2011-02009 |
| 4 | 03/18/2010 | WARRANTY D | WARRANTY DEED | FIDELITY NATIONAL TITLE INSURA | FCDB SNPWL REO LLC | | | $120,000.00 | 118218 | 2010-02244 |
| 5 | 03/07/2006 | WARRANTY D | WARRANTY DEED | ABC#1, LLC | GILLENTINE, STEPHEN F | | | $99,500.00 | 109789 | 2006-02541 |
| 6 | 09/15/2005 | WARRANTY D | WARRANTY DEED | GILLENTINE, LEE | ABC#1, LLC | | | $95,000.00 | 108486 | 2005-11410 |
| 7 | 06/16/2005 | QCD | QUIT CLAIM DEED | GILLENTINE, STEPHEN | GILLENTINE, LEE | | | | 107733 | 2005-07203 |
| 8 | 12/09/2003 | WARRANTY D | WARRANTY DEED | ESTATE OF CLARENCE BLOCK | GILLENTINE, STEPHEN | | | | 103681 | 2003-18697 |
| 9 | 12/09/2003 | WARRANTY D | WARRANTY DEED | BLOCK, CLARENCE ESTATE | GILLENTINE, STEPHEN | | | | 103681 | 2003-18698 |
| 10 | 12/09/2003 | WARRANTY D | WARRANTY DEED | BLOCK, CLARENCE E ESTATE | GILLENTINE, STEPHEN | | | $68,000.00 | 103681 | 2003-18696 |
Payout Agreement
| No payout information available.. |