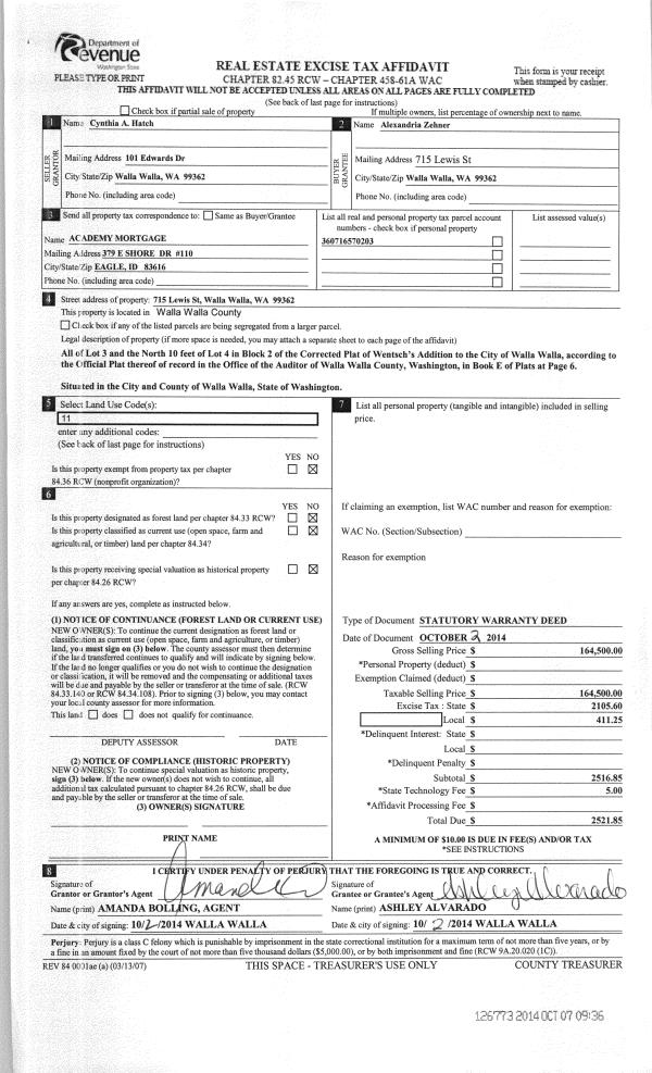
Property
Account |
| Property ID: | 30664 | Abbreviated Legal Description: | PARKSIDE ADDITION LOT 9 OF SHORT PLAT (SWLY PTN LOT 2; WLY PTN LOT3; WLY PTN LOT 4; NWLY STRIP LOT 5) BLOCK 5 |
| Parcel Number: | 360722500539 | Agent Code: | |
| Type: | Real | | |
| Tax Area: | 1 - OL-140-F | Land Use Code | 11 |
| Open Space: | N | DFL | N |
| Historic Property: | N | Remodel Property: | N |
| Multi-Family Redevelopment: | N | | |
| Township: | 7 | Section: | 22 |
| Range: | 36 |
Location |
| Address: | 1607 DISCOVERY DR WA 99362 | Mapsco: | |
| Neighborhood: | A SFR | Map ID: | |
| Neighborhood CD: | 413011 |
Owner |
| Name: | MC NEIL CALVIN W & CRISTY E | Owner ID: | 54869 |
| Mailing Address: | 1607 DISCOVERY DR WALLA WALLA, WA 99362 | % Ownership: | 100.0000000000% |
| | | Exemptions: | |
Taxes and Assessment Details
Values
| (+) Improvement Homesite Value: | + | $0 | |
| (+) Improvement Non-Homesite Value: | + | $286,950 | |
| (+) Land Homesite Value: | + | $0 | |
| (+) Land Non-Homesite Value: | + | $57,600 | |
| (+) Curr Use (HS): | + | $0 | $0 |
| (+) Curr Use (NHS): | + | $0 | $0 |
| | | -------------------------- | |
| (=) Market Value: | = | $344,550 | |
| (–) Productivity Loss: | – | $0 | |
| | | -------------------------- | |
| (=) Subtotal: | = | $344,550 | |
| (+) Senior Appraised Value: | + | $0 | |
| (+) Non-Senior Appraised Value: | + | $344,550 | |
| | | -------------------------- | |
| (=) Total Appraised Value: | = | $344,550 | |
| (–) Senior Exemption Loss: | – | $0 | |
| (–) Exemption Loss: | – | $0 | |
| | | -------------------------- | |
| (=) Taxable Value: | = | $344,550 | |
Taxing Jurisdiction
| Owner: | MC NEIL CALVIN W & CRISTY E | | |
| % Ownership: | 100.0000000000% | | |
| Total Value: | $344,550 | | |
| Tax Area: | 1 - OL-140-F |
| CERFD | CURRENT EXPENSE REFUND 010 | 0.0000000000 | $344,550 | $344,550 | $0.00 | | |
| CURREXP | CURRENT EXPENSE 010 | 1.0175366760 | $344,550 | $344,550 | $350.59 | | |
| HUMNSERV | HUMAN SERVICES 119 | 0.0250000000 | $344,550 | $344,550 | $8.61 | | |
| SLDREL | SOLDIERS RELIEF 121 | 0.0155990005 | $344,550 | $344,550 | $5.37 | | |
| EMERGSER | EMS 147 | 0.3792580840 | $344,550 | $344,550 | $130.67 | | |
| EMSRFD | EMS REFUND 147 | 0.0000000000 | $344,550 | $344,550 | $0.00 | | |
| PORTRFD | PORT REFUND 640 | 0.0000000000 | $344,550 | $344,550 | $0.00 | | |
| PORTWWGEN | PORT OF WW 640 | 0.2460186015 | $344,550 | $344,550 | $84.77 | | |
| SD140BOND | SD #140 BOND 764 | 0.8342371393 | $344,550 | $344,550 | $287.44 | | |
| SD140GEN | SD #140 GENERAL 760 | 2.0646500647 | $344,550 | $344,550 | $711.38 | | |
| ST2 | STATE SCHOOL PART 2 600 | 0.8131451643 | $344,550 | $344,550 | $280.17 | | |
| STATESCHL | STATE SCHOOL 600 | 1.5158548041 | $344,550 | $344,550 | $522.29 | | |
| STREFUND | STATE REFUND LEVY 603 | 0.0000000000 | $344,550 | $344,550 | $0.00 | | |
| CWWBOND | C OF WW BOND 643 | 0.2760494372 | $344,550 | $344,550 | $95.11 | | |
| CWWGEN | CITY OF WW 631 | 1.6100204973 | $344,550 | $344,550 | $554.73 | | |
| CWWRFD | CITY OF WALLA WALLA REFUND 631 | 0.0000000000 | $344,550 | $344,550 | $0.00 | | |
| | Total Tax Rate: | 8.7973694689 | | | | | |
| | | | | Taxes w/Current Exemptions: | $3,031.13 | | |
| | | | | Taxes w/o Exemptions: | $3,031.13 | | |
Improvement / Building
| Improvement #1: | RESIDENTIAL | State Code: | 11 | 1330.0 sqft | Value: | $286,950 |
| Exterior Wall: | PLYWOOD | Heating/Cooling: | WARM & COOLED AIR | | Number of Bathrooms: | 2 | Number of Bedrooms: | 3 | | Plumbing: | 9 | Roof Covering: | COMP SHINGLE |
|
| | Type | Description | Class CD | Sub Class CD | Year Built | Area |
| | MA | Main Area | 1 | 35 | 2010 | 1330.0 |
| | SI1 | SITE IMPROVEMENT | 1 | 35 | 0 | 3.0 |
| | ATG | Attached Garage | 1 | 35 | 2010 | 426.0 |
| | RPO | OPEN PORCH W/ROOF | 1 | 35 | 2010 | 30.0 |
| | RPO | OPEN PORCH W/ROOF | 1 | 35 | 2010 | 84.0 |
| | CPC | COVERED CARPORT/PATIO | 1 | 35 | 2010 | 100.0 |
Sketch
Property Image
Land
| 1 | RES 1 | Converted: Residential | 0.1653 | 7200.00 | 0.00 | 0.00 | 1.00 | $57,600 | $0 |
Roll Value History
| 2025 | N/A | N/A | N/A | N/A | N/A |
| 2024 | $286,950 | $57,600 | $0 | $344,550 | $344,550 |
| 2023 | $286,950 | $57,600 | $0 | $344,550 | $344,550 |
| 2022 | $282,690 | $37,800 | $0 | $320,490 | $320,490 |
| 2021 | $256,990 | $37,800 | $0 | $294,790 | $294,790 |
| 2020 | $177,240 | $37,800 | $0 | $215,040 | $215,040 |
| 2019 | $177,240 | $37,800 | $0 | $215,040 | $215,040 |
| 2018 | $161,120 | $37,800 | $0 | $198,920 | $198,920 |
| 2017 | $161,120 | $37,800 | $0 | $198,920 | $198,920 |
| 2016 | $161,120 | $28,800 | $0 | $189,920 | $189,920 |
| 2015 | $153,450 | $28,800 | $0 | $182,250 | $182,250 |
| 2014 | $139,500 | $28,800 | $0 | $168,300 | $168,300 |
| 2013 | $139,500 | $28,800 | $0 | $168,300 | $168,300 |
| 2012 | $131,500 | $28,800 | $0 | $0 | $0 |
| 2011 | $0 | $5,400 | $0 | $0 | $0 |
| 2010 | $0 | $1,000 | $0 | $0 | $0 |
| 2009 | $0 | $1,000 | $0 | $0 | $0 |
| 2008 | $0 | $1,000 | $0 | $0 | $0 |
| 2007 | $0 | $1,000 | $0 | $0 | $0 |
Deed and Sales History
| 1 | 06/03/2014 | SWD | STATUTORY WARRANTY DEED | TURNBOW SANDRA | MC NEIL CALVIN W & CRISTY E | | | $187,000.00 | 126006 | 2014-03784 |
| 2 | 08/23/2013 | WARRANTY D | WARRANTY DEED | KEITHLEY, KENNETH R & CASSANDR | TURNBOW, SANDRA | | | $178,000.00 | 124527 | 2013-08693 |
| 3 | 02/11/2011 | WARRANTY D | WARRANTY DEED | VOTH, RICK | KEITHLEY, KENNETH R | | | $168,000.00 | 119729 | 2011-01373 |
| 4 | 02/23/2007 | QCD | QUIT CLAIM DEED | TITUS CREEK DEVELOPMENT LLC | VOTH RICK | | | | 112289 | 2007-02107 |
Payout Agreement
| No payout information available.. |