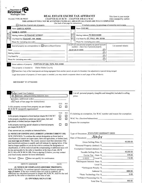
Property
Account |
| Property ID: | 30638 | Abbreviated Legal Description: | REESES LOT 10 BLK 9 |
| Parcel Number: | 360730530910 | Agent Code: | |
| Type: | Real | | |
| Tax Area: | 1 - OL-140-F | Land Use Code | 11 |
| Open Space: | N | DFL | N |
| Historic Property: | N | Remodel Property: | N |
| Multi-Family Redevelopment: | N | | |
| Township: | 7 | Section: | 30 |
| Range: | 36 |
Location |
| Address: | 604 W POPLAR ST WA 99362 | Mapsco: | |
| Neighborhood: | F SFR | Map ID: | |
| Neighborhood CD: | 512011 |
Owner |
| Name: | HARSTAD ERIC G ESTATE OF | Owner ID: | 50270 |
| Mailing Address: | 1545 WIGWAM PKWY APT 1123 HENDERSON, NV 89074-8276 | % Ownership: | 100.0000000000% |
| | | Exemptions: | |
Taxes and Assessment Details
Values
| (+) Improvement Homesite Value: | + | $0 | |
| (+) Improvement Non-Homesite Value: | + | $133,290 | |
| (+) Land Homesite Value: | + | $0 | |
| (+) Land Non-Homesite Value: | + | $37,800 | |
| (+) Curr Use (HS): | + | $0 | $0 |
| (+) Curr Use (NHS): | + | $0 | $0 |
| | | -------------------------- | |
| (=) Market Value: | = | $171,090 | |
| (–) Productivity Loss: | – | $0 | |
| | | -------------------------- | |
| (=) Subtotal: | = | $171,090 | |
| (+) Senior Appraised Value: | + | $0 | |
| (+) Non-Senior Appraised Value: | + | $171,090 | |
| | | -------------------------- | |
| (=) Total Appraised Value: | = | $171,090 | |
| (–) Senior Exemption Loss: | – | $0 | |
| (–) Exemption Loss: | – | $0 | |
| | | -------------------------- | |
| (=) Taxable Value: | = | $171,090 | |
Taxing Jurisdiction
| Owner: | HARSTAD ERIC G ESTATE OF | | |
| % Ownership: | 100.0000000000% | | |
| Total Value: | $171,090 | | |
| Tax Area: | 1 - OL-140-F |
| CERFD | CURRENT EXPENSE REFUND 010 | 0.0000000000 | $171,090 | $171,090 | $0.00 | | |
| CURREXP | CURRENT EXPENSE 010 | 1.0175366760 | $171,090 | $171,090 | $174.09 | | |
| HUMNSERV | HUMAN SERVICES 119 | 0.0250000000 | $171,090 | $171,090 | $4.28 | | |
| SLDREL | SOLDIERS RELIEF 121 | 0.0155990005 | $171,090 | $171,090 | $2.67 | | |
| EMERGSER | EMS 147 | 0.3792580840 | $171,090 | $171,090 | $64.89 | | |
| EMSRFD | EMS REFUND 147 | 0.0000000000 | $171,090 | $171,090 | $0.00 | | |
| PORTRFD | PORT REFUND 640 | 0.0000000000 | $171,090 | $171,090 | $0.00 | | |
| PORTWWGEN | PORT OF WW 640 | 0.2460186015 | $171,090 | $171,090 | $42.09 | | |
| SD140BOND | SD #140 BOND 764 | 0.8342371393 | $171,090 | $171,090 | $142.73 | | |
| SD140GEN | SD #140 GENERAL 760 | 2.0646500647 | $171,090 | $171,090 | $353.24 | | |
| ST2 | STATE SCHOOL PART 2 600 | 0.8131451643 | $171,090 | $171,090 | $139.12 | | |
| STATESCHL | STATE SCHOOL 600 | 1.5158548041 | $171,090 | $171,090 | $259.35 | | |
| STREFUND | STATE REFUND LEVY 603 | 0.0000000000 | $171,090 | $171,090 | $0.00 | | |
| CWWBOND | C OF WW BOND 643 | 0.2760494372 | $171,090 | $171,090 | $47.23 | | |
| CWWGEN | CITY OF WW 631 | 1.6100204973 | $171,090 | $171,090 | $275.46 | | |
| CWWRFD | CITY OF WALLA WALLA REFUND 631 | 0.0000000000 | $171,090 | $171,090 | $0.00 | | |
| | Total Tax Rate: | 8.7973694689 | | | | | |
| | | | | Taxes w/Current Exemptions: | $1,505.15 | | |
| | | | | Taxes w/o Exemptions: | $1,505.15 | | |
Improvement / Building
| Improvement #1: | RESIDENTIAL | State Code: | 11 | 1376.0 sqft | Value: | $133,290 |
| Exterior Wall: | SIDING | Foundation: | POST & PIER | | Heating/Cooling: | FORCED AIR | Number of Bathrooms: | 1 | | Number of Bedrooms: | 2 | Plumbing: | 6 | | Roof Covering: | COMP SHINGLE |   |   |
|
| | Type | Description | Class CD | Sub Class CD | Year Built | Area |
| | MA | Main Area | 1 | 30 | 1906 | 1376.0 |
| | SI1 | SITE IMPROVEMENT | 1 | 30 | 1906 | 1.0 |
| | WOD | Wood Deck | 1 | 30 | 1906 | 145.0 |
| | WOD | Wood Deck | 1 | 30 | 1906 | 150.0 |
| | UTST | Utility Storage Shed | 1 | 30 | 1906 | 232.0 |
Sketch
Property Image
Land
| 1 | RES 1 | Converted: Residential | 0.1653 | 7200.00 | 0.00 | 0.00 | 1.00 | $37,800 | $0 |
Roll Value History
| 2025 | N/A | N/A | N/A | N/A | N/A |
| 2024 | $186,870 | $64,800 | $0 | $251,670 | $251,670 |
| 2023 | $133,290 | $37,800 | $0 | $171,090 | $171,090 |
| 2022 | $133,290 | $37,800 | $0 | $171,090 | $171,090 |
| 2021 | $95,210 | $37,800 | $0 | $133,010 | $133,010 |
| 2020 | $79,340 | $37,800 | $0 | $117,140 | $117,140 |
| 2019 | $79,340 | $37,800 | $0 | $117,140 | $117,140 |
| 2018 | $75,560 | $37,800 | $0 | $113,360 | $113,360 |
| 2017 | $47,040 | $21,600 | $0 | $68,640 | $68,640 |
| 2016 | $47,040 | $21,600 | $0 | $68,640 | $68,640 |
| 2015 | $47,040 | $21,600 | $0 | $68,640 | $68,640 |
| 2014 | $44,800 | $21,600 | $0 | $66,400 | $66,400 |
| 2013 | $44,800 | $21,600 | $0 | $66,400 | $66,400 |
| 2012 | $51,100 | $21,600 | $0 | $0 | $0 |
| 2011 | $51,100 | $21,600 | $0 | $0 | $0 |
| 2010 | $51,100 | $21,600 | $0 | $0 | $0 |
| 2009 | $59,200 | $21,600 | $0 | $0 | $0 |
| 2008 | $39,200 | $12,600 | $0 | $0 | $0 |
| 2007 | $39,200 | $12,600 | $0 | $0 | $0 |
| 2006 | $39,200 | $12,600 | $0 | $0 | $0 |
Deed and Sales History
| 1 | 12/22/2023 | DPR | DEED OF PERSONAL REPRESENTATIVE | HARSTAD ERIC G ESTATE OF | ROBBINS CHRISTINA M | | | $254,000.00 | 146962 | 2023-07420 |
| 2 | 09/07/2011 | WARRANTY D | WARRANTY DEED | SPANISH, MICHAEL R | HARSTAD, ERIC G | | | $68,750.00 | 120659 | 2011-06981 |
| 3 | 02/07/2011 | WARRANTY D | WARRANTY DEED | SPANISH, MICHAEL & ALICE ESTAT | SPANISH MICHAEL R | | | | 119712 | 2011-01224 |
| 4 | 09/01/1972 | WARRANTY D | WARRANTY DEED | | | | | $5,000.00 | 0 | 3470-523880 |
Payout Agreement
| No payout information available.. |