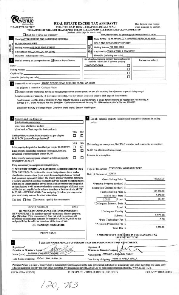
Property
Account |
| Property ID: | 30632 | Abbreviated Legal Description: | WATERTOWN LOT 8 BLK 6 |
| Parcel Number: | 360721730623 | Agent Code: | |
| Type: | Real | | |
| Tax Area: | 1 - OL-140-F | Land Use Code | 11 |
| Open Space: | N | DFL | N |
| Historic Property: | N | Remodel Property: | N |
| Multi-Family Redevelopment: | N | | |
| Township: | 7 | Section: | 21 |
| Range: | 36 |
Location |
| Address: | 1122 OLIVE ST WA 99362 | Mapsco: | |
| Neighborhood: | A-SFR | Map ID: | |
| Neighborhood CD: | 513011 |
Owner |
| Name: | BURMAN MARK JOSEPH | Owner ID: | 59985 |
| Mailing Address: | 7423 SW 70TH RD BUSHNELL, FL 33513 | % Ownership: | 100.0000000000% |
| | | Exemptions: | |
Taxes and Assessment Details
Values
| (+) Improvement Homesite Value: | + | $246,180 | |
| (+) Improvement Non-Homesite Value: | + | $0 | |
| (+) Land Homesite Value: | + | $46,880 | |
| (+) Land Non-Homesite Value: | + | $0 | |
| (+) Curr Use (HS): | + | $0 | $0 |
| (+) Curr Use (NHS): | + | $0 | $0 |
| | | -------------------------- | |
| (=) Market Value: | = | $293,060 | |
| (–) Productivity Loss: | – | $0 | |
| | | -------------------------- | |
| (=) Subtotal: | = | $293,060 | |
| (+) Senior Appraised Value: | + | $0 | |
| (+) Non-Senior Appraised Value: | + | $293,060 | |
| | | -------------------------- | |
| (=) Total Appraised Value: | = | $293,060 | |
| (–) Senior Exemption Loss: | – | $0 | |
| (–) Exemption Loss: | – | $0 | |
| | | -------------------------- | |
| (=) Taxable Value: | = | $293,060 | |
Taxing Jurisdiction
| Owner: | BURMAN MARK JOSEPH | | |
| % Ownership: | 100.0000000000% | | |
| Total Value: | $293,060 | | |
| Tax Area: | 1 - OL-140-F |
| CERFD | CURRENT EXPENSE REFUND 010 | 0.0000000000 | $293,060 | $293,060 | $0.00 | | |
| CURREXP | CURRENT EXPENSE 010 | 1.0175366760 | $293,060 | $293,060 | $298.20 | | |
| HUMNSERV | HUMAN SERVICES 119 | 0.0250000000 | $293,060 | $293,060 | $7.33 | | |
| SLDREL | SOLDIERS RELIEF 121 | 0.0155990005 | $293,060 | $293,060 | $4.57 | | |
| EMERGSER | EMS 147 | 0.3792580840 | $293,060 | $293,060 | $111.15 | | |
| EMSRFD | EMS REFUND 147 | 0.0000000000 | $293,060 | $293,060 | $0.00 | | |
| PORTRFD | PORT REFUND 640 | 0.0000000000 | $293,060 | $293,060 | $0.00 | | |
| PORTWWGEN | PORT OF WW 640 | 0.2460186015 | $293,060 | $293,060 | $72.10 | | |
| SD140BOND | SD #140 BOND 764 | 0.8342371393 | $293,060 | $293,060 | $244.48 | | |
| SD140GEN | SD #140 GENERAL 760 | 2.0646500647 | $293,060 | $293,060 | $605.07 | | |
| ST2 | STATE SCHOOL PART 2 600 | 0.8131451643 | $293,060 | $293,060 | $238.30 | | |
| STATESCHL | STATE SCHOOL 600 | 1.5158548041 | $293,060 | $293,060 | $444.24 | | |
| STREFUND | STATE REFUND LEVY 603 | 0.0000000000 | $293,060 | $293,060 | $0.00 | | |
| CWWBOND | C OF WW BOND 643 | 0.2760494372 | $293,060 | $293,060 | $80.90 | | |
| CWWGEN | CITY OF WW 631 | 1.6100204973 | $293,060 | $293,060 | $471.83 | | |
| CWWRFD | CITY OF WALLA WALLA REFUND 631 | 0.0000000000 | $293,060 | $293,060 | $0.00 | | |
| | Total Tax Rate: | 8.7973694689 | | | | | |
| | | | | Taxes w/Current Exemptions: | $2,578.17 | | |
| | | | | Taxes w/o Exemptions: | $2,578.17 | | |
Improvement / Building
| Improvement #1: | RESIDENTIAL | State Code: | 11 | 1396.0 sqft | Value: | $246,180 |
| Exterior Wall: | PLYWOOD | Heating/Cooling: | HEAT PUMP | | Number of Bathrooms: | 1.5 | Number of Bedrooms: | 3 | | Plumbing: | 8 | Roof Covering: | COMP ROLL |
|
| | Type | Description | Class CD | Sub Class CD | Year Built | Area |
| | MA | Main Area | 1 | 20 | 1978 | 1396.0 |
| | SI1 | SITE IMPROVEMENT | 1 | 20 | 1978 | 1.0 |
| | OSP | Open | 1 | 20 | 1978 | 16.0 |
| | CPC | COVERED CARPORT/PATIO | 1 | 20 | 1978 | 260.0 |
| | WDR | WOOD DECK W/ROOF | 1 | 20 | 1978 | 315.0 |
| | DTG | Detached Garage | 1 | 20 | 1978 | 400.0 |
Sketch
Property Image
Land
| 1 | RES 1 | Converted: Residential | 0.1722 | 7500.00 | 0.00 | 0.00 | 1.00 | $46,880 | $0 |
Roll Value History
| 2025 | N/A | N/A | N/A | N/A | N/A |
| 2024 | $232,630 | $75,000 | $0 | $307,630 | $307,630 |
| 2023 | $246,180 | $46,880 | $0 | $293,060 | $293,060 |
| 2022 | $246,180 | $46,880 | $0 | $293,060 | $293,060 |
| 2021 | $175,840 | $46,880 | $0 | $222,720 | $222,720 |
| 2020 | $130,250 | $46,880 | $0 | $177,130 | $177,130 |
| 2019 | $130,250 | $46,880 | $0 | $177,130 | $177,130 |
| 2018 | $124,050 | $46,880 | $0 | $170,930 | $170,930 |
| 2017 | $117,380 | $30,000 | $0 | $147,380 | $147,380 |
| 2016 | $111,790 | $30,000 | $0 | $141,790 | $141,790 |
| 2015 | $106,470 | $30,000 | $0 | $136,470 | $51,200 |
| 2014 | $101,400 | $30,000 | $0 | $131,400 | $101,200 |
| 2013 | $101,400 | $30,000 | $0 | $131,400 | $131,400 |
| 2012 | $106,500 | $30,000 | $0 | $0 | $0 |
| 2011 | $106,500 | $30,000 | $0 | $0 | $0 |
| 2010 | $121,700 | $30,000 | $0 | $0 | $0 |
| 2009 | $138,600 | $30,000 | $0 | $0 | $0 |
| 2008 | $99,700 | $30,000 | $0 | $0 | $0 |
| 2007 | $99,700 | $30,000 | $0 | $0 | $0 |
| 2006 | $86,200 | $15,000 | $0 | $0 | $0 |
Deed and Sales History
| 1 | 11/07/2016 | SWD | STATUTORY WARRANTY DEED | SCHWIEN-WEIDER CAROL | BURMAN MARK JOSEPH | | | $185,000.00 | 131394 | 2016-09182 |
| 2 | 05/29/2012 | QCD | QUIT CLAIM DEED | RILEY, ERIKA | SCHWIEN-WEIDER, CAROL | | | | 121884 | 2012-04416 |
| 3 | 02/22/2011 | QCD | QUIT CLAIM DEED | SCHWIEN-WEIDER, CAROL | SCHWIEN-WEIDER, CAROL LIFE EST | | | | 119753 | 2011-01674 |
| 4 | 05/30/2001 | WARRANTY D | WARRANTY DEED | | | | | $105,000.00 | 97270 | 3140-105633 |
Payout Agreement
| No payout information available.. |