Property
Account |
| Property ID: | 30595 | Abbreviated Legal Description: | 31-7-38 (G4 SURVEY 2015-08993)LOT 3; LOT 4 |
| Parcel Number: | 380731320005 | Agent Code: | |
| Type: | Real | | |
| Tax Area: | 120 - 140 | Land Use Code | 83 |
| Open Space: | Y | DFL | N |
| Historic Property: | N | Remodel Property: | N |
| Multi-Family Redevelopment: | N | | |
| Township: | 7 | Section: | 31 |
| Range: | 38 |
Location |
| Address: | WA 99362 | Mapsco: | |
| Neighborhood: | 0 Farm | Map ID: | |
| Neighborhood CD: | 5250 |
Owner |
| Name: | COX LIVING TRUST | Owner ID: | 63247 |
| Mailing Address: | 9052 MILL CREEK RD WALLA WALLA, WA 99362 | % Ownership: | 100.0000000000% |
| | | Exemptions: | |
Taxes and Assessment Details
Values
| (+) Improvement Homesite Value: | + | $0 | |
| (+) Improvement Non-Homesite Value: | + | $0 | |
| (+) Land Homesite Value: | + | $0 | |
| (+) Land Non-Homesite Value: | + | $0 | |
| (+) Curr Use (HS): | + | $0 | $0 |
| (+) Curr Use (NHS): | + | $44,730 | $2,150 |
| | | -------------------------- | |
| (=) Market Value: | = | $44,730 | |
| (–) Productivity Loss: | – | $42,580 | |
| | | -------------------------- | |
| (=) Subtotal: | = | $2,150 | |
| (+) Senior Appraised Value: | + | $0 | |
| (+) Non-Senior Appraised Value: | + | $2,150 | |
| | | -------------------------- | |
| (=) Total Appraised Value: | = | $2,150 | |
| (–) Senior Exemption Loss: | – | $0 | |
| (–) Exemption Loss: | – | $0 | |
| | | -------------------------- | |
| (=) Taxable Value: | = | $2,150 | |
Taxing Jurisdiction
| Owner: | COX LIVING TRUST | | |
| % Ownership: | 100.0000000000% | | |
| Total Value: | $44,730 | | |
| Tax Area: | 120 - 140 |
| CERFD | CURRENT EXPENSE REFUND 010 | 0.0000000000 | $2,150 | $2,150 | $0.00 | | |
| CURREXP | CURRENT EXPENSE 010 | 1.0175366760 | $2,150 | $2,150 | $2.19 | | |
| HUMNSERV | HUMAN SERVICES 119 | 0.0250000000 | $2,150 | $2,150 | $0.05 | | |
| SLDREL | SOLDIERS RELIEF 121 | 0.0155990005 | $2,150 | $2,150 | $0.03 | | |
| EMERGSER | EMS 147 | 0.3792580840 | $2,150 | $2,150 | $0.82 | | |
| EMSRFD | EMS REFUND 147 | 0.0000000000 | $2,150 | $2,150 | $0.00 | | |
| RLBRFD | RURAL LIBRARY REFUND 623 | 0.0000000000 | $2,150 | $2,150 | $0.00 | | |
| RURALLIB | RURAL LIBRARY 623 | 0.3710609029 | $2,150 | $2,150 | $0.80 | | |
| PORTRFD | PORT REFUND 640 | 0.0000000000 | $2,150 | $2,150 | $0.00 | | |
| PORTWWGEN | PORT OF WW 640 | 0.2460186015 | $2,150 | $2,150 | $0.53 | | |
| SD140BOND | SD #140 BOND 764 | 0.8342371393 | $2,150 | $2,150 | $1.79 | | |
| SD140GEN | SD #140 GENERAL 760 | 2.0646500647 | $2,150 | $2,150 | $4.44 | | |
| ST2 | STATE SCHOOL PART 2 600 | 0.8131451643 | $2,150 | $2,150 | $1.75 | | |
| STATESCHL | STATE SCHOOL 600 | 1.5158548041 | $2,150 | $2,150 | $3.26 | | |
| STREFUND | STATE REFUND LEVY 603 | 0.0000000000 | $2,150 | $2,150 | $0.00 | | |
| COROAD | COUNTY ROAD 115 | 1.6549953990 | $2,150 | $2,150 | $3.56 | | |
| CRPRD | COUNTY ROAD REFUND 115 | 0.0000000000 | $2,150 | $2,150 | $0.00 | | |
| | Total Tax Rate: | 8.9373558363 | | | | | |
| | | | | Taxes w/Current Exemptions: | $19.22 | | |
| | | | | Taxes w/o Exemptions: | $19.22 | | |
Improvement / Building
Sketch
| No sketches available for this property. |
Property Image
Land
| 1 | 1-MTN | Mountain | 89.4500 | 0.00 | 0.00 | 0.00 | 1.00 | $44,730 | $2,150 |
Roll Value History
| 2025 | N/A | N/A | N/A | N/A | N/A |
| 2024 | $0 | $53,670 | $1,970 | $1,970 | $1,970 |
| 2023 | $0 | $44,730 | $2,150 | $2,150 | $2,150 |
| 2022 | $0 | $44,730 | $1,970 | $1,970 | $1,970 |
| 2021 | $0 | $44,730 | $1,970 | $1,970 | $1,970 |
| 2020 | $0 | $44,730 | $2,060 | $2,060 | $2,060 |
| 2019 | $0 | $44,730 | $2,060 | $2,060 | $2,060 |
| 2018 | $0 | $44,730 | $2,060 | $2,060 | $2,060 |
| 2017 | $0 | $44,730 | $2,150 | $2,150 | $2,150 |
| 2016 | $0 | $44,730 | $2,060 | $2,060 | $2,060 |
| 2015 | $0 | $44,730 | $1,790 | $1,790 | $1,790 |
| 2014 | $0 | $44,730 | $1,880 | $1,880 | $1,880 |
| 2013 | $0 | $44,700 | $1,700 | $1,700 | $1,700 |
| 2012 | $0 | $1,200 | $0 | $0 | $0 |
| 2011 | $0 | $1,100 | $0 | $0 | $0 |
| 2010 | $0 | $900 | $0 | $0 | $0 |
| 2009 | $0 | $900 | $0 | $0 | $0 |
| 2008 | $0 | $900 | $0 | $0 | $0 |
| 2007 | $0 | $900 | $0 | $0 | $0 |
| 2006 | $0 | $900 | $0 | $0 | $0 |
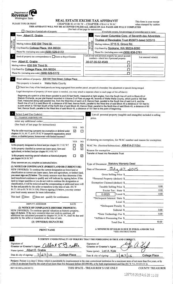
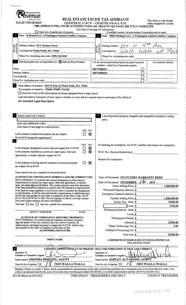
Deed and Sales History
| 1 | 08/06/2018 | WARRANTY D | WARRANTY DEED | COX KENNETH M & SHERYL A | COX LIVING TRUST | | | $0.00 | 135276 | 2018-06425 |
| 2 | 05/16/2018 | WARRANTY D | WARRANTY DEED | COX SHERYL A | COX LIVING TRUST | | | $0.00 | 134845 | 2018-04440 |
| 3 | 11/03/2016 | QCD | QUIT CLAIM DEED | ROCKING K LLC | COX SHERYL A | | 2-PARCELS | $89,990.00 | 131383 | 2016-09135 |
|   | |
| 4 | 10/27/2016 | QCD | QUIT CLAIM DEED | KLICKER RICHARD J CREDIT SHELTER TRUST | ROCKING K LLC | | 4-PARCELS | | 131374 | 2016-09098 |
| 5 | 10/30/2015 | QCD | QUIT CLAIM DEED | COX SHERYL ET AL | KLICKER RICHARD J CREDIT SHELTER TRUST | 4 PARCELS | | | 129136 | 2015-09618 |
| 6 | 10/13/2015 | SURVEY | SURVEY | | | 12 | 216 | | 0 | 2015-08993 |
| 7 | 10/13/2015 | DEED | DEED | | COX SHERYL ET AL | | | | 128994 | 2015-08992 |
| 8 | 01/26/2009 | WARRANTY D | WARRANTY DEED | KLICKER LIVING TRUST | | | | | 116241 | 2009-00663 |
| 9 | 02/21/2006 | WARRANTY D | WARRANTY DEED | "KLICKER, DELBERT W" | | | | | 109689 | 2006-02012 |
Payout Agreement
| No payout information available.. |