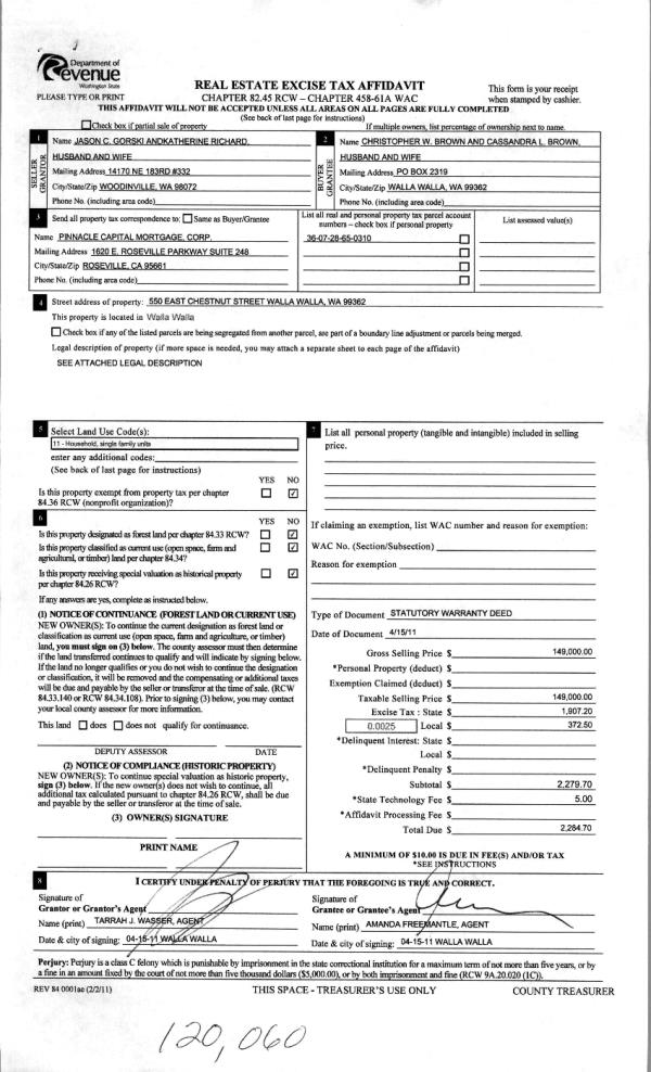
Property
Account |
| Property ID: | 30518 | Abbreviated Legal Description: | STONE CREEK PHASE 4 LOT 3 BLK 1 |
| Parcel Number: | 360732740103 | Agent Code: | |
| Type: | Real | | |
| Tax Area: | 1 - OL-140-F | Land Use Code | 11 |
| Open Space: | N | DFL | N |
| Historic Property: | N | Remodel Property: | N |
| Multi-Family Redevelopment: | N | | |
| Township: | 7 | Section: | 32 |
| Range: | 36 |
Location |
| Address: | 403 MICA PL WA 99362 | Mapsco: | |
| Neighborhood: | G Res | Map ID: | |
| Neighborhood CD: | 614011 |
Owner |
| Name: | VAN DONGE BENJAMIN B & KATHARINE E | Owner ID: | 50752 |
| Mailing Address: | 403 MICA PL WALLA WALLA, WA 99362 | % Ownership: | 100.0000000000% |
| | | Exemptions: | |
Taxes and Assessment Details
Values
| (+) Improvement Homesite Value: | + | $0 | |
| (+) Improvement Non-Homesite Value: | + | $425,680 | |
| (+) Land Homesite Value: | + | $0 | |
| (+) Land Non-Homesite Value: | + | $102,160 | |
| (+) Curr Use (HS): | + | $0 | $0 |
| (+) Curr Use (NHS): | + | $0 | $0 |
| | | -------------------------- | |
| (=) Market Value: | = | $527,840 | |
| (–) Productivity Loss: | – | $0 | |
| | | -------------------------- | |
| (=) Subtotal: | = | $527,840 | |
| (+) Senior Appraised Value: | + | $0 | |
| (+) Non-Senior Appraised Value: | + | $527,840 | |
| | | -------------------------- | |
| (=) Total Appraised Value: | = | $527,840 | |
| (–) Senior Exemption Loss: | – | $0 | |
| (–) Exemption Loss: | – | $0 | |
| | | -------------------------- | |
| (=) Taxable Value: | = | $527,840 | |
Taxing Jurisdiction
| Owner: | VAN DONGE BENJAMIN B & KATHARINE E | | |
| % Ownership: | 100.0000000000% | | |
| Total Value: | $527,840 | | |
| Tax Area: | 1 - OL-140-F |
| CERFD | CURRENT EXPENSE REFUND 010 | 0.0000000000 | $527,840 | $527,840 | $0.00 | | |
| CURREXP | CURRENT EXPENSE 010 | 1.0175366760 | $527,840 | $527,840 | $537.10 | | |
| HUMNSERV | HUMAN SERVICES 119 | 0.0250000000 | $527,840 | $527,840 | $13.20 | | |
| SLDREL | SOLDIERS RELIEF 121 | 0.0155990005 | $527,840 | $527,840 | $8.23 | | |
| EMERGSER | EMS 147 | 0.3792580840 | $527,840 | $527,840 | $200.19 | | |
| EMSRFD | EMS REFUND 147 | 0.0000000000 | $527,840 | $527,840 | $0.00 | | |
| PORTRFD | PORT REFUND 640 | 0.0000000000 | $527,840 | $527,840 | $0.00 | | |
| PORTWWGEN | PORT OF WW 640 | 0.2460186015 | $527,840 | $527,840 | $129.86 | | |
| SD140BOND | SD #140 BOND 764 | 0.8342371393 | $527,840 | $527,840 | $440.34 | | |
| SD140GEN | SD #140 GENERAL 760 | 2.0646500647 | $527,840 | $527,840 | $1,089.80 | | |
| ST2 | STATE SCHOOL PART 2 600 | 0.8131451643 | $527,840 | $527,840 | $429.21 | | |
| STATESCHL | STATE SCHOOL 600 | 1.5158548041 | $527,840 | $527,840 | $800.13 | | |
| STREFUND | STATE REFUND LEVY 603 | 0.0000000000 | $527,840 | $527,840 | $0.00 | | |
| CWWBOND | C OF WW BOND 643 | 0.2760494372 | $527,840 | $527,840 | $145.71 | | |
| CWWGEN | CITY OF WW 631 | 1.6100204973 | $527,840 | $527,840 | $849.83 | | |
| CWWRFD | CITY OF WALLA WALLA REFUND 631 | 0.0000000000 | $527,840 | $527,840 | $0.00 | | |
| | Total Tax Rate: | 8.7973694689 | | | | | |
| | | | | Taxes w/Current Exemptions: | $4,643.60 | | |
| | | | | Taxes w/o Exemptions: | $4,643.60 | | |
Improvement / Building
| Improvement #1: | RESIDENTIAL | State Code: | 11 | 2272.0 sqft | Value: | $425,680 |
| Exterior Wall: | SIDING | Heating/Cooling: | WARM & COOLED AIR | | Number of Bathrooms: | 2 | Number of Bedrooms: | 4 | | Plumbing: | 10 | Roof Covering: | COMP SHINGLE |
|
| | Type | Description | Class CD | Sub Class CD | Year Built | Area |
| | MA | Main Area | 1 | 35 | 1999 | 2272.0 |
| | SI1 | SITE IMPROVEMENT | 1 | 35 | 1999 | 3.0 |
| | ATG | Attached Garage | 1 | 35 | 1999 | 460.0 |
| | RPO | OPEN PORCH W/ROOF | 1 | 35 | 1999 | 10.0 |
| | CPC | COVERED CARPORT/PATIO | 1 | 35 | 1999 | 80.0 |
| | TOOL | TOOL SHED | 1 | 35 | 1999 | 1680.0 |
| | OSP | Open | 1 | 35 | 1999 | 365.0 |
Sketch
Property Image
Land
| 1 | RES 1 | Converted: Residential | 0.2345 | 10216.00 | 0.00 | 0.00 | 1.00 | $102,160 | $0 |
Roll Value History
| 2025 | N/A | N/A | N/A | N/A | N/A |
| 2024 | $425,680 | $102,160 | $0 | $527,840 | $527,840 |
| 2023 | $425,680 | $102,160 | $0 | $527,840 | $527,840 |
| 2022 | $386,980 | $72,600 | $0 | $459,580 | $459,580 |
| 2021 | $336,510 | $72,600 | $0 | $409,110 | $409,110 |
| 2020 | $217,100 | $72,600 | $0 | $289,700 | $289,700 |
| 2019 | $217,100 | $72,600 | $0 | $289,700 | $289,700 |
| 2018 | $224,490 | $47,300 | $0 | $271,790 | $271,790 |
| 2017 | $213,800 | $47,300 | $0 | $261,100 | $261,100 |
| 2016 | $213,800 | $47,300 | $0 | $261,100 | $261,100 |
| 2015 | $213,800 | $47,300 | $0 | $261,100 | $261,100 |
| 2014 | $213,800 | $47,300 | $0 | $261,100 | $261,100 |
| 2013 | $213,800 | $47,300 | $0 | $261,100 | $261,100 |
| 2012 | $221,800 | $47,300 | $0 | $0 | $0 |
| 2011 | $186,700 | $47,300 | $0 | $0 | $0 |
| 2010 | $186,700 | $47,300 | $0 | $0 | $0 |
| 2009 | $210,000 | $50,000 | $0 | $0 | $0 |
| 2008 | $210,000 | $50,000 | $0 | $0 | $0 |
| 2007 | $161,200 | $30,000 | $0 | $0 | $0 |
| 2006 | $161,200 | $30,000 | $0 | $0 | $0 |
Deed and Sales History
| 1 | 12/31/2013 | WARRANTY D | WARRANTY DEED | BRADLEY ELAINE G | VAN DONGE BENJAMIN B & KATHARINE E | | | $244,000.00 | 125214 | 2013-12397 |
| 2 | 01/25/2012 | QCD | QUIT CLAIM DEED | CARLSON, CLIFFORD B | CARLSON, ELAINE G | | | | 121324 | 2012-00692 |
| 3 | 01/20/2012 | WARRANTY D | WARRANTY DEED | CARLSON, CLIFFORD B | BRADLEY, ELAINE G | | | | 0 | CC #11-3-00026-0 |
| 4 | 01/18/2011 | WARRANTY D | WARRANTY DEED | BEKO, JILLICE S & TONY S | CARLSON, CLIFF & ELAINE G | | | $274,000.00 | 119607 | 2011-00458 |
| 5 | 06/29/2001 | WARRANTY D | WARRANTY DEED | | | | | $195,000.00 | 97496 | 3150-106882 |
Payout Agreement
| No payout information available.. |