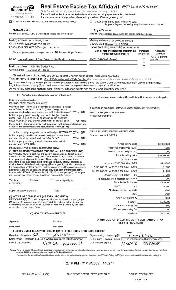
Property
Account |
| Property ID: | 30499 | Abbreviated Legal Description: | 18-6-36 TRACT 4 OF S/P (NELY PTN TAX 3) LESS RD |
| Parcel Number: | 360618210011 | Agent Code: | |
| Type: | Real | | |
| Tax Area: | 101 - 140-4 | Land Use Code | 83 |
| Open Space: | Y | DFL | N |
| Historic Property: | N | Remodel Property: | N |
| Multi-Family Redevelopment: | N | | |
| Township: | 6 | Section: | 18 |
| Range: | 36 |
Location |
| Address: | 2104 STATELINE RD WALLA WALLA, WA 99362 | Mapsco: | |
| Neighborhood: | 0 Farm | Map ID: | |
| Neighborhood CD: | 4240 |
Owner |
| Name: | KREINDEL DAVID C | Owner ID: | 66938 |
| Mailing Address: | SHANE A ERICKSON 2104 STATELINE RD WALLA WALLA, WA 99392 | % Ownership: | 100.0000000000% |
| | | Exemptions: | |
Taxes and Assessment Details
Values
| (+) Improvement Homesite Value: | + | $0 | |
| (+) Improvement Non-Homesite Value: | + | $320,890 | |
| (+) Land Homesite Value: | + | $0 | |
| (+) Land Non-Homesite Value: | + | $200,000 | |
| (+) Curr Use (HS): | + | $0 | $0 |
| (+) Curr Use (NHS): | + | $84,080 | $13,240 |
| | | -------------------------- | |
| (=) Market Value: | = | $604,970 | |
| (–) Productivity Loss: | – | $70,840 | |
| | | -------------------------- | |
| (=) Subtotal: | = | $534,130 | |
| (+) Senior Appraised Value: | + | $0 | |
| (+) Non-Senior Appraised Value: | + | $534,130 | |
| | | -------------------------- | |
| (=) Total Appraised Value: | = | $534,130 | |
| (–) Senior Exemption Loss: | – | $0 | |
| (–) Exemption Loss: | – | $0 | |
| | | -------------------------- | |
| (=) Taxable Value: | = | $534,130 | |
Taxing Jurisdiction
| Owner: | KREINDEL DAVID C | | |
| % Ownership: | 100.0000000000% | | |
| Total Value: | $604,970 | | |
| Tax Area: | 101 - 140-4 |
| CERFD | CURRENT EXPENSE REFUND 010 | 0.0000000000 | $534,130 | $534,130 | $0.00 | | |
| CURREXP | CURRENT EXPENSE 010 | 1.0175366760 | $534,130 | $534,130 | $543.50 | | |
| HUMNSERV | HUMAN SERVICES 119 | 0.0250000000 | $534,130 | $534,130 | $13.35 | | |
| SLDREL | SOLDIERS RELIEF 121 | 0.0155990005 | $534,130 | $534,130 | $8.33 | | |
| EMERGSER | EMS 147 | 0.3792580840 | $534,130 | $534,130 | $202.57 | | |
| EMSRFD | EMS REFUND 147 | 0.0000000000 | $534,130 | $534,130 | $0.00 | | |
| FD4EXP | FD #4 EXPENSE 686 | 0.8836993059 | $534,130 | $534,130 | $472.01 | | |
| RLBRFD | RURAL LIBRARY REFUND 623 | 0.0000000000 | $534,130 | $534,130 | $0.00 | | |
| RURALLIB | RURAL LIBRARY 623 | 0.3710609029 | $534,130 | $534,130 | $198.19 | | |
| PORTRFD | PORT REFUND 640 | 0.0000000000 | $534,130 | $534,130 | $0.00 | | |
| PORTWWGEN | PORT OF WW 640 | 0.2460186015 | $534,130 | $534,130 | $131.41 | | |
| SD140BOND | SD #140 BOND 764 | 0.8342371393 | $534,130 | $534,130 | $445.59 | | |
| SD140GEN | SD #140 GENERAL 760 | 2.0646500647 | $534,130 | $534,130 | $1,102.79 | | |
| ST2 | STATE SCHOOL PART 2 600 | 0.8131451643 | $534,130 | $534,130 | $434.33 | | |
| STATESCHL | STATE SCHOOL 600 | 1.5158548041 | $534,130 | $534,130 | $809.66 | | |
| STREFUND | STATE REFUND LEVY 603 | 0.0000000000 | $534,130 | $534,130 | $0.00 | | |
| COROAD | COUNTY ROAD 115 | 1.6549953990 | $534,130 | $534,130 | $883.98 | | |
| CRPRD | COUNTY ROAD REFUND 115 | 0.0000000000 | $534,130 | $534,130 | $0.00 | | |
| | Total Tax Rate: | 9.8210551422 | | | | | |
| | | | | Taxes w/Current Exemptions: | $5,245.71 | | |
| | | | | Taxes w/o Exemptions: | $5,245.71 | | |
Improvement / Building
| Improvement #1: | PERM CROP | State Code: | 83 | 0.0 sqft | Value: | $74,400 |
| Improvement #2: | RESIDENTIAL | State Code: | 83 | 1725.0 sqft | Value: | $246,490 |
| Exterior Wall: | SIDING | Heating/Cooling: | MINI-SPLIT HP SYSTEM | | Number of Bathrooms: | 2.5 | Number of Bedrooms: | 2 | | Plumbing: | 16 | Roof Covering: | METAL ROOFING |
|
| | Type | Description | Class CD | Sub Class CD | Year Built | Area |
| | MA | Main Area | 4 | 45 | 2023 | 1725.0 |
| | UPFL | Upper Floor (included in main area) | 4 | 45 | 2023 | 560.0 |
| | SI1 | SITE IMPROVEMENT | 4 | 45 | 2023 | 4.0 |
| | RPC | OPEN PORCH W/ROOF , CEILED | 4 | 45 | 2023 | 270.0 |
| | BRW | BREEZEWAY | 4 | 45 | 2023 | 252.0 |
| | DTG | Detached Garage | 4 | 45 | 2023 | 1440.0 |
| | FBAT | FULL BATH | 4 | 45 | 2023 | 1.0 |
Sketch
| No sketches available for this property. |
Property Image
Land
| 1 | HS-200,000 | Hs 200,000 | 1.0000 | 43560.00 | 0.00 | 0.00 | 1.00 | $200,000 | $0 |
| 2 | 8000-C1-I | Class 1 irrigated | 10.5100 | 457815.60 | 0.00 | 0.00 | 1.00 | $84,080 | $13,240 |
Roll Value History
| 2025 | N/A | N/A | N/A | N/A | N/A |
| 2024 | $374,690 | $284,080 | $13,310 | $588,000 | $588,000 |
| 2023 | $320,890 | $284,080 | $13,240 | $534,130 | $534,130 |
| 2022 | $74,400 | $169,080 | $13,020 | $172,420 | $172,420 |
| 2021 | $74,400 | $169,080 | $13,020 | $172,420 | $172,420 |
| 2020 | $74,400 | $169,080 | $13,300 | $172,700 | $172,700 |
| 2019 | $74,400 | $169,080 | $13,710 | $173,110 | $173,110 |
| 2018 | $69,750 | $169,080 | $13,970 | $168,720 | $168,720 |
| 2017 | $69,750 | $169,080 | $14,410 | $169,160 | $169,160 |
| 2016 | $71,250 | $92,080 | $15,840 | $87,090 | $87,090 |
| 2015 | $71,300 | $92,080 | $14,420 | $85,720 | $85,720 |
| 2014 | $71,300 | $92,080 | $14,420 | $85,720 | $85,720 |
| 2013 | $71,300 | $92,100 | $12,400 | $83,700 | $83,700 |
| 2012 | $0 | $9,900 | $0 | $0 | $0 |
| 2011 | $0 | $9,500 | $0 | $0 | $0 |
| 2010 | $0 | $9,700 | $0 | $0 | $0 |
| 2009 | $0 | $9,600 | $0 | $0 | $0 |
| 2008 | $0 | $11,600 | $0 | $0 | $0 |
| 2007 | $0 | $12,700 | $0 | $0 | $0 |
| 2006 | $0 | $12,700 | $0 | $0 | $0 |
Deed and Sales History
| 1 | 03/27/2020 | SWD | STATUTORY WARRANTY DEED | MILLBANK KEVIN | KREINDEL DAVID C | | | $384,097.00 | 138859 | 2020-02719 |
| 2 | 01/08/2019 | SWD | STATUTORY WARRANTY DEED | REMASH HUGH & CYNTHIA | MILLBANK KEVIN | | | $365,000.00 | 136221 | 2019-00158 |
| 3 | 09/04/2014 | SWD | STATUTORY WARRANTY DEED | BASEL GREGORY D & BECKY S | REMASH HUGH & CYNTHIA | | | $349,000.00 | 126578 | 2014-06503 |
| 4 | 01/29/1998 | WARRANTY D | WARRANTY DEED | | | | | $11,510.00 | 89794 | 2629-800925 |
Payout Agreement
| No payout information available.. |