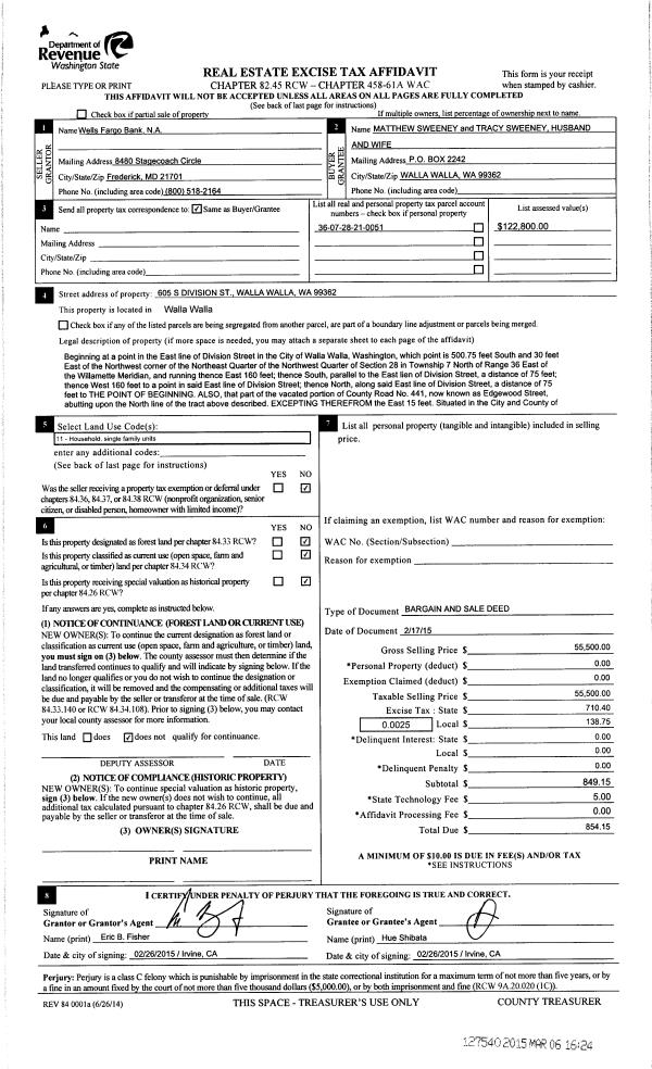
Property
Account |
| Property ID: | 30154 | Abbreviated Legal Description: | MAJERUS ADDN PHASE 1 LT 9 |
| Parcel Number: | 350725640009 | Agent Code: | |
| Type: | Real | | |
| Tax Area: | 75 - CP 250 | Land Use Code | 11 |
| Open Space: | N | DFL | N |
| Historic Property: | N | Remodel Property: | N |
| Multi-Family Redevelopment: | N | | |
| Township: | 7 | Section: | 25 |
| Range: | 35 |
Location |
| Address: | 358 NE FERNWOOD PL WA 99324 | Mapsco: | |
| Neighborhood: | A SFR | Map ID: | |
| Neighborhood CD: | 113011 |
Owner |
| Name: | SIERRA NADIA | Owner ID: | 65001 |
| Mailing Address: | CARLOS ARIAS VASQUEZ JR 358 NE FERNWOOD PL COLLEGE PLACE, WA 99324 | % Ownership: | 100.0000000000% |
| | | Exemptions: | |
Taxes and Assessment Details
Values
| (+) Improvement Homesite Value: | + | $0 | |
| (+) Improvement Non-Homesite Value: | + | $280,270 | |
| (+) Land Homesite Value: | + | $0 | |
| (+) Land Non-Homesite Value: | + | $70,000 | |
| (+) Curr Use (HS): | + | $0 | $0 |
| (+) Curr Use (NHS): | + | $0 | $0 |
| | | -------------------------- | |
| (=) Market Value: | = | $350,270 | |
| (–) Productivity Loss: | – | $0 | |
| | | -------------------------- | |
| (=) Subtotal: | = | $350,270 | |
| (+) Senior Appraised Value: | + | $0 | |
| (+) Non-Senior Appraised Value: | + | $350,270 | |
| | | -------------------------- | |
| (=) Total Appraised Value: | = | $350,270 | |
| (–) Senior Exemption Loss: | – | $0 | |
| (–) Exemption Loss: | – | $0 | |
| | | -------------------------- | |
| (=) Taxable Value: | = | $350,270 | |
Taxing Jurisdiction
| Owner: | SIERRA NADIA | | |
| % Ownership: | 100.0000000000% | | |
| Total Value: | $350,270 | | |
| Tax Area: | 75 - CP 250 |
| CERFD | CURRENT EXPENSE REFUND 010 | 0.0000000000 | $350,270 | $350,270 | $0.00 | | |
| CURREXP | CURRENT EXPENSE 010 | 1.0175366760 | $350,270 | $350,270 | $356.41 | | |
| HUMNSERV | HUMAN SERVICES 119 | 0.0250000000 | $350,270 | $350,270 | $8.76 | | |
| SLDREL | SOLDIERS RELIEF 121 | 0.0155990005 | $350,270 | $350,270 | $5.46 | | |
| COLLPLBOND | C OF CP BOND 644 | 0.4374241808 | $350,270 | $350,270 | $153.22 | | |
| COLLPLGEN | CITY OF CP 632 | 1.4453819216 | $350,270 | $350,270 | $506.27 | | |
| EMERGSER | EMS 147 | 0.3792580840 | $350,270 | $350,270 | $132.84 | | |
| EMSRFD | EMS REFUND 147 | 0.0000000000 | $350,270 | $350,270 | $0.00 | | |
| RURALLIB | RURAL LIBRARY 623 | 0.3710609029 | $350,270 | $350,270 | $129.97 | | |
| PORTRFD | PORT REFUND 640 | 0.0000000000 | $350,270 | $350,270 | $0.00 | | |
| PORTWWGEN | PORT OF WW 640 | 0.2460186015 | $350,270 | $350,270 | $86.17 | | |
| SD250BOND | SD #250 BOND 773 | 1.4560608159 | $350,270 | $350,270 | $510.01 | | |
| SD250GEN | SD #250 GENERAL 770 | 2.3880724087 | $350,270 | $350,270 | $836.47 | | |
| ST2 | STATE SCHOOL PART 2 600 | 0.8131451643 | $350,270 | $350,270 | $284.82 | | |
| STATESCHL | STATE SCHOOL 600 | 1.5158548041 | $350,270 | $350,270 | $530.96 | | |
| STREFUND | STATE REFUND LEVY 603 | 0.0000000000 | $350,270 | $350,270 | $0.00 | | |
| | Total Tax Rate: | 10.1104125603 | | | | | |
| | | | | Taxes w/Current Exemptions: | $3,541.36 | | |
| | | | | Taxes w/o Exemptions: | $3,541.36 | | |
Improvement / Building
| Improvement #1: | RESIDENTIAL | State Code: | 11 | 1423.0 sqft | Value: | $280,270 |
| Exterior Wall: | PLYWOOD | Heating/Cooling: | WARM & COOLED AIR | | Number of Bathrooms: | 2 | Number of Bedrooms: | 3 | | Plumbing: | 9 | Roof Covering: | COMP SHINGLE |
|
| | Type | Description | Class CD | Sub Class CD | Year Built | Area |
| | MA | Main Area | 1 | 30 | 1996 | 1423.0 |
| | SI1 | SITE IMPROVEMENT | 1 | 30 | 1996 | 2.0 |
| | ATG | Attached Garage | 1 | 30 | 1996 | 462.0 |
| | RPO | OPEN PORCH W/ROOF | 1 | 30 | 1996 | 45.0 |
| | TOOL | TOOL SHED | 1 | 30 | 1996 | 100.0 |
| | CPC | COVERED CARPORT/PATIO | 1 | 30 | 1996 | 198.0 |
Sketch
Property Image
Land
| 1 | RES 1 | Converted: Residential | 0.1702 | 7413.00 | 0.00 | 0.00 | 1.00 | $70,000 | $0 |
Roll Value History
| 2025 | N/A | N/A | N/A | N/A | N/A |
| 2024 | $280,270 | $70,000 | $0 | $350,270 | $350,270 |
| 2023 | $280,270 | $70,000 | $0 | $350,270 | $350,270 |
| 2022 | $243,720 | $70,000 | $0 | $313,720 | $313,720 |
| 2021 | $211,930 | $70,000 | $0 | $281,930 | $281,930 |
| 2020 | $163,020 | $70,000 | $0 | $233,020 | $233,020 |
| 2019 | $178,020 | $55,000 | $0 | $233,020 | $233,020 |
| 2018 | $154,800 | $55,000 | $0 | $209,800 | $209,800 |
| 2017 | $134,610 | $55,000 | $0 | $189,610 | $189,610 |
| 2016 | $122,370 | $55,000 | $0 | $177,370 | $177,370 |
| 2015 | $111,250 | $55,000 | $0 | $166,250 | $166,250 |
| 2014 | $117,100 | $55,000 | $0 | $172,100 | $172,100 |
| 2013 | $117,100 | $55,000 | $0 | $172,100 | $172,100 |
| 2012 | $117,100 | $55,000 | $0 | $0 | $0 |
| 2011 | $105,800 | $55,000 | $0 | $0 | $0 |
| 2010 | $98,100 | $55,000 | $0 | $0 | $0 |
| 2009 | $134,000 | $55,000 | $0 | $0 | $0 |
| 2008 | $101,700 | $30,000 | $0 | $0 | $0 |
| 2007 | $101,700 | $30,000 | $0 | $0 | $0 |
| 2006 | $101,700 | $30,000 | $0 | $0 | $0 |
Deed and Sales History
| 1 | 04/26/2019 | SWD | STATUTORY WARRANTY DEED | DAVY MATTHEW | SIERRA NADIA | | | $240,000.00 | 136762 | 2019-02671 |
| 2 | 03/27/2015 | SWD | STATUTORY WARRANTY DEED | DAVY MATTHEW | | | | | 127860 | 2015-03505 |
| 3 | 03/23/2015 | SWD | STATUTORY WARRANTY DEED | RATCLIFF BOB L & SUSAN G | DAVY MATTHEW | | | | 127859 | 2015-03504 |
| 4 | 03/27/2015 | QCD | QUIT CLAIM DEED | DAVY JENNIFER | DAVY MATTHEW | | | | 127687 | 2015-02551 |
| 5 | 03/27/2015 | SWD | STATUTORY WARRANTY DEED | RATCLIFF BOB L & SUSAN G | DAVY MATTHEW | | | $185,000.00 | 127686 | 2015-02550 |
| 6 | 10/14/2010 | WARRANTY D | WARRANTY DEED | HARE, GORDON B | RATCLIFF, BOB L & SUSAN G | | | $186,000.00 | 119180 | 2010-08258 |
| 7 | 05/09/2003 | WARRANTY D | WARRANTY DEED | HAMBLEN, ROY W & MARY L | HARE, GORDON B | | | $132,500.00 | 102037 | 2003-06755 |
| 8 | 11/04/1996 | WARRANTY D | WARRANTY DEED | | | | | $109,900.00 | 87168 | 2469-611087 |
Payout Agreement
| No payout information available.. |