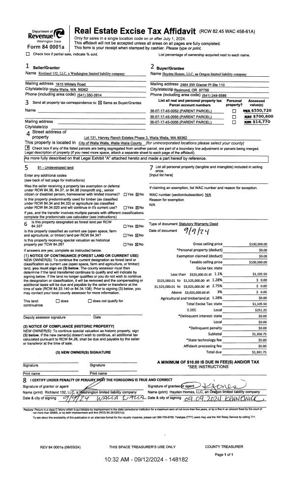
Property
Account |
| Property ID: | 30151 | Abbreviated Legal Description: | FAIRVIEW LOTS 9 AND 10 BLK 1 AND VAC ST ON W LESS TAX 3 |
| Parcel Number: | 360729630107 | Agent Code: | |
| Type: | Real | | |
| Tax Area: | 1 - OL-140-F | Land Use Code | 11 |
| Open Space: | N | DFL | N |
| Historic Property: | N | Remodel Property: | N |
| Multi-Family Redevelopment: | N | | |
| Township: | 7 | Section: | 29 |
| Range: | 36 |
Location |
| Address: | 1402 HOWARD ST WA 99362 | Mapsco: | |
| Neighborhood: | G Res Land Contig | Map ID: | |
| Neighborhood CD: | 614097 |
Owner |
| Name: | BISHOP SARAH JANE & JOSHUA TODD | Owner ID: | 68652 |
| Mailing Address: | 3029 N LANCASTER PL BOISE, ID 83702 | % Ownership: | 100.0000000000% |
| | | Exemptions: | |
Taxes and Assessment Details
Values
| (+) Improvement Homesite Value: | + | $0 | |
| (+) Improvement Non-Homesite Value: | + | $0 | |
| (+) Land Homesite Value: | + | $0 | |
| (+) Land Non-Homesite Value: | + | $7,790 | |
| (+) Curr Use (HS): | + | $0 | $0 |
| (+) Curr Use (NHS): | + | $0 | $0 |
| | | -------------------------- | |
| (=) Market Value: | = | $7,790 | |
| (–) Productivity Loss: | – | $0 | |
| | | -------------------------- | |
| (=) Subtotal: | = | $7,790 | |
| (+) Senior Appraised Value: | + | $0 | |
| (+) Non-Senior Appraised Value: | + | $7,790 | |
| | | -------------------------- | |
| (=) Total Appraised Value: | = | $7,790 | |
| (–) Senior Exemption Loss: | – | $0 | |
| (–) Exemption Loss: | – | $0 | |
| | | -------------------------- | |
| (=) Taxable Value: | = | $7,790 | |
Taxing Jurisdiction
| Owner: | BISHOP SARAH JANE & JOSHUA TODD | | |
| % Ownership: | 100.0000000000% | | |
| Total Value: | $7,790 | | |
| Tax Area: | 1 - OL-140-F |
| CERFD | CURRENT EXPENSE REFUND 010 | 0.0000000000 | $7,790 | $7,790 | $0.00 | | |
| CURREXP | CURRENT EXPENSE 010 | 1.0175366760 | $7,790 | $7,790 | $7.93 | | |
| HUMNSERV | HUMAN SERVICES 119 | 0.0250000000 | $7,790 | $7,790 | $0.19 | | |
| SLDREL | SOLDIERS RELIEF 121 | 0.0155990005 | $7,790 | $7,790 | $0.12 | | |
| EMERGSER | EMS 147 | 0.3792580840 | $7,790 | $7,790 | $2.95 | | |
| EMSRFD | EMS REFUND 147 | 0.0000000000 | $7,790 | $7,790 | $0.00 | | |
| PORTRFD | PORT REFUND 640 | 0.0000000000 | $7,790 | $7,790 | $0.00 | | |
| PORTWWGEN | PORT OF WW 640 | 0.2460186015 | $7,790 | $7,790 | $1.92 | | |
| SD140BOND | SD #140 BOND 764 | 0.8342371393 | $7,790 | $7,790 | $6.50 | | |
| SD140GEN | SD #140 GENERAL 760 | 2.0646500647 | $7,790 | $7,790 | $16.08 | | |
| ST2 | STATE SCHOOL PART 2 600 | 0.8131451643 | $7,790 | $7,790 | $6.33 | | |
| STATESCHL | STATE SCHOOL 600 | 1.5158548041 | $7,790 | $7,790 | $11.81 | | |
| STREFUND | STATE REFUND LEVY 603 | 0.0000000000 | $7,790 | $7,790 | $0.00 | | |
| CWWBOND | C OF WW BOND 643 | 0.2760494372 | $7,790 | $7,790 | $2.15 | | |
| CWWGEN | CITY OF WW 631 | 1.6100204973 | $7,790 | $7,790 | $12.54 | | |
| CWWRFD | CITY OF WALLA WALLA REFUND 631 | 0.0000000000 | $7,790 | $7,790 | $0.00 | | |
| | Total Tax Rate: | 8.7973694689 | | | | | |
| | | | | Taxes w/Current Exemptions: | $68.52 | | |
| | | | | Taxes w/o Exemptions: | $68.52 | | |
Improvement / Building
Sketch
| No sketches available for this property. |
Property Image
Land
| 1 | RES 1 | Converted: Residential | 0.1917 | 8350.00 | 0.00 | 0.00 | 1.00 | $7,790 | $0 |
Roll Value History
| 2025 | N/A | N/A | N/A | N/A | N/A |
| 2024 | $0 | $7,790 | $0 | $7,790 | $7,790 |
| 2023 | $0 | $7,790 | $0 | $7,790 | $7,790 |
| 2022 | $0 | $5,650 | $0 | $5,650 | $5,650 |
| 2021 | $0 | $5,650 | $0 | $5,650 | $5,650 |
| 2020 | $0 | $5,650 | $0 | $5,650 | $5,650 |
| 2019 | $0 | $5,650 | $0 | $5,650 | $5,650 |
| 2018 | $0 | $7,100 | $0 | $7,100 | $7,100 |
| 2017 | $0 | $7,100 | $0 | $7,100 | $7,100 |
| 2016 | $0 | $7,100 | $0 | $7,100 | $7,100 |
| 2015 | $0 | $7,100 | $0 | $7,100 | $7,100 |
| 2014 | $0 | $7,100 | $0 | $7,100 | $7,100 |
| 2013 | $0 | $7,100 | $0 | $7,100 | $7,100 |
| 2012 | $0 | $7,100 | $0 | $0 | $0 |
| 2011 | $0 | $7,100 | $0 | $0 | $0 |
| 2010 | $0 | $7,100 | $0 | $0 | $0 |
| 2009 | $0 | $7,100 | $0 | $0 | $0 |
| 2008 | $0 | $7,100 | $0 | $0 | $0 |
| 2007 | $0 | $2,500 | $0 | $0 | $0 |
| 2006 | $0 | $2,500 | $0 | $0 | $0 |
Deed and Sales History
| 1 | 07/17/2025 | QCD | QUIT CLAIM DEED | BISHOP SARAH JANE & JOSHUA TODD | BISHOP HOUSE LLC | | | | 149694 | 2025-04099 |
| 2 | 01/12/2021 | QCD | QUIT CLAIM DEED | BISHOP HOUSE LLC | BISHOP SARAH JANE & JOSHUA TODD | | | $0.00 | 140731 | 2021-00565 |
| 3 | 12/27/2016 | QCD | QUIT CLAIM DEED | BISHOP JOSHUA T & SARAH | BISHOP HOUSE LLC | | 2 PARCELS | $0.00 | 131663 | 2016-10657 |
| 4 | 07/01/2016 | SWD | STATUTORY WARRANTY DEED | MEYER MOLLY V | BISHOP JOSHUA T & SARAH | | 2-PARCELS | $380,000.00 | 130550 | 2016-05114 |
|   | |
| 5 | 06/17/2011 | WARRANTY D | WARRANTY DEED | "HEIN, JOHN W" | | | | | 120279 | 2011-04732 |
| 6 | 10/19/2010 | QCD | QUIT CLAIM DEED | HEIN, JOHN | MEYER MOLLY V | | | | 119207 | 2010-08435 |
| 7 | 04/09/2010 | WARRANTY D | WARRANTY DEED | HEIN, JOHN W | HEIN, JOHN | | | | 0 | CC #09-3-00325-9 |
| 8 | 11/03/2008 | WARRANTY D | WARRANTY DEED | DYER, DAVID A & LORIANN R | HEIN JOHN | | | $475,000.00 | 115908 | 2008-11046 |
|   | |
| 9 | 08/09/2004 | WARRANTY D | WARRANTY DEED | SLOSTED FAMILY TRUST | DYER DAVID A & LORIANN R | | | $295,000.00 | 105451 | 2004-09081 |
|   | |
| 10 | 11/21/1990 | WARRANTY D | WARRANTY DEED | | | | | | 0 | 1869-008186 |
Payout Agreement
| No payout information available.. |