Property
Account |
| Property ID: | 29872 | Abbreviated Legal Description: | MEADOW VIEW LOT 9 BLK 3 LESS TAX 1 |
| Parcel Number: | 360732550309 | Agent Code: | |
| Type: | Real | | |
| Tax Area: | 1 - OL-140-F | Land Use Code | 11 |
| Open Space: | N | DFL | N |
| Historic Property: | N | Remodel Property: | N |
| Multi-Family Redevelopment: | N | | |
| Township: | 7 | Section: | 32 |
| Range: | 36 |
Location |
| Address: | 2008 LEONARD DR WA 99362 | Mapsco: | |
| Neighborhood: | A Res | Map ID: | |
| Neighborhood CD: | 613011 |
Owner |
| Name: | RUTH MICHAEL | Owner ID: | 62316 |
| Mailing Address: | 2008 LEONARD DR WALLA WALLA, WA 99362 | % Ownership: | 100.0000000000% |
| | | Exemptions: | |
Taxes and Assessment Details
Values
| (+) Improvement Homesite Value: | + | $277,370 | |
| (+) Improvement Non-Homesite Value: | + | $0 | |
| (+) Land Homesite Value: | + | $81,000 | |
| (+) Land Non-Homesite Value: | + | $0 | |
| (+) Curr Use (HS): | + | $0 | $0 |
| (+) Curr Use (NHS): | + | $0 | $0 |
| | | -------------------------- | |
| (=) Market Value: | = | $358,370 | |
| (–) Productivity Loss: | – | $0 | |
| | | -------------------------- | |
| (=) Subtotal: | = | $358,370 | |
| (+) Senior Appraised Value: | + | $0 | |
| (+) Non-Senior Appraised Value: | + | $358,370 | |
| | | -------------------------- | |
| (=) Total Appraised Value: | = | $358,370 | |
| (–) Senior Exemption Loss: | – | $0 | |
| (–) Exemption Loss: | – | $0 | |
| | | -------------------------- | |
| (=) Taxable Value: | = | $358,370 | |
Taxing Jurisdiction
| Owner: | RUTH MICHAEL | | |
| % Ownership: | 100.0000000000% | | |
| Total Value: | $358,370 | | |
| Tax Area: | 1 - OL-140-F |
| CERFD | CURRENT EXPENSE REFUND 010 | 0.0000000000 | $358,370 | $358,370 | $0.00 | | |
| CURREXP | CURRENT EXPENSE 010 | 1.0175366760 | $358,370 | $358,370 | $364.65 | | |
| HUMNSERV | HUMAN SERVICES 119 | 0.0250000000 | $358,370 | $358,370 | $8.96 | | |
| SLDREL | SOLDIERS RELIEF 121 | 0.0155990005 | $358,370 | $358,370 | $5.59 | | |
| EMERGSER | EMS 147 | 0.3792580840 | $358,370 | $358,370 | $135.91 | | |
| EMSRFD | EMS REFUND 147 | 0.0000000000 | $358,370 | $358,370 | $0.00 | | |
| PORTRFD | PORT REFUND 640 | 0.0000000000 | $358,370 | $358,370 | $0.00 | | |
| PORTWWGEN | PORT OF WW 640 | 0.2460186015 | $358,370 | $358,370 | $88.17 | | |
| SD140BOND | SD #140 BOND 764 | 0.8342371393 | $358,370 | $358,370 | $298.97 | | |
| SD140GEN | SD #140 GENERAL 760 | 2.0646500647 | $358,370 | $358,370 | $739.91 | | |
| ST2 | STATE SCHOOL PART 2 600 | 0.8131451643 | $358,370 | $358,370 | $291.41 | | |
| STATESCHL | STATE SCHOOL 600 | 1.5158548041 | $358,370 | $358,370 | $543.24 | | |
| STREFUND | STATE REFUND LEVY 603 | 0.0000000000 | $358,370 | $358,370 | $0.00 | | |
| CWWBOND | C OF WW BOND 643 | 0.2760494372 | $358,370 | $358,370 | $98.93 | | |
| CWWGEN | CITY OF WW 631 | 1.6100204973 | $358,370 | $358,370 | $576.98 | | |
| CWWRFD | CITY OF WALLA WALLA REFUND 631 | 0.0000000000 | $358,370 | $358,370 | $0.00 | | |
| | Total Tax Rate: | 8.7973694689 | | | | | |
| | | | | Taxes w/Current Exemptions: | $3,152.72 | | |
| | | | | Taxes w/o Exemptions: | $3,152.72 | | |
Improvement / Building
| Improvement #1: | RESIDENTIAL | State Code: | 11 | 960.0 sqft | Value: | $277,370 |
| Exterior Wall: | PLYWOOD | Heating/Cooling: | WARM & COOLED AIR | | Number of Bathrooms: | 2 | Number of Bedrooms: | 3 | | Plumbing: | 9 | Roof Covering: | COMP SHINGLE |
|
| | Type | Description | Class CD | Sub Class CD | Year Built | Area |
| | MA | Main Area | 1 | 30 | 1970 | 960.0 |
| | SI1 | SITE IMPROVEMENT | 1 | 30 | 1970 | 1.5 |
| | BASE | BASEMENT | 1 | 30 | 1970 | 960.0 |
| | BPF | BASEMENT -PARTITIONED FINISH | 1 | 30 | 1970 | 360.0 |
| | ATG | Attached Garage | 1 | 30 | 1970 | 528.0 |
| | CPC | COVERED CARPORT/PATIO | 1 | 30 | 1970 | 144.0 |
Sketch
Property Image
Land
| 1 | RES 1 | Converted: Residential | 0.2066 | 9000.00 | 0.00 | 0.00 | 1.00 | $81,000 | $0 |
Roll Value History
| 2025 | N/A | N/A | N/A | N/A | N/A |
| 2024 | $277,370 | $81,000 | $0 | $358,370 | $358,370 |
| 2023 | $277,370 | $81,000 | $0 | $358,370 | $358,370 |
| 2022 | $231,140 | $65,250 | $0 | $296,390 | $296,390 |
| 2021 | $171,210 | $65,250 | $0 | $236,460 | $236,460 |
| 2020 | $136,970 | $65,250 | $0 | $202,220 | $202,220 |
| 2019 | $136,970 | $65,250 | $0 | $202,220 | $202,220 |
| 2018 | $137,180 | $46,300 | $0 | $183,480 | $183,480 |
| 2017 | $119,290 | $46,300 | $0 | $165,590 | $165,590 |
| 2016 | $103,730 | $46,300 | $0 | $150,030 | $150,030 |
| 2015 | $103,730 | $46,300 | $0 | $150,030 | $150,030 |
| 2014 | $90,200 | $46,300 | $0 | $136,500 | $136,500 |
| 2013 | $90,200 | $46,300 | $0 | $136,500 | $35,500 |
| 2012 | $90,200 | $46,300 | $0 | $0 | $0 |
| 2011 | $90,200 | $46,300 | $0 | $0 | $0 |
| 2010 | $83,700 | $46,300 | $0 | $0 | $0 |
| 2009 | $98,100 | $46,300 | $0 | $0 | $0 |
| 2008 | $98,100 | $46,300 | $0 | $0 | $0 |
| 2007 | $71,700 | $23,800 | $0 | $0 | $0 |
| 2006 | $71,700 | $23,800 | $0 | $0 | $0 |
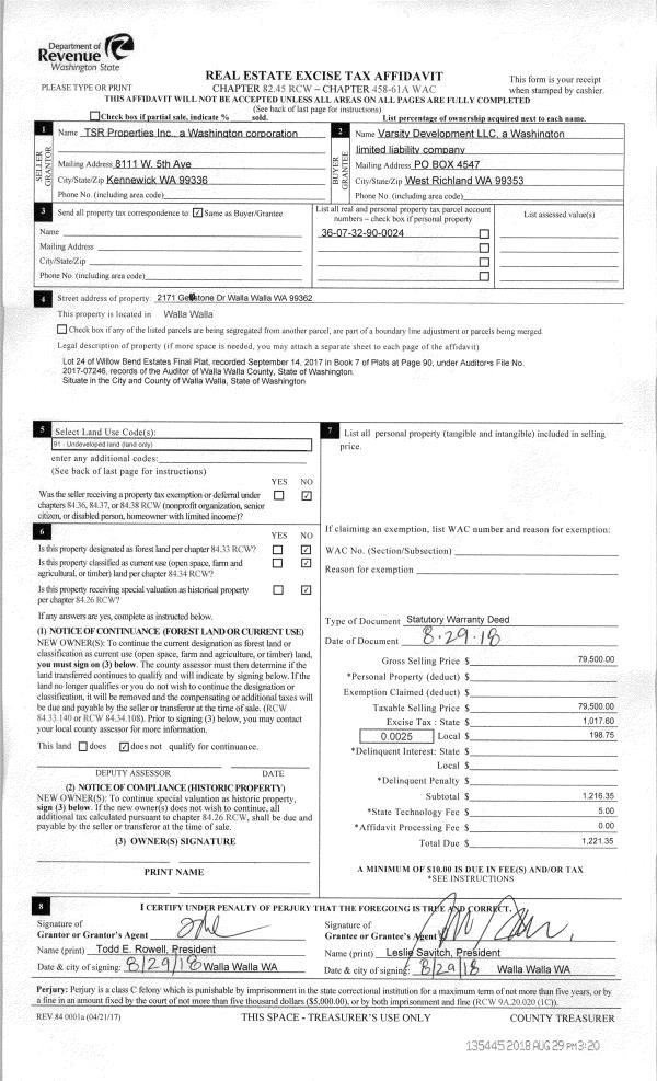
Deed and Sales History
| 1 | 12/21/2017 | SWD | STATUTORY WARRANTY DEED | VAN AUSDLE JAMIE | RUTH MICHAEL | | | $195,000.00 | 133856 | 2017-10304 |
| 2 | 01/09/2015 | SWD | STATUTORY WARRANTY DEED | BRIMHALL PATRICIA | VAN AUSDLE JAMIE | | | $155,000.00 | 127252 | 2015-00239 |
| 3 | 06/14/1983 | WARRANTY D | WARRANTY DEED | | | | | $49,900.00 | 0 | 1388-304114 |
Payout Agreement
| No payout information available.. |