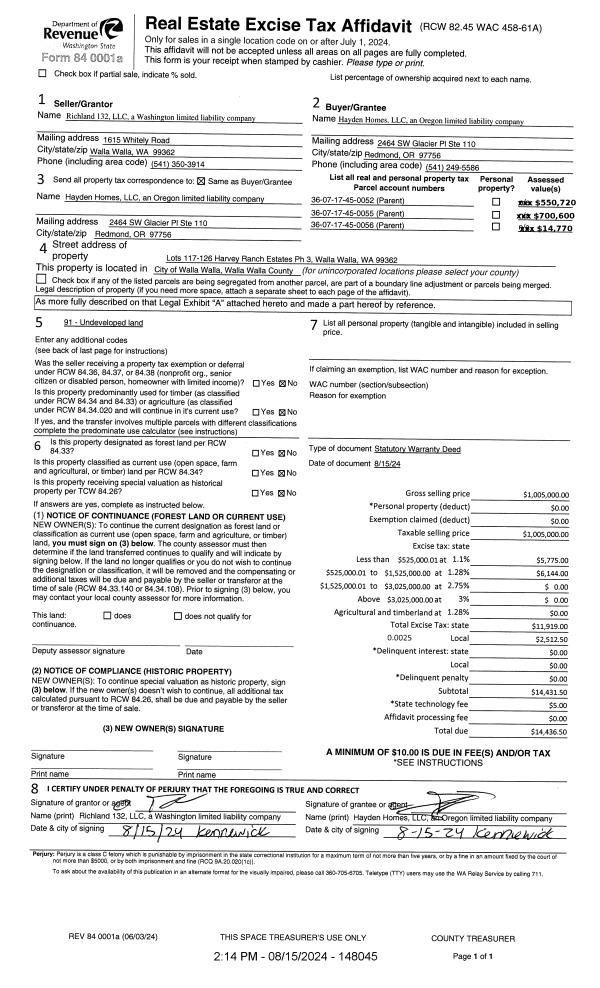
Property
Account |
| Property ID: | 29869 | Abbreviated Legal Description: | 29-7-36 TAX 60N |
| Parcel Number: | 360729440013 | Agent Code: | |
| Type: | Real | | |
| Tax Area: | 1 - OL-140-F | Land Use Code | 11 |
| Open Space: | N | DFL | N |
| Historic Property: | N | Remodel Property: | N |
| Multi-Family Redevelopment: | N | | |
| Township: | 7 | Section: | 29 |
| Range: | 36 |
Location |
| Address: | 1306 S 2ND AVE WA 99362 | Mapsco: | |
| Neighborhood: | A Res | Map ID: | |
| Neighborhood CD: | 613011 |
Owner |
| Name: | DUTTON ROBERT G & ESTHER C | Owner ID: | 58703 |
| Mailing Address: | 1306 S 2ND AVE WALLA WALLA, WA 99362 | % Ownership: | 100.0000000000% |
| | | Exemptions: | |
Taxes and Assessment Details
Values
| (+) Improvement Homesite Value: | + | $344,930 | |
| (+) Improvement Non-Homesite Value: | + | $0 | |
| (+) Land Homesite Value: | + | $91,050 | |
| (+) Land Non-Homesite Value: | + | $0 | |
| (+) Curr Use (HS): | + | $0 | $0 |
| (+) Curr Use (NHS): | + | $0 | $0 |
| | | -------------------------- | |
| (=) Market Value: | = | $435,980 | |
| (–) Productivity Loss: | – | $0 | |
| | | -------------------------- | |
| (=) Subtotal: | = | $435,980 | |
| (+) Senior Appraised Value: | + | $0 | |
| (+) Non-Senior Appraised Value: | + | $435,980 | |
| | | -------------------------- | |
| (=) Total Appraised Value: | = | $435,980 | |
| (–) Senior Exemption Loss: | – | $0 | |
| (–) Exemption Loss: | – | $0 | |
| | | -------------------------- | |
| (=) Taxable Value: | = | $435,980 | |
Taxing Jurisdiction
| Owner: | DUTTON ROBERT G & ESTHER C | | |
| % Ownership: | 100.0000000000% | | |
| Total Value: | $435,980 | | |
| Tax Area: | 1 - OL-140-F |
| CERFD | CURRENT EXPENSE REFUND 010 | 0.0000000000 | $435,980 | $435,980 | $0.00 | | |
| CURREXP | CURRENT EXPENSE 010 | 1.0175366760 | $435,980 | $435,980 | $443.63 | | |
| HUMNSERV | HUMAN SERVICES 119 | 0.0250000000 | $435,980 | $435,980 | $10.90 | | |
| SLDREL | SOLDIERS RELIEF 121 | 0.0155990005 | $435,980 | $435,980 | $6.80 | | |
| EMERGSER | EMS 147 | 0.3792580840 | $435,980 | $435,980 | $165.35 | | |
| EMSRFD | EMS REFUND 147 | 0.0000000000 | $435,980 | $435,980 | $0.00 | | |
| PORTRFD | PORT REFUND 640 | 0.0000000000 | $435,980 | $435,980 | $0.00 | | |
| PORTWWGEN | PORT OF WW 640 | 0.2460186015 | $435,980 | $435,980 | $107.26 | | |
| SD140BOND | SD #140 BOND 764 | 0.8342371393 | $435,980 | $435,980 | $363.71 | | |
| SD140GEN | SD #140 GENERAL 760 | 2.0646500647 | $435,980 | $435,980 | $900.15 | | |
| ST2 | STATE SCHOOL PART 2 600 | 0.8131451643 | $435,980 | $435,980 | $354.52 | | |
| STATESCHL | STATE SCHOOL 600 | 1.5158548041 | $435,980 | $435,980 | $660.88 | | |
| STREFUND | STATE REFUND LEVY 603 | 0.0000000000 | $435,980 | $435,980 | $0.00 | | |
| CWWBOND | C OF WW BOND 643 | 0.2760494372 | $435,980 | $435,980 | $120.35 | | |
| CWWGEN | CITY OF WW 631 | 1.6100204973 | $435,980 | $435,980 | $701.94 | | |
| CWWRFD | CITY OF WALLA WALLA REFUND 631 | 0.0000000000 | $435,980 | $435,980 | $0.00 | | |
| | Total Tax Rate: | 8.7973694689 | | | | | |
| | | | | Taxes w/Current Exemptions: | $3,835.49 | | |
| | | | | Taxes w/o Exemptions: | $3,835.49 | | |
Improvement / Building
| Improvement #1: | RESIDENTIAL | State Code: | 11 | 1692.0 sqft | Value: | $344,930 |
| Exterior Wall: | HARDBOARD | Heating/Cooling: | WARM & COOLED AIR | | Number of Bathrooms: | 2 | Number of Bedrooms: | 3 | | Plumbing: | 10 | Roof Covering: | COMP SHINGLE |
|
| | Type | Description | Class CD | Sub Class CD | Year Built | Area |
| | MA | Main Area | 1 | 35 | 2004 | 1692.0 |
| | SI1 | SITE IMPROVEMENT | 1 | 35 | 2004 | 2.5 |
| | ATG | Attached Garage | 1 | 35 | 2004 | 770.0 |
| | RPO | OPEN PORCH W/ROOF | 1 | 35 | 2004 | 90.0 |
| | GFP | GAS FIREPLACE | 1 | 35 | 2004 | 1.0 |
| | CPC | COVERED CARPORT/PATIO | 1 | 35 | 2004 | 128.0 |
Sketch
Property Image
Land
| 1 | RES 1 | Converted: Residential | 0.2636 | 11482.00 | 0.00 | 0.00 | 1.00 | $91,050 | $0 |
Roll Value History
| 2025 | N/A | N/A | N/A | N/A | N/A |
| 2024 | $344,930 | $91,050 | $0 | $435,980 | $435,980 |
| 2023 | $344,930 | $91,050 | $0 | $435,980 | $435,980 |
| 2022 | $299,940 | $73,260 | $0 | $373,200 | $373,200 |
| 2021 | $239,950 | $73,260 | $0 | $313,210 | $313,210 |
| 2020 | $218,140 | $73,260 | $0 | $291,400 | $291,400 |
| 2019 | $218,140 | $73,260 | $0 | $291,400 | $291,400 |
| 2018 | $193,380 | $48,400 | $0 | $241,780 | $241,780 |
| 2017 | $193,380 | $48,400 | $0 | $241,780 | $241,780 |
| 2016 | $175,800 | $48,400 | $0 | $224,200 | $224,200 |
| 2015 | $175,800 | $48,400 | $0 | $224,200 | $74,560 |
| 2014 | $175,800 | $48,400 | $0 | $224,200 | $74,560 |
| 2013 | $175,800 | $48,400 | $0 | $224,200 | $74,560 |
| 2012 | $187,600 | $48,400 | $0 | $0 | $0 |
| 2011 | $187,600 | $48,400 | $0 | $0 | $0 |
| 2010 | $166,100 | $48,400 | $0 | $0 | $0 |
| 2009 | $189,900 | $48,400 | $0 | $0 | $0 |
| 2008 | $189,900 | $48,400 | $0 | $0 | $0 |
| 2007 | $166,000 | $20,400 | $0 | $0 | $0 |
| 2006 | $166,000 | $20,400 | $0 | $0 | $0 |
Deed and Sales History
| 1 | 02/13/2025 | QCD | QUIT CLAIM DEED | DUTTON ROBERT G & ESTHER C | DUTTON ESTHER C | | | | 148918 | 2025-00754 |
| 2 | 05/11/2016 | SWP | Special Warranty Deed | CUMMINGS SAMUEL ESTATE OF | DUTTON ROBERT G & ESTHER C | | | $250,000.00 | 130200 | 2016-03541 |
| 3 | 03/18/2004 | WARRANTY D | WARRANTY DEED | HARTNELL, BERNARD L | CUMMINGS, SAMUEL & BETTY M | | | $30,000.00 | 104285 | 2004-02826 |
| 4 | 12/02/2003 | WARRANTY D | WARRANTY DEED | HART, WALTER C & LORETTA G | HARTNELL BERNARD L | | | $144,900.00 | 103640 | 2003-18386 |
|   | |
| 5 | 12/09/1999 | WARRANTY D | WARRANTY DEED | | | | | $115,000.00 | 94149 | 2929-913775 |
|   | |
Payout Agreement
| No payout information available.. |