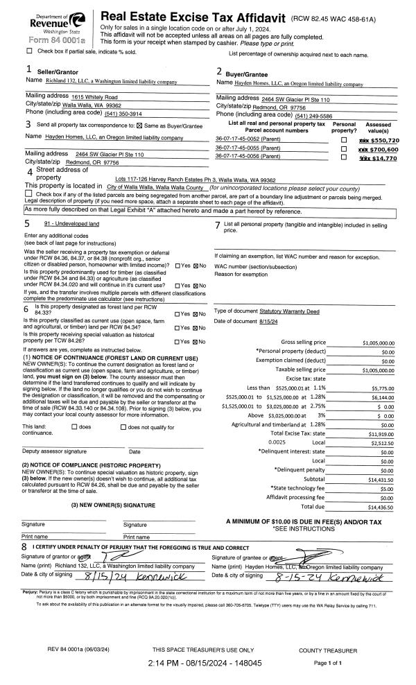
Property
Account |
| Property ID: | 29848 | Abbreviated Legal Description: | HATCH W 55' OF N1/2 LOT 1 BLK 2 |
| Parcel Number: | 360728590206 | Agent Code: | |
| Type: | Real | | |
| Tax Area: | 1 - OL-140-F | Land Use Code | 11 |
| Open Space: | N | DFL | N |
| Historic Property: | N | Remodel Property: | N |
| Multi-Family Redevelopment: | N | | |
| Township: | 7 | Section: | 28 |
| Range: | 36 |
Location |
| Address: | 1252 DAKOTA ST WA 99362 | Mapsco: | |
| Neighborhood: | A Res | Map ID: | |
| Neighborhood CD: | 613011 |
Owner |
| Name: | SCHULTZ CARRIE L REVOCABLE TRUST | Owner ID: | 69783 |
| Mailing Address: | 1252 DAKOTA ST WALLA WALLA, WA 99362 | % Ownership: | 100.0000000000% |
| | | Exemptions: | SNR/DSBL |
Taxes and Assessment Details
Values
| (+) Improvement Homesite Value: | + | $334,440 | |
| (+) Improvement Non-Homesite Value: | + | $0 | |
| (+) Land Homesite Value: | + | $70,290 | |
| (+) Land Non-Homesite Value: | + | $0 | |
| (+) Curr Use (HS): | + | $0 | $0 |
| (+) Curr Use (NHS): | + | $0 | $0 |
| | | -------------------------- | |
| (=) Market Value: | = | $404,730 | |
| (–) Productivity Loss: | – | $0 | |
| | | -------------------------- | |
| (=) Subtotal: | = | $404,730 | |
| (+) Senior Appraised Value: | + | $170,500 | |
| (+) Non-Senior Appraised Value: | + | $0 | |
| | | -------------------------- | |
| (=) Total Appraised Value: | = | $170,500 | |
| (–) Senior Exemption Loss: | – | $59,675 | |
| (–) Exemption Loss: | – | $0 | |
| | | -------------------------- | |
| (=) Taxable Value: | = | $110,825 | |
Taxing Jurisdiction
| Owner: | SCHULTZ CARRIE L REVOCABLE TRUST | | |
| % Ownership: | 100.0000000000% | | |
| Total Value: | $404,730 | | |
| Tax Area: | 1 - OL-140-F |
| CERFD | CURRENT EXPENSE REFUND 010 | 0.0000000000 | $404,730 | $110,825 | $0.00 | | |
| CURREXP | CURRENT EXPENSE 010 | 1.0175366760 | $404,730 | $110,825 | $112.77 | | |
| HUMNSERV | HUMAN SERVICES 119 | 0.0250000000 | $404,730 | $110,825 | $2.77 | | |
| SLDREL | SOLDIERS RELIEF 121 | 0.0155990005 | $404,730 | $110,825 | $1.73 | | |
| EMERGSER | EMS 147 | 0.3792580840 | $404,730 | $110,825 | $42.03 | | |
| EMSRFD | EMS REFUND 147 | 0.0000000000 | $404,730 | $110,825 | $0.00 | | |
| PORTRFD | PORT REFUND 640 | 0.0000000000 | $404,730 | $110,825 | $0.00 | | |
| PORTWWGEN | PORT OF WW 640 | 0.2460186015 | $404,730 | $110,825 | $27.27 | | |
| SD140BOND | SD #140 BOND 764 | 0.0000000000 | $404,730 | $0 | $0.00 | | |
| SD140GEN | SD #140 GENERAL 760 | 0.0000000000 | $404,730 | $0 | $0.00 | | |
| ST2 | STATE SCHOOL PART 2 600 | 0.0000000000 | $404,730 | $0 | $0.00 | | |
| STATESCHL | STATE SCHOOL 600 | 1.5158548041 | $404,730 | $110,825 | $167.99 | | |
| STREFUND | STATE REFUND LEVY 603 | 0.0000000000 | $404,730 | $110,825 | $0.00 | | |
| CWWBOND | C OF WW BOND 643 | 0.0000000000 | $404,730 | $0 | $0.00 | | |
| CWWGEN | CITY OF WW 631 | 1.6100204973 | $404,730 | $110,825 | $178.43 | | |
| CWWRFD | CITY OF WALLA WALLA REFUND 631 | 0.0000000000 | $404,730 | $110,825 | $0.00 | | |
| | Total Tax Rate: | 4.8092876634 | | | | | |
| | | | | Taxes w/Current Exemptions: | $532.99 | | |
| | | | | Taxes w/o Exemptions: | $3,560.56 | | |
Improvement / Building
| Improvement #1: | RESIDENTIAL | State Code: | 11 | 1549.0 sqft | Value: | $334,440 |
| Exterior Wall: | SIDING | Foundation: | SLAB FOUNDATION | | Heating/Cooling: | REV-HEAT-PUMP-W/DUCT | Number of Bathrooms: | 2.5 | | Number of Bedrooms: | 3 | Plumbing: | 11 | | Roof Covering: | COMP SHINGLE |   |   |
|
| | Type | Description | Class CD | Sub Class CD | Year Built | Area |
| | MA | Main Area | 1 | 30 | 1955 | 1549.0 |
| | SI1 | SITE IMPROVEMENT | 1 | 30 | 1955 | 1.5 |
| | BASE | BASEMENT | 1 | 30 | 1955 | 1092.0 |
| | BRF | BASEMENT - REC FINISH | 1 | 30 | 1955 | 546.0 |
| | S1F | Single One Story Fireplace | 1 | 30 | 1955 | 1.0 |
| | OSP | Open | 1 | 30 | 1955 | 36.0 |
| | RPC | OPEN PORCH W/ROOF , CEILED | 1 | 30 | 1955 | 52.0 |
| | CPC | COVERED CARPORT/PATIO | 1 | 30 | 2015 | 130.0 |
| | ATG | Attached Garage | 1 | 30 | 1955 | 285.0 |
| | TOOL | TOOL SHED | 1 | 30 | 1955 | 80.0 |
Sketch
Property Image
Land
| 1 | RES 1 | Converted: Residential | 0.1793 | 7810.00 | 0.00 | 0.00 | 1.00 | $70,290 | $0 |
Roll Value History
| 2025 | N/A | N/A | N/A | N/A | N/A |
| 2024 | $334,440 | $70,290 | $0 | $404,730 | $170,500 |
| 2023 | $334,440 | $70,290 | $0 | $404,730 | $110,825 |
| 2022 | $318,520 | $56,620 | $0 | $375,140 | $375,140 |
| 2021 | $235,940 | $56,620 | $0 | $292,560 | $170,500 |
| 2020 | $181,490 | $56,620 | $0 | $238,110 | $170,500 |
| 2019 | $181,490 | $56,620 | $0 | $238,110 | $170,500 |
| 2018 | $192,810 | $45,300 | $0 | $238,110 | $170,500 |
| 2017 | $137,720 | $45,300 | $0 | $183,020 | $170,500 |
| 2016 | $125,200 | $45,300 | $0 | $170,500 | $170,500 |
| 2015 | $125,200 | $45,300 | $0 | $170,500 | $170,500 |
| 2014 | $125,200 | $45,300 | $0 | $170,500 | $170,500 |
| 2013 | $125,200 | $45,300 | $0 | $170,500 | $170,500 |
| 2012 | $143,400 | $45,300 | $0 | $0 | $0 |
| 2011 | $143,400 | $45,300 | $0 | $0 | $0 |
| 2010 | $118,800 | $45,300 | $0 | $0 | $0 |
| 2009 | $116,000 | $45,300 | $0 | $0 | $0 |
| 2008 | $116,000 | $45,300 | $0 | $0 | $0 |
| 2007 | $83,600 | $22,800 | $0 | $0 | $0 |
| 2006 | $83,600 | $22,800 | $0 | $0 | $0 |
Deed and Sales History
| 1 | 07/13/2021 | QCD | QUIT CLAIM DEED | SCHULTZ CARRIE L | SCHULTZ CARRIE L REVOCABLE TRUST | | | $0.00 | 142040 | 2021-08593 |
| 2 | 05/26/1995 | WARRANTY D | WARRANTY DEED | | | | | $102,000.00 | 84040 | 2309-504828 |
Payout Agreement
| No payout information available.. |