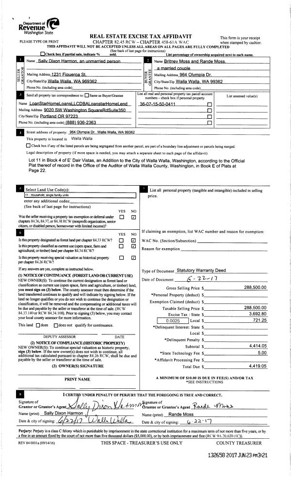
Property
Account |
| Property ID: | 29761 | Abbreviated Legal Description: | POTTERS SUB W 48.3' OF LOT 4 AND 5 BLK 4 |
| Parcel Number: | 360729770408 | Agent Code: | |
| Type: | Real | | |
| Tax Area: | 1 - OL-140-F | Land Use Code | 11 |
| Open Space: | N | DFL | N |
| Historic Property: | N | Remodel Property: | N |
| Multi-Family Redevelopment: | N | | |
| Township: | 7 | Section: | 29 |
| Range: | 36 |
Location |
| Address: | 167 E CHESTNUT ST WA 99362 | Mapsco: | |
| Neighborhood: | A-SFR | Map ID: | |
| Neighborhood CD: | 513011 |
Owner |
| Name: | ARCHER SEAN MICHAEL | Owner ID: | 71294 |
| Mailing Address: | 167 E CHESTNUT ST WALLA WALLA, WA 99362 | % Ownership: | 100.0000000000% |
| | | Exemptions: | |
Taxes and Assessment Details
Values
| (+) Improvement Homesite Value: | + | $189,530 | |
| (+) Improvement Non-Homesite Value: | + | $0 | |
| (+) Land Homesite Value: | + | $63,080 | |
| (+) Land Non-Homesite Value: | + | $0 | |
| (+) Curr Use (HS): | + | $0 | $0 |
| (+) Curr Use (NHS): | + | $0 | $0 |
| | | -------------------------- | |
| (=) Market Value: | = | $252,610 | |
| (–) Productivity Loss: | – | $0 | |
| | | -------------------------- | |
| (=) Subtotal: | = | $252,610 | |
| (+) Senior Appraised Value: | + | $0 | |
| (+) Non-Senior Appraised Value: | + | $252,610 | |
| | | -------------------------- | |
| (=) Total Appraised Value: | = | $252,610 | |
| (–) Senior Exemption Loss: | – | $0 | |
| (–) Exemption Loss: | – | $0 | |
| | | -------------------------- | |
| (=) Taxable Value: | = | $252,610 | |
Taxing Jurisdiction
| Owner: | ARCHER SEAN MICHAEL | | |
| % Ownership: | 100.0000000000% | | |
| Total Value: | $252,610 | | |
| Tax Area: | 1 - OL-140-F |
| CERFD | CURRENT EXPENSE REFUND 010 | 0.0000000000 | $252,610 | $252,610 | $0.00 | | |
| CURREXP | CURRENT EXPENSE 010 | 1.0175366760 | $252,610 | $252,610 | $257.04 | | |
| HUMNSERV | HUMAN SERVICES 119 | 0.0250000000 | $252,610 | $252,610 | $6.32 | | |
| SLDREL | SOLDIERS RELIEF 121 | 0.0155990005 | $252,610 | $252,610 | $3.94 | | |
| EMERGSER | EMS 147 | 0.3792580840 | $252,610 | $252,610 | $95.80 | | |
| EMSRFD | EMS REFUND 147 | 0.0000000000 | $252,610 | $252,610 | $0.00 | | |
| PORTRFD | PORT REFUND 640 | 0.0000000000 | $252,610 | $252,610 | $0.00 | | |
| PORTWWGEN | PORT OF WW 640 | 0.2460186015 | $252,610 | $252,610 | $62.15 | | |
| SD140BOND | SD #140 BOND 764 | 0.8342371393 | $252,610 | $252,610 | $210.74 | | |
| SD140GEN | SD #140 GENERAL 760 | 2.0646500647 | $252,610 | $252,610 | $521.55 | | |
| ST2 | STATE SCHOOL PART 2 600 | 0.8131451643 | $252,610 | $252,610 | $205.41 | | |
| STATESCHL | STATE SCHOOL 600 | 1.5158548041 | $252,610 | $252,610 | $382.92 | | |
| STREFUND | STATE REFUND LEVY 603 | 0.0000000000 | $252,610 | $252,610 | $0.00 | | |
| CWWBOND | C OF WW BOND 643 | 0.2760494372 | $252,610 | $252,610 | $69.73 | | |
| CWWGEN | CITY OF WW 631 | 1.6100204973 | $252,610 | $252,610 | $406.71 | | |
| CWWRFD | CITY OF WALLA WALLA REFUND 631 | 0.0000000000 | $252,610 | $252,610 | $0.00 | | |
| | Total Tax Rate: | 8.7973694689 | | | | | |
| | | | | Taxes w/Current Exemptions: | $2,222.31 | | |
| | | | | Taxes w/o Exemptions: | $2,222.31 | | |
Improvement / Building
| Improvement #1: | RESIDENTIAL | State Code: | 11 | 1272.0 sqft | Value: | $189,530 |
| Exterior Wall: | SIDING | Heating/Cooling: | BASEBOARD ELECTRIC | | Number of Bathrooms: | 1 | Number of Bedrooms: | 3 | | Plumbing: | 7 | Roof Covering: | COMP SHINGLE |
|
| | Type | Description | Class CD | Sub Class CD | Year Built | Area |
| | MA | Main Area | 1 | 30 | 1901 | 1272.0 |
| | SI1 | SITE IMPROVEMENT | 1 | 30 | 1901 | 1.0 |
| | CPC | COVERED CARPORT/PATIO | 1 | 30 | 1901 | 80.0 |
| | RPO | OPEN PORCH W/ROOF | 1 | 30 | 1901 | 96.0 |
| | SWP | Solid Wall Porch | 1 | 30 | 1901 | 104.0 |
| | DTG | Detached Garage | 1 | 30 | 1901 | 320.0 |
| | DTG | Detached Garage | 1 | 30 | 1901 | 468.0 |
Sketch
Property Image
Land
| 1 | RES 1 | Converted: Residential | 0.2540 | 11066.00 | 0.00 | 0.00 | 1.00 | $63,080 | $0 |
Roll Value History
| 2025 | N/A | N/A | N/A | N/A | N/A |
| 2024 | $165,480 | $100,810 | $0 | $266,290 | $266,290 |
| 2023 | $189,530 | $63,080 | $0 | $252,610 | $252,610 |
| 2022 | $189,530 | $63,080 | $0 | $252,610 | $252,610 |
| 2021 | $151,620 | $63,080 | $0 | $214,700 | $106,704 |
| 2020 | $101,080 | $63,080 | $0 | $164,160 | $106,704 |
| 2019 | $101,080 | $63,080 | $0 | $164,160 | $106,704 |
| 2018 | $101,080 | $63,080 | $0 | $164,160 | $164,160 |
| 2017 | $87,570 | $40,800 | $0 | $128,370 | $128,370 |
| 2016 | $83,400 | $40,800 | $0 | $124,200 | $124,200 |
| 2015 | $83,400 | $40,800 | $0 | $124,200 | $124,200 |
| 2014 | $83,400 | $40,800 | $0 | $124,200 | $124,200 |
| 2013 | $83,400 | $40,800 | $0 | $124,200 | $124,200 |
| 2012 | $83,400 | $40,800 | $0 | $0 | $0 |
| 2011 | $83,400 | $40,800 | $0 | $0 | $0 |
| 2010 | $72,100 | $40,800 | $0 | $0 | $0 |
| 2009 | $84,600 | $40,800 | $0 | $0 | $0 |
| 2008 | $77,400 | $48,000 | $0 | $0 | $0 |
| 2007 | $80,400 | $20,300 | $0 | $0 | $0 |
| 2006 | $80,400 | $20,300 | $0 | $0 | $0 |
Deed and Sales History
| 1 | 03/11/2022 | QCD | QUIT CLAIM DEED | BRADLEY FRIEDA FAMILY TRUST | ARCHER SEAN MICHAEL | | | $0.00 | 143547 | 2022-02142 |
| 2 | 08/01/1967 | QCD | QUIT CLAIM DEED | | | | | $0.00 | 0 | 1909-104504 |
Payout Agreement
| No payout information available.. |