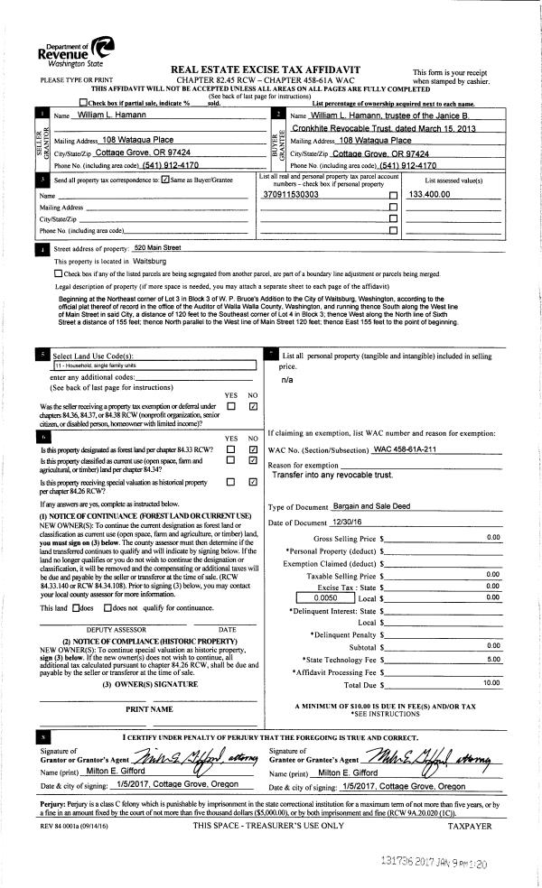
Property
Account |
| Property ID: | 29728 | Abbreviated Legal Description: | LENNONS & WILDWOOD LOT 15 BLK 3 |
| Parcel Number: | 360721630315 | Agent Code: | |
| Type: | Real | | |
| Tax Area: | 1 - OL-140-F | Land Use Code | 11 |
| Open Space: | N | DFL | N |
| Historic Property: | N | Remodel Property: | N |
| Multi-Family Redevelopment: | N | | |
| Township: | 7 | Section: | 21 |
| Range: | 36 |
Location |
| Address: | 1069 FRANCIS AVE WA 99362 | Mapsco: | |
| Neighborhood: | G-SFR | Map ID: | |
| Neighborhood CD: | 514011 |
Owner |
| Name: | LEBER CHERIE ANNETTE | Owner ID: | 63710 |
| Mailing Address: | 1069 FRANCIS AVE WALLA WALLA, WA 99362 | % Ownership: | 100.0000000000% |
| | | Exemptions: | |
Taxes and Assessment Details
Values
| (+) Improvement Homesite Value: | + | $309,380 | |
| (+) Improvement Non-Homesite Value: | + | $0 | |
| (+) Land Homesite Value: | + | $53,800 | |
| (+) Land Non-Homesite Value: | + | $0 | |
| (+) Curr Use (HS): | + | $0 | $0 |
| (+) Curr Use (NHS): | + | $0 | $0 |
| | | -------------------------- | |
| (=) Market Value: | = | $363,180 | |
| (–) Productivity Loss: | – | $0 | |
| | | -------------------------- | |
| (=) Subtotal: | = | $363,180 | |
| (+) Senior Appraised Value: | + | $0 | |
| (+) Non-Senior Appraised Value: | + | $363,180 | |
| | | -------------------------- | |
| (=) Total Appraised Value: | = | $363,180 | |
| (–) Senior Exemption Loss: | – | $0 | |
| (–) Exemption Loss: | – | $0 | |
| | | -------------------------- | |
| (=) Taxable Value: | = | $363,180 | |
Taxing Jurisdiction
| Owner: | LEBER CHERIE ANNETTE | | |
| % Ownership: | 100.0000000000% | | |
| Total Value: | $363,180 | | |
| Tax Area: | 1 - OL-140-F |
| CERFD | CURRENT EXPENSE REFUND 010 | 0.0000000000 | $363,180 | $363,180 | $0.00 | | |
| CURREXP | CURRENT EXPENSE 010 | 1.0175366760 | $363,180 | $363,180 | $369.55 | | |
| HUMNSERV | HUMAN SERVICES 119 | 0.0250000000 | $363,180 | $363,180 | $9.08 | | |
| SLDREL | SOLDIERS RELIEF 121 | 0.0155990005 | $363,180 | $363,180 | $5.67 | | |
| EMERGSER | EMS 147 | 0.3792580840 | $363,180 | $363,180 | $137.74 | | |
| EMSRFD | EMS REFUND 147 | 0.0000000000 | $363,180 | $363,180 | $0.00 | | |
| PORTRFD | PORT REFUND 640 | 0.0000000000 | $363,180 | $363,180 | $0.00 | | |
| PORTWWGEN | PORT OF WW 640 | 0.2460186015 | $363,180 | $363,180 | $89.35 | | |
| SD140BOND | SD #140 BOND 764 | 0.8342371393 | $363,180 | $363,180 | $302.98 | | |
| SD140GEN | SD #140 GENERAL 760 | 2.0646500647 | $363,180 | $363,180 | $749.84 | | |
| ST2 | STATE SCHOOL PART 2 600 | 0.8131451643 | $363,180 | $363,180 | $295.32 | | |
| STATESCHL | STATE SCHOOL 600 | 1.5158548041 | $363,180 | $363,180 | $550.53 | | |
| STREFUND | STATE REFUND LEVY 603 | 0.0000000000 | $363,180 | $363,180 | $0.00 | | |
| CWWBOND | C OF WW BOND 643 | 0.2760494372 | $363,180 | $363,180 | $100.26 | | |
| CWWGEN | CITY OF WW 631 | 1.6100204973 | $363,180 | $363,180 | $584.73 | | |
| CWWRFD | CITY OF WALLA WALLA REFUND 631 | 0.0000000000 | $363,180 | $363,180 | $0.00 | | |
| | Total Tax Rate: | 8.7973694689 | | | | | |
| | | | | Taxes w/Current Exemptions: | $3,195.05 | | |
| | | | | Taxes w/o Exemptions: | $3,195.05 | | |
Improvement / Building
| Improvement #1: | RESIDENTIAL | State Code: | 11 | 780.0 sqft | Value: | $309,380 |
| Exterior Wall: | COMMON BRICK | Heating/Cooling: | WARM & COOLED AIR | | Number of Bathrooms: | 2 | Number of Bedrooms: | 3 | | Plumbing: | 9 | Roof Covering: | COMP SHINGLE |
|
| | Type | Description | Class CD | Sub Class CD | Year Built | Area |
| | MA | Main Area | 1 | 40 | 1929 | 780.0 |
| | SI1 | SITE IMPROVEMENT | 1 | 40 | 1929 | 3.5 |
| | BASE | BASEMENT | 1 | 40 | 1929 | 780.0 |
| | BPF | BASEMENT -PARTITIONED FINISH | 1 | 40 | 1929 | 780.0 |
| | S1F | Single One Story Fireplace | 1 | 40 | 1929 | 1.0 |
| | RPC | OPEN PORCH W/ROOF , CEILED | 1 | 40 | 1929 | 63.0 |
| | WOD | Wood Deck | 1 | 40 | 2021 | 250.0 |
| | UTST | Utility Storage Shed | 1 | 40 | 1929 | 100.0 |
| | DTG | Detached Garage | 1 | 40 | 1929 | 160.0 |
| | SMP | SWIMMING POOL | 1 | 40 | 2021 | 1.0 |
Sketch
Property Image
Land
| 1 | RES 1 | Converted: Residential | 0.1703 | 7420.00 | 0.00 | 0.00 | 1.00 | $53,800 | $0 |
Roll Value History
| 2025 | N/A | N/A | N/A | N/A | N/A |
| 2024 | $277,640 | $81,620 | $0 | $359,260 | $359,260 |
| 2023 | $309,380 | $53,800 | $0 | $363,180 | $363,180 |
| 2022 | $281,250 | $53,800 | $0 | $335,050 | $335,050 |
| 2021 | $281,250 | $53,800 | $0 | $335,050 | $335,050 |
| 2020 | $219,000 | $53,800 | $0 | $272,800 | $272,800 |
| 2019 | $219,000 | $53,800 | $0 | $272,800 | $272,800 |
| 2018 | $219,000 | $53,800 | $0 | $272,800 | $272,800 |
| 2017 | $107,610 | $33,400 | $0 | $141,010 | $141,010 |
| 2016 | $97,830 | $33,400 | $0 | $131,230 | $3,500 |
| 2015 | $93,170 | $33,400 | $0 | $126,570 | $3,500 |
| 2014 | $84,700 | $33,400 | $0 | $118,100 | $13,500 |
| 2013 | $84,700 | $33,400 | $0 | $118,100 | $13,500 |
| 2012 | $84,700 | $33,400 | $0 | $0 | $0 |
| 2011 | $84,700 | $33,400 | $0 | $0 | $0 |
| 2010 | $79,100 | $33,400 | $0 | $0 | $0 |
| 2009 | $91,600 | $33,400 | $0 | $0 | $0 |
| 2008 | $70,300 | $29,700 | $0 | $0 | $0 |
| 2007 | $70,300 | $29,700 | $0 | $0 | $0 |
| 2006 | $61,900 | $14,800 | $0 | $0 | $0 |
Deed and Sales History
| 1 | 08/08/2018 | SWD | STATUTORY WARRANTY DEED | WATTS TRAVIS L & MEGAN D | LEBER CHERIE ANNETTE | | | $309,000.00 | 135295 | 2018-06495 |
| 2 | 12/08/2017 | SWD | STATUTORY WARRANTY DEED | MOORE WILLIAM R REVOCABLE LIVING TRUST | WATTS TRAVIS L & MEGAN D | | | $142,000.00 | 133759 | 2017-09830 |
| 3 | 04/26/2017 | QCD | QUIT CLAIM DEED | MOORE WILLIAM R | MOORE WILLIAM R REVOCABLE LIVING TRUST | | | $0.00 | 132275 | 2017-03121 |
| 4 | 04/23/1993 | WARRANTY D | WARRANTY DEED | | | | | $59,900.00 | 78992 | 2069-304016 |
Payout Agreement
| No payout information available.. |