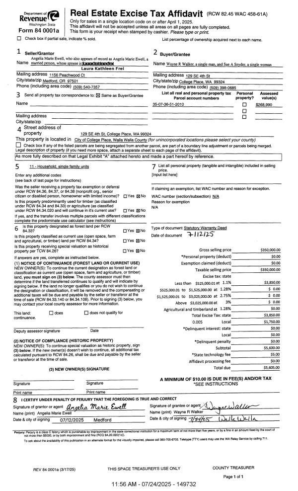
Property
Account |
| Property ID: | 29725 | Abbreviated Legal Description: | 21-7-36 TAX 96 |
| Parcel Number: | 360721240089 | Agent Code: | |
| Type: | Real | | |
| Tax Area: | 1 - OL-140-F | Land Use Code | 11 |
| Open Space: | N | DFL | N |
| Historic Property: | N | Remodel Property: | N |
| Multi-Family Redevelopment: | N | | |
| Township: | 7 | Section: | 21 |
| Range: | 36 |
Location |
| Address: | 1040 WAVERLY ST WA 99362 | Mapsco: | |
| Neighborhood: | A-SFR | Map ID: | |
| Neighborhood CD: | 513011 |
Owner |
| Name: | TANTRUM JEREMY & BARBARA | Owner ID: | 70218 |
| Mailing Address: | 15417 LINDEN AVE NORTH SHORELINE, WA 98133 | % Ownership: | 100.0000000000% |
| | | Exemptions: | |
Taxes and Assessment Details
Values
| (+) Improvement Homesite Value: | + | $214,220 | |
| (+) Improvement Non-Homesite Value: | + | $0 | |
| (+) Land Homesite Value: | + | $57,170 | |
| (+) Land Non-Homesite Value: | + | $0 | |
| (+) Curr Use (HS): | + | $0 | $0 |
| (+) Curr Use (NHS): | + | $0 | $0 |
| | | -------------------------- | |
| (=) Market Value: | = | $271,390 | |
| (–) Productivity Loss: | – | $0 | |
| | | -------------------------- | |
| (=) Subtotal: | = | $271,390 | |
| (+) Senior Appraised Value: | + | $0 | |
| (+) Non-Senior Appraised Value: | + | $271,390 | |
| | | -------------------------- | |
| (=) Total Appraised Value: | = | $271,390 | |
| (–) Senior Exemption Loss: | – | $0 | |
| (–) Exemption Loss: | – | $0 | |
| | | -------------------------- | |
| (=) Taxable Value: | = | $271,390 | |
Taxing Jurisdiction
| Owner: | TANTRUM JEREMY & BARBARA | | |
| % Ownership: | 100.0000000000% | | |
| Total Value: | $271,390 | | |
| Tax Area: | 1 - OL-140-F |
| CERFD | CURRENT EXPENSE REFUND 010 | 0.0000000000 | $271,390 | $271,390 | $0.00 | | |
| CURREXP | CURRENT EXPENSE 010 | 1.0175366760 | $271,390 | $271,390 | $276.15 | | |
| HUMNSERV | HUMAN SERVICES 119 | 0.0250000000 | $271,390 | $271,390 | $6.78 | | |
| SLDREL | SOLDIERS RELIEF 121 | 0.0155990005 | $271,390 | $271,390 | $4.23 | | |
| EMERGSER | EMS 147 | 0.3792580840 | $271,390 | $271,390 | $102.93 | | |
| EMSRFD | EMS REFUND 147 | 0.0000000000 | $271,390 | $271,390 | $0.00 | | |
| PORTRFD | PORT REFUND 640 | 0.0000000000 | $271,390 | $271,390 | $0.00 | | |
| PORTWWGEN | PORT OF WW 640 | 0.2460186015 | $271,390 | $271,390 | $66.77 | | |
| SD140BOND | SD #140 BOND 764 | 0.8342371393 | $271,390 | $271,390 | $226.40 | | |
| SD140GEN | SD #140 GENERAL 760 | 2.0646500647 | $271,390 | $271,390 | $560.33 | | |
| ST2 | STATE SCHOOL PART 2 600 | 0.8131451643 | $271,390 | $271,390 | $220.68 | | |
| STATESCHL | STATE SCHOOL 600 | 1.5158548041 | $271,390 | $271,390 | $411.39 | | |
| STREFUND | STATE REFUND LEVY 603 | 0.0000000000 | $271,390 | $271,390 | $0.00 | | |
| CWWBOND | C OF WW BOND 643 | 0.2760494372 | $271,390 | $271,390 | $74.92 | | |
| CWWGEN | CITY OF WW 631 | 1.6100204973 | $271,390 | $271,390 | $436.94 | | |
| CWWRFD | CITY OF WALLA WALLA REFUND 631 | 0.0000000000 | $271,390 | $271,390 | $0.00 | | |
| | Total Tax Rate: | 8.7973694689 | | | | | |
| | | | | Taxes w/Current Exemptions: | $2,387.52 | | |
| | | | | Taxes w/o Exemptions: | $2,387.52 | | |
Improvement / Building
| Improvement #1: | RESIDENTIAL | State Code: | 11 | 1307.0 sqft | Value: | $214,220 |
| Exterior Wall: | PLYWOOD | Heating/Cooling: | WARM & COOLED AIR | | Number of Bathrooms: | 1 | Number of Bedrooms: | 2 | | Plumbing: | 6 | Roof Covering: | COMP SHINGLE |
|
| | Type | Description | Class CD | Sub Class CD | Year Built | Area |
| | MA | Main Area | 1 | 30 | 1938 | 1307.0 |
| | CPC | COVERED CARPORT/PATIO | 1 | 30 | 0 | 494.0 |
| | SI1 | SITE IMPROVEMENT | 1 | 30 | 0 | 1.5 |
| | BASE | BASEMENT | 1 | 30 | 1938 | 408.0 |
| | OPS | OPEN PORCH W/STEPS | 1 | 30 | 1938 | 36.0 |
| | WOD | Wood Deck | 1 | 30 | 1938 | 289.0 |
| | S1F | Single One Story Fireplace | 1 | 30 | 1938 | 1.0 |
| | OUT | OUTSIDE BASEMENT ENTRY | 1 | 30 | 1938 | 1.0 |
Sketch
Property Image
Land
| 1 | RES 1 | Converted: Residential | 0.2100 | 9147.00 | 0.00 | 0.00 | 1.00 | $57,170 | $0 |
Roll Value History
| 2025 | N/A | N/A | N/A | N/A | N/A |
| 2024 | $186,210 | $91,470 | $0 | $277,680 | $277,680 |
| 2023 | $214,220 | $57,170 | $0 | $271,390 | $271,390 |
| 2022 | $204,020 | $57,170 | $0 | $261,190 | $261,190 |
| 2021 | $170,010 | $57,170 | $0 | $227,180 | $227,180 |
| 2020 | $130,780 | $57,170 | $0 | $187,950 | $63,108 |
| 2019 | $130,780 | $57,170 | $0 | $187,950 | $63,108 |
| 2018 | $100,600 | $57,170 | $0 | $157,770 | $63,108 |
| 2017 | $113,230 | $36,600 | $0 | $149,830 | $149,830 |
| 2016 | $107,840 | $36,600 | $0 | $144,440 | $144,440 |
| 2015 | $102,700 | $36,600 | $0 | $139,300 | $139,300 |
| 2014 | $102,700 | $36,600 | $0 | $139,300 | $139,300 |
| 2013 | $102,700 | $36,600 | $0 | $139,300 | $139,300 |
| 2012 | $102,700 | $36,600 | $0 | $0 | $0 |
| 2011 | $102,700 | $36,600 | $0 | $0 | $0 |
| 2010 | $102,700 | $36,600 | $0 | $0 | $0 |
| 2009 | $132,400 | $36,600 | $0 | $0 | $0 |
| 2008 | $98,600 | $36,600 | $0 | $0 | $0 |
| 2007 | $98,600 | $36,600 | $0 | $0 | $0 |
| 2006 | $72,100 | $18,300 | $0 | $0 | $0 |
Deed and Sales History
| 1 | 08/31/2021 | SWD | STATUTORY WARRANTY DEED | BLEVINS ARDA J ESTATE OF | TANTRUM JEREMY & BARBARA | | | $267,000.00 | 142414 | 2021-10759 |
| 2 | 05/28/1993 | WARRANTY D | WARRANTY DEED | | | | | $58,730.00 | 79208 | 2079-305358 |
Payout Agreement
| No payout information available.. |