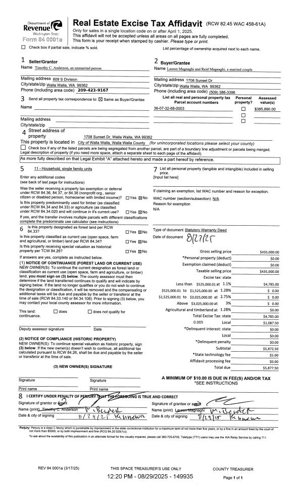
Property
Account |
| Property ID: | 29716 | Abbreviated Legal Description: | CEDAR BEND SUBD LOT 10 |
| Parcel Number: | 350601530010 | Agent Code: | |
| Type: | Real | | |
| Tax Area: | 75 - CP 250 | Land Use Code | 11 |
| Open Space: | N | DFL | N |
| Historic Property: | N | Remodel Property: | N |
| Multi-Family Redevelopment: | N | | |
| Township: | 6 | Section: | 1 |
| Range: | 35 |
Location |
| Address: | 216 SE CEDAR BEND DR WA 99324 | Mapsco: | |
| Neighborhood: | A MH | Map ID: | |
| Neighborhood CD: | 113061 |
Owner |
| Name: | MILLER RONALD C | Owner ID: | 72485 |
| Mailing Address: | 216 SE CEDAR BEND DR COLLEGE PLACE, WA 99324 | % Ownership: | 100.0000000000% |
| | | Exemptions: | |
Taxes and Assessment Details
Values
| (+) Improvement Homesite Value: | + | $202,660 | |
| (+) Improvement Non-Homesite Value: | + | $0 | |
| (+) Land Homesite Value: | + | $55,000 | |
| (+) Land Non-Homesite Value: | + | $0 | |
| (+) Curr Use (HS): | + | $0 | $0 |
| (+) Curr Use (NHS): | + | $0 | $0 |
| | | -------------------------- | |
| (=) Market Value: | = | $257,660 | |
| (–) Productivity Loss: | – | $0 | |
| | | -------------------------- | |
| (=) Subtotal: | = | $257,660 | |
| (+) Senior Appraised Value: | + | $0 | |
| (+) Non-Senior Appraised Value: | + | $257,660 | |
| | | -------------------------- | |
| (=) Total Appraised Value: | = | $257,660 | |
| (–) Senior Exemption Loss: | – | $0 | |
| (–) Exemption Loss: | – | $0 | |
| | | -------------------------- | |
| (=) Taxable Value: | = | $257,660 | |
Taxing Jurisdiction
| Owner: | MILLER RONALD C | | |
| % Ownership: | 100.0000000000% | | |
| Total Value: | $257,660 | | |
| Tax Area: | 75 - CP 250 |
| CERFD | CURRENT EXPENSE REFUND 010 | 0.0000000000 | $257,660 | $257,660 | $0.00 | | |
| CURREXP | CURRENT EXPENSE 010 | 1.0175366760 | $257,660 | $257,660 | $262.18 | | |
| HUMNSERV | HUMAN SERVICES 119 | 0.0250000000 | $257,660 | $257,660 | $6.44 | | |
| SLDREL | SOLDIERS RELIEF 121 | 0.0155990005 | $257,660 | $257,660 | $4.02 | | |
| COLLPLBOND | C OF CP BOND 644 | 0.4374241808 | $257,660 | $257,660 | $112.71 | | |
| COLLPLGEN | CITY OF CP 632 | 1.4453819216 | $257,660 | $257,660 | $372.42 | | |
| EMERGSER | EMS 147 | 0.3792580840 | $257,660 | $257,660 | $97.72 | | |
| EMSRFD | EMS REFUND 147 | 0.0000000000 | $257,660 | $257,660 | $0.00 | | |
| RURALLIB | RURAL LIBRARY 623 | 0.3710609029 | $257,660 | $257,660 | $95.61 | | |
| PORTRFD | PORT REFUND 640 | 0.0000000000 | $257,660 | $257,660 | $0.00 | | |
| PORTWWGEN | PORT OF WW 640 | 0.2460186015 | $257,660 | $257,660 | $63.39 | | |
| SD250BOND | SD #250 BOND 773 | 1.4560608159 | $257,660 | $257,660 | $375.17 | | |
| SD250GEN | SD #250 GENERAL 770 | 2.3880724087 | $257,660 | $257,660 | $615.31 | | |
| ST2 | STATE SCHOOL PART 2 600 | 0.8131451643 | $257,660 | $257,660 | $209.51 | | |
| STATESCHL | STATE SCHOOL 600 | 1.5158548041 | $257,660 | $257,660 | $390.58 | | |
| STREFUND | STATE REFUND LEVY 603 | 0.0000000000 | $257,660 | $257,660 | $0.00 | | |
| | Total Tax Rate: | 10.1104125603 | | | | | |
| | | | | Taxes w/Current Exemptions: | $2,605.06 | | |
| | | | | Taxes w/o Exemptions: | $2,605.06 | | |
Improvement / Building
| Improvement #1: | MANUFACTURED HOME | State Code: | 11 | 1377.0 sqft | Value: | $202,660 |
| Exterior Wall: | HARDBOARD | Heating/Cooling: | WARM & COOLED AIR | | Number of Bathrooms: | 2 | Number of Bedrooms: | 3 | | Plumbing: | 9 | Roof Covering: | COMP SHINGLE |
|
| | Type | Description | Class CD | Sub Class CD | Year Built | Area |
| | MOBHOME | MANUFACTURD HOMES | 1 | 30 | 1998 | 1377.0 |
| | MI1 | MH SET-UP COSTS | 1 | 30 | 1998 | 1.0 |
| | DTG | Detached Garage | 1 | 30 | 1998 | 440.0 |
| | SI1 | SITE IMPROVEMENT | 1 | 30 | 1998 | 1.0 |
| | CPC | COVERED CARPORT/PATIO | 1 | 30 | 1998 | 168.0 |
| | UTST | Utility Storage Shed | 1 | 30 | 1998 | 240.0 |
Sketch
Property Image
Land
| 1 | RES 1 | Converted: Residential | 0.1672 | 7284.00 | 0.00 | 0.00 | 1.00 | $55,000 | $0 |
Roll Value History
| 2025 | N/A | N/A | N/A | N/A | N/A |
| 2024 | $202,660 | $55,000 | $0 | $257,660 | $187,660 |
| 2023 | $202,660 | $55,000 | $0 | $257,660 | $257,660 |
| 2022 | $176,230 | $55,000 | $0 | $231,230 | $231,230 |
| 2021 | $176,230 | $55,000 | $0 | $231,230 | $231,230 |
| 2020 | $100,700 | $55,000 | $0 | $155,700 | $48,640 |
| 2019 | $100,700 | $55,000 | $0 | $155,700 | $48,640 |
| 2018 | $83,920 | $55,000 | $0 | $138,920 | $48,640 |
| 2017 | $79,920 | $55,000 | $0 | $134,920 | $48,640 |
| 2016 | $79,920 | $55,000 | $0 | $134,920 | $48,640 |
| 2015 | $79,920 | $55,000 | $0 | $134,920 | $48,640 |
| 2014 | $66,600 | $55,000 | $0 | $121,600 | $71,600 |
| 2013 | $66,600 | $55,000 | $0 | $121,600 | $71,600 |
| 2012 | $80,100 | $55,000 | $0 | $0 | $0 |
| 2011 | $80,100 | $55,000 | $0 | $0 | $0 |
| 2010 | $80,100 | $55,000 | $0 | $0 | $0 |
| 2009 | $80,100 | $55,000 | $0 | $0 | $0 |
| 2008 | $81,600 | $25,000 | $0 | $0 | $0 |
| 2007 | $81,600 | $25,000 | $0 | $0 | $0 |
| 2006 | $81,600 | $25,000 | $0 | $0 | $0 |
Deed and Sales History
| 1 | 09/20/2022 | DPR | DEED OF PERSONAL REPRESENTATIVE | JORDAN RUTH ESTATE OF | MILLER RONALD C | | | $0.00 | 144726 | 2022-07869 |
| 2 | 08/20/2014 | SWD | STATUTORY WARRANTY DEED | BUETTNER RICHARD E | JORDAN RUTH ESTATE OF | | | $133,000.00 | 126489 | 2014-06038 |
| 3 | 07/08/2009 | WARRANTY D | WARRANTY DEED | ALLEN, DOROTHY A | BUETTNER, RICHARD E | | | $142,500.00 | 116983 | 2009-06925 |
| 4 | 08/26/1997 | WARRANTY D | WARRANTY DEED | | | | | $22,900.00 | 88774 | 2559-707921 |
Payout Agreement
| No payout information available.. |