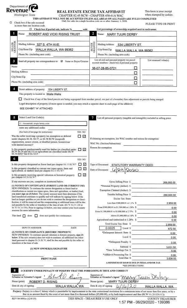
Property
Account |
| Property ID: | 29689 | Abbreviated Legal Description: | EJ PONTI'S GREEN ACRES LOT 3 |
| Parcel Number: | 350726600003 | Agent Code: | |
| Type: | Real | | |
| Tax Area: | 75 - CP 250 | Land Use Code | 11 |
| Open Space: | N | DFL | N |
| Historic Property: | N | Remodel Property: | N |
| Multi-Family Redevelopment: | N | | |
| Township: | 7 | Section: | 26 |
| Range: | 35 |
Location |
| Address: | 124 NW SPAGNUOLO LOOP WA 99324 | Mapsco: | |
| Neighborhood: | A SFR | Map ID: | |
| Neighborhood CD: | 113011 |
Owner |
| Name: | CHIN GILBERT | Owner ID: | 73625 |
| Mailing Address: | 141 EMARON DR SAN BRUNO, CA 94066 | % Ownership: | 100.0000000000% |
| | | Exemptions: | |
Taxes and Assessment Details
Values
| (+) Improvement Homesite Value: | + | $274,470 | |
| (+) Improvement Non-Homesite Value: | + | $0 | |
| (+) Land Homesite Value: | + | $70,000 | |
| (+) Land Non-Homesite Value: | + | $0 | |
| (+) Curr Use (HS): | + | $0 | $0 |
| (+) Curr Use (NHS): | + | $0 | $0 |
| | | -------------------------- | |
| (=) Market Value: | = | $344,470 | |
| (–) Productivity Loss: | – | $0 | |
| | | -------------------------- | |
| (=) Subtotal: | = | $344,470 | |
| (+) Senior Appraised Value: | + | $0 | |
| (+) Non-Senior Appraised Value: | + | $344,470 | |
| | | -------------------------- | |
| (=) Total Appraised Value: | = | $344,470 | |
| (–) Senior Exemption Loss: | – | $0 | |
| (–) Exemption Loss: | – | $0 | |
| | | -------------------------- | |
| (=) Taxable Value: | = | $344,470 | |
Taxing Jurisdiction
| Owner: | CHIN GILBERT | | |
| % Ownership: | 100.0000000000% | | |
| Total Value: | $344,470 | | |
| Tax Area: | 75 - CP 250 |
| CERFD | CURRENT EXPENSE REFUND 010 | 0.0000000000 | $344,470 | $344,470 | $0.00 | | |
| CURREXP | CURRENT EXPENSE 010 | 1.0175366760 | $344,470 | $344,470 | $350.51 | | |
| HUMNSERV | HUMAN SERVICES 119 | 0.0250000000 | $344,470 | $344,470 | $8.61 | | |
| SLDREL | SOLDIERS RELIEF 121 | 0.0155990005 | $344,470 | $344,470 | $5.37 | | |
| COLLPLBOND | C OF CP BOND 644 | 0.4374241808 | $344,470 | $344,470 | $150.68 | | |
| COLLPLGEN | CITY OF CP 632 | 1.4453819216 | $344,470 | $344,470 | $497.89 | | |
| EMERGSER | EMS 147 | 0.3792580840 | $344,470 | $344,470 | $130.64 | | |
| EMSRFD | EMS REFUND 147 | 0.0000000000 | $344,470 | $344,470 | $0.00 | | |
| RURALLIB | RURAL LIBRARY 623 | 0.3710609029 | $344,470 | $344,470 | $127.82 | | |
| PORTRFD | PORT REFUND 640 | 0.0000000000 | $344,470 | $344,470 | $0.00 | | |
| PORTWWGEN | PORT OF WW 640 | 0.2460186015 | $344,470 | $344,470 | $84.75 | | |
| SD250BOND | SD #250 BOND 773 | 1.4560608159 | $344,470 | $344,470 | $501.57 | | |
| SD250GEN | SD #250 GENERAL 770 | 2.3880724087 | $344,470 | $344,470 | $822.62 | | |
| ST2 | STATE SCHOOL PART 2 600 | 0.8131451643 | $344,470 | $344,470 | $280.10 | | |
| STATESCHL | STATE SCHOOL 600 | 1.5158548041 | $344,470 | $344,470 | $522.17 | | |
| STREFUND | STATE REFUND LEVY 603 | 0.0000000000 | $344,470 | $344,470 | $0.00 | | |
| | Total Tax Rate: | 10.1104125603 | | | | | |
| | | | | Taxes w/Current Exemptions: | $3,482.73 | | |
| | | | | Taxes w/o Exemptions: | $3,482.73 | | |
Improvement / Building
| Improvement #1: | RESIDENTIAL | State Code: | 11 | 1288.0 sqft | Value: | $274,470 |
| Exterior Wall: | PLYWOOD | Heating/Cooling: | WARM & COOLED AIR | | Number of Bathrooms: | 2 | Number of Bedrooms: | 3 | | Plumbing: | 9 | Roof Covering: | COMP SHINGLE |
|
| | Type | Description | Class CD | Sub Class CD | Year Built | Area |
| | MA | Main Area | 1 | 30 | 1997 | 1288.0 |
| | SI1 | SITE IMPROVEMENT | 1 | 30 | 1997 | 1.5 |
| | ATG | Attached Garage | 1 | 30 | 1997 | 484.0 |
| | RPC | OPEN PORCH W/ROOF , CEILED | 1 | 30 | 1997 | 136.0 |
| | RPC | OPEN PORCH W/ROOF , CEILED | 1 | 30 | 1997 | 130.0 |
Sketch
Property Image
Land
| 1 | RES 1 | Converted: Residential | 0.1925 | 8385.00 | 0.00 | 0.00 | 1.00 | $70,000 | $0 |
Roll Value History
| 2025 | N/A | N/A | N/A | N/A | N/A |
| 2024 | $274,470 | $70,000 | $0 | $344,470 | $344,470 |
| 2023 | $274,470 | $70,000 | $0 | $344,470 | $344,470 |
| 2022 | $249,520 | $70,000 | $0 | $319,520 | $95,030 |
| 2021 | $199,610 | $70,000 | $0 | $269,610 | $95,030 |
| 2020 | $142,580 | $70,000 | $0 | $212,580 | $95,030 |
| 2019 | $157,580 | $55,000 | $0 | $212,580 | $95,030 |
| 2018 | $132,420 | $55,000 | $0 | $187,420 | $95,030 |
| 2017 | $132,420 | $55,000 | $0 | $187,420 | $95,030 |
| 2016 | $120,380 | $55,000 | $0 | $175,380 | $95,030 |
| 2015 | $109,440 | $55,000 | $0 | $164,440 | $95,030 |
| 2014 | $91,200 | $55,000 | $0 | $146,200 | $146,200 |
| 2013 | $91,200 | $55,000 | $0 | $146,200 | $146,200 |
| 2012 | $91,200 | $55,000 | $0 | $0 | $0 |
| 2011 | $117,000 | $55,000 | $0 | $0 | $0 |
| 2010 | $108,800 | $55,000 | $0 | $0 | $0 |
| 2009 | $127,000 | $55,000 | $0 | $0 | $0 |
| 2008 | $90,500 | $30,000 | $0 | $0 | $0 |
| 2007 | $90,500 | $30,000 | $0 | $0 | $0 |
| 2006 | $90,500 | $30,000 | $0 | $0 | $0 |
Deed and Sales History
| 1 | 05/09/2023 | QCD | QUIT CLAIM DEED | CHIN MARISOL | CHIN GILBERT | | | | 145777 | 2023-02444 |
| 2 | 05/09/2023 | SWD | STATUTORY WARRANTY DEED | ROOF LAWRENCE E ESTATE OF | CHIN GILBERT | | | $367,000.00 | 145776 | 2023-02443 |
| 3 | 06/11/2014 | SWD | STATUTORY WARRANTY DEED | OLSEN MICHELE L | ROOF LAWRENCE E ESTATE OF | | | $177,000.00 | 126046 | 2014-04010 |
| 4 | 03/01/2011 | WARRANTY D | WARRANTY DEED | BARNETT, DONA ELL | OLSEN, MICHELE L | | | $147,500.00 | 119812 | 2011-01858 |
| 5 | 08/26/1999 | WARRANTY D | WARRANTY DEED | | | | | $119,450.00 | 93481 | 2889-910004 |
Payout Agreement
| No payout information available.. |