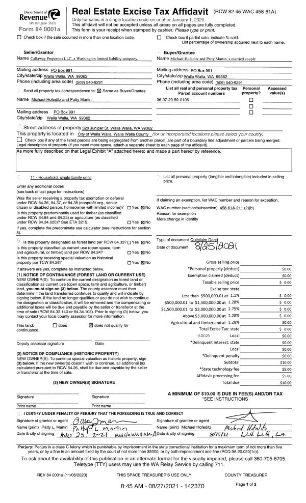
Property
Account |
| Property ID: | 29675 | Abbreviated Legal Description: | WALLULA TOWNSITE LOTS 1 THRU 4 BLK 4 |
| Parcel Number: | 310714510401 | Agent Code: | |
| Type: | Real | | |
| Tax Area: | 327 - 400-5-WI-C-M | Land Use Code | 11 |
| Open Space: | N | DFL | N |
| Historic Property: | N | Remodel Property: | N |
| Multi-Family Redevelopment: | N | | |
| Township: | 7 | Section: | 14 |
| Range: | 31 |
Location |
| Address: | 358 COLUMBIA WAY WA 99323 | Mapsco: | |
| Neighborhood: | Wallula A MH | Map ID: | |
| Neighborhood CD: | 213861 |
Owner |
| Name: | SKINNER LORI D | Owner ID: | 72643 |
| Mailing Address: | PO BOX 727 WALLULA, WA 99363 | % Ownership: | 100.0000000000% |
| | | Exemptions: | |
Taxes and Assessment Details
Values
| (+) Improvement Homesite Value: | + | $67,400 | |
| (+) Improvement Non-Homesite Value: | + | $0 | |
| (+) Land Homesite Value: | + | $36,430 | |
| (+) Land Non-Homesite Value: | + | $0 | |
| (+) Curr Use (HS): | + | $0 | $0 |
| (+) Curr Use (NHS): | + | $0 | $0 |
| | | -------------------------- | |
| (=) Market Value: | = | $103,830 | |
| (–) Productivity Loss: | – | $0 | |
| | | -------------------------- | |
| (=) Subtotal: | = | $103,830 | |
| (+) Senior Appraised Value: | + | $0 | |
| (+) Non-Senior Appraised Value: | + | $103,830 | |
| | | -------------------------- | |
| (=) Total Appraised Value: | = | $103,830 | |
| (–) Senior Exemption Loss: | – | $0 | |
| (–) Exemption Loss: | – | $0 | |
| | | -------------------------- | |
| (=) Taxable Value: | = | $103,830 | |
Taxing Jurisdiction
| Owner: | SKINNER LORI D | | |
| % Ownership: | 100.0000000000% | | |
| Total Value: | $103,830 | | |
| Tax Area: | 327 - 400-5-WI-C-M |
| CERFD | CURRENT EXPENSE REFUND 010 | 0.0000000000 | $103,830 | $103,830 | $0.00 | | |
| CURREXP | CURRENT EXPENSE 010 | 1.0175366760 | $103,830 | $103,830 | $105.65 | | |
| HUMNSERV | HUMAN SERVICES 119 | 0.0250000000 | $103,830 | $103,830 | $2.60 | | |
| SLDREL | SOLDIERS RELIEF 121 | 0.0155990005 | $103,830 | $103,830 | $1.62 | | |
| EMERGSER | EMS 147 | 0.3792580840 | $103,830 | $103,830 | $39.38 | | |
| EMSRFD | EMS REFUND 147 | 0.0000000000 | $103,830 | $103,830 | $0.00 | | |
| FD5EXP | FD #5 EXPENSE 689 | 1.2045331840 | $103,830 | $103,830 | $125.07 | | |
| RLBRFD | RURAL LIBRARY REFUND 623 | 0.0000000000 | $103,830 | $103,830 | $0.00 | | |
| RURALLIB | RURAL LIBRARY 623 | 0.3710609029 | $103,830 | $103,830 | $38.53 | | |
| PORTRFD | PORT REFUND 640 | 0.0000000000 | $103,830 | $103,830 | $0.00 | | |
| PORTWWGEN | PORT OF WW 640 | 0.2460186015 | $103,830 | $103,830 | $25.54 | | |
| SD400BOND | SD #400 BOND 793 | 0.0000000000 | $103,830 | $103,830 | $0.00 | | |
| SD400CAP | SD #400 CP 792 | 0.3443722657 | $103,830 | $103,830 | $35.76 | | |
| SD400GEN | SD #400 GENERAL 790 | 1.9278469916 | $103,830 | $103,830 | $200.17 | | |
| ST2 | STATE SCHOOL PART 2 600 | 0.8131451643 | $103,830 | $103,830 | $84.43 | | |
| STATESCHL | STATE SCHOOL 600 | 1.5158548041 | $103,830 | $103,830 | $157.39 | | |
| STREFUND | STATE REFUND LEVY 603 | 0.0000000000 | $103,830 | $103,830 | $0.00 | | |
| COROAD | COUNTY ROAD 115 | 1.6549953990 | $103,830 | $103,830 | $171.84 | | |
| CRPRD | COUNTY ROAD REFUND 115 | 0.0000000000 | $103,830 | $103,830 | $0.00 | | |
| | Total Tax Rate: | 9.5152210736 | | | | | |
| | | | | Taxes w/Current Exemptions: | $987.98 | | |
| | | | | Taxes w/o Exemptions: | $987.98 | | |
Improvement / Building
| Improvement #1: | MANUFACTURED HOME | State Code: | 11 | 1536.0 sqft | Value: | $67,400 |
| Exterior Wall: | METAL/STEEL | Heating/Cooling: | HEAT PUMP | | Number of Bathrooms: | 2 | Number of Bedrooms: | 3 | | Plumbing: | 9 | Roof Covering: | GALVANIZED METAL |
|
| | Type | Description | Class CD | Sub Class CD | Year Built | Area |
| | MOBHOME | MANUFACTURD HOMES | 1 | 20 | 1979 | 1536.0 |
| | MI1 | MH SET-UP COSTS | 1 | 20 | 1979 | 1.0 |
| | CPCD | CARPORT/DIRT FLOOR | 1 | 20 | 1979 | 288.0 |
| | WOD | Wood Deck | 1 | 20 | 1979 | 180.0 |
| | WOD | Wood Deck | 1 | 20 | 1979 | 84.0 |
| | TOOL | TOOL SHED | 1 | 20 | 1979 | 144.0 |
Sketch
Property Image
Land
| 1 | RES 1 | Converted: Residential | 0.4752 | 20700.00 | 0.00 | 0.00 | 1.00 | $36,430 | $0 |
Roll Value History
| 2025 | N/A | N/A | N/A | N/A | N/A |
| 2024 | $67,400 | $36,430 | $0 | $103,830 | $103,830 |
| 2023 | $67,400 | $36,430 | $0 | $103,830 | $103,830 |
| 2022 | $67,400 | $36,430 | $0 | $103,830 | $103,830 |
| 2021 | $44,930 | $36,430 | $0 | $81,360 | $0 |
| 2020 | $45,830 | $13,000 | $0 | $58,830 | $0 |
| 2019 | $45,830 | $13,000 | $0 | $58,830 | $0 |
| 2018 | $30,560 | $13,000 | $0 | $43,560 | $0 |
| 2017 | $29,100 | $13,000 | $0 | $42,100 | $0 |
| 2016 | $29,100 | $13,000 | $0 | $42,100 | $0 |
| 2015 | $29,100 | $13,000 | $0 | $42,100 | $0 |
| 2014 | $29,100 | $13,000 | $0 | $42,100 | $0 |
| 2013 | $29,100 | $13,000 | $0 | $42,100 | $0 |
| 2012 | $29,100 | $13,000 | $0 | $0 | $0 |
| 2011 | $29,100 | $13,000 | $0 | $0 | $0 |
| 2010 | $29,100 | $13,000 | $0 | $0 | $0 |
| 2009 | $38,400 | $10,800 | $0 | $0 | $0 |
| 2008 | $38,400 | $10,800 | $0 | $0 | $0 |
| 2007 | $38,400 | $10,800 | $0 | $0 | $0 |
| 2006 | $38,400 | $10,800 | $0 | $0 | $0 |
Deed and Sales History
| 1 | 11/04/2024 | SURVEY | SURVEY | | | | | | 0 | 2024-06423 |
| 2 | 09/30/2024 | QCD | QUIT CLAIM DEED | SKINNER LORI D | FLIPPO BRYCE & ASHLEY | | | | 148289 | 2024-05637 |
| 3 | 06/24/2024 | REET | REAL ESTATE AFFIDAVIT | SKINNER LORI D | FLIPPO BRYCE & ASHLEY | | | | 147760 | |
| 4 | 08/02/2024 | SURVEY | SURVEY | | | | | | 0 | 2024-04228 |
| 5 | 04/23/2024 | MH AFFIDAV | MOBILE HOME AFFIDAVIT | SKINNER LORI D | FRAY JAVIER CRUZ PEREZ | | | $24,000.00 | 147431 | MHAFF-147431 |
| 6 | 10/06/2023 | MH AFFIDAV | MOBILE HOME AFFIDAVIT | BRONNIMAN WALTER L ESTATE OF | SKINNER LORI D | | | | 146602 | MHAFF-146602 |
| 7 | 10/17/2022 | LOPA | LACK OF PROBATE AFFIDAVIT | BRONNIMAN WALTER L ESTATE OF | SKINNER LORI D | 2-PARCELS | | $0.00 | 144882 | 2022-08576 |
| 8 | 11/30/2020 | LOPA | LACK OF PROBATE AFFIDAVIT | BRONNIMAN WALTER & JOYCE | BRONNIMAN WALTER L ESTATE OF | | | $0.00 | 141269 | 2021-04009 |
| 9 | 08/12/1993 | WARRANTY D | WARRANTY DEED | | | | | $12,500.00 | 79726 | 2099-308280 |
Payout Agreement
| No payout information available.. |