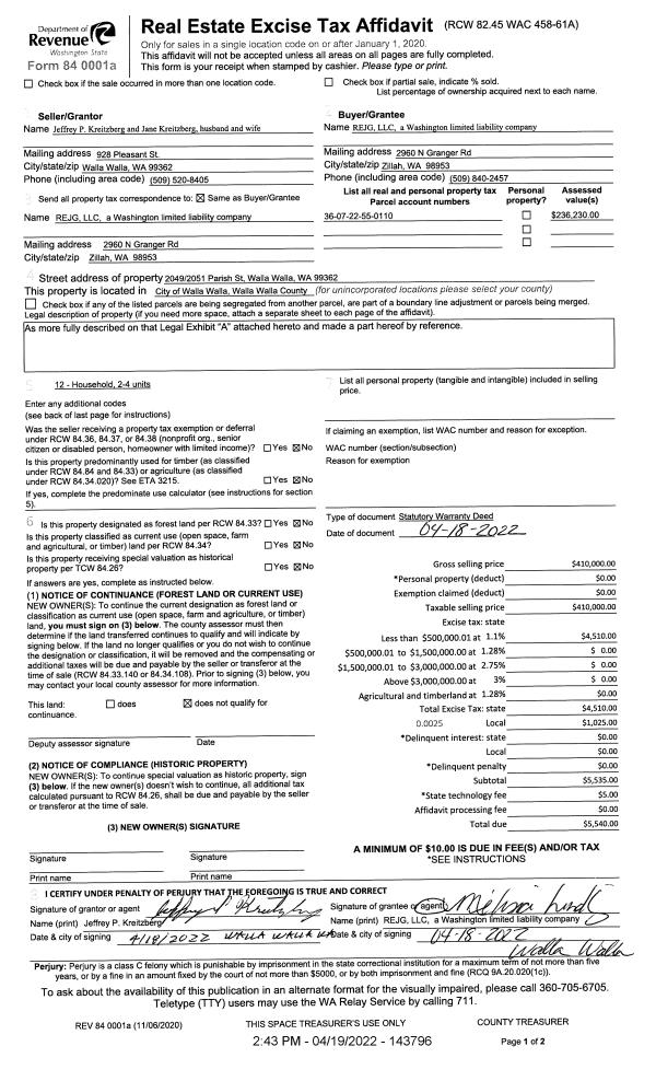
Property
Account |
| Property ID: | 29613 | Abbreviated Legal Description: | MELODY PARK TERRACE LOT 76 |
| Parcel Number: | 360716540076 | Agent Code: | |
| Type: | Real | | |
| Tax Area: | 5 - OL-140 | Land Use Code | 11 |
| Open Space: | N | DFL | N |
| Historic Property: | N | Remodel Property: | N |
| Multi-Family Redevelopment: | N | | |
| Township: | 7 | Section: | 16 |
| Range: | 36 |
Location |
| Address: | 2049 COOKERLY DR WA 99362 | Mapsco: | |
| Neighborhood: | A-SFR | Map ID: | |
| Neighborhood CD: | 313011 |
Owner |
| Name: | TOIKKA ERICA | Owner ID: | 68037 |
| Mailing Address: | 2049 COOKERLY DR WALLA WALLA, WA 99362 | % Ownership: | 100.0000000000% |
| | | Exemptions: | |
Taxes and Assessment Details
Values
| (+) Improvement Homesite Value: | + | $0 | |
| (+) Improvement Non-Homesite Value: | + | $208,010 | |
| (+) Land Homesite Value: | + | $0 | |
| (+) Land Non-Homesite Value: | + | $90,000 | |
| (+) Curr Use (HS): | + | $0 | $0 |
| (+) Curr Use (NHS): | + | $0 | $0 |
| | | -------------------------- | |
| (=) Market Value: | = | $298,010 | |
| (–) Productivity Loss: | – | $0 | |
| | | -------------------------- | |
| (=) Subtotal: | = | $298,010 | |
| (+) Senior Appraised Value: | + | $0 | |
| (+) Non-Senior Appraised Value: | + | $298,010 | |
| | | -------------------------- | |
| (=) Total Appraised Value: | = | $298,010 | |
| (–) Senior Exemption Loss: | – | $0 | |
| (–) Exemption Loss: | – | $0 | |
| | | -------------------------- | |
| (=) Taxable Value: | = | $298,010 | |
Taxing Jurisdiction
| Owner: | TOIKKA ERICA | | |
| % Ownership: | 100.0000000000% | | |
| Total Value: | $298,010 | | |
| Tax Area: | 5 - OL-140 |
| CERFD | CURRENT EXPENSE REFUND 010 | 0.0000000000 | $298,010 | $298,010 | $0.00 | | |
| CURREXP | CURRENT EXPENSE 010 | 1.0175366760 | $298,010 | $298,010 | $303.24 | | |
| HUMNSERV | HUMAN SERVICES 119 | 0.0250000000 | $298,010 | $298,010 | $7.45 | | |
| SLDREL | SOLDIERS RELIEF 121 | 0.0155990005 | $298,010 | $298,010 | $4.65 | | |
| EMERGSER | EMS 147 | 0.3792580840 | $298,010 | $298,010 | $113.02 | | |
| EMSRFD | EMS REFUND 147 | 0.0000000000 | $298,010 | $298,010 | $0.00 | | |
| PORTRFD | PORT REFUND 640 | 0.0000000000 | $298,010 | $298,010 | $0.00 | | |
| PORTWWGEN | PORT OF WW 640 | 0.2460186015 | $298,010 | $298,010 | $73.32 | | |
| SD140BOND | SD #140 BOND 764 | 0.8342371393 | $298,010 | $298,010 | $248.61 | | |
| SD140GEN | SD #140 GENERAL 760 | 2.0646500647 | $298,010 | $298,010 | $615.29 | | |
| ST2 | STATE SCHOOL PART 2 600 | 0.8131451643 | $298,010 | $298,010 | $242.33 | | |
| STATESCHL | STATE SCHOOL 600 | 1.5158548041 | $298,010 | $298,010 | $451.74 | | |
| STREFUND | STATE REFUND LEVY 603 | 0.0000000000 | $298,010 | $298,010 | $0.00 | | |
| CWWBOND | C OF WW BOND 643 | 0.2760494372 | $298,010 | $298,010 | $82.27 | | |
| CWWGEN | CITY OF WW 631 | 1.6100204973 | $298,010 | $298,010 | $479.80 | | |
| CWWRFD | CITY OF WALLA WALLA REFUND 631 | 0.0000000000 | $298,010 | $298,010 | $0.00 | | |
| | Total Tax Rate: | 8.7973694689 | | | | | |
| | | | | Taxes w/Current Exemptions: | $2,621.72 | | |
| | | | | Taxes w/o Exemptions: | $2,621.72 | | |
Improvement / Building
| Improvement #1: | RESIDENTIAL | State Code: | 11 | 1160.0 sqft | Value: | $208,010 |
| Exterior Wall: | PLYWOOD | Heating/Cooling: | WARM & COOLED AIR | | Number of Bathrooms: | 1.5 | Number of Bedrooms: | 3 | | Plumbing: | 9 | Roof Covering: | COMP SHINGLE |
|
| | Type | Description | Class CD | Sub Class CD | Year Built | Area |
| | MA | Main Area | 1 | 30 | 1967 | 1160.0 |
| | SI1 | SITE IMPROVEMENT | 1 | 30 | 1967 | 2.0 |
| | BASE | BASEMENT | 1 | 30 | 1967 | 1160.0 |
| | S1F | Single One Story Fireplace | 1 | 30 | 1967 | 1.0 |
| | RPC | OPEN PORCH W/ROOF , CEILED | 1 | 30 | 1967 | 88.0 |
| | CPC | COVERED CARPORT/PATIO | 1 | 30 | 1967 | 600.0 |
Sketch
Property Image
Land
| 1 | RES 1 | Converted: Residential | 0.1710 | 7450.00 | 0.00 | 0.00 | 1.00 | $90,000 | $0 |
Roll Value History
| 2025 | N/A | N/A | N/A | N/A | N/A |
| 2024 | $208,010 | $90,000 | $0 | $298,010 | $298,010 |
| 2023 | $208,010 | $90,000 | $0 | $298,010 | $298,010 |
| 2022 | $208,010 | $90,000 | $0 | $298,010 | $298,010 |
| 2021 | $167,450 | $55,000 | $0 | $222,450 | $222,450 |
| 2020 | $159,480 | $55,000 | $0 | $214,480 | $214,480 |
| 2019 | $159,480 | $55,000 | $0 | $214,480 | $214,480 |
| 2018 | $127,580 | $55,000 | $0 | $182,580 | $182,580 |
| 2017 | $115,980 | $55,000 | $0 | $170,980 | $170,980 |
| 2016 | $105,440 | $55,000 | $0 | $160,440 | $160,440 |
| 2015 | $104,740 | $55,000 | $0 | $159,740 | $159,740 |
| 2014 | $95,000 | $55,000 | $0 | $150,000 | $150,000 |
| 2013 | $95,000 | $55,000 | $0 | $150,000 | $150,000 |
| 2012 | $95,000 | $55,000 | $0 | $0 | $0 |
| 2011 | $95,000 | $55,000 | $0 | $0 | $0 |
| 2010 | $111,600 | $40,000 | $0 | $0 | $0 |
| 2009 | $128,400 | $40,000 | $0 | $0 | $0 |
| 2008 | $94,700 | $40,000 | $0 | $0 | $0 |
| 2007 | $94,700 | $40,000 | $0 | $0 | $0 |
| 2006 | $73,200 | $25,000 | $0 | $0 | $0 |
Deed and Sales History
| 1 | 10/01/2020 | SWD | STATUTORY WARRANTY DEED | MINGS SHANE D & JACQUELINE K | TOIKKA ERICA | | | $226,500.00 | 140014 | 2020-10084 |
| 2 | 06/29/2016 | SWD | STATUTORY WARRANTY DEED | RENICK MARIANNE ET AL | MINGS SHANE D & JACQUELINE K | | | $183,500.00 | 130517 | 2016-05019 |
| 3 | 12/07/2015 | DEATH CERT | DEATH CERTIFICATE | UNCK JOHANNA ELIZABETH | RENICK MARIANNE ET AL | | | | 0 | 2015-10457 |
| 4 | | DEATH CERT | DEATH CERTIFICATE | UNCK BAREND | | | | | 0 | 2015-10456 |
| 5 | 04/17/1967 | WARRANTY D | WARRANTY DEED | | | | | $18,400.00 | 0 | 3220-484968 |
Payout Agreement
| No payout information available.. |