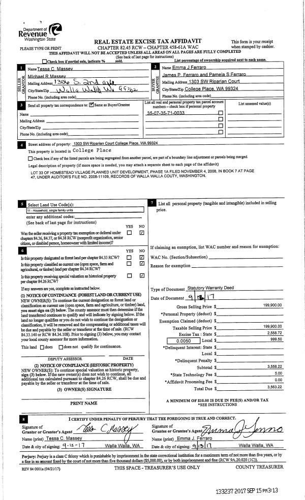
Property
Account |
| Property ID: | 29594 | Abbreviated Legal Description: | HENDERSON LOT 11 BLK 2 WLY 3.9' OF LOT 12 BLK 2 |
| Parcel Number: | 360729680211 | Agent Code: | |
| Type: | Real | | |
| Tax Area: | 1 - OL-140-F | Land Use Code | 11 |
| Open Space: | N | DFL | N |
| Historic Property: | N | Remodel Property: | N |
| Multi-Family Redevelopment: | N | | |
| Township: | 7 | Section: | 29 |
| Range: | 36 |
Location |
| Address: | 308 MALCOLM ST WA 99362 | Mapsco: | |
| Neighborhood: | Fair Res | Map ID: | |
| Neighborhood CD: | 612011 |
Owner |
| Name: | CAMPOS LUNIS M | Owner ID: | 61901 |
| Mailing Address: | 308 MALCOLM ST WALLA WALLA, WA 99362 | % Ownership: | 100.0000000000% |
| | | Exemptions: | |
Taxes and Assessment Details
Values
| (+) Improvement Homesite Value: | + | $123,260 | |
| (+) Improvement Non-Homesite Value: | + | $0 | |
| (+) Land Homesite Value: | + | $42,400 | |
| (+) Land Non-Homesite Value: | + | $0 | |
| (+) Curr Use (HS): | + | $0 | $0 |
| (+) Curr Use (NHS): | + | $0 | $0 |
| | | -------------------------- | |
| (=) Market Value: | = | $165,660 | |
| (–) Productivity Loss: | – | $0 | |
| | | -------------------------- | |
| (=) Subtotal: | = | $165,660 | |
| (+) Senior Appraised Value: | + | $0 | |
| (+) Non-Senior Appraised Value: | + | $165,660 | |
| | | -------------------------- | |
| (=) Total Appraised Value: | = | $165,660 | |
| (–) Senior Exemption Loss: | – | $0 | |
| (–) Exemption Loss: | – | $0 | |
| | | -------------------------- | |
| (=) Taxable Value: | = | $165,660 | |
Taxing Jurisdiction
| Owner: | CAMPOS LUNIS M | | |
| % Ownership: | 100.0000000000% | | |
| Total Value: | $165,660 | | |
| Tax Area: | 1 - OL-140-F |
| CERFD | CURRENT EXPENSE REFUND 010 | 0.0000000000 | $165,660 | $165,660 | $0.00 | | |
| CURREXP | CURRENT EXPENSE 010 | 1.0175366760 | $165,660 | $165,660 | $168.57 | | |
| HUMNSERV | HUMAN SERVICES 119 | 0.0250000000 | $165,660 | $165,660 | $4.14 | | |
| SLDREL | SOLDIERS RELIEF 121 | 0.0155990005 | $165,660 | $165,660 | $2.58 | | |
| EMERGSER | EMS 147 | 0.3792580840 | $165,660 | $165,660 | $62.83 | | |
| EMSRFD | EMS REFUND 147 | 0.0000000000 | $165,660 | $165,660 | $0.00 | | |
| PORTRFD | PORT REFUND 640 | 0.0000000000 | $165,660 | $165,660 | $0.00 | | |
| PORTWWGEN | PORT OF WW 640 | 0.2460186015 | $165,660 | $165,660 | $40.76 | | |
| SD140BOND | SD #140 BOND 764 | 0.8342371393 | $165,660 | $165,660 | $138.20 | | |
| SD140GEN | SD #140 GENERAL 760 | 2.0646500647 | $165,660 | $165,660 | $342.03 | | |
| ST2 | STATE SCHOOL PART 2 600 | 0.8131451643 | $165,660 | $165,660 | $134.71 | | |
| STATESCHL | STATE SCHOOL 600 | 1.5158548041 | $165,660 | $165,660 | $251.12 | | |
| STREFUND | STATE REFUND LEVY 603 | 0.0000000000 | $165,660 | $165,660 | $0.00 | | |
| CWWBOND | C OF WW BOND 643 | 0.2760494372 | $165,660 | $165,660 | $45.73 | | |
| CWWGEN | CITY OF WW 631 | 1.6100204973 | $165,660 | $165,660 | $266.72 | | |
| CWWRFD | CITY OF WALLA WALLA REFUND 631 | 0.0000000000 | $165,660 | $165,660 | $0.00 | | |
| | Total Tax Rate: | 8.7973694689 | | | | | |
| | | | | Taxes w/Current Exemptions: | $1,457.39 | | |
| | | | | Taxes w/o Exemptions: | $1,457.39 | | |
Improvement / Building
| Improvement #1: | RESIDENTIAL | State Code: | 11 | 907.0 sqft | Value: | $123,260 |
| Exterior Wall: | HARDBOARD | Heating/Cooling: | BASEBOARD ELECTRIC | | Number of Bathrooms: | 1 | Number of Bedrooms: | 2 | | Plumbing: | 7 | Roof Covering: | COMP SHINGLE |
|
| | Type | Description | Class CD | Sub Class CD | Year Built | Area |
| | MA | Main Area | 1 | 15 | 1937 | 907.0 |
| | SI1 | SITE IMPROVEMENT | 1 | 15 | 1937 | 1.0 |
| | ATG | Attached Garage | 1 | 15 | 1937 | 420.0 |
| | RPO | OPEN PORCH W/ROOF | 1 | 15 | 1937 | 25.0 |
| | CPC | COVERED CARPORT/PATIO | 1 | 15 | 1937 | 140.0 |
Sketch
Property Image
Land
| 1 | RES 1 | Converted: Residential | 0.1217 | 5300.00 | 0.00 | 0.00 | 1.00 | $42,400 | $0 |
Roll Value History
| 2025 | N/A | N/A | N/A | N/A | N/A |
| 2024 | $123,260 | $42,400 | $0 | $165,660 | $165,660 |
| 2023 | $123,260 | $42,400 | $0 | $165,660 | $165,660 |
| 2022 | $123,260 | $33,130 | $0 | $156,390 | $156,390 |
| 2021 | $88,040 | $33,130 | $0 | $121,170 | $121,170 |
| 2020 | $73,370 | $33,130 | $0 | $106,500 | $106,500 |
| 2019 | $73,370 | $33,130 | $0 | $106,500 | $106,500 |
| 2018 | $74,690 | $31,800 | $0 | $106,490 | $106,490 |
| 2017 | $74,690 | $31,800 | $0 | $106,490 | $106,490 |
| 2016 | $67,900 | $31,800 | $0 | $99,700 | $39,700 |
| 2015 | $48,500 | $31,800 | $0 | $80,300 | $20,300 |
| 2014 | $48,500 | $31,800 | $0 | $80,300 | $20,300 |
| 2013 | $48,500 | $31,800 | $0 | $80,300 | $20,300 |
| 2012 | $68,600 | $31,800 | $0 | $0 | $0 |
| 2011 | $68,600 | $31,800 | $0 | $0 | $0 |
| 2010 | $68,600 | $31,800 | $0 | $0 | $0 |
| 2009 | $79,800 | $31,800 | $0 | $0 | $0 |
| 2008 | $79,800 | $31,800 | $0 | $0 | $0 |
| 2007 | $48,800 | $10,600 | $0 | $0 | $0 |
| 2006 | $48,800 | $10,600 | $0 | $0 | $0 |
Deed and Sales History
| 1 | 10/05/2017 | SWD | STATUTORY WARRANTY DEED | SEELIGER STANLEY | CAMPOS LUNIS M | | | $99,500.00 | 133354 | 2017-07921 |
| 2 | 04/11/1974 | WARRANTY D | WARRANTY DEED | | | | | $5,212.00 | 0 | 1505-36012 |
Payout Agreement
| No payout information available.. |