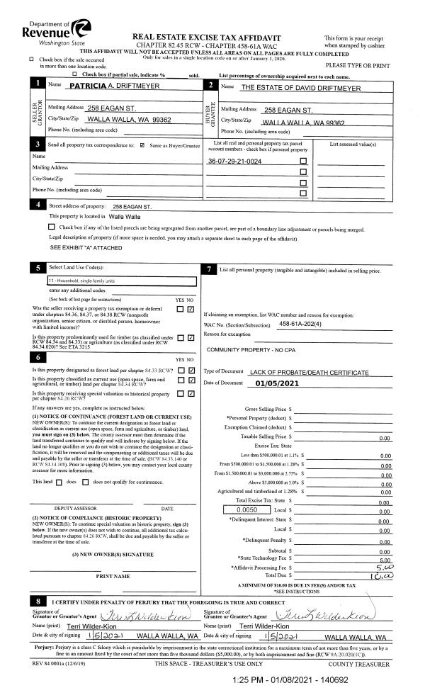
Property
Account |
| Property ID: | 29575 | Abbreviated Legal Description: | SCARPELLIS LOT 1 BLK 1 |
| Parcel Number: | 360728690101 | Agent Code: | |
| Type: | Real | | |
| Tax Area: | 1 - OL-140-F | Land Use Code | 11 |
| Open Space: | N | DFL | N |
| Historic Property: | N | Remodel Property: | N |
| Multi-Family Redevelopment: | N | | |
| Township: | 7 | Section: | 28 |
| Range: | 36 |
Location |
| Address: | 503 STONE ST WA 99362 | Mapsco: | |
| Neighborhood: | G Res | Map ID: | |
| Neighborhood CD: | 614011 |
Owner |
| Name: | FERRARO NATHAN & GEORGINA | Owner ID: | 68466 |
| Mailing Address: | 503 STONE ST WALLA WALLA, WA 99362 | % Ownership: | 100.0000000000% |
| | | Exemptions: | |
Taxes and Assessment Details
Values
| (+) Improvement Homesite Value: | + | $305,070 | |
| (+) Improvement Non-Homesite Value: | + | $0 | |
| (+) Land Homesite Value: | + | $90,000 | |
| (+) Land Non-Homesite Value: | + | $0 | |
| (+) Curr Use (HS): | + | $0 | $0 |
| (+) Curr Use (NHS): | + | $0 | $0 |
| | | -------------------------- | |
| (=) Market Value: | = | $395,070 | |
| (–) Productivity Loss: | – | $0 | |
| | | -------------------------- | |
| (=) Subtotal: | = | $395,070 | |
| (+) Senior Appraised Value: | + | $0 | |
| (+) Non-Senior Appraised Value: | + | $395,070 | |
| | | -------------------------- | |
| (=) Total Appraised Value: | = | $395,070 | |
| (–) Senior Exemption Loss: | – | $0 | |
| (–) Exemption Loss: | – | $0 | |
| | | -------------------------- | |
| (=) Taxable Value: | = | $395,070 | |
Taxing Jurisdiction
| Owner: | FERRARO NATHAN & GEORGINA | | |
| % Ownership: | 100.0000000000% | | |
| Total Value: | $395,070 | | |
| Tax Area: | 1 - OL-140-F |
| CERFD | CURRENT EXPENSE REFUND 010 | 0.0000000000 | $395,070 | $395,070 | $0.00 | | |
| CURREXP | CURRENT EXPENSE 010 | 1.0175366760 | $395,070 | $395,070 | $402.00 | | |
| HUMNSERV | HUMAN SERVICES 119 | 0.0250000000 | $395,070 | $395,070 | $9.88 | | |
| SLDREL | SOLDIERS RELIEF 121 | 0.0155990005 | $395,070 | $395,070 | $6.16 | | |
| EMERGSER | EMS 147 | 0.3792580840 | $395,070 | $395,070 | $149.83 | | |
| EMSRFD | EMS REFUND 147 | 0.0000000000 | $395,070 | $395,070 | $0.00 | | |
| PORTRFD | PORT REFUND 640 | 0.0000000000 | $395,070 | $395,070 | $0.00 | | |
| PORTWWGEN | PORT OF WW 640 | 0.2460186015 | $395,070 | $395,070 | $97.19 | | |
| SD140BOND | SD #140 BOND 764 | 0.8342371393 | $395,070 | $395,070 | $329.58 | | |
| SD140GEN | SD #140 GENERAL 760 | 2.0646500647 | $395,070 | $395,070 | $815.68 | | |
| ST2 | STATE SCHOOL PART 2 600 | 0.8131451643 | $395,070 | $395,070 | $321.25 | | |
| STATESCHL | STATE SCHOOL 600 | 1.5158548041 | $395,070 | $395,070 | $598.87 | | |
| STREFUND | STATE REFUND LEVY 603 | 0.0000000000 | $395,070 | $395,070 | $0.00 | | |
| CWWBOND | C OF WW BOND 643 | 0.2760494372 | $395,070 | $395,070 | $109.06 | | |
| CWWGEN | CITY OF WW 631 | 1.6100204973 | $395,070 | $395,070 | $636.07 | | |
| CWWRFD | CITY OF WALLA WALLA REFUND 631 | 0.0000000000 | $395,070 | $395,070 | $0.00 | | |
| | Total Tax Rate: | 8.7973694689 | | | | | |
| | | | | Taxes w/Current Exemptions: | $3,475.57 | | |
| | | | | Taxes w/o Exemptions: | $3,475.57 | | |
Improvement / Building
| Improvement #1: | RESIDENTIAL | State Code: | 11 | 1042.0 sqft | Value: | $305,070 |
| Exterior Wall: | SIDING | Heating/Cooling: | WARM & COOLED AIR | | Number of Bathrooms: | 1 | Number of Bedrooms: | 3 | | Plumbing: | 7 | Roof Covering: | COMP SHINGLE |
|
| | Type | Description | Class CD | Sub Class CD | Year Built | Area |
| | MA | Main Area | 1 | 30 | 1953 | 1042.0 |
| | SI1 | SITE IMPROVEMENT | 1 | 30 | 1953 | 3.0 |
| | BASE | BASEMENT | 1 | 30 | 1953 | 1042.0 |
| | BPF | BASEMENT -PARTITIONED FINISH | 1 | 30 | 1953 | 1042.0 |
| | ATG | Attached Garage | 1 | 30 | 1953 | 480.0 |
| | S1F | Single One Story Fireplace | 1 | 30 | 1953 | 1.0 |
| | CPC | COVERED CARPORT/PATIO | 1 | 30 | 1953 | 384.0 |
| | PRC | PORCH W STEPS, ROOF,CEILED | 1 | 30 | 1953 | 15.0 |
Sketch
Property Image
Land
| 1 | RES 1 | Converted: Residential | 0.2066 | 9000.00 | 0.00 | 0.00 | 1.00 | $90,000 | $0 |
Roll Value History
| 2025 | N/A | N/A | N/A | N/A | N/A |
| 2024 | $305,070 | $90,000 | $0 | $395,070 | $395,070 |
| 2023 | $305,070 | $90,000 | $0 | $395,070 | $395,070 |
| 2022 | $305,070 | $74,250 | $0 | $379,320 | $379,320 |
| 2021 | $217,910 | $74,250 | $0 | $292,160 | $292,160 |
| 2020 | $167,620 | $74,250 | $0 | $241,870 | $241,870 |
| 2019 | $167,620 | $74,250 | $0 | $241,870 | $18,400 |
| 2018 | $185,700 | $46,300 | $0 | $232,000 | $18,400 |
| 2017 | $168,820 | $46,300 | $0 | $215,120 | $18,400 |
| 2016 | $146,800 | $46,300 | $0 | $193,100 | $18,400 |
| 2015 | $146,800 | $46,300 | $0 | $193,100 | $18,400 |
| 2014 | $146,800 | $46,300 | $0 | $193,100 | $18,400 |
| 2013 | $146,800 | $46,300 | $0 | $193,100 | $18,400 |
| 2012 | $146,800 | $46,300 | $0 | $0 | $0 |
| 2011 | $146,800 | $46,300 | $0 | $0 | $0 |
| 2010 | $121,600 | $46,300 | $0 | $0 | $0 |
| 2009 | $140,300 | $46,300 | $0 | $0 | $0 |
| 2008 | $140,300 | $46,300 | $0 | $0 | $0 |
| 2007 | $91,800 | $23,800 | $0 | $0 | $0 |
| 2006 | $91,800 | $23,800 | $0 | $0 | $0 |
Deed and Sales History
| 1 | 11/25/2020 | SWD | STATUTORY WARRANTY DEED | SHAW ALICE C | FERRARO NATHAN & GEORGINA | | | $300,000.00 | 140425 | 2020-12500 |
| 2 | 11/25/2020 | LOPA | LACK OF PROBATE AFFIDAVIT | SHAW WILLIAM J & ALICE C | SHAW ALICE C | | | $0.00 | 140424 | 2020-13023 |
| 3 | 07/17/1985 | WARRANTY D | WARRANTY DEED | | | | | $61,500.00 | 0 | 1518-504738 |
Payout Agreement
| No payout information available.. |