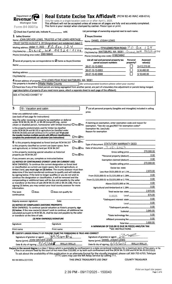
Property
Account |
| Property ID: | 29550 | Abbreviated Legal Description: | PARKWOOD HEIGHTS LOT 7 BLK 1 |
| Parcel Number: | 360732750107 | Agent Code: | |
| Type: | Real | | |
| Tax Area: | 1 - OL-140-F | Land Use Code | 11 |
| Open Space: | N | DFL | N |
| Historic Property: | N | Remodel Property: | N |
| Multi-Family Redevelopment: | N | | |
| Township: | 7 | Section: | 32 |
| Range: | 36 |
Location |
| Address: | 14 PARKWOOD CIR WALLA WALLA, WA 99362 | Mapsco: | |
| Neighborhood: | G Res | Map ID: | |
| Neighborhood CD: | 614011 |
Owner |
| Name: | BRADFORD LAURA L | Owner ID: | 60539 |
| Mailing Address: | 14 PARKWOOD CIRCLE WALLA WALLA, WA 99362 | % Ownership: | 100.0000000000% |
| | | Exemptions: | SNR/DSBL |
Taxes and Assessment Details
Values
| (+) Improvement Homesite Value: | + | $331,780 | |
| (+) Improvement Non-Homesite Value: | + | $0 | |
| (+) Land Homesite Value: | + | $100,000 | |
| (+) Land Non-Homesite Value: | + | $0 | |
| (+) Curr Use (HS): | + | $0 | $0 |
| (+) Curr Use (NHS): | + | $0 | $0 |
| | | -------------------------- | |
| (=) Market Value: | = | $431,780 | |
| (–) Productivity Loss: | – | $0 | |
| | | -------------------------- | |
| (=) Subtotal: | = | $431,780 | |
| (+) Senior Appraised Value: | + | $157,800 | |
| (+) Non-Senior Appraised Value: | + | $0 | |
| | | -------------------------- | |
| (=) Total Appraised Value: | = | $157,800 | |
| (–) Senior Exemption Loss: | – | $94,680 | |
| (–) Exemption Loss: | – | $0 | |
| | | -------------------------- | |
| (=) Taxable Value: | = | $63,120 | |
Taxing Jurisdiction
| Owner: | BRADFORD LAURA L | | |
| % Ownership: | 100.0000000000% | | |
| Total Value: | $431,780 | | |
| Tax Area: | 1 - OL-140-F |
| CERFD | CURRENT EXPENSE REFUND 010 | 0.0000000000 | $431,780 | $63,120 | $0.00 | | |
| CURREXP | CURRENT EXPENSE 010 | 1.0175366760 | $431,780 | $63,120 | $64.23 | | |
| HUMNSERV | HUMAN SERVICES 119 | 0.0250000000 | $431,780 | $63,120 | $1.58 | | |
| SLDREL | SOLDIERS RELIEF 121 | 0.0155990005 | $431,780 | $63,120 | $0.98 | | |
| EMERGSER | EMS 147 | 0.3792580840 | $431,780 | $63,120 | $23.94 | | |
| EMSRFD | EMS REFUND 147 | 0.0000000000 | $431,780 | $63,120 | $0.00 | | |
| PORTRFD | PORT REFUND 640 | 0.0000000000 | $431,780 | $63,120 | $0.00 | | |
| PORTWWGEN | PORT OF WW 640 | 0.2460186015 | $431,780 | $63,120 | $15.53 | | |
| SD140BOND | SD #140 BOND 764 | 0.0000000000 | $431,780 | $0 | $0.00 | | |
| SD140GEN | SD #140 GENERAL 760 | 0.0000000000 | $431,780 | $0 | $0.00 | | |
| ST2 | STATE SCHOOL PART 2 600 | 0.0000000000 | $431,780 | $0 | $0.00 | | |
| STATESCHL | STATE SCHOOL 600 | 1.5158548041 | $431,780 | $63,120 | $95.68 | | |
| STREFUND | STATE REFUND LEVY 603 | 0.0000000000 | $431,780 | $63,120 | $0.00 | | |
| CWWBOND | C OF WW BOND 643 | 0.0000000000 | $431,780 | $0 | $0.00 | | |
| CWWGEN | CITY OF WW 631 | 1.6100204973 | $431,780 | $63,120 | $101.62 | | |
| CWWRFD | CITY OF WALLA WALLA REFUND 631 | 0.0000000000 | $431,780 | $63,120 | $0.00 | | |
| | Total Tax Rate: | 4.8092876634 | | | | | |
| | | | | Taxes w/Current Exemptions: | $303.56 | | |
| | | | | Taxes w/o Exemptions: | $3,798.53 | | |
Improvement / Building
| Improvement #1: | RESIDENTIAL | State Code: | 11 | 1520.0 sqft | Value: | $331,780 |
| Exterior Wall: | VINYL | Heating/Cooling: | WARM & COOLED AIR | | Number of Bathrooms: | 2 | Number of Bedrooms: | 3 | | Plumbing: | 9 | Roof Covering: | COMP SHINGLE |
|
| | Type | Description | Class CD | Sub Class CD | Year Built | Area |
| | MA | Main Area | 1 | 40 | 1998 | 1520.0 |
| | SI1 | SITE IMPROVEMENT | 1 | 40 | 1998 | 2.0 |
| | ATG | Attached Garage | 1 | 40 | 1998 | 520.0 |
| | CPC | COVERED CARPORT/PATIO | 1 | 40 | 1998 | 322.0 |
| | S1F | Single One Story Fireplace | 1 | 40 | 1998 | 1.0 |
| | OSP | Open | 1 | 40 | 1998 | 10.0 |
Sketch
Property Image
Land
| 1 | RES 1 | Converted: Residential | 0.1827 | 7958.00 | 0.00 | 0.00 | 1.00 | $100,000 | $0 |
Roll Value History
| 2025 | N/A | N/A | N/A | N/A | N/A |
| 2024 | $331,780 | $100,000 | $0 | $431,780 | $63,120 |
| 2023 | $331,780 | $100,000 | $0 | $431,780 | $63,120 |
| 2022 | $331,780 | $85,000 | $0 | $416,780 | $102,570 |
| 2021 | $245,760 | $85,000 | $0 | $330,760 | $63,120 |
| 2020 | $204,800 | $85,000 | $0 | $289,800 | $63,120 |
| 2019 | $204,800 | $85,000 | $0 | $289,800 | $63,120 |
| 2018 | $174,200 | $50,000 | $0 | $224,200 | $63,120 |
| 2017 | $165,900 | $50,000 | $0 | $215,900 | $63,120 |
| 2016 | $165,900 | $50,000 | $0 | $215,900 | $63,120 |
| 2015 | $165,900 | $50,000 | $0 | $215,900 | $63,120 |
| 2014 | $165,900 | $50,000 | $0 | $215,900 | $63,120 |
| 2013 | $165,900 | $50,000 | $0 | $215,900 | $63,120 |
| 2012 | $162,700 | $50,000 | $0 | $0 | $0 |
| 2011 | $152,600 | $50,000 | $0 | $0 | $0 |
| 2010 | $152,600 | $50,000 | $0 | $0 | $0 |
| 2009 | $175,100 | $50,000 | $0 | $0 | $0 |
| 2008 | $175,100 | $50,000 | $0 | $0 | $0 |
| 2007 | $133,300 | $30,000 | $0 | $0 | $0 |
| 2006 | $133,300 | $30,000 | $0 | $0 | $0 |
Deed and Sales History
| 1 | 03/27/2017 | LOPA | LACK OF PROBATE AFFIDAVIT | BRADFORD JOHN R & LAURA L | BRADFORD LAURA L | | | | 0 | 2017-02302 |
| 2 | | DEATH CERT | DEATH CERTIFICATE | BRADFORD JOHN ROLLAND | | | | | 0 | 2006-03255 |
| 3 | 04/13/1998 | WARRANTY D | WARRANTY DEED | | | | | $30,650.00 | 90204 | 2659-803951 |
Payout Agreement
| No payout information available.. |