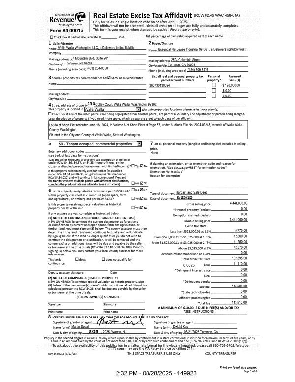
Property
Account |
| Property ID: | 29546 | Abbreviated Legal Description: | 28-7-36 TAX 20C |
| Parcel Number: | 360728210004 | Agent Code: | |
| Type: | Real | | |
| Tax Area: | 1 - OL-140-F | Land Use Code | 11 |
| Open Space: | N | DFL | N |
| Historic Property: | N | Remodel Property: | N |
| Multi-Family Redevelopment: | N | | |
| Township: | 7 | Section: | 28 |
| Range: | 36 |
Location |
| Address: | 518 FERN AVE WA 99362 | Mapsco: | |
| Neighborhood: | G Res | Map ID: | |
| Neighborhood CD: | 614011 |
Owner |
| Name: | RODNEY L MOLL SEPARATE PROPERTY TRUST | Owner ID: | 71124 |
| Mailing Address: | 518 FERN AVE WALLA WALLA, WA 99362 | % Ownership: | 100.0000000000% |
| | | Exemptions: | |
Taxes and Assessment Details
Values
| (+) Improvement Homesite Value: | + | $0 | |
| (+) Improvement Non-Homesite Value: | + | $331,920 | |
| (+) Land Homesite Value: | + | $0 | |
| (+) Land Non-Homesite Value: | + | $104,540 | |
| (+) Curr Use (HS): | + | $0 | $0 |
| (+) Curr Use (NHS): | + | $0 | $0 |
| | | -------------------------- | |
| (=) Market Value: | = | $436,460 | |
| (–) Productivity Loss: | – | $0 | |
| | | -------------------------- | |
| (=) Subtotal: | = | $436,460 | |
| (+) Senior Appraised Value: | + | $0 | |
| (+) Non-Senior Appraised Value: | + | $436,460 | |
| | | -------------------------- | |
| (=) Total Appraised Value: | = | $436,460 | |
| (–) Senior Exemption Loss: | – | $0 | |
| (–) Exemption Loss: | – | $0 | |
| | | -------------------------- | |
| (=) Taxable Value: | = | $436,460 | |
Taxing Jurisdiction
| Owner: | RODNEY L MOLL SEPARATE PROPERTY TRUST | | |
| % Ownership: | 100.0000000000% | | |
| Total Value: | $436,460 | | |
| Tax Area: | 1 - OL-140-F |
| CERFD | CURRENT EXPENSE REFUND 010 | 0.0000000000 | $436,460 | $436,460 | $0.00 | | |
| CURREXP | CURRENT EXPENSE 010 | 1.0175366760 | $436,460 | $436,460 | $444.11 | | |
| HUMNSERV | HUMAN SERVICES 119 | 0.0250000000 | $436,460 | $436,460 | $10.91 | | |
| SLDREL | SOLDIERS RELIEF 121 | 0.0155990005 | $436,460 | $436,460 | $6.81 | | |
| EMERGSER | EMS 147 | 0.3792580840 | $436,460 | $436,460 | $165.53 | | |
| EMSRFD | EMS REFUND 147 | 0.0000000000 | $436,460 | $436,460 | $0.00 | | |
| PORTRFD | PORT REFUND 640 | 0.0000000000 | $436,460 | $436,460 | $0.00 | | |
| PORTWWGEN | PORT OF WW 640 | 0.2460186015 | $436,460 | $436,460 | $107.38 | | |
| SD140BOND | SD #140 BOND 764 | 0.8342371393 | $436,460 | $436,460 | $364.11 | | |
| SD140GEN | SD #140 GENERAL 760 | 2.0646500647 | $436,460 | $436,460 | $901.14 | | |
| ST2 | STATE SCHOOL PART 2 600 | 0.8131451643 | $436,460 | $436,460 | $354.91 | | |
| STATESCHL | STATE SCHOOL 600 | 1.5158548041 | $436,460 | $436,460 | $661.61 | | |
| STREFUND | STATE REFUND LEVY 603 | 0.0000000000 | $436,460 | $436,460 | $0.00 | | |
| CWWBOND | C OF WW BOND 643 | 0.2760494372 | $436,460 | $436,460 | $120.48 | | |
| CWWGEN | CITY OF WW 631 | 1.6100204973 | $436,460 | $436,460 | $702.71 | | |
| CWWRFD | CITY OF WALLA WALLA REFUND 631 | 0.0000000000 | $436,460 | $436,460 | $0.00 | | |
| | Total Tax Rate: | 8.7973694689 | | | | | |
| | | | | Taxes w/Current Exemptions: | $3,839.70 | | |
| | | | | Taxes w/o Exemptions: | $3,839.70 | | |
Improvement / Building
| Improvement #1: | RESIDENTIAL | State Code: | 11 | 1524.0 sqft | Value: | $331,920 |
| Exterior Wall: | PLYWOOD | Heating/Cooling: | HEAT PUMP | | Number of Bathrooms: | 2 | Number of Bedrooms: | 3 | | Plumbing: | 10 | Roof Covering: | COMP SHINGLE |
|
| | Type | Description | Class CD | Sub Class CD | Year Built | Area |
| | MA | Main Area | 1 | 35 | 1971 | 1524.0 |
| | SI1 | SITE IMPROVEMENT | 1 | 35 | 1971 | 1.5 |
| | S1F | Single One Story Fireplace | 1 | 35 | 1971 | 1.0 |
| | RPO | OPEN PORCH W/ROOF | 1 | 35 | 1971 | 27.0 |
| | ATG | Attached Garage | 1 | 35 | 1971 | 626.0 |
Sketch
Property Image
Land
| 1 | RES 1 | Converted: Residential | 0.2400 | 10454.00 | 0.00 | 0.00 | 1.00 | $104,540 | $0 |
Roll Value History
| 2025 | N/A | N/A | N/A | N/A | N/A |
| 2024 | $331,920 | $104,540 | $0 | $436,460 | $436,460 |
| 2023 | $331,920 | $104,540 | $0 | $436,460 | $436,460 |
| 2022 | $288,630 | $86,250 | $0 | $374,880 | $374,880 |
| 2021 | $274,880 | $86,250 | $0 | $361,130 | $361,130 |
| 2020 | $229,070 | $86,250 | $0 | $315,320 | $315,320 |
| 2019 | $185,840 | $86,250 | $0 | $272,090 | $272,090 |
| 2018 | $176,710 | $47,500 | $0 | $224,210 | $224,210 |
| 2017 | $176,710 | $47,500 | $0 | $224,210 | $224,210 |
| 2016 | $160,640 | $47,500 | $0 | $208,140 | $208,140 |
| 2015 | $146,040 | $47,500 | $0 | $193,540 | $193,540 |
| 2014 | $121,700 | $47,500 | $0 | $169,200 | $169,200 |
| 2013 | $121,700 | $47,500 | $0 | $169,200 | $169,200 |
| 2012 | $151,600 | $47,500 | $0 | $0 | $0 |
| 2011 | $151,600 | $47,500 | $0 | $0 | $0 |
| 2010 | $133,500 | $47,500 | $0 | $0 | $0 |
| 2009 | $153,600 | $47,500 | $0 | $0 | $0 |
| 2008 | $153,600 | $47,500 | $0 | $0 | $0 |
| 2007 | $104,600 | $25,000 | $0 | $0 | $0 |
| 2006 | $104,600 | $25,000 | $0 | $0 | $0 |
Deed and Sales History
| 1 | 02/18/2022 | SWD | STATUTORY WARRANTY DEED | FLEISCHER TODD D & COLLEEN M | RODNEY L MOLL SEPARATE PROPERTY TRUST | | | $481,000.00 | 143413 | 2022-01481 |
| 2 | 01/17/2020 | SWD | STATUTORY WARRANTY DEED | HOE ROBIN K & HEATHER L (JTWRS) | FLEISCHER TODD D & COLLEEN M | | | $362,000.00 | 138451 | 2020-00486 |
| 3 | 04/25/2019 | SWD | STATUTORY WARRANTY DEED | LOEWEN KRISTOPHER C & CAROLYN P | HOE ROBIN K & HEATHER L (JTWRS) | | | $292,000.00 | 136744 | 2019-02633 |
| 4 | 07/31/2015 | SWD | STATUTORY WARRANTY DEED | REOCH MAUD E ESTATE OF | LOEWEN KRISTOPHER C & CAROLYN P | | | $232,500.00 | 128522 | 2015-06611 |
| 5 | 11/30/1973 | WARRANTY D | WARRANTY DEED | | | | | $32,750.00 | 0 | 1005-33548 |
Payout Agreement
| No payout information available.. |