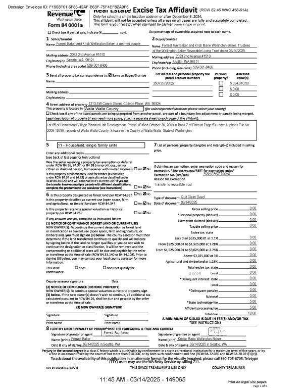
Property
Account |
| Property ID: | 29447 | Abbreviated Legal Description: | ENNIS ANNEX TAX 1 BLK 1 |
| Parcel Number: | 360721550108 | Agent Code: | |
| Type: | Real | | |
| Tax Area: | 1 - OL-140-F | Land Use Code | 11 |
| Open Space: | N | DFL | N |
| Historic Property: | N | Remodel Property: | N |
| Multi-Family Redevelopment: | N | | |
| Township: | 7 | Section: | 21 |
| Range: | 36 |
Location |
| Address: | 1739 EVERGREEN ST WA 99362 | Mapsco: | |
| Neighborhood: | A-SFR | Map ID: | |
| Neighborhood CD: | 513011 |
Owner |
| Name: | ADAMS GUADALUPE | Owner ID: | 65515 |
| Mailing Address: | 1739 EVERGREEN ST WALLA WALLA, WA 99362 | % Ownership: | 100.0000000000% |
| | | Exemptions: | |
Taxes and Assessment Details
Values
| (+) Improvement Homesite Value: | + | $0 | |
| (+) Improvement Non-Homesite Value: | + | $141,010 | |
| (+) Land Homesite Value: | + | $0 | |
| (+) Land Non-Homesite Value: | + | $43,730 | |
| (+) Curr Use (HS): | + | $0 | $0 |
| (+) Curr Use (NHS): | + | $0 | $0 |
| | | -------------------------- | |
| (=) Market Value: | = | $184,740 | |
| (–) Productivity Loss: | – | $0 | |
| | | -------------------------- | |
| (=) Subtotal: | = | $184,740 | |
| (+) Senior Appraised Value: | + | $0 | |
| (+) Non-Senior Appraised Value: | + | $184,740 | |
| | | -------------------------- | |
| (=) Total Appraised Value: | = | $184,740 | |
| (–) Senior Exemption Loss: | – | $0 | |
| (–) Exemption Loss: | – | $0 | |
| | | -------------------------- | |
| (=) Taxable Value: | = | $184,740 | |
Taxing Jurisdiction
| Owner: | ADAMS GUADALUPE | | |
| % Ownership: | 100.0000000000% | | |
| Total Value: | $184,740 | | |
| Tax Area: | 1 - OL-140-F |
| CERFD | CURRENT EXPENSE REFUND 010 | 0.0000000000 | $184,740 | $184,740 | $0.00 | | |
| CURREXP | CURRENT EXPENSE 010 | 1.0175366760 | $184,740 | $184,740 | $187.98 | | |
| HUMNSERV | HUMAN SERVICES 119 | 0.0250000000 | $184,740 | $184,740 | $4.62 | | |
| SLDREL | SOLDIERS RELIEF 121 | 0.0155990005 | $184,740 | $184,740 | $2.88 | | |
| EMERGSER | EMS 147 | 0.3792580840 | $184,740 | $184,740 | $70.06 | | |
| EMSRFD | EMS REFUND 147 | 0.0000000000 | $184,740 | $184,740 | $0.00 | | |
| PORTRFD | PORT REFUND 640 | 0.0000000000 | $184,740 | $184,740 | $0.00 | | |
| PORTWWGEN | PORT OF WW 640 | 0.2460186015 | $184,740 | $184,740 | $45.45 | | |
| SD140BOND | SD #140 BOND 764 | 0.8342371393 | $184,740 | $184,740 | $154.12 | | |
| SD140GEN | SD #140 GENERAL 760 | 2.0646500647 | $184,740 | $184,740 | $381.42 | | |
| ST2 | STATE SCHOOL PART 2 600 | 0.8131451643 | $184,740 | $184,740 | $150.22 | | |
| STATESCHL | STATE SCHOOL 600 | 1.5158548041 | $184,740 | $184,740 | $280.04 | | |
| STREFUND | STATE REFUND LEVY 603 | 0.0000000000 | $184,740 | $184,740 | $0.00 | | |
| CWWBOND | C OF WW BOND 643 | 0.2760494372 | $184,740 | $184,740 | $51.00 | | |
| CWWGEN | CITY OF WW 631 | 1.6100204973 | $184,740 | $184,740 | $297.44 | | |
| CWWRFD | CITY OF WALLA WALLA REFUND 631 | 0.0000000000 | $184,740 | $184,740 | $0.00 | | |
| | Total Tax Rate: | 8.7973694689 | | | | | |
| | | | | Taxes w/Current Exemptions: | $1,625.23 | | |
| | | | | Taxes w/o Exemptions: | $1,625.23 | | |
Improvement / Building
| Improvement #1: | RESIDENTIAL | State Code: | 11 | 754.0 sqft | Value: | $141,010 |
| Exterior Wall: | VINYL | Heating/Cooling: | MINI-SPLIT HP SYSTEM | | Number of Bathrooms: | 1 | Number of Bedrooms: | 2 | | Plumbing: | 6 | Roof Covering: | COMP SHINGLE |
|
| | Type | Description | Class CD | Sub Class CD | Year Built | Area |
| | MA | Main Area | 1 | 25 | 1905 | 754.0 |
| | SI1 | SITE IMPROVEMENT | 1 | 25 | 1905 | 1.0 |
| | DTG | Detached Garage | 1 | 25 | 1905 | 858.0 |
| | RPO | OPEN PORCH W/ROOF | 1 | 25 | 1905 | 16.0 |
| | WOD | Wood Deck | 1 | 25 | 2022 | 297.0 |
Sketch
Property Image
Land
| 1 | RES 1 | Converted: Residential | 0.1606 | 6996.00 | 0.00 | 0.00 | 1.00 | $43,730 | $0 |
Roll Value History
| 2025 | N/A | N/A | N/A | N/A | N/A |
| 2024 | $127,240 | $69,960 | $0 | $197,200 | $197,200 |
| 2023 | $141,010 | $43,730 | $0 | $184,740 | $184,740 |
| 2022 | $141,010 | $43,730 | $0 | $184,740 | $184,740 |
| 2021 | $122,620 | $43,730 | $0 | $166,350 | $166,350 |
| 2020 | $35,400 | $43,730 | $0 | $79,130 | $79,130 |
| 2019 | $35,400 | $43,730 | $0 | $79,130 | $79,130 |
| 2018 | $35,400 | $43,730 | $0 | $79,130 | $0 |
| 2017 | $40,140 | $28,000 | $0 | $68,140 | $0 |
| 2016 | $33,450 | $28,000 | $0 | $61,450 | $0 |
| 2015 | $33,450 | $28,000 | $0 | $61,450 | $0 |
| 2014 | $44,600 | $28,000 | $0 | $72,600 | $0 |
| 2013 | $44,600 | $28,000 | $0 | $72,600 | $0 |
| 2012 | $44,600 | $28,000 | $0 | $0 | $0 |
| 2011 | $44,600 | $28,000 | $0 | $0 | $0 |
| 2010 | $52,700 | $28,000 | $0 | $0 | $0 |
| 2009 | $61,700 | $28,000 | $0 | $0 | $0 |
| 2008 | $61,700 | $28,000 | $0 | $0 | $0 |
| 2007 | $61,700 | $28,000 | $0 | $0 | $0 |
| 2006 | $53,500 | $14,000 | $0 | $0 | $0 |
Deed and Sales History
| 1 | 07/17/2019 | QCD | QUIT CLAIM DEED | ADAMS BEN | ADAMS GUADALUPE | | | $0.00 | 138614 | 2020-01383 |
| 2 | 07/17/2019 | BARGAIN & | BARGAIN & SALE DEED | FEDERAL NATIONAL MORTGAGE ASSOCIATION | ADAMS GUADALUPE | | | $133,000.00 | 137305 | 2019-05202 |
| 3 | 01/11/2019 | TRUSTEES D | TRUSTEE'S DEED | HERNANDEZ SANDRA | FEDERAL NATIONAL MORTGAGE ASSOCIATION | | | $114,125.00 | 136239 | 2019-00232 |
| 4 | | MARRIAGE | MARRIAGE CERTIFICATE | GARCIA SANDRA K | HERNANDEZ SANDRA | | | | 0 | |
| 5 | 01/05/2005 | QCD | QUIT CLAIM DEED | UPPER COLUMBIA CORP OF SDA | GARCIA, SANDRA K | | | | 106549 | 2005-00163 |
| 6 | 08/18/1977 | QCD | QUIT CLAIM DEED | | | | | $0.00 | 0 | 6605-67938 |
Payout Agreement
| No payout information available.. |