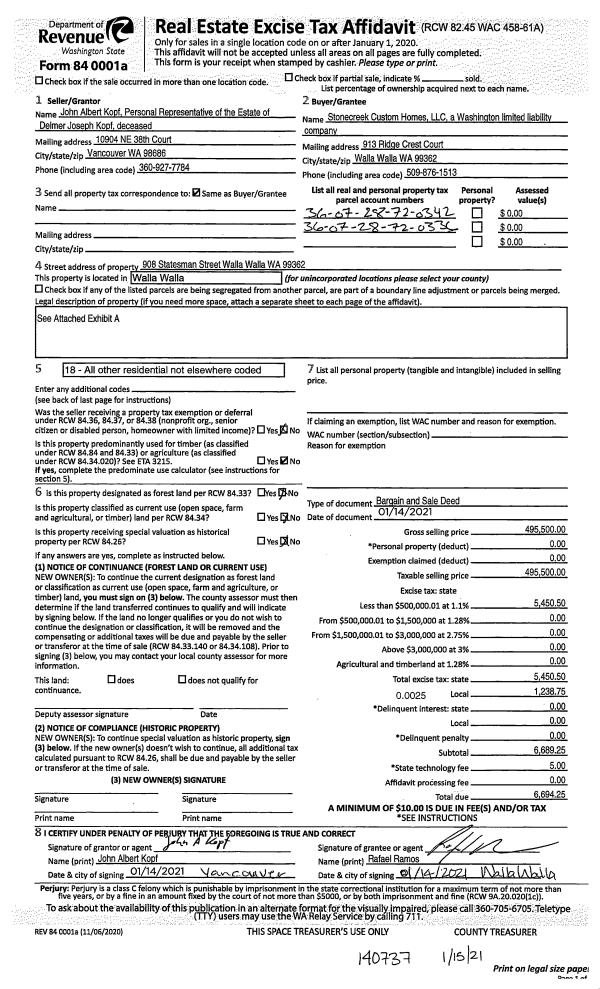
Property
Account |
| Property ID: | 29417 | Abbreviated Legal Description: | GREENS ANNEX TAX 9 LOT 5 BLK 10 |
| Parcel Number: | 360721751016 | Agent Code: | |
| Type: | Real | | |
| Tax Area: | 1 - OL-140-F | Land Use Code | 11 |
| Open Space: | N | DFL | N |
| Historic Property: | N | Remodel Property: | N |
| Multi-Family Redevelopment: | N | | |
| Township: | 7 | Section: | 21 |
| Range: | 36 |
Location |
| Address: | 1731 PORTLAND AVE WA 99362 | Mapsco: | |
| Neighborhood: | A-SFR | Map ID: | |
| Neighborhood CD: | 513011 |
Owner |
| Name: | MCJ CONSTRUCTION LLC | Owner ID: | 70127 |
| Mailing Address: | 885 WALLULA RD WALLA WALLA, WA 99362 | % Ownership: | 100.0000000000% |
| | | Exemptions: | |
Taxes and Assessment Details
Values
| (+) Improvement Homesite Value: | + | $128,860 | |
| (+) Improvement Non-Homesite Value: | + | $0 | |
| (+) Land Homesite Value: | + | $37,500 | |
| (+) Land Non-Homesite Value: | + | $0 | |
| (+) Curr Use (HS): | + | $0 | $0 |
| (+) Curr Use (NHS): | + | $0 | $0 |
| | | -------------------------- | |
| (=) Market Value: | = | $166,360 | |
| (–) Productivity Loss: | – | $0 | |
| | | -------------------------- | |
| (=) Subtotal: | = | $166,360 | |
| (+) Senior Appraised Value: | + | $0 | |
| (+) Non-Senior Appraised Value: | + | $166,360 | |
| | | -------------------------- | |
| (=) Total Appraised Value: | = | $166,360 | |
| (–) Senior Exemption Loss: | – | $0 | |
| (–) Exemption Loss: | – | $0 | |
| | | -------------------------- | |
| (=) Taxable Value: | = | $166,360 | |
Taxing Jurisdiction
| Owner: | MCJ CONSTRUCTION LLC | | |
| % Ownership: | 100.0000000000% | | |
| Total Value: | $166,360 | | |
| Tax Area: | 1 - OL-140-F |
| CERFD | CURRENT EXPENSE REFUND 010 | 0.0000000000 | $166,360 | $166,360 | $0.00 | | |
| CURREXP | CURRENT EXPENSE 010 | 1.0175366760 | $166,360 | $166,360 | $169.28 | | |
| HUMNSERV | HUMAN SERVICES 119 | 0.0250000000 | $166,360 | $166,360 | $4.16 | | |
| SLDREL | SOLDIERS RELIEF 121 | 0.0155990005 | $166,360 | $166,360 | $2.60 | | |
| EMERGSER | EMS 147 | 0.3792580840 | $166,360 | $166,360 | $63.09 | | |
| EMSRFD | EMS REFUND 147 | 0.0000000000 | $166,360 | $166,360 | $0.00 | | |
| PORTRFD | PORT REFUND 640 | 0.0000000000 | $166,360 | $166,360 | $0.00 | | |
| PORTWWGEN | PORT OF WW 640 | 0.2460186015 | $166,360 | $166,360 | $40.93 | | |
| SD140BOND | SD #140 BOND 764 | 0.8342371393 | $166,360 | $166,360 | $138.78 | | |
| SD140GEN | SD #140 GENERAL 760 | 2.0646500647 | $166,360 | $166,360 | $343.48 | | |
| ST2 | STATE SCHOOL PART 2 600 | 0.8131451643 | $166,360 | $166,360 | $135.27 | | |
| STATESCHL | STATE SCHOOL 600 | 1.5158548041 | $166,360 | $166,360 | $252.18 | | |
| STREFUND | STATE REFUND LEVY 603 | 0.0000000000 | $166,360 | $166,360 | $0.00 | | |
| CWWBOND | C OF WW BOND 643 | 0.2760494372 | $166,360 | $166,360 | $45.92 | | |
| CWWGEN | CITY OF WW 631 | 1.6100204973 | $166,360 | $166,360 | $267.84 | | |
| CWWRFD | CITY OF WALLA WALLA REFUND 631 | 0.0000000000 | $166,360 | $166,360 | $0.00 | | |
| | Total Tax Rate: | 8.7973694689 | | | | | |
| | | | | Taxes w/Current Exemptions: | $1,463.53 | | |
| | | | | Taxes w/o Exemptions: | $1,463.53 | | |
Improvement / Building
| Improvement #1: | RESIDENTIAL | State Code: | 11 | 841.0 sqft | Value: | $128,860 |
| Exterior Wall: | CEMENT FIBER | Heating/Cooling: | FORCED AIR | | Number of Bathrooms: | 1 | Number of Bedrooms: | 2 | | Plumbing: | 6 | Roof Covering: | COMP SHINGLE |
|
| | Type | Description | Class CD | Sub Class CD | Year Built | Area |
| | MA | Main Area | 1 | 25 | 1949 | 841.0 |
| | SI1 | SITE IMPROVEMENT | 1 | 25 | 1949 | 1.0 |
| | RPS | PORCH W/STEPS,ROOF | 1 | 25 | 1949 | 12.0 |
| | UTST | Utility Storage Shed | 1 | 25 | 1949 | 144.0 |
| | CPC | COVERED CARPORT/PATIO | 1 | 25 | 1949 | 198.0 |
| | CPC | COVERED CARPORT/PATIO | 1 | 25 | 1949 | 220.0 |
Sketch
Property Image
Land
| 1 | RES 1 | Converted: Residential | 0.1377 | 6000.00 | 0.00 | 0.00 | 1.00 | $37,500 | $0 |
Roll Value History
| 2025 | N/A | N/A | N/A | N/A | N/A |
| 2024 | $240,160 | $60,000 | $0 | $300,160 | $300,160 |
| 2023 | $128,860 | $37,500 | $0 | $166,360 | $166,360 |
| 2022 | $59,150 | $37,500 | $0 | $96,650 | $96,650 |
| 2021 | $41,400 | $37,500 | $0 | $78,900 | $78,900 |
| 2020 | $41,400 | $37,500 | $0 | $78,900 | $18,900 |
| 2019 | $76,100 | $37,500 | $0 | $113,600 | $28,100 |
| 2018 | $76,100 | $37,500 | $0 | $113,600 | $28,100 |
| 2017 | $83,800 | $24,000 | $0 | $107,800 | $28,100 |
| 2016 | $79,810 | $24,000 | $0 | $103,810 | $28,100 |
| 2015 | $76,010 | $24,000 | $0 | $100,010 | $28,100 |
| 2014 | $69,100 | $24,000 | $0 | $93,100 | $28,100 |
| 2013 | $69,100 | $24,000 | $0 | $93,100 | $28,100 |
| 2012 | $67,600 | $24,000 | $0 | $0 | $0 |
| 2011 | $59,300 | $24,000 | $0 | $0 | $0 |
| 2010 | $55,300 | $24,000 | $0 | $0 | $0 |
| 2009 | $64,100 | $24,000 | $0 | $0 | $0 |
| 2008 | $64,100 | $24,000 | $0 | $0 | $0 |
| 2007 | $64,100 | $24,000 | $0 | $0 | $0 |
| 2006 | $47,500 | $12,000 | $0 | $0 | $0 |
Deed and Sales History
| 1 | 02/01/2024 | SWD | STATUTORY WARRANTY DEED | MCJ CONSTRUCTION LLC | ARIAS ISELA | | | $319,000.00 | 147100 | 2024-00533 |
| 2 | 08/16/2021 | SWD | STATUTORY WARRANTY DEED | WORKMAN LINDA L | MCJ CONSTRUCTION LLC | | | $88,500.00 | 142299 | 2021-09981 |
| 3 | 08/16/2021 | LOPA | LACK OF PROBATE AFFIDAVIT | WORKMAN RICHARD EARL ESTATE OF | WORKMAN LINDA L | | | | 142298 | 2021-09980 |
| 4 | 08/22/1983 | WARRANTY D | WARRANTY DEED | | | | | $34,500.00 | 0 | 1398-306032 |
Payout Agreement
| No payout information available.. |