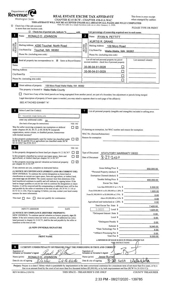
Property
Account |
| Property ID: | 29312 | Abbreviated Legal Description: | VALLEY HOMES LOT 67 |
| Parcel Number: | 360722560067 | Agent Code: | |
| Type: | Real | | |
| Tax Area: | 6 - OL-140-F-FB | Land Use Code | 11 |
| Open Space: | N | DFL | N |
| Historic Property: | N | Remodel Property: | N |
| Multi-Family Redevelopment: | N | | |
| Township: | 7 | Section: | 22 |
| Range: | 36 |
Location |
| Address: | 136 COMMERCIAL ST WA 99362 | Mapsco: | |
| Neighborhood: | A SFR | Map ID: | |
| Neighborhood CD: | 413011 |
Owner |
| Name: | HARRIGAN CRAIG CLIFFORD | Owner ID: | 68000 |
| Mailing Address: | 136 COMMERCIAL ST WALLA WALLA, WA 99362 | % Ownership: | 100.0000000000% |
| | | Exemptions: | |
Taxes and Assessment Details
Values
| (+) Improvement Homesite Value: | + | $302,630 | |
| (+) Improvement Non-Homesite Value: | + | $0 | |
| (+) Land Homesite Value: | + | $93,000 | |
| (+) Land Non-Homesite Value: | + | $0 | |
| (+) Curr Use (HS): | + | $0 | $0 |
| (+) Curr Use (NHS): | + | $0 | $0 |
| | | -------------------------- | |
| (=) Market Value: | = | $395,630 | |
| (–) Productivity Loss: | – | $0 | |
| | | -------------------------- | |
| (=) Subtotal: | = | $395,630 | |
| (+) Senior Appraised Value: | + | $0 | |
| (+) Non-Senior Appraised Value: | + | $395,630 | |
| | | -------------------------- | |
| (=) Total Appraised Value: | = | $395,630 | |
| (–) Senior Exemption Loss: | – | $0 | |
| (–) Exemption Loss: | – | $0 | |
| | | -------------------------- | |
| (=) Taxable Value: | = | $395,630 | |
Taxing Jurisdiction
| Owner: | HARRIGAN CRAIG CLIFFORD | | |
| % Ownership: | 100.0000000000% | | |
| Total Value: | $395,630 | | |
| Tax Area: | 6 - OL-140-F-FB |
| CERFD | CURRENT EXPENSE REFUND 010 | 0.0000000000 | $395,630 | $395,630 | $0.00 | | |
| CURREXP | CURRENT EXPENSE 010 | 1.0175366760 | $395,630 | $395,630 | $402.57 | | |
| HUMNSERV | HUMAN SERVICES 119 | 0.0250000000 | $395,630 | $395,630 | $9.89 | | |
| SLDREL | SOLDIERS RELIEF 121 | 0.0155990005 | $395,630 | $395,630 | $6.17 | | |
| EMERGSER | EMS 147 | 0.3792580840 | $395,630 | $395,630 | $150.05 | | |
| EMSRFD | EMS REFUND 147 | 0.0000000000 | $395,630 | $395,630 | $0.00 | | |
| PORTRFD | PORT REFUND 640 | 0.0000000000 | $395,630 | $395,630 | $0.00 | | |
| PORTWWGEN | PORT OF WW 640 | 0.2460186015 | $395,630 | $395,630 | $97.33 | | |
| SD140BOND | SD #140 BOND 764 | 0.8342371393 | $395,630 | $395,630 | $330.05 | | |
| SD140GEN | SD #140 GENERAL 760 | 2.0646500647 | $395,630 | $395,630 | $816.84 | | |
| ST2 | STATE SCHOOL PART 2 600 | 0.8131451643 | $395,630 | $395,630 | $321.70 | | |
| STATESCHL | STATE SCHOOL 600 | 1.5158548041 | $395,630 | $395,630 | $599.72 | | |
| STREFUND | STATE REFUND LEVY 603 | 0.0000000000 | $395,630 | $395,630 | $0.00 | | |
| CWWBOND | C OF WW BOND 643 | 0.2760494372 | $395,630 | $395,630 | $109.21 | | |
| CWWGEN | CITY OF WW 631 | 1.6100204973 | $395,630 | $395,630 | $636.97 | | |
| CWWRFD | CITY OF WALLA WALLA REFUND 631 | 0.0000000000 | $395,630 | $395,630 | $0.00 | | |
| | Total Tax Rate: | 8.7973694689 | | | | | |
| | | | | Taxes w/Current Exemptions: | $3,480.50 | | |
| | | | | Taxes w/o Exemptions: | $3,480.50 | | |
Improvement / Building
| Improvement #1: | RESIDENTIAL | State Code: | 11 | 1360.0 sqft | Value: | $302,630 |
| Exterior Wall: | PLYWOOD | Heating/Cooling: | WARM & COOLED AIR | | Number of Bathrooms: | 2 | Number of Bedrooms: | 3 | | Plumbing: | 15 | Roof Covering: | COMP SHINGLE |
|
| | Type | Description | Class CD | Sub Class CD | Year Built | Area |
| | MA | Main Area | 1 | 35 | 2008 | 1360.0 |
| | RPC | OPEN PORCH W/ROOF , CEILED | 1 | 35 | 0 | 63.0 |
| | RPC | OPEN PORCH W/ROOF , CEILED | 1 | 35 | 0 | 132.0 |
| | SI1 | SITE IMPROVEMENT | 1 | 35 | 0 | 3.0 |
| | ATG | Attached Garage | 1 | 35 | 2008 | 400.0 |
| | POL2 | POLE BUILDING-CONCRETE | 1 | 30 | 2015 | 900.0 |
Sketch
Property Image
Land
| 1 | RES 1 | Converted: Residential | 0.7312 | 31850.00 | 0.00 | 0.00 | 1.00 | $93,000 | $0 |
Roll Value History
| 2025 | N/A | N/A | N/A | N/A | N/A |
| 2024 | $302,630 | $93,000 | $0 | $395,630 | $395,630 |
| 2023 | $302,630 | $93,000 | $0 | $395,630 | $395,630 |
| 2022 | $285,840 | $45,000 | $0 | $330,840 | $330,840 |
| 2021 | $272,230 | $45,000 | $0 | $317,230 | $317,230 |
| 2020 | $175,630 | $45,000 | $0 | $220,630 | $220,630 |
| 2019 | $175,630 | $45,000 | $0 | $220,630 | $93,400 |
| 2018 | $141,810 | $45,000 | $0 | $186,810 | $73,760 |
| 2017 | $135,060 | $45,000 | $0 | $180,060 | $72,024 |
| 2016 | $135,060 | $45,000 | $0 | $180,060 | $72,024 |
| 2015 | $123,700 | $45,000 | $0 | $168,700 | $67,480 |
| 2014 | $123,700 | $45,000 | $0 | $168,700 | $67,480 |
| 2013 | $123,700 | $45,000 | $0 | $168,700 | $67,480 |
| 2012 | $142,400 | $45,000 | $0 | $0 | $0 |
| 2011 | $127,600 | $45,000 | $0 | $0 | $0 |
| 2010 | $127,600 | $45,000 | $0 | $0 | $0 |
| 2009 | $73,100 | $45,000 | $0 | $0 | $0 |
| 2008 | $2,600 | $23,900 | $0 | $0 | $0 |
| 2007 | $2,600 | $23,900 | $0 | $0 | $0 |
| 2006 | $2,500 | $18,600 | $0 | $0 | $0 |
Deed and Sales History
| 1 | 09/23/2020 | SWD | STATUTORY WARRANTY DEED | JOHNSON JOANN D | HARRIGAN CRAIG CLIFFORD | | | $330,000.00 | 139963 | 2020-09726 |
| 2 | 09/02/1988 | WARRANTY D | WARRANTY DEED | | | | | $20,000.00 | 0 | 1728-805903 |
Payout Agreement
| No payout information available.. |