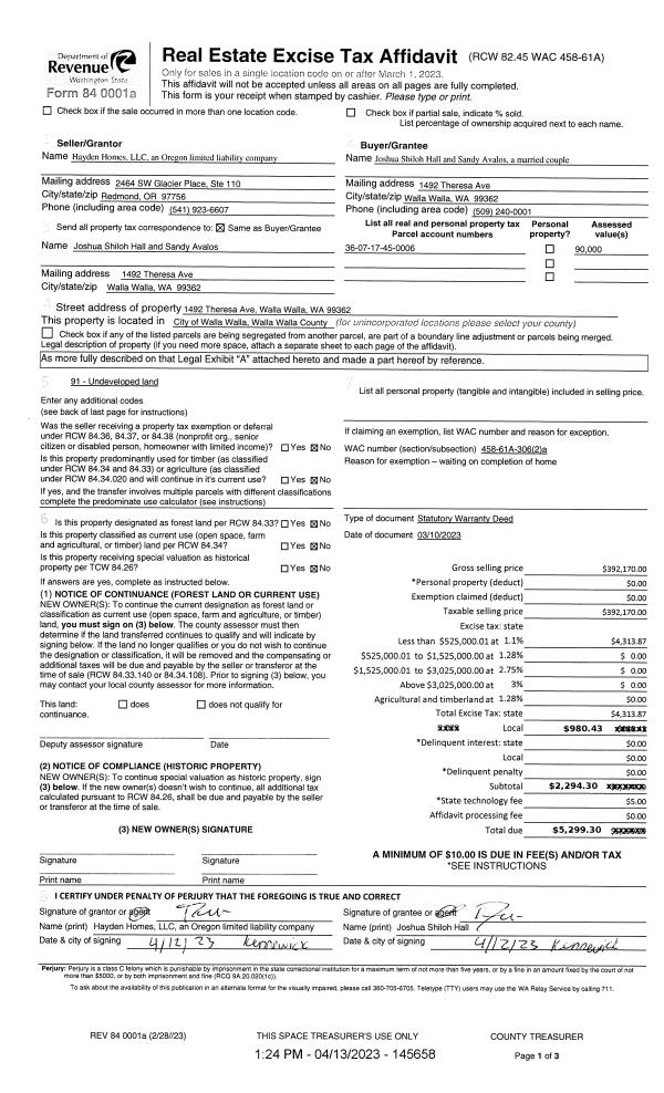
Property
Account |
| Property ID: | 29302 | Abbreviated Legal Description: | ALDERBROOK PARK LOT 10 BLK 2 PLUS STRIP LY TO THE N. |
| Parcel Number: | 360722510210 | Agent Code: | |
| Type: | Real | | |
| Tax Area: | 6 - OL-140-F-FB | Land Use Code | 11 |
| Open Space: | N | DFL | N |
| Historic Property: | N | Remodel Property: | N |
| Multi-Family Redevelopment: | N | | |
| Township: | 7 | Section: | 22 |
| Range: | 36 |
Location |
| Address: | 1865 CELESTIA DR WA 99362 | Mapsco: | |
| Neighborhood: | A SFR | Map ID: | |
| Neighborhood CD: | 413011 |
Owner |
| Name: | RAMOS ISAIAS | Owner ID: | 54445 |
| Mailing Address: | 1865 CELESTIA DR WALLA WALLA, WA 99362 | % Ownership: | 100.0000000000% |
| | | Exemptions: | |
Taxes and Assessment Details
Values
| (+) Improvement Homesite Value: | + | $254,000 | |
| (+) Improvement Non-Homesite Value: | + | $0 | |
| (+) Land Homesite Value: | + | $62,400 | |
| (+) Land Non-Homesite Value: | + | $0 | |
| (+) Curr Use (HS): | + | $0 | $0 |
| (+) Curr Use (NHS): | + | $0 | $0 |
| | | -------------------------- | |
| (=) Market Value: | = | $316,400 | |
| (–) Productivity Loss: | – | $0 | |
| | | -------------------------- | |
| (=) Subtotal: | = | $316,400 | |
| (+) Senior Appraised Value: | + | $0 | |
| (+) Non-Senior Appraised Value: | + | $316,400 | |
| | | -------------------------- | |
| (=) Total Appraised Value: | = | $316,400 | |
| (–) Senior Exemption Loss: | – | $0 | |
| (–) Exemption Loss: | – | $0 | |
| | | -------------------------- | |
| (=) Taxable Value: | = | $316,400 | |
Taxing Jurisdiction
| Owner: | RAMOS ISAIAS | | |
| % Ownership: | 100.0000000000% | | |
| Total Value: | $316,400 | | |
| Tax Area: | 6 - OL-140-F-FB |
| CERFD | CURRENT EXPENSE REFUND 010 | 0.0000000000 | $316,400 | $316,400 | $0.00 | | |
| CURREXP | CURRENT EXPENSE 010 | 1.0175366760 | $316,400 | $316,400 | $321.95 | | |
| HUMNSERV | HUMAN SERVICES 119 | 0.0250000000 | $316,400 | $316,400 | $7.91 | | |
| SLDREL | SOLDIERS RELIEF 121 | 0.0155990005 | $316,400 | $316,400 | $4.94 | | |
| EMERGSER | EMS 147 | 0.3792580840 | $316,400 | $316,400 | $120.00 | | |
| EMSRFD | EMS REFUND 147 | 0.0000000000 | $316,400 | $316,400 | $0.00 | | |
| PORTRFD | PORT REFUND 640 | 0.0000000000 | $316,400 | $316,400 | $0.00 | | |
| PORTWWGEN | PORT OF WW 640 | 0.2460186015 | $316,400 | $316,400 | $77.84 | | |
| SD140BOND | SD #140 BOND 764 | 0.8342371393 | $316,400 | $316,400 | $263.95 | | |
| SD140GEN | SD #140 GENERAL 760 | 2.0646500647 | $316,400 | $316,400 | $653.26 | | |
| ST2 | STATE SCHOOL PART 2 600 | 0.8131451643 | $316,400 | $316,400 | $257.28 | | |
| STATESCHL | STATE SCHOOL 600 | 1.5158548041 | $316,400 | $316,400 | $479.62 | | |
| STREFUND | STATE REFUND LEVY 603 | 0.0000000000 | $316,400 | $316,400 | $0.00 | | |
| CWWBOND | C OF WW BOND 643 | 0.2760494372 | $316,400 | $316,400 | $87.34 | | |
| CWWGEN | CITY OF WW 631 | 1.6100204973 | $316,400 | $316,400 | $509.41 | | |
| CWWRFD | CITY OF WALLA WALLA REFUND 631 | 0.0000000000 | $316,400 | $316,400 | $0.00 | | |
| | Total Tax Rate: | 8.7973694689 | | | | | |
| | | | | Taxes w/Current Exemptions: | $2,783.50 | | |
| | | | | Taxes w/o Exemptions: | $2,783.50 | | |
Improvement / Building
| Improvement #1: | RESIDENTIAL | State Code: | 11 | 988.0 sqft | Value: | $254,000 |
| Exterior Wall: | VINYL | Heating/Cooling: | WARM & COOLED AIR | | Number of Bathrooms: | 1 | Number of Bedrooms: | 3 | | Plumbing: | 6 | Roof Covering: | COMP SHINGLE |
|
| | Type | Description | Class CD | Sub Class CD | Year Built | Area |
| | MA | Main Area | 1 | 30 | 1950 | 988.0 |
| | CPC | COVERED CARPORT/PATIO | 1 | 30 | 0 | 240.0 |
| | CPC | COVERED CARPORT/PATIO | 1 | 30 | 0 | 504.0 |
| | SI1 | SITE IMPROVEMENT | 1 | 30 | 0 | 2.5 |
| | BASE | BASEMENT | 1 | 30 | 1950 | 988.0 |
| | OPS | OPEN PORCH W/STEPS | 1 | 30 | 1950 | 25.0 |
| | BPF | BASEMENT -PARTITIONED FINISH | 1 | 30 | 1950 | 750.0 |
| | UTST | Utility Storage Shed | 1 | 30 | 1950 | 96.0 |
Sketch
Property Image
Land
| 1 | RES 1 | Converted: Residential | 0.1791 | 7800.00 | 0.00 | 0.00 | 1.00 | $62,400 | $0 |
Roll Value History
| 2025 | N/A | N/A | N/A | N/A | N/A |
| 2024 | $254,000 | $62,400 | $0 | $316,400 | $316,400 |
| 2023 | $254,000 | $62,400 | $0 | $316,400 | $316,400 |
| 2022 | $248,220 | $40,950 | $0 | $289,170 | $289,170 |
| 2021 | $215,840 | $40,950 | $0 | $256,790 | $256,790 |
| 2020 | $113,600 | $40,950 | $0 | $154,550 | $154,550 |
| 2019 | $113,600 | $40,950 | $0 | $154,550 | $154,550 |
| 2018 | $98,780 | $40,950 | $0 | $139,730 | $139,730 |
| 2017 | $89,800 | $40,950 | $0 | $130,750 | $130,750 |
| 2016 | $86,700 | $31,200 | $0 | $117,900 | $117,900 |
| 2015 | $86,700 | $31,200 | $0 | $117,900 | $117,900 |
| 2014 | $86,700 | $31,200 | $0 | $117,900 | $117,900 |
| 2013 | $86,700 | $31,200 | $0 | $117,900 | $117,900 |
| 2012 | $86,700 | $31,200 | $0 | $0 | $0 |
| 2011 | $116,000 | $31,200 | $0 | $0 | $0 |
| 2010 | $116,000 | $31,200 | $0 | $0 | $0 |
| 2009 | $132,300 | $31,200 | $0 | $0 | $0 |
| 2008 | $99,600 | $31,200 | $0 | $0 | $0 |
| 2007 | $99,600 | $31,200 | $0 | $0 | $0 |
| 2006 | $81,200 | $15,600 | $0 | $0 | $0 |
Deed and Sales History
| 1 | 02/24/2014 | QCD | QUIT CLAIM DEED | | RAMOS ISAIAS | | | | 125469 | 2014-01311 |
| 2 | 02/24/2014 | SWD | STATUTORY WARRANTY DEED | ARLAND WARDEAN (LOIS) MAE | RAMOS ISAIAS | | | $125,000.00 | 125468 | 2014-01310 |
| 3 | 08/01/1963 | WARRANTY D | WARRANTY DEED | | | | | $11,000.00 | 0 | 3070-450611 |
Payout Agreement
| No payout information available.. |