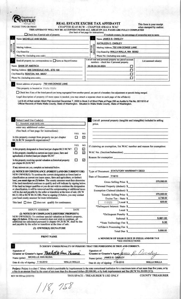
Property
Account |
| Property ID: | 29164 | Abbreviated Legal Description: | LANGFORDS TAX 10 BLK 19 |
| Parcel Number: | 360719591917 | Agent Code: | |
| Type: | Real | | |
| Tax Area: | 1 - OL-140-F | Land Use Code | 11 |
| Open Space: | N | DFL | N |
| Historic Property: | N | Remodel Property: | N |
| Multi-Family Redevelopment: | N | | |
| Township: | 7 | Section: | 19 |
| Range: | 36 |
Location |
| Address: | 746 N 8TH AVE WA 99362 | Mapsco: | |
| Neighborhood: | A-SFR | Map ID: | |
| Neighborhood CD: | 313011 |
Owner |
| Name: | SHANNON POTTER SPECIAL NEEDS TRUST | Owner ID: | 55323 |
| Mailing Address: | OMNI GUARDIANSHIP SERVICES LLC TRUSTEE PO BOX 800 WAITSBURG, WA 99361 | % Ownership: | 100.0000000000% |
| | | Exemptions: | |
Taxes and Assessment Details
Values
| (+) Improvement Homesite Value: | + | $0 | |
| (+) Improvement Non-Homesite Value: | + | $197,020 | |
| (+) Land Homesite Value: | + | $0 | |
| (+) Land Non-Homesite Value: | + | $64,890 | |
| (+) Curr Use (HS): | + | $0 | $0 |
| (+) Curr Use (NHS): | + | $0 | $0 |
| | | -------------------------- | |
| (=) Market Value: | = | $261,910 | |
| (–) Productivity Loss: | – | $0 | |
| | | -------------------------- | |
| (=) Subtotal: | = | $261,910 | |
| (+) Senior Appraised Value: | + | $0 | |
| (+) Non-Senior Appraised Value: | + | $261,910 | |
| | | -------------------------- | |
| (=) Total Appraised Value: | = | $261,910 | |
| (–) Senior Exemption Loss: | – | $0 | |
| (–) Exemption Loss: | – | $0 | |
| | | -------------------------- | |
| (=) Taxable Value: | = | $261,910 | |
Taxing Jurisdiction
| Owner: | SHANNON POTTER SPECIAL NEEDS TRUST | | |
| % Ownership: | 100.0000000000% | | |
| Total Value: | $261,910 | | |
| Tax Area: | 1 - OL-140-F |
| CERFD | CURRENT EXPENSE REFUND 010 | 0.0000000000 | $261,910 | $261,910 | $0.00 | | |
| CURREXP | CURRENT EXPENSE 010 | 1.0175366760 | $261,910 | $261,910 | $266.50 | | |
| HUMNSERV | HUMAN SERVICES 119 | 0.0250000000 | $261,910 | $261,910 | $6.55 | | |
| SLDREL | SOLDIERS RELIEF 121 | 0.0155990005 | $261,910 | $261,910 | $4.09 | | |
| EMERGSER | EMS 147 | 0.3792580840 | $261,910 | $261,910 | $99.33 | | |
| EMSRFD | EMS REFUND 147 | 0.0000000000 | $261,910 | $261,910 | $0.00 | | |
| PORTRFD | PORT REFUND 640 | 0.0000000000 | $261,910 | $261,910 | $0.00 | | |
| PORTWWGEN | PORT OF WW 640 | 0.2460186015 | $261,910 | $261,910 | $64.43 | | |
| SD140BOND | SD #140 BOND 764 | 0.8342371393 | $261,910 | $261,910 | $218.50 | | |
| SD140GEN | SD #140 GENERAL 760 | 2.0646500647 | $261,910 | $261,910 | $540.75 | | |
| ST2 | STATE SCHOOL PART 2 600 | 0.8131451643 | $261,910 | $261,910 | $212.97 | | |
| STATESCHL | STATE SCHOOL 600 | 1.5158548041 | $261,910 | $261,910 | $397.02 | | |
| STREFUND | STATE REFUND LEVY 603 | 0.0000000000 | $261,910 | $261,910 | $0.00 | | |
| CWWBOND | C OF WW BOND 643 | 0.2760494372 | $261,910 | $261,910 | $72.30 | | |
| CWWGEN | CITY OF WW 631 | 1.6100204973 | $261,910 | $261,910 | $421.68 | | |
| CWWRFD | CITY OF WALLA WALLA REFUND 631 | 0.0000000000 | $261,910 | $261,910 | $0.00 | | |
| | Total Tax Rate: | 8.7973694689 | | | | | |
| | | | | Taxes w/Current Exemptions: | $2,304.12 | | |
| | | | | Taxes w/o Exemptions: | $2,304.12 | | |
Improvement / Building
| Improvement #1: | RESIDENTIAL | State Code: | 11 | 1180.0 sqft | Value: | $197,020 |
| Exterior Wall: | SIDING | Heating/Cooling: | WARM & COOLED AIR | | Number of Bathrooms: | 1 | Number of Bedrooms: | 3 | | Plumbing: | 6 | Roof Covering: | GALVANIZED METAL |
|
| | Type | Description | Class CD | Sub Class CD | Year Built | Area |
| | MA | Main Area | 1 | 30 | 1910 | 1180.0 |
| | SI1 | SITE IMPROVEMENT | 1 | 30 | 0 | 1.0 |
| | BASE | BASEMENT | 1 | 30 | 1910 | 429.0 |
| | DTG | Detached Garage | 1 | 30 | 1910 | 504.0 |
| | SWP | Solid Wall Porch | 1 | 30 | 1910 | 192.0 |
| | S1F | Single One Story Fireplace | 1 | 30 | 1910 | 1.0 |
| | RPS | PORCH W/STEPS,ROOF | 1 | 30 | 1910 | 56.0 |
Sketch
Property Image
Land
| 1 | RES 1 | Converted: Residential | 0.2083 | 9075.00 | 0.00 | 0.00 | 1.00 | $64,890 | $0 |
Roll Value History
| 2025 | N/A | N/A | N/A | N/A | N/A |
| 2024 | $197,020 | $64,890 | $0 | $261,910 | $261,910 |
| 2023 | $197,020 | $64,890 | $0 | $261,910 | $261,910 |
| 2022 | $164,180 | $64,890 | $0 | $229,070 | $229,070 |
| 2021 | $170,290 | $26,500 | $0 | $196,790 | $196,790 |
| 2020 | $117,440 | $26,500 | $0 | $143,940 | $143,940 |
| 2019 | $117,440 | $26,500 | $0 | $143,940 | $143,940 |
| 2018 | $106,760 | $26,500 | $0 | $133,260 | $133,260 |
| 2017 | $88,970 | $26,500 | $0 | $115,470 | $115,470 |
| 2016 | $84,730 | $26,500 | $0 | $111,230 | $111,230 |
| 2015 | $87,490 | $26,500 | $0 | $113,990 | $113,990 |
| 2014 | $67,300 | $26,500 | $0 | $93,800 | $93,800 |
| 2013 | $67,300 | $26,500 | $0 | $93,800 | $93,800 |
| 2012 | $67,300 | $26,500 | $0 | $0 | $0 |
| 2011 | $67,300 | $26,500 | $0 | $0 | $0 |
| 2010 | $64,500 | $26,500 | $0 | $0 | $0 |
| 2009 | $82,300 | $13,500 | $0 | $0 | $0 |
| 2008 | $52,600 | $13,500 | $0 | $0 | $0 |
| 2007 | $52,600 | $13,500 | $0 | $0 | $0 |
| 2006 | $52,600 | $13,500 | $0 | $0 | $0 |
Deed and Sales History
| 1 | 08/07/2014 | SWD | STATUTORY WARRANTY DEED | GARR JANET K | SHANNON POTTER SPECIAL NEEDS TRUST | | | $118,000.00 | 126406 | 2014-05639 |
| 2 | 09/25/1980 | WARRANTY D | WARRANTY DEED | | | | | $8,000.00 | 31483 | 1248-007617 |
Payout Agreement
| No payout information available.. |