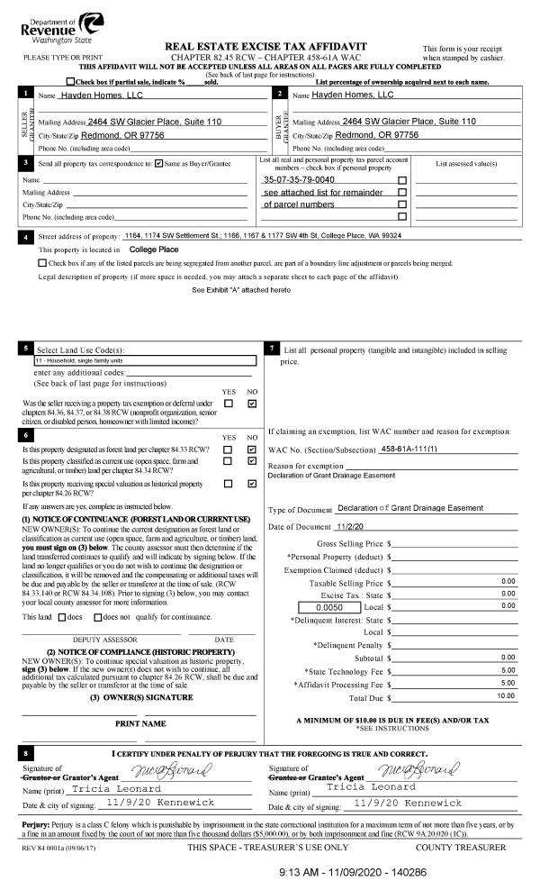
Property
Account |
| Property ID: | 29150 | Abbreviated Legal Description: | CONNER'S SUB LOT 15 BLK 14 LESS ST |
| Parcel Number: | 360719551415 | Agent Code: | |
| Type: | Real | | |
| Tax Area: | 1 - OL-140-F | Land Use Code | 11 |
| Open Space: | N | DFL | N |
| Historic Property: | N | Remodel Property: | N |
| Multi-Family Redevelopment: | N | | |
| Township: | 7 | Section: | 19 |
| Range: | 36 |
Location |
| Address: | 808 N 8TH AVE WA 99362 | Mapsco: | |
| Neighborhood: | A-SFR | Map ID: | |
| Neighborhood CD: | 313011 |
Owner |
| Name: | SPENCE MICHAEL D | Owner ID: | 56295 |
| Mailing Address: | 808 N 8TH AVE WALLA WALLA, WA 99362 | % Ownership: | 100.0000000000% |
| | | Exemptions: | |
Taxes and Assessment Details
Values
| (+) Improvement Homesite Value: | + | $0 | |
| (+) Improvement Non-Homesite Value: | + | $150,540 | |
| (+) Land Homesite Value: | + | $0 | |
| (+) Land Non-Homesite Value: | + | $63,090 | |
| (+) Curr Use (HS): | + | $0 | $0 |
| (+) Curr Use (NHS): | + | $0 | $0 |
| | | -------------------------- | |
| (=) Market Value: | = | $213,630 | |
| (–) Productivity Loss: | – | $0 | |
| | | -------------------------- | |
| (=) Subtotal: | = | $213,630 | |
| (+) Senior Appraised Value: | + | $0 | |
| (+) Non-Senior Appraised Value: | + | $213,630 | |
| | | -------------------------- | |
| (=) Total Appraised Value: | = | $213,630 | |
| (–) Senior Exemption Loss: | – | $0 | |
| (–) Exemption Loss: | – | $0 | |
| | | -------------------------- | |
| (=) Taxable Value: | = | $213,630 | |
Taxing Jurisdiction
| Owner: | SPENCE MICHAEL D | | |
| % Ownership: | 100.0000000000% | | |
| Total Value: | $213,630 | | |
| Tax Area: | 1 - OL-140-F |
| CERFD | CURRENT EXPENSE REFUND 010 | 0.0000000000 | $213,630 | $213,630 | $0.00 | | |
| CURREXP | CURRENT EXPENSE 010 | 1.0175366760 | $213,630 | $213,630 | $217.38 | | |
| HUMNSERV | HUMAN SERVICES 119 | 0.0250000000 | $213,630 | $213,630 | $5.34 | | |
| SLDREL | SOLDIERS RELIEF 121 | 0.0155990005 | $213,630 | $213,630 | $3.33 | | |
| EMERGSER | EMS 147 | 0.3792580840 | $213,630 | $213,630 | $81.02 | | |
| EMSRFD | EMS REFUND 147 | 0.0000000000 | $213,630 | $213,630 | $0.00 | | |
| PORTRFD | PORT REFUND 640 | 0.0000000000 | $213,630 | $213,630 | $0.00 | | |
| PORTWWGEN | PORT OF WW 640 | 0.2460186015 | $213,630 | $213,630 | $52.56 | | |
| SD140BOND | SD #140 BOND 764 | 0.8342371393 | $213,630 | $213,630 | $178.22 | | |
| SD140GEN | SD #140 GENERAL 760 | 2.0646500647 | $213,630 | $213,630 | $441.07 | | |
| ST2 | STATE SCHOOL PART 2 600 | 0.8131451643 | $213,630 | $213,630 | $173.71 | | |
| STATESCHL | STATE SCHOOL 600 | 1.5158548041 | $213,630 | $213,630 | $323.83 | | |
| STREFUND | STATE REFUND LEVY 603 | 0.0000000000 | $213,630 | $213,630 | $0.00 | | |
| CWWBOND | C OF WW BOND 643 | 0.2760494372 | $213,630 | $213,630 | $58.97 | | |
| CWWGEN | CITY OF WW 631 | 1.6100204973 | $213,630 | $213,630 | $343.95 | | |
| CWWRFD | CITY OF WALLA WALLA REFUND 631 | 0.0000000000 | $213,630 | $213,630 | $0.00 | | |
| | Total Tax Rate: | 8.7973694689 | | | | | |
| | | | | Taxes w/Current Exemptions: | $1,879.38 | | |
| | | | | Taxes w/o Exemptions: | $1,879.38 | | |
Improvement / Building
| Improvement #1: | RESIDENTIAL | State Code: | 11 | 1694.0 sqft | Value: | $150,540 |
| Exterior Wall: | METAL/STEEL | Heating/Cooling: | WARM & COOLED AIR | | Number of Bathrooms: | 1 | Number of Bedrooms: | 2 | | Plumbing: | 6 | Roof Covering: | COMP SHINGLE |
|
| | Type | Description | Class CD | Sub Class CD | Year Built | Area |
| | MA | Main Area | 4 | 30 | 1903 | 1694.0 |
| | SI1 | SITE IMPROVEMENT | 4 | 30 | 0 | 1.0 |
| | DTG | Detached Garage | 4 | 30 | 1903 | 624.0 |
| | RPS | PORCH W/STEPS,ROOF | 4 | 30 | 1903 | 196.0 |
| | UPFL | Upper Floor (included in main area) | 4 | 30 | 1903 | 380.0 |
Sketch
Property Image
Land
| 1 | RES 1 | Converted: Residential | 0.1864 | 8120.00 | 0.00 | 0.00 | 1.00 | $63,090 | $0 |
Roll Value History
| 2025 | N/A | N/A | N/A | N/A | N/A |
| 2024 | $150,540 | $63,090 | $0 | $213,630 | $213,630 |
| 2023 | $150,540 | $63,090 | $0 | $213,630 | $213,630 |
| 2022 | $136,850 | $63,090 | $0 | $199,940 | $199,940 |
| 2021 | $150,400 | $25,900 | $0 | $176,300 | $176,300 |
| 2020 | $111,410 | $25,900 | $0 | $137,310 | $137,310 |
| 2019 | $111,410 | $25,900 | $0 | $137,310 | $137,310 |
| 2018 | $74,270 | $25,900 | $0 | $100,170 | $100,170 |
| 2017 | $74,270 | $25,900 | $0 | $100,170 | $100,170 |
| 2016 | $74,270 | $25,900 | $0 | $100,170 | $100,170 |
| 2015 | $77,500 | $25,900 | $0 | $103,400 | $103,400 |
| 2014 | $77,500 | $25,900 | $0 | $103,400 | $103,400 |
| 2013 | $77,500 | $25,900 | $0 | $103,400 | $103,400 |
| 2012 | $77,500 | $25,900 | $0 | $0 | $0 |
| 2011 | $77,500 | $25,900 | $0 | $0 | $0 |
| 2010 | $75,800 | $25,900 | $0 | $0 | $0 |
| 2009 | $93,900 | $13,100 | $0 | $0 | $0 |
| 2008 | $53,800 | $13,100 | $0 | $0 | $0 |
| 2007 | $53,800 | $13,100 | $0 | $0 | $0 |
| 2006 | $53,800 | $13,100 | $0 | $0 | $0 |
Deed and Sales History
| 1 | 03/10/2015 | SWD | STATUTORY WARRANTY DEED | TOLAND GLENN R | SPENCE MICHAEL D | | | $90,000.00 | 127558 | 2015-02034 |
| 2 | 02/20/1974 | WARRANTY D | WARRANTY DEED | | | | | $0.00 | 0 | 1305-34961 |
Payout Agreement
| No payout information available.. |