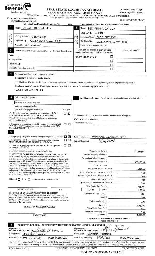
Property
Account |
| Property ID: | 29123 | Abbreviated Legal Description: | ARLENES #3 LOT 5 BLK 1 |
| Parcel Number: | 310807560105 | Agent Code: | |
| Type: | Real | | |
| Tax Area: | 328 - 400-M-5 | Land Use Code | 11 |
| Open Space: | N | DFL | N |
| Historic Property: | N | Remodel Property: | N |
| Multi-Family Redevelopment: | N | | |
| Township: | 8 | Section: | 7 |
| Range: | 31 |
Location |
| Address: | 310 EDITH ST WA 99323 | Mapsco: | |
| Neighborhood: | G BURBANK MH | Map ID: | |
| Neighborhood CD: | 214761 |
Owner |
| Name: | COCKRUM CODY R & MAKINNA M | Owner ID: | 69131 |
| Mailing Address: | 1435 S HUSKY DR MOSES LAKE, WA 98837 | % Ownership: | 100.0000000000% |
| | | Exemptions: | |
Taxes and Assessment Details
Values
| (+) Improvement Homesite Value: | + | $0 | |
| (+) Improvement Non-Homesite Value: | + | $264,620 | |
| (+) Land Homesite Value: | + | $0 | |
| (+) Land Non-Homesite Value: | + | $75,000 | |
| (+) Curr Use (HS): | + | $0 | $0 |
| (+) Curr Use (NHS): | + | $0 | $0 |
| | | -------------------------- | |
| (=) Market Value: | = | $339,620 | |
| (–) Productivity Loss: | – | $0 | |
| | | -------------------------- | |
| (=) Subtotal: | = | $339,620 | |
| (+) Senior Appraised Value: | + | $0 | |
| (+) Non-Senior Appraised Value: | + | $339,620 | |
| | | -------------------------- | |
| (=) Total Appraised Value: | = | $339,620 | |
| (–) Senior Exemption Loss: | – | $0 | |
| (–) Exemption Loss: | – | $0 | |
| | | -------------------------- | |
| (=) Taxable Value: | = | $339,620 | |
Taxing Jurisdiction
| Owner: | COCKRUM CODY R & MAKINNA M | | |
| % Ownership: | 100.0000000000% | | |
| Total Value: | $339,620 | | |
| Tax Area: | 328 - 400-M-5 |
| CERFD | CURRENT EXPENSE REFUND 010 | 0.0000000000 | $339,620 | $339,620 | $0.00 | | |
| CURREXP | CURRENT EXPENSE 010 | 1.0175366760 | $339,620 | $339,620 | $345.58 | | |
| HUMNSERV | HUMAN SERVICES 119 | 0.0250000000 | $339,620 | $339,620 | $8.49 | | |
| SLDREL | SOLDIERS RELIEF 121 | 0.0155990005 | $339,620 | $339,620 | $5.30 | | |
| EMERGSER | EMS 147 | 0.3792580840 | $339,620 | $339,620 | $128.80 | | |
| EMSRFD | EMS REFUND 147 | 0.0000000000 | $339,620 | $339,620 | $0.00 | | |
| FD5EXP | FD #5 EXPENSE 689 | 1.2045331840 | $339,620 | $339,620 | $409.08 | | |
| RLBRFD | RURAL LIBRARY REFUND 623 | 0.0000000000 | $339,620 | $339,620 | $0.00 | | |
| RURALLIB | RURAL LIBRARY 623 | 0.3710609029 | $339,620 | $339,620 | $126.02 | | |
| PORTRFD | PORT REFUND 640 | 0.0000000000 | $339,620 | $339,620 | $0.00 | | |
| PORTWWGEN | PORT OF WW 640 | 0.2460186015 | $339,620 | $339,620 | $83.55 | | |
| SD400BOND | SD #400 BOND 793 | 0.0000000000 | $339,620 | $339,620 | $0.00 | | |
| SD400CAP | SD #400 CP 792 | 0.3443722657 | $339,620 | $339,620 | $116.96 | | |
| SD400GEN | SD #400 GENERAL 790 | 1.9278469916 | $339,620 | $339,620 | $654.74 | | |
| ST2 | STATE SCHOOL PART 2 600 | 0.8131451643 | $339,620 | $339,620 | $276.16 | | |
| STATESCHL | STATE SCHOOL 600 | 1.5158548041 | $339,620 | $339,620 | $514.81 | | |
| STREFUND | STATE REFUND LEVY 603 | 0.0000000000 | $339,620 | $339,620 | $0.00 | | |
| COROAD | COUNTY ROAD 115 | 1.6549953990 | $339,620 | $339,620 | $562.07 | | |
| CRPRD | COUNTY ROAD REFUND 115 | 0.0000000000 | $339,620 | $339,620 | $0.00 | | |
| | Total Tax Rate: | 9.5152210736 | | | | | |
| | | | | Taxes w/Current Exemptions: | $3,231.56 | | |
| | | | | Taxes w/o Exemptions: | $3,231.56 | | |
Improvement / Building
| Improvement #1: | MANUFACTURED HOME | State Code: | 11 | 1874.0 sqft | Value: | $264,620 |
| Exterior Wall: | VINYL | Heating/Cooling: | HEAT PUMP | | Number of Bathrooms: | 2 | Number of Bedrooms: | 3 | | Plumbing: | 8 | Roof Covering: | COMP SHINGLE |
|
| | Type | Description | Class CD | Sub Class CD | Year Built | Area |
| | MOBHOME | MANUFACTURD HOMES | 1 | 30 | 1990 | 1874.0 |
| | MI1 | MH SET-UP COSTS | 1 | 30 | 1990 | 1.0 |
| | DTG | Detached Garage | 1 | 30 | 1990 | 600.0 |
| | S1F | Single One Story Fireplace | 1 | 30 | 1990 | 1.0 |
| | CPC | COVERED CARPORT/PATIO | 1 | 30 | 1990 | 250.0 |
Sketch
Property Image
Land
| 1 | RES 1 | Converted: Residential | 0.0000 | 0.00 | 0.00 | 0.00 | 1.00 | $75,000 | $0 |
Roll Value History
| 2025 | N/A | N/A | N/A | N/A | N/A |
| 2024 | $317,540 | $75,000 | $0 | $392,540 | $392,540 |
| 2023 | $264,620 | $75,000 | $0 | $339,620 | $339,620 |
| 2022 | $240,560 | $75,000 | $0 | $315,560 | $315,560 |
| 2021 | $150,350 | $75,000 | $0 | $225,350 | $225,350 |
| 2020 | $146,400 | $35,000 | $0 | $181,400 | $181,400 |
| 2019 | $146,400 | $35,000 | $0 | $181,400 | $181,400 |
| 2018 | $112,610 | $35,000 | $0 | $147,610 | $147,610 |
| 2017 | $107,250 | $35,000 | $0 | $142,250 | $142,250 |
| 2016 | $97,500 | $35,000 | $0 | $132,500 | $132,500 |
| 2015 | $97,500 | $35,000 | $0 | $132,500 | $132,500 |
| 2014 | $97,500 | $35,000 | $0 | $132,500 | $132,500 |
| 2013 | $97,500 | $35,000 | $0 | $132,500 | $132,500 |
| 2012 | $97,500 | $35,000 | $0 | $0 | $0 |
| 2011 | $97,500 | $35,000 | $0 | $0 | $0 |
| 2010 | $97,500 | $35,000 | $0 | $0 | $0 |
| 2009 | $118,100 | $25,000 | $0 | $0 | $0 |
| 2008 | $99,400 | $25,000 | $0 | $0 | $0 |
| 2007 | $99,400 | $25,000 | $0 | $0 | $0 |
| 2006 | $99,400 | $25,000 | $0 | $0 | $0 |
Deed and Sales History
| 1 | 03/24/2021 | QCD | QUIT CLAIM DEED | COCKRUM CODY R & MAKINNA M | COCKRUM CODY R & MAKINNA M | | | $0.00 | 141201 | 2021-03544 |
| 2 | 08/30/2019 | SWD | STATUTORY WARRANTY DEED | MARTIN RANDALL P ESTATE OF | COCKRUM CODY R & MAKINNA M | | | $225,000.00 | 137608 | 2019-06768 |
| 3 | 04/06/2012 | WARRANTY D | WARRANTY DEED | MARTIN, ESTATES OF CLARENCE | MARTIN, RANDALL P | | | | 121632 | 2012-02743 |
Payout Agreement
| No payout information available.. |