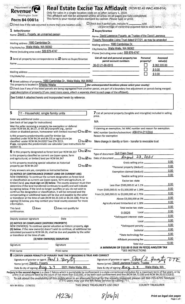
Property
Account |
| Property ID: | 29122 | Abbreviated Legal Description: | WALLULA TOWNSITE LOTS 29 THRU 32 BLOCK 6 |
| Parcel Number: | 310714510636 | Agent Code: | |
| Type: | Real | | |
| Tax Area: | 327 - 400-5-WI-C-M | Land Use Code | 11 |
| Open Space: | N | DFL | N |
| Historic Property: | N | Remodel Property: | N |
| Multi-Family Redevelopment: | N | | |
| Township: | 7 | Section: | 14 |
| Range: | 31 |
Location |
| Address: | 179 ROSS WAY WA 99363 | Mapsco: | |
| Neighborhood: | Wallula A SFR | Map ID: | |
| Neighborhood CD: | 213811 |
Owner |
| Name: | RIVERA STEVEN H & MYRIAM J RODRIGUEZ | Owner ID: | 66920 |
| Mailing Address: | PO BOX 125 WALLULA, WA 99363 | % Ownership: | 100.0000000000% |
| | | Exemptions: | |
Taxes and Assessment Details
Values
| (+) Improvement Homesite Value: | + | $31,150 | |
| (+) Improvement Non-Homesite Value: | + | $0 | |
| (+) Land Homesite Value: | + | $36,430 | |
| (+) Land Non-Homesite Value: | + | $0 | |
| (+) Curr Use (HS): | + | $0 | $0 |
| (+) Curr Use (NHS): | + | $0 | $0 |
| | | -------------------------- | |
| (=) Market Value: | = | $67,580 | |
| (–) Productivity Loss: | – | $0 | |
| | | -------------------------- | |
| (=) Subtotal: | = | $67,580 | |
| (+) Senior Appraised Value: | + | $0 | |
| (+) Non-Senior Appraised Value: | + | $67,580 | |
| | | -------------------------- | |
| (=) Total Appraised Value: | = | $67,580 | |
| (–) Senior Exemption Loss: | – | $0 | |
| (–) Exemption Loss: | – | $0 | |
| | | -------------------------- | |
| (=) Taxable Value: | = | $67,580 | |
Taxing Jurisdiction
| Owner: | RIVERA STEVEN H & MYRIAM J RODRIGUEZ | | |
| % Ownership: | 100.0000000000% | | |
| Total Value: | $67,580 | | |
| Tax Area: | 327 - 400-5-WI-C-M |
| CERFD | CURRENT EXPENSE REFUND 010 | 0.0000000000 | $67,580 | $67,580 | $0.00 | | |
| CURREXP | CURRENT EXPENSE 010 | 1.0175366760 | $67,580 | $67,580 | $68.77 | | |
| HUMNSERV | HUMAN SERVICES 119 | 0.0250000000 | $67,580 | $67,580 | $1.69 | | |
| SLDREL | SOLDIERS RELIEF 121 | 0.0155990005 | $67,580 | $67,580 | $1.05 | | |
| EMERGSER | EMS 147 | 0.3792580840 | $67,580 | $67,580 | $25.63 | | |
| EMSRFD | EMS REFUND 147 | 0.0000000000 | $67,580 | $67,580 | $0.00 | | |
| FD5EXP | FD #5 EXPENSE 689 | 1.2045331840 | $67,580 | $67,580 | $81.40 | | |
| RLBRFD | RURAL LIBRARY REFUND 623 | 0.0000000000 | $67,580 | $67,580 | $0.00 | | |
| RURALLIB | RURAL LIBRARY 623 | 0.3710609029 | $67,580 | $67,580 | $25.08 | | |
| PORTRFD | PORT REFUND 640 | 0.0000000000 | $67,580 | $67,580 | $0.00 | | |
| PORTWWGEN | PORT OF WW 640 | 0.2460186015 | $67,580 | $67,580 | $16.63 | | |
| SD400BOND | SD #400 BOND 793 | 0.0000000000 | $67,580 | $67,580 | $0.00 | | |
| SD400CAP | SD #400 CP 792 | 0.3443722657 | $67,580 | $67,580 | $23.27 | | |
| SD400GEN | SD #400 GENERAL 790 | 1.9278469916 | $67,580 | $67,580 | $130.28 | | |
| ST2 | STATE SCHOOL PART 2 600 | 0.8131451643 | $67,580 | $67,580 | $54.95 | | |
| STATESCHL | STATE SCHOOL 600 | 1.5158548041 | $67,580 | $67,580 | $102.44 | | |
| STREFUND | STATE REFUND LEVY 603 | 0.0000000000 | $67,580 | $67,580 | $0.00 | | |
| COROAD | COUNTY ROAD 115 | 1.6549953990 | $67,580 | $67,580 | $111.84 | | |
| CRPRD | COUNTY ROAD REFUND 115 | 0.0000000000 | $67,580 | $67,580 | $0.00 | | |
| | Total Tax Rate: | 9.5152210736 | | | | | |
| | | | | Taxes w/Current Exemptions: | $643.03 | | |
| | | | | Taxes w/o Exemptions: | $643.03 | | |
Improvement / Building
| Improvement #1: | RESIDENTIAL | State Code: | 11 | 608.0 sqft | Value: | $31,150 |
| Exterior Wall: | PLYWOOD | Heating/Cooling: | BASEBOARD ELECTRIC | | Number of Bathrooms: | 1 | Number of Bedrooms: | 1 | | Plumbing: | 6 | Roof Covering: | GALVANIZED METAL |
|
| | Type | Description | Class CD | Sub Class CD | Year Built | Area |
| | MA | Main Area | 1 | 10 | 1994 | 608.0 |
| | SI1 | SITE IMPROVEMENT | 1 | 10 | 1994 | 1.0 |
| | WOD | Wood Deck | 1 | 10 | 1994 | 112.0 |
Sketch
Property Image
Land
| 1 | RES 1 | Converted: Residential | 0.4752 | 20700.00 | 0.00 | 0.00 | 1.00 | $36,430 | $0 |
Roll Value History
| 2025 | N/A | N/A | N/A | N/A | N/A |
| 2024 | $34,260 | $36,430 | $0 | $70,690 | $70,690 |
| 2023 | $31,150 | $36,430 | $0 | $67,580 | $67,580 |
| 2022 | $31,150 | $36,430 | $0 | $67,580 | $67,580 |
| 2021 | $23,960 | $36,430 | $0 | $60,390 | $60,390 |
| 2020 | $30,250 | $13,000 | $0 | $43,250 | $43,250 |
| 2019 | $30,250 | $13,000 | $0 | $43,250 | $43,250 |
| 2018 | $27,500 | $13,000 | $0 | $40,500 | $40,500 |
| 2017 | $27,500 | $13,000 | $0 | $40,500 | $40,500 |
| 2016 | $27,500 | $13,000 | $0 | $40,500 | $40,500 |
| 2015 | $25,000 | $13,000 | $0 | $38,000 | $38,000 |
| 2014 | $25,000 | $13,000 | $0 | $38,000 | $0 |
| 2013 | $25,000 | $13,000 | $0 | $38,000 | $0 |
| 2012 | $25,000 | $13,000 | $0 | $0 | $0 |
| 2011 | $25,000 | $13,000 | $0 | $0 | $0 |
| 2010 | $25,000 | $13,000 | $0 | $0 | $0 |
| 2009 | $10,800 | $10,800 | $0 | $0 | $0 |
| 2008 | $10,800 | $10,800 | $0 | $0 | $0 |
| 2007 | $10,800 | $10,800 | $0 | $0 | $0 |
| 2006 | $25,000 | $13,000 | $0 | $0 | $0 |
Deed and Sales History
| 1 | 04/02/2020 | SWD | STATUTORY WARRANTY DEED | YU HONGYAN & BOHAO HUANG | RIVERA STEVEN H & MYRIAM J RODRIGUEZ | | | $68,000.00 | 138890 | 2020-02919 |
| 2 | 05/12/2017 | SWD | STATUTORY WARRANTY DEED | PARKER JAMES W ESTATE OF | YU HONGYAN & BOHAO HUANG | | | $20,000.00 | 132373 | 2017-03578 |
| 3 | 03/30/1992 | QCD | QUIT CLAIM DEED | | | | | $3,250.00 | 76572 | 1959-202734 |
Payout Agreement
| No payout information available.. |