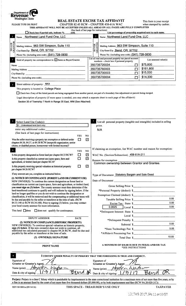
Property
Account |
| Property ID: | 28935 | Abbreviated Legal Description: | SHERBURNE ADDN LOT 9 BLK 3 |
| Parcel Number: | 350736740309 | Agent Code: | |
| Type: | Real | | |
| Tax Area: | 75 - CP 250 | Land Use Code | 11 |
| Open Space: | N | DFL | N |
| Historic Property: | N | Remodel Property: | N |
| Multi-Family Redevelopment: | N | | |
| Township: | 7 | Section: | 36 |
| Range: | 35 |
Location |
| Address: | 532 SE MOCKINGBIRD DR WA 99324 | Mapsco: | |
| Neighborhood: | G SFR | Map ID: | |
| Neighborhood CD: | 114011 |
Owner |
| Name: | TREFZ VICKI L | Owner ID: | 68239 |
| Mailing Address: | 532 SE MOCKINGBIRD DR COLLEGE PLACE, WA 99324 | % Ownership: | 100.0000000000% |
| | | Exemptions: | |
Taxes and Assessment Details
Values
| (+) Improvement Homesite Value: | + | $0 | |
| (+) Improvement Non-Homesite Value: | + | $293,150 | |
| (+) Land Homesite Value: | + | $0 | |
| (+) Land Non-Homesite Value: | + | $75,000 | |
| (+) Curr Use (HS): | + | $0 | $0 |
| (+) Curr Use (NHS): | + | $0 | $0 |
| | | -------------------------- | |
| (=) Market Value: | = | $368,150 | |
| (–) Productivity Loss: | – | $0 | |
| | | -------------------------- | |
| (=) Subtotal: | = | $368,150 | |
| (+) Senior Appraised Value: | + | $0 | |
| (+) Non-Senior Appraised Value: | + | $368,150 | |
| | | -------------------------- | |
| (=) Total Appraised Value: | = | $368,150 | |
| (–) Senior Exemption Loss: | – | $0 | |
| (–) Exemption Loss: | – | $0 | |
| | | -------------------------- | |
| (=) Taxable Value: | = | $368,150 | |
Taxing Jurisdiction
| Owner: | TREFZ VICKI L | | |
| % Ownership: | 100.0000000000% | | |
| Total Value: | $368,150 | | |
| Tax Area: | 75 - CP 250 |
| CERFD | CURRENT EXPENSE REFUND 010 | 0.0000000000 | $368,150 | $368,150 | $0.00 | | |
| CURREXP | CURRENT EXPENSE 010 | 1.0175366760 | $368,150 | $368,150 | $374.61 | | |
| HUMNSERV | HUMAN SERVICES 119 | 0.0250000000 | $368,150 | $368,150 | $9.20 | | |
| SLDREL | SOLDIERS RELIEF 121 | 0.0155990005 | $368,150 | $368,150 | $5.74 | | |
| COLLPLBOND | C OF CP BOND 644 | 0.4374241808 | $368,150 | $368,150 | $161.04 | | |
| COLLPLGEN | CITY OF CP 632 | 1.4453819216 | $368,150 | $368,150 | $532.12 | | |
| EMERGSER | EMS 147 | 0.3792580840 | $368,150 | $368,150 | $139.62 | | |
| EMSRFD | EMS REFUND 147 | 0.0000000000 | $368,150 | $368,150 | $0.00 | | |
| RURALLIB | RURAL LIBRARY 623 | 0.3710609029 | $368,150 | $368,150 | $136.61 | | |
| PORTRFD | PORT REFUND 640 | 0.0000000000 | $368,150 | $368,150 | $0.00 | | |
| PORTWWGEN | PORT OF WW 640 | 0.2460186015 | $368,150 | $368,150 | $90.57 | | |
| SD250BOND | SD #250 BOND 773 | 1.4560608159 | $368,150 | $368,150 | $536.05 | | |
| SD250GEN | SD #250 GENERAL 770 | 2.3880724087 | $368,150 | $368,150 | $879.17 | | |
| ST2 | STATE SCHOOL PART 2 600 | 0.8131451643 | $368,150 | $368,150 | $299.36 | | |
| STATESCHL | STATE SCHOOL 600 | 1.5158548041 | $368,150 | $368,150 | $558.06 | | |
| STREFUND | STATE REFUND LEVY 603 | 0.0000000000 | $368,150 | $368,150 | $0.00 | | |
| | Total Tax Rate: | 10.1104125603 | | | | | |
| | | | | Taxes w/Current Exemptions: | $3,722.15 | | |
| | | | | Taxes w/o Exemptions: | $3,722.15 | | |
Improvement / Building
| Improvement #1: | RESIDENTIAL | State Code: | 11 | 1440.0 sqft | Value: | $293,150 |
| Exterior Wall: | VINYL | Heating/Cooling: | WARM & COOLED AIR | | Number of Bathrooms: | 2 | Number of Bedrooms: | 3 | | Plumbing: | 9 | Roof Covering: | COMP SHINGLE |
|
| | Type | Description | Class CD | Sub Class CD | Year Built | Area |
| | MA | Main Area | 1 | 35 | 1998 | 1440.0 |
| | SI1 | SITE IMPROVEMENT | 1 | 35 | 1998 | 2.0 |
| | ATG | Attached Garage | 1 | 35 | 1998 | 520.0 |
| | RPO | OPEN PORCH W/ROOF | 1 | 35 | 1998 | 100.0 |
| | S1F | Single One Story Fireplace | 1 | 35 | 1998 | 1.0 |
Sketch
Property Image
Land
| 1 | RES 1 | Converted: Residential | 0.1971 | 8585.00 | 0.00 | 0.00 | 1.00 | $75,000 | $0 |
Roll Value History
| 2025 | N/A | N/A | N/A | N/A | N/A |
| 2024 | $307,810 | $75,000 | $0 | $382,810 | $382,810 |
| 2023 | $293,150 | $75,000 | $0 | $368,150 | $368,150 |
| 2022 | $254,910 | $75,000 | $0 | $329,910 | $329,910 |
| 2021 | $242,770 | $75,000 | $0 | $317,770 | $317,770 |
| 2020 | $167,430 | $75,000 | $0 | $242,430 | $242,430 |
| 2019 | $177,430 | $65,000 | $0 | $242,430 | $53,040 |
| 2018 | $147,860 | $65,000 | $0 | $212,860 | $53,040 |
| 2017 | $147,860 | $65,000 | $0 | $212,860 | $53,040 |
| 2016 | $134,420 | $65,000 | $0 | $199,420 | $53,040 |
| 2015 | $122,200 | $65,000 | $0 | $187,200 | $53,040 |
| 2014 | $122,200 | $65,000 | $0 | $187,200 | $53,040 |
| 2013 | $122,200 | $65,000 | $0 | $187,200 | $53,040 |
| 2012 | $143,000 | $65,000 | $0 | $0 | $0 |
| 2011 | $143,000 | $65,000 | $0 | $0 | $0 |
| 2010 | $143,000 | $65,000 | $0 | $0 | $0 |
| 2009 | $153,900 | $65,000 | $0 | $0 | $0 |
| 2008 | $112,900 | $30,000 | $0 | $0 | $0 |
| 2007 | $112,900 | $30,000 | $0 | $0 | $0 |
| 2006 | $112,900 | $30,000 | $0 | $0 | $0 |
Deed and Sales History
| 1 | 11/04/2020 | SWD | STATUTORY WARRANTY DEED | VARNELL DANNY D ESTATE OF | TREFZ VICKI L | | | $317,000.00 | 140253 | 2020-11549 |
| 2 | 11/04/2020 | LOPA | LACK OF PROBATE AFFIDAVIT | VARNELL DANNY D | VARNELL DANNY D ESTATE OF | | | | 140252 | 2020-11548 |
| 3 | 01/29/1999 | WARRANTY D | WARRANTY DEED | | | | | $137,000.00 | 92112 | 2799-901196 |
Payout Agreement
| No payout information available.. |