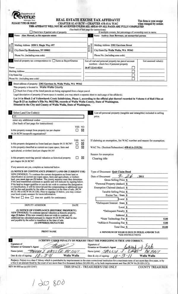
Property
Account |
| Property ID: | 28930 | Abbreviated Legal Description: | REPLAT OF GARRISON CRK HGTS LOT 13 BLK 1 |
| Parcel Number: | 350736700113 | Agent Code: | |
| Type: | Real | | |
| Tax Area: | 77 - CP-250-F | Land Use Code | 12 |
| Open Space: | N | DFL | N |
| Historic Property: | N | Remodel Property: | N |
| Multi-Family Redevelopment: | N | | |
| Township: | 7 | Section: | 36 |
| Range: | 35 |
Location |
| Address: | 803 SE SENTRY DR WA 99324 | Mapsco: | |
| Neighborhood: | G Duplex | Map ID: | |
| Neighborhood CD: | 114031 |
Owner |
| Name: | FRIEDEMANN RALPH W & JUDITH S | Owner ID: | 71689 |
| Mailing Address: | 803 SE SENTRY DR COLLEGE PLACE, WA 99324 | % Ownership: | 100.0000000000% |
| | | Exemptions: | |
Taxes and Assessment Details
Values
| (+) Improvement Homesite Value: | + | $254,140 | |
| (+) Improvement Non-Homesite Value: | + | $0 | |
| (+) Land Homesite Value: | + | $75,000 | |
| (+) Land Non-Homesite Value: | + | $0 | |
| (+) Curr Use (HS): | + | $0 | $0 |
| (+) Curr Use (NHS): | + | $0 | $0 |
| | | -------------------------- | |
| (=) Market Value: | = | $329,140 | |
| (–) Productivity Loss: | – | $0 | |
| | | -------------------------- | |
| (=) Subtotal: | = | $329,140 | |
| (+) Senior Appraised Value: | + | $0 | |
| (+) Non-Senior Appraised Value: | + | $329,140 | |
| | | -------------------------- | |
| (=) Total Appraised Value: | = | $329,140 | |
| (–) Senior Exemption Loss: | – | $0 | |
| (–) Exemption Loss: | – | $0 | |
| | | -------------------------- | |
| (=) Taxable Value: | = | $329,140 | |
Taxing Jurisdiction
| Owner: | FRIEDEMANN RALPH W & JUDITH S | | |
| % Ownership: | 100.0000000000% | | |
| Total Value: | $329,140 | | |
| Tax Area: | 77 - CP-250-F |
| CERFD | CURRENT EXPENSE REFUND 010 | 0.0000000000 | $329,140 | $329,140 | $0.00 | | |
| CURREXP | CURRENT EXPENSE 010 | 1.0175366760 | $329,140 | $329,140 | $334.91 | | |
| HUMNSERV | HUMAN SERVICES 119 | 0.0250000000 | $329,140 | $329,140 | $8.23 | | |
| SLDREL | SOLDIERS RELIEF 121 | 0.0155990005 | $329,140 | $329,140 | $5.13 | | |
| COLLPLBOND | C OF CP BOND 644 | 0.4374241808 | $329,140 | $329,140 | $143.97 | | |
| COLLPLGEN | CITY OF CP 632 | 1.4453819216 | $329,140 | $329,140 | $475.73 | | |
| EMERGSER | EMS 147 | 0.3792580840 | $329,140 | $329,140 | $124.83 | | |
| EMSRFD | EMS REFUND 147 | 0.0000000000 | $329,140 | $329,140 | $0.00 | | |
| RURALLIB | RURAL LIBRARY 623 | 0.3710609029 | $329,140 | $329,140 | $122.13 | | |
| PORTRFD | PORT REFUND 640 | 0.0000000000 | $329,140 | $329,140 | $0.00 | | |
| PORTWWGEN | PORT OF WW 640 | 0.2460186015 | $329,140 | $329,140 | $80.97 | | |
| SD250BOND | SD #250 BOND 773 | 1.4560608159 | $329,140 | $329,140 | $479.25 | | |
| SD250GEN | SD #250 GENERAL 770 | 2.3880724087 | $329,140 | $329,140 | $786.01 | | |
| ST2 | STATE SCHOOL PART 2 600 | 0.8131451643 | $329,140 | $329,140 | $267.64 | | |
| STATESCHL | STATE SCHOOL 600 | 1.5158548041 | $329,140 | $329,140 | $498.93 | | |
| STREFUND | STATE REFUND LEVY 603 | 0.0000000000 | $329,140 | $329,140 | $0.00 | | |
| | Total Tax Rate: | 10.1104125603 | | | | | |
| | | | | Taxes w/Current Exemptions: | $3,327.73 | | |
| | | | | Taxes w/o Exemptions: | $3,327.73 | | |
Improvement / Building
| Improvement #1: | RESIDENTIAL | State Code: | 12 | 1346.0 sqft | Value: | $254,140 |
| Exterior Wall: | PLYWOOD | Heating/Cooling: | HEAT PUMP | | Number of Bathrooms: | 2 | Number of Bedrooms: | 2 | | Plumbing: | 9 | Roof Covering: | COMP SHINGLE |
|
| | Type | Description | Class CD | Sub Class CD | Year Built | Area |
| | MA | Main Area | 1 | 40 | 1989 | 1346.0 |
| | RPO | OPEN PORCH W/ROOF | 1 | 40 | 1989 | 44.0 |
| | SI1 | SITE IMPROVEMENT | 1 | 40 | 1989 | 1.5 |
| | ATG | Attached Garage | 1 | 40 | 1989 | 440.0 |
| | RPC | OPEN PORCH W/ROOF , CEILED | 1 | 40 | 1989 | 42.0 |
Sketch
Property Image
Land
| 1 | RES 1 | Converted: Residential | 0.1453 | 6330.00 | 0.00 | 0.00 | 1.00 | $75,000 | $0 |
Roll Value History
| 2025 | N/A | N/A | N/A | N/A | N/A |
| 2024 | $273,100 | $75,000 | $0 | $348,100 | $348,100 |
| 2023 | $254,140 | $75,000 | $0 | $329,140 | $329,140 |
| 2022 | $220,990 | $75,000 | $0 | $295,990 | $295,990 |
| 2021 | $169,990 | $75,000 | $0 | $244,990 | $48,400 |
| 2020 | $125,920 | $75,000 | $0 | $200,920 | $48,400 |
| 2019 | $168,420 | $32,500 | $0 | $200,920 | $48,400 |
| 2018 | $160,400 | $32,500 | $0 | $192,900 | $48,400 |
| 2017 | $128,320 | $32,500 | $0 | $160,820 | $48,400 |
| 2016 | $116,660 | $32,500 | $0 | $149,160 | $48,400 |
| 2015 | $111,100 | $32,500 | $0 | $143,600 | $48,400 |
| 2014 | $111,100 | $32,500 | $0 | $143,600 | $71,000 |
| 2013 | $111,100 | $32,500 | $0 | $143,600 | $71,000 |
| 2012 | $127,100 | $32,500 | $0 | $0 | $0 |
| 2011 | $127,100 | $32,500 | $0 | $0 | $0 |
| 2010 | $127,100 | $32,500 | $0 | $0 | $0 |
| 2009 | $127,100 | $32,500 | $0 | $0 | $0 |
| 2008 | $121,000 | $0 | $0 | $0 | $0 |
| 2007 | $121,000 | $0 | $0 | $0 | $0 |
| 2006 | $121,000 | $0 | $0 | $0 | $0 |
Deed and Sales History
| 1 | 05/27/2022 | BARGAIN & | BARGAIN & SALE DEED | OVERBAUGH MARILYN G ESTATE OF | FRIEDEMANN RALPH W & JUDITH S | | | $350,000.00 | 144043 | 2022-04621 |
| 2 | 06/16/2006 | WARRANTY D | WARRANTY DEED | LODAHL, RUTH E | OVERBAUGH, MARILYN G | | | $163,000.00 | 110526 | 2006-07014 |
Payout Agreement
| No payout information available.. |