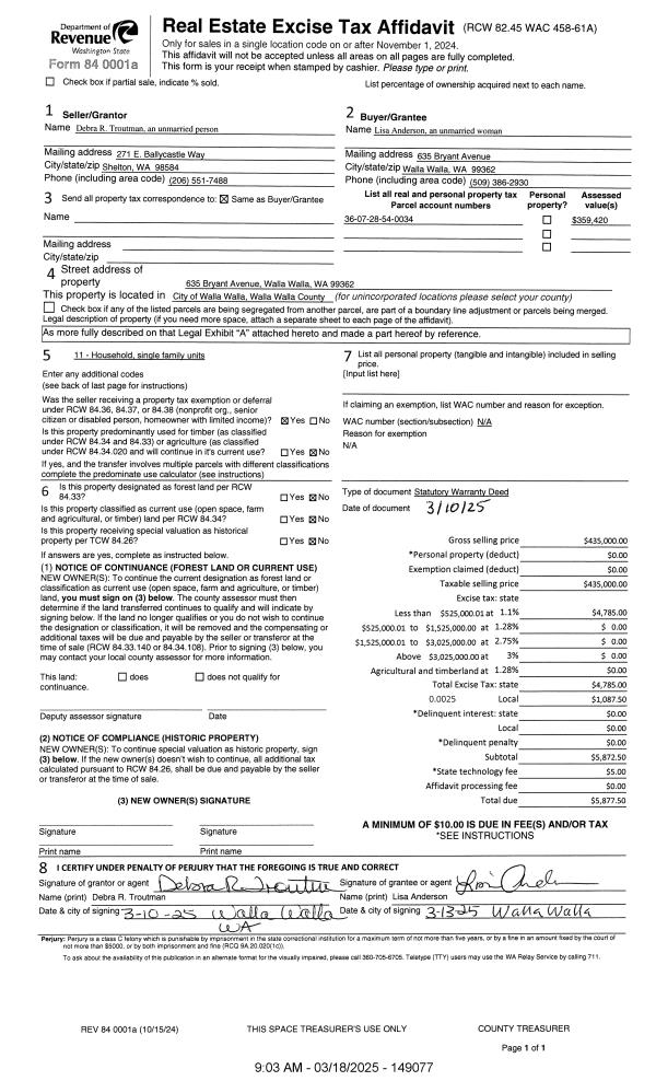
Property
Account |
| Property ID: | 28839 | Abbreviated Legal Description: | CHABOTS 2ND TAX 5 LOT 1 |
| Parcel Number: | 360729560001 | Agent Code: | |
| Type: | Real | | |
| Tax Area: | 1 - OL-140-F | Land Use Code | 12 |
| Open Space: | N | DFL | N |
| Historic Property: | N | Remodel Property: | N |
| Multi-Family Redevelopment: | N | | |
| Township: | 7 | Section: | 29 |
| Range: | 36 |
Location |
| Address: | 312 S 4TH AVE WA 99362 | Mapsco: | |
| Neighborhood: | Fair Inferior Duplex/Town | Map ID: | |
| Neighborhood CD: | 512131 |
Owner |
| Name: | VALLEJO ELLIOT | Owner ID: | 51057 |
| Mailing Address: | CAROLINE LUJAN 1195 SW SETTLEMENT ST COLLEGE PLACE, WA 99324-1283 | % Ownership: | 100.0000000000% |
| | | Exemptions: | |
Taxes and Assessment Details
Values
| (+) Improvement Homesite Value: | + | $0 | |
| (+) Improvement Non-Homesite Value: | + | $211,260 | |
| (+) Land Homesite Value: | + | $0 | |
| (+) Land Non-Homesite Value: | + | $20,750 | |
| (+) Curr Use (HS): | + | $0 | $0 |
| (+) Curr Use (NHS): | + | $0 | $0 |
| | | -------------------------- | |
| (=) Market Value: | = | $232,010 | |
| (–) Productivity Loss: | – | $0 | |
| | | -------------------------- | |
| (=) Subtotal: | = | $232,010 | |
| (+) Senior Appraised Value: | + | $0 | |
| (+) Non-Senior Appraised Value: | + | $232,010 | |
| | | -------------------------- | |
| (=) Total Appraised Value: | = | $232,010 | |
| (–) Senior Exemption Loss: | – | $0 | |
| (–) Exemption Loss: | – | $0 | |
| | | -------------------------- | |
| (=) Taxable Value: | = | $232,010 | |
Taxing Jurisdiction
| Owner: | VALLEJO ELLIOT | | |
| % Ownership: | 100.0000000000% | | |
| Total Value: | $232,010 | | |
| Tax Area: | 1 - OL-140-F |
| CERFD | CURRENT EXPENSE REFUND 010 | 0.0000000000 | $232,010 | $232,010 | $0.00 | | |
| CURREXP | CURRENT EXPENSE 010 | 1.0175366760 | $232,010 | $232,010 | $236.08 | | |
| HUMNSERV | HUMAN SERVICES 119 | 0.0250000000 | $232,010 | $232,010 | $5.80 | | |
| SLDREL | SOLDIERS RELIEF 121 | 0.0155990005 | $232,010 | $232,010 | $3.62 | | |
| EMERGSER | EMS 147 | 0.3792580840 | $232,010 | $232,010 | $87.99 | | |
| EMSRFD | EMS REFUND 147 | 0.0000000000 | $232,010 | $232,010 | $0.00 | | |
| PORTRFD | PORT REFUND 640 | 0.0000000000 | $232,010 | $232,010 | $0.00 | | |
| PORTWWGEN | PORT OF WW 640 | 0.2460186015 | $232,010 | $232,010 | $57.08 | | |
| SD140BOND | SD #140 BOND 764 | 0.8342371393 | $232,010 | $232,010 | $193.55 | | |
| SD140GEN | SD #140 GENERAL 760 | 2.0646500647 | $232,010 | $232,010 | $479.02 | | |
| ST2 | STATE SCHOOL PART 2 600 | 0.8131451643 | $232,010 | $232,010 | $188.66 | | |
| STATESCHL | STATE SCHOOL 600 | 1.5158548041 | $232,010 | $232,010 | $351.69 | | |
| STREFUND | STATE REFUND LEVY 603 | 0.0000000000 | $232,010 | $232,010 | $0.00 | | |
| CWWBOND | C OF WW BOND 643 | 0.2760494372 | $232,010 | $232,010 | $64.05 | | |
| CWWGEN | CITY OF WW 631 | 1.6100204973 | $232,010 | $232,010 | $373.54 | | |
| CWWRFD | CITY OF WALLA WALLA REFUND 631 | 0.0000000000 | $232,010 | $232,010 | $0.00 | | |
| | Total Tax Rate: | 8.7973694689 | | | | | |
| | | | | Taxes w/Current Exemptions: | $2,041.08 | | |
| | | | | Taxes w/o Exemptions: | $2,041.08 | | |
Improvement / Building
| Improvement #1: | RESIDENTIAL | State Code: | 12 | 1300.0 sqft | Value: | $211,260 |
| Exterior Wall: | STUCCO | Foundation: | SLAB FOUNDATION | | Heating/Cooling: | STOVE-NO HEAT | Number of Bathrooms: | 3 | | Number of Bedrooms: | 5 | Plumbing: | 15 | | Roof Covering: | COMP SHINGLE |   |   |
|
| | Type | Description | Class CD | Sub Class CD | Year Built | Area |
| | MA | Main Area | 1 | 20 | 1945 | 1300.0 |
| | SI1 | SITE IMPROVEMENT | 1 | 20 | 1945 | 1.0 |
| | BASE | BASEMENT | 1 | 20 | 1945 | 1300.0 |
| | BPF | BASEMENT -PARTITIONED FINISH | 1 | 20 | 1945 | 1300.0 |
| | RPS | PORCH W/STEPS,ROOF | 1 | 20 | 1945 | 40.0 |
| | RPS | PORCH W/STEPS,ROOF | 1 | 20 | 1945 | 40.0 |
| | OUT | OUTSIDE BASEMENT ENTRY | 1 | 20 | 1945 | 2.0 |
Sketch
Property Image
Land
| 1 | RES 1 | Converted: Residential | 0.0907 | 3953.00 | 0.00 | 0.00 | 1.00 | $20,750 | $0 |
Roll Value History
| 2025 | N/A | N/A | N/A | N/A | N/A |
| 2024 | $199,800 | $35,600 | $0 | $235,400 | $235,400 |
| 2023 | $211,260 | $20,750 | $0 | $232,010 | $232,010 |
| 2022 | $211,260 | $20,750 | $0 | $232,010 | $232,010 |
| 2021 | $162,500 | $20,750 | $0 | $183,250 | $183,250 |
| 2020 | $135,420 | $20,750 | $0 | $156,170 | $156,170 |
| 2019 | $135,420 | $20,750 | $0 | $156,170 | $156,170 |
| 2018 | $135,420 | $20,750 | $0 | $156,170 | $156,170 |
| 2017 | $131,560 | $23,700 | $0 | $155,260 | $155,260 |
| 2016 | $119,600 | $23,700 | $0 | $143,300 | $143,300 |
| 2015 | $119,600 | $23,700 | $0 | $143,300 | $143,300 |
| 2014 | $119,600 | $23,700 | $0 | $143,300 | $143,300 |
| 2013 | $119,600 | $23,700 | $0 | $143,300 | $143,300 |
| 2012 | $119,600 | $23,700 | $0 | $0 | $0 |
| 2011 | $119,600 | $23,700 | $0 | $0 | $0 |
| 2010 | $119,600 | $23,700 | $0 | $0 | $0 |
| 2009 | $135,500 | $23,700 | $0 | $0 | $0 |
| 2008 | $135,500 | $23,700 | $0 | $0 | $0 |
| 2007 | $81,000 | $7,900 | $0 | $0 | $0 |
| 2006 | $81,000 | $7,900 | $0 | $0 | $0 |
Deed and Sales History
| 1 | 07/18/2013 | WARRANTY D | WARRANTY DEED | DAWES, KEVIN & KAREN | VALLEJO, ELLIOT | | | $142,000.00 | 124302 | 2013-07228 |
| 2 | 09/02/2010 | QCD | QUIT CLAIM DEED | DAWES, KAREN | DAWES, KEVIN & KAREN | | | | 118962 | 2010-06900 |
| 3 | 07/20/2007 | WARRANTY D | WARRANTY DEED | BYRD, LAURA L | DAWES, KAREN | | | $160,000.00 | 113314 | 2007-08429 |
| 4 | 04/17/2006 | WARRANTY D | WARRANTY DEED | HARVEY, GARY E SR & SANDRA M | BYRD, LAURA L | | | $136,000.00 | 110049 | 2006-04325 |
| 5 | 04/14/1999 | WARRANTY D | WARRANTY DEED | | | | | $87,500.00 | 92556 | 2829-904539 |
Payout Agreement
| No payout information available.. |