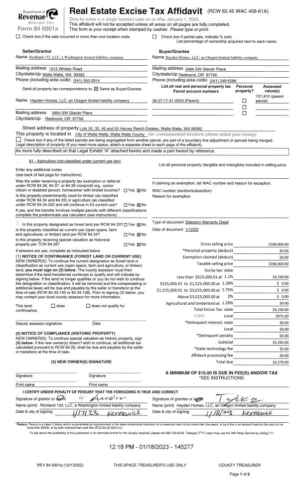
Property
Account |
| Property ID: | 28801 | Abbreviated Legal Description: | 27-7-38 W1/2NW1/4SE1/4 LESS RD |
| Parcel Number: | 380727420003 | Agent Code: | |
| Type: | Real | | |
| Tax Area: | 120 - 140 | Land Use Code | 88 |
| Open Space: | N | DFL | Y |
| Historic Property: | N | Remodel Property: | N |
| Multi-Family Redevelopment: | N | | |
| Township: | 7 | Section: | 27 |
| Range: | 38 |
Location |
| Address: | 4384 BLACKSNAKE RIDGE RD WA 99362 | Mapsco: | |
| Neighborhood: | 0 Farm | Map ID: | |
| Neighborhood CD: | 5250 |
Owner |
| Name: | FUNK RICHARD & ANITA | Owner ID: | 56108 |
| Mailing Address: | 54 BITTERROOT DR WALLA WALLA, WA 99362 | % Ownership: | 100.0000000000% |
| | | Exemptions: | |
Taxes and Assessment Details
Values
| (+) Improvement Homesite Value: | + | $0 | |
| (+) Improvement Non-Homesite Value: | + | $29,500 | |
| (+) Land Homesite Value: | + | $0 | |
| (+) Land Non-Homesite Value: | + | $35,000 | |
| (+) Curr Use (HS): | + | $0 | $0 |
| (+) Curr Use (NHS): | + | $29,030 | $1,240 |
| | | -------------------------- | |
| (=) Market Value: | = | $93,530 | |
| (–) Productivity Loss: | – | $27,790 | |
| | | -------------------------- | |
| (=) Subtotal: | = | $65,740 | |
| (+) Senior Appraised Value: | + | $0 | |
| (+) Non-Senior Appraised Value: | + | $65,740 | |
| | | -------------------------- | |
| (=) Total Appraised Value: | = | $65,740 | |
| (–) Senior Exemption Loss: | – | $0 | |
| (–) Exemption Loss: | – | $0 | |
| | | -------------------------- | |
| (=) Taxable Value: | = | $65,740 | |
Taxing Jurisdiction
| Owner: | FUNK RICHARD & ANITA | | |
| % Ownership: | 100.0000000000% | | |
| Total Value: | $93,530 | | |
| Tax Area: | 120 - 140 |
| CERFD | CURRENT EXPENSE REFUND 010 | 0.0000000000 | $65,740 | $65,740 | $0.00 | | |
| CURREXP | CURRENT EXPENSE 010 | 1.0175366760 | $65,740 | $65,740 | $66.89 | | |
| HUMNSERV | HUMAN SERVICES 119 | 0.0250000000 | $65,740 | $65,740 | $1.64 | | |
| SLDREL | SOLDIERS RELIEF 121 | 0.0155990005 | $65,740 | $65,740 | $1.03 | | |
| EMERGSER | EMS 147 | 0.3792580840 | $65,740 | $65,740 | $24.93 | | |
| EMSRFD | EMS REFUND 147 | 0.0000000000 | $65,740 | $65,740 | $0.00 | | |
| RLBRFD | RURAL LIBRARY REFUND 623 | 0.0000000000 | $65,740 | $65,740 | $0.00 | | |
| RURALLIB | RURAL LIBRARY 623 | 0.3710609029 | $65,740 | $65,740 | $24.39 | | |
| PORTRFD | PORT REFUND 640 | 0.0000000000 | $65,740 | $65,740 | $0.00 | | |
| PORTWWGEN | PORT OF WW 640 | 0.2460186015 | $65,740 | $65,740 | $16.17 | | |
| SD140BOND | SD #140 BOND 764 | 0.8342371393 | $65,740 | $65,740 | $54.84 | | |
| SD140GEN | SD #140 GENERAL 760 | 2.0646500647 | $65,740 | $65,740 | $135.73 | | |
| ST2 | STATE SCHOOL PART 2 600 | 0.8131451643 | $65,740 | $65,740 | $53.46 | | |
| STATESCHL | STATE SCHOOL 600 | 1.5158548041 | $65,740 | $65,740 | $99.65 | | |
| STREFUND | STATE REFUND LEVY 603 | 0.0000000000 | $65,740 | $65,740 | $0.00 | | |
| COROAD | COUNTY ROAD 115 | 1.6549953990 | $65,740 | $65,740 | $108.80 | | |
| CRPRD | COUNTY ROAD REFUND 115 | 0.0000000000 | $65,740 | $65,740 | $0.00 | | |
| | Total Tax Rate: | 8.9373558363 | | | | | |
| | | | | Taxes w/Current Exemptions: | $587.53 | | |
| | | | | Taxes w/o Exemptions: | $587.53 | | |
Improvement / Building
| Improvement #1: | RESIDENTIAL | State Code: | 88 | 448.0 sqft | Value: | $29,500 |
| Exterior Wall: | FINSHED CABIN |   |   |
|
| | Type | Description | Class CD | Sub Class CD | Year Built | Area |
| | MA | Main Area | 19 | CABFN | 0 | 448.0 |
| | WOD | Wood Deck | 19 | CABFN | 0 | 180.0 |
| | UTIL-STOR | UTILITY STORAGE | 19 | 20 | 0 | 120.0 |
| | LNTD | LEAN TO DIRT FLOOR | 19 | 20 | 0 | 100.0 |
Sketch
Property Image
Land
| 1 | 35,000-C | CABIN SITE @35,000 | 1.0000 | 0.00 | 0.00 | 0.00 | 1.00 | $35,000 | $0 |
| 2 | 6-TBR | Timber | 18.0000 | 784080.00 | 0.00 | 0.00 | 1.00 | $28,800 | $1,210 |
| 3 | 5-TBR | Timber | 0.3800 | 16552.80 | 0.00 | 0.00 | 1.00 | $230 | $30 |
Roll Value History
| 2025 | N/A | N/A | N/A | N/A | N/A |
| 2024 | $29,500 | $76,380 | $1,250 | $70,750 | $70,750 |
| 2023 | $29,500 | $64,030 | $1,240 | $65,740 | $65,740 |
| 2022 | $29,500 | $64,030 | $1,220 | $65,720 | $65,720 |
| 2021 | $29,500 | $64,030 | $1,220 | $65,720 | $65,720 |
| 2020 | $29,500 | $64,030 | $1,220 | $65,720 | $65,720 |
| 2019 | $29,500 | $64,030 | $1,150 | $65,650 | $65,650 |
| 2018 | $29,500 | $64,030 | $1,140 | $65,640 | $65,640 |
| 2017 | $15,500 | $19,700 | $1,140 | $21,640 | $21,640 |
| 2016 | $15,500 | $19,700 | $1,120 | $21,620 | $21,620 |
| 2015 | $15,500 | $19,700 | $1,070 | $21,570 | $21,570 |
| 2014 | $15,500 | $19,700 | $1,030 | $21,530 | $21,530 |
| 2013 | $15,500 | $19,700 | $6,000 | $21,500 | $21,500 |
| 2012 | $15,500 | $6,100 | $0 | $0 | $0 |
| 2011 | $15,000 | $3,600 | $0 | $0 | $0 |
| 2010 | $15,000 | $3,600 | $0 | $0 | $0 |
| 2009 | $15,000 | $3,600 | $0 | $0 | $0 |
| 2008 | $15,000 | $3,600 | $0 | $0 | $0 |
| 2007 | $15,000 | $5,100 | $0 | $0 | $0 |
| 2006 | $15,000 | $5,100 | $0 | $0 | $0 |
Deed and Sales History
| 1 | 09/30/2024 | SWD | STATUTORY WARRANTY DEED | FUNK RICHARD & ANITA | BLACKMAN LORNE & AURALEA | | | $250,000.00 | 148292 | 2024-05650 |
| 2 | 01/16/2015 | SWD | STATUTORY WARRANTY DEED | YOUNG ERIK & DIANA | FUNK RICHARD & ANITA | | | $115,000.00 | 127297 | 2015-00408 |
| 3 | 01/16/2015 | QCD | QUIT CLAIM DEED | YOUNG ERIK A | YOUNG ERIK & DIANA | | | $0.00 | 127296 | 2015-00407 |
| 4 | 01/22/2008 | WARRANTY D | WARRANTY DEED | GOSSETT, BAYARD L & SANDRA L | YOUNG, ERIK A | | | $86,000.00 | 114423 | 2008-00643 |
| 5 | 09/11/1992 | WARRANTY D | WARRANTY DEED | | | | | $37,000.00 | 77585 | 2009-208093 |
Payout Agreement
| No payout information available.. |