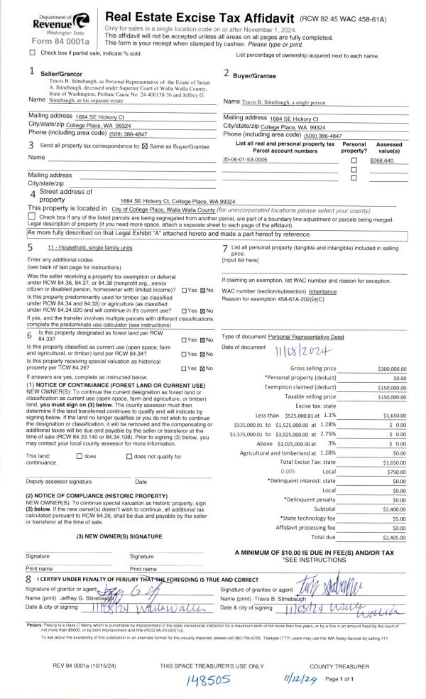
Property
Account |
| Property ID: | 28794 | Abbreviated Legal Description: | REISWIG ADDN LOT 8 |
| Parcel Number: | 360722540008 | Agent Code: | |
| Type: | Real | | |
| Tax Area: | 6 - OL-140-F-FB | Land Use Code | 11 |
| Open Space: | N | DFL | N |
| Historic Property: | N | Remodel Property: | N |
| Multi-Family Redevelopment: | N | | |
| Township: | 7 | Section: | 22 |
| Range: | 36 |
Location |
| Address: | GARDEN DR & ASPEN ST WA 99362 | Mapsco: | |
| Neighborhood: | A SFR Contig | Map ID: | |
| Neighborhood CD: | 413097 |
Owner |
| Name: | BERGEVIN ROBERT D & SHANNON M | Owner ID: | 35950 |
| Mailing Address: | 814 HOME AVE WALLA WALLA, WA 99362 | % Ownership: | 100.0000000000% |
| | | Exemptions: | |
Taxes and Assessment Details
Values
| (+) Improvement Homesite Value: | + | $0 | |
| (+) Improvement Non-Homesite Value: | + | $0 | |
| (+) Land Homesite Value: | + | $0 | |
| (+) Land Non-Homesite Value: | + | $4,660 | |
| (+) Curr Use (HS): | + | $0 | $0 |
| (+) Curr Use (NHS): | + | $0 | $0 |
| | | -------------------------- | |
| (=) Market Value: | = | $4,660 | |
| (–) Productivity Loss: | – | $0 | |
| | | -------------------------- | |
| (=) Subtotal: | = | $4,660 | |
| (+) Senior Appraised Value: | + | $0 | |
| (+) Non-Senior Appraised Value: | + | $4,660 | |
| | | -------------------------- | |
| (=) Total Appraised Value: | = | $4,660 | |
| (–) Senior Exemption Loss: | – | $0 | |
| (–) Exemption Loss: | – | $0 | |
| | | -------------------------- | |
| (=) Taxable Value: | = | $4,660 | |
Taxing Jurisdiction
| Owner: | BERGEVIN ROBERT D & SHANNON M | | |
| % Ownership: | 100.0000000000% | | |
| Total Value: | $4,660 | | |
| Tax Area: | 6 - OL-140-F-FB |
| CERFD | CURRENT EXPENSE REFUND 010 | 0.0000000000 | $4,660 | $4,660 | $0.00 | | |
| CURREXP | CURRENT EXPENSE 010 | 1.0175366760 | $4,660 | $4,660 | $4.74 | | |
| HUMNSERV | HUMAN SERVICES 119 | 0.0250000000 | $4,660 | $4,660 | $0.12 | | |
| SLDREL | SOLDIERS RELIEF 121 | 0.0155990005 | $4,660 | $4,660 | $0.07 | | |
| EMERGSER | EMS 147 | 0.3792580840 | $4,660 | $4,660 | $1.77 | | |
| EMSRFD | EMS REFUND 147 | 0.0000000000 | $4,660 | $4,660 | $0.00 | | |
| PORTRFD | PORT REFUND 640 | 0.0000000000 | $4,660 | $4,660 | $0.00 | | |
| PORTWWGEN | PORT OF WW 640 | 0.2460186015 | $4,660 | $4,660 | $1.15 | | |
| SD140BOND | SD #140 BOND 764 | 0.8342371393 | $4,660 | $4,660 | $3.89 | | |
| SD140GEN | SD #140 GENERAL 760 | 2.0646500647 | $4,660 | $4,660 | $9.62 | | |
| ST2 | STATE SCHOOL PART 2 600 | 0.8131451643 | $4,660 | $4,660 | $3.79 | | |
| STATESCHL | STATE SCHOOL 600 | 1.5158548041 | $4,660 | $4,660 | $7.06 | | |
| STREFUND | STATE REFUND LEVY 603 | 0.0000000000 | $4,660 | $4,660 | $0.00 | | |
| CWWBOND | C OF WW BOND 643 | 0.2760494372 | $4,660 | $4,660 | $1.29 | | |
| CWWGEN | CITY OF WW 631 | 1.6100204973 | $4,660 | $4,660 | $7.50 | | |
| CWWRFD | CITY OF WALLA WALLA REFUND 631 | 0.0000000000 | $4,660 | $4,660 | $0.00 | | |
| | Total Tax Rate: | 8.7973694689 | | | | | |
| | | | | Taxes w/Current Exemptions: | $41.00 | | |
| | | | | Taxes w/o Exemptions: | $41.00 | | |
Improvement / Building
| Improvement #1: | RESIDENTIAL | State Code: | 11 | 0.0 sqft | Value: | $0 |
Sketch
Property Image
Land
| 1 | RES 1 | Converted: Residential | 0.2300 | 10019.00 | 0.00 | 0.00 | 1.00 | $4,660 | $0 |
Roll Value History
| 2025 | N/A | N/A | N/A | N/A | N/A |
| 2024 | $0 | $4,660 | $0 | $4,660 | $4,660 |
| 2023 | $0 | $4,660 | $0 | $4,660 | $4,660 |
| 2022 | $0 | $5,210 | $0 | $5,210 | $5,210 |
| 2021 | $0 | $5,210 | $0 | $5,210 | $5,210 |
| 2020 | $0 | $5,210 | $0 | $5,210 | $5,210 |
| 2019 | $0 | $5,210 | $0 | $5,210 | $5,210 |
| 2018 | $0 | $5,210 | $0 | $5,210 | $5,210 |
| 2017 | $0 | $5,210 | $0 | $5,210 | $5,210 |
| 2016 | $800 | $7,600 | $0 | $8,400 | $8,400 |
| 2015 | $800 | $7,600 | $0 | $8,400 | $8,400 |
| 2014 | $800 | $7,600 | $0 | $8,400 | $8,400 |
| 2013 | $800 | $7,600 | $0 | $8,400 | $8,400 |
| 2012 | $800 | $7,600 | $0 | $0 | $0 |
| 2011 | $1,400 | $7,800 | $0 | $0 | $0 |
| 2010 | $1,400 | $7,800 | $0 | $0 | $0 |
| 2009 | $1,400 | $7,800 | $0 | $0 | $0 |
| 2008 | $1,400 | $7,800 | $0 | $0 | $0 |
| 2007 | $1,400 | $7,800 | $0 | $0 | $0 |
| 2006 | $500 | $3,000 | $0 | $0 | $0 |
Deed and Sales History
| 1 | 06/24/2021 | BARGAIN & | BARGAIN & SALE DEED | STOCKDALE MARY K ESTATE OF | BERGEVIN ROBERT D & SHANNON M | | 8-PARCELS | $395,000.00 | 141888 | 2021-07738 |
|   | |
| 2 | 09/09/1994 | WARRANTY D | WARRANTY DEED | | | | | | 82551 | 2239-410560 |
Payout Agreement
| No payout information available.. |