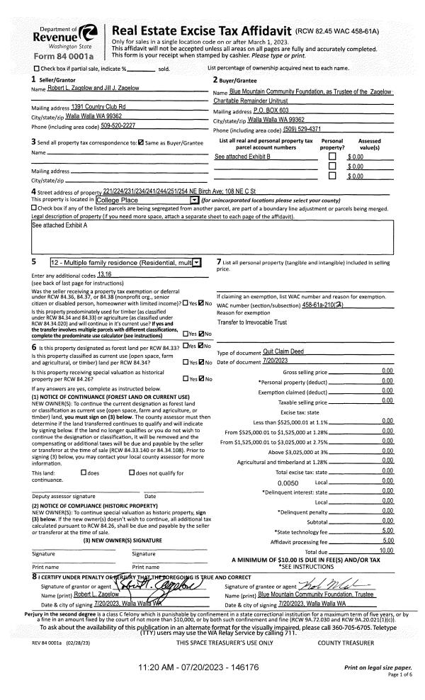
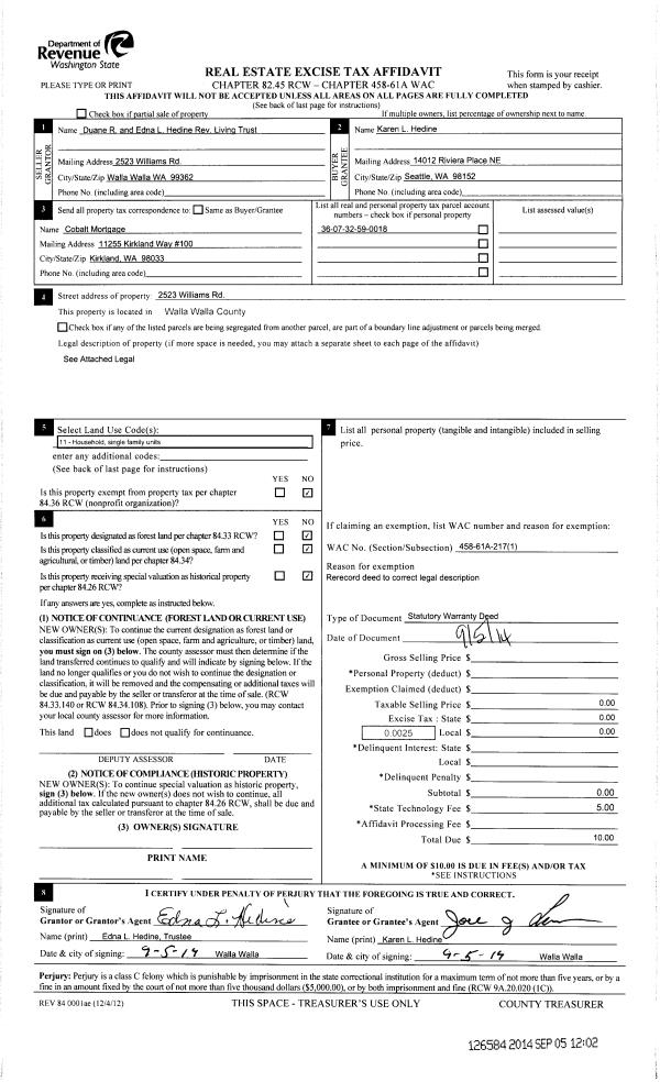
Property
Account |
| Property ID: | 28784 | Abbreviated Legal Description: | MELODY PARK TERRACE TAX 48 LOT 92 |
| Parcel Number: | 360716540092 | Agent Code: | |
| Type: | Real | | |
| Tax Area: | 5 - OL-140 | Land Use Code | 11 |
| Open Space: | N | DFL | N |
| Historic Property: | N | Remodel Property: | N |
| Multi-Family Redevelopment: | N | | |
| Township: | 7 | Section: | 16 |
| Range: | 36 |
Location |
| Address: | 2124 CRAWFORD DR WA 99362 | Mapsco: | |
| Neighborhood: | A-SFR | Map ID: | |
| Neighborhood CD: | 313011 |
Owner |
| Name: | JONES AARON B & ERIKA R | Owner ID: | 59031 |
| Mailing Address: | 2124 CRAWFORD DR WALLA WALLA, WA 99362 | % Ownership: | 100.0000000000% |
| | | Exemptions: | |
Taxes and Assessment Details
Values
| (+) Improvement Homesite Value: | + | $0 | |
| (+) Improvement Non-Homesite Value: | + | $308,090 | |
| (+) Land Homesite Value: | + | $0 | |
| (+) Land Non-Homesite Value: | + | $90,000 | |
| (+) Curr Use (HS): | + | $0 | $0 |
| (+) Curr Use (NHS): | + | $0 | $0 |
| | | -------------------------- | |
| (=) Market Value: | = | $398,090 | |
| (–) Productivity Loss: | – | $0 | |
| | | -------------------------- | |
| (=) Subtotal: | = | $398,090 | |
| (+) Senior Appraised Value: | + | $0 | |
| (+) Non-Senior Appraised Value: | + | $398,090 | |
| | | -------------------------- | |
| (=) Total Appraised Value: | = | $398,090 | |
| (–) Senior Exemption Loss: | – | $0 | |
| (–) Exemption Loss: | – | $0 | |
| | | -------------------------- | |
| (=) Taxable Value: | = | $398,090 | |
Taxing Jurisdiction
| Owner: | JONES AARON B & ERIKA R | | |
| % Ownership: | 100.0000000000% | | |
| Total Value: | $398,090 | | |
| Tax Area: | 5 - OL-140 |
| CERFD | CURRENT EXPENSE REFUND 010 | 0.0000000000 | $398,090 | $398,090 | $0.00 | | |
| CURREXP | CURRENT EXPENSE 010 | 1.0175366760 | $398,090 | $398,090 | $405.07 | | |
| HUMNSERV | HUMAN SERVICES 119 | 0.0250000000 | $398,090 | $398,090 | $9.95 | | |
| SLDREL | SOLDIERS RELIEF 121 | 0.0155990005 | $398,090 | $398,090 | $6.21 | | |
| EMERGSER | EMS 147 | 0.3792580840 | $398,090 | $398,090 | $150.98 | | |
| EMSRFD | EMS REFUND 147 | 0.0000000000 | $398,090 | $398,090 | $0.00 | | |
| PORTRFD | PORT REFUND 640 | 0.0000000000 | $398,090 | $398,090 | $0.00 | | |
| PORTWWGEN | PORT OF WW 640 | 0.2460186015 | $398,090 | $398,090 | $97.94 | | |
| SD140BOND | SD #140 BOND 764 | 0.8342371393 | $398,090 | $398,090 | $332.10 | | |
| SD140GEN | SD #140 GENERAL 760 | 2.0646500647 | $398,090 | $398,090 | $821.92 | | |
| ST2 | STATE SCHOOL PART 2 600 | 0.8131451643 | $398,090 | $398,090 | $323.70 | | |
| STATESCHL | STATE SCHOOL 600 | 1.5158548041 | $398,090 | $398,090 | $603.45 | | |
| STREFUND | STATE REFUND LEVY 603 | 0.0000000000 | $398,090 | $398,090 | $0.00 | | |
| CWWBOND | C OF WW BOND 643 | 0.2760494372 | $398,090 | $398,090 | $109.89 | | |
| CWWGEN | CITY OF WW 631 | 1.6100204973 | $398,090 | $398,090 | $640.93 | | |
| CWWRFD | CITY OF WALLA WALLA REFUND 631 | 0.0000000000 | $398,090 | $398,090 | $0.00 | | |
| | Total Tax Rate: | 8.7973694689 | | | | | |
| | | | | Taxes w/Current Exemptions: | $3,502.14 | | |
| | | | | Taxes w/o Exemptions: | $3,502.14 | | |
Improvement / Building
| Improvement #1: | RESIDENTIAL | State Code: | 11 | 1721.0 sqft | Value: | $308,090 |
| Exterior Wall: | SIDING | Heating/Cooling: | HEAT PUMP | | Number of Bathrooms: | 2 | Number of Bedrooms: | 2 | | Plumbing: | 10 | Roof Covering: | COMP SHINGLE |
|
| | Type | Description | Class CD | Sub Class CD | Year Built | Area |
| | MA | Main Area | 1 | 35 | 1965 | 1721.0 |
| | SI1 | SITE IMPROVEMENT | 1 | 35 | 1965 | 2.0 |
| | SUN | SOLAR ROOM | 1 | 35 | 2007 | 140.0 |
| | WDR | WOOD DECK W/ROOF | 1 | 35 | 1965 | 295.0 |
| | ATG | Attached Garage | 1 | 35 | 1965 | 546.0 |
| | S1F | Single One Story Fireplace | 1 | 35 | 1965 | 1.0 |
| | LOAF-SHED | LOAFING SHED | 1 | 30 | 1965 | 140.0 |
| | RPC | OPEN PORCH W/ROOF , CEILED | 1 | 35 | 1965 | 42.0 |
Sketch
Property Image
Land
| 1 | RES 1 | Converted: Residential | 0.2565 | 11175.00 | 0.00 | 0.00 | 1.00 | $90,000 | $0 |
Roll Value History
| 2025 | N/A | N/A | N/A | N/A | N/A |
| 2024 | $308,090 | $90,000 | $0 | $398,090 | $398,090 |
| 2023 | $308,090 | $90,000 | $0 | $398,090 | $398,090 |
| 2022 | $308,090 | $90,000 | $0 | $398,090 | $398,090 |
| 2021 | $205,320 | $55,000 | $0 | $260,320 | $260,320 |
| 2020 | $157,940 | $55,000 | $0 | $212,940 | $212,940 |
| 2019 | $157,940 | $55,000 | $0 | $212,940 | $212,940 |
| 2018 | $137,340 | $55,000 | $0 | $192,340 | $192,340 |
| 2017 | $137,340 | $55,000 | $0 | $192,340 | $192,340 |
| 2016 | $137,340 | $55,000 | $0 | $192,340 | $192,340 |
| 2015 | $119,000 | $55,000 | $0 | $174,000 | $174,000 |
| 2014 | $119,000 | $55,000 | $0 | $174,000 | $174,000 |
| 2013 | $119,000 | $55,000 | $0 | $174,000 | $174,000 |
| 2012 | $119,000 | $55,000 | $0 | $0 | $0 |
| 2011 | $138,300 | $55,000 | $0 | $0 | $0 |
| 2010 | $134,400 | $40,000 | $0 | $0 | $0 |
| 2009 | $153,800 | $40,000 | $0 | $0 | $0 |
| 2008 | $128,500 | $40,000 | $0 | $0 | $0 |
| 2007 | $117,900 | $40,000 | $0 | $0 | $0 |
| 2006 | $96,600 | $25,000 | $0 | $0 | $0 |
Deed and Sales History
| 1 | 05/08/2024 | QCD | QUIT CLAIM DEED | JONES AARON B & ERIKA R | JONES AARON B | | | | 147533 | 2024-02440 |
| 2 | 06/29/2016 | SWD | STATUTORY WARRANTY DEED | ZDUNCZYK RAYMOND C | JONES AARON B & ERIKA R | | | $185,000.00 | 130516 | 2016-05015 |
| 3 | 10/30/2014 | QCD | QUIT CLAIM DEED | ZDUNCZYK RAYMOND C | ZDUNCZYK RAYMOND C | | | $0.00 | 126867 | 2014-07985 |
| 4 | 02/25/2013 | QCD | QUIT CLAIM DEED | KLEINBACH, DENNIS REED | ZDUNCZYK, RAYMOND C | | | $0.00 | 123488 | 2013-01667 |
| 5 | 08/13/2010 | WARRANTY D | WARRANTY DEED | RAWSON, EUGENIE M ESTATE OF | KLEINBACH, DENNIS REED | | | $175,900.00 | 118865 | 2010-06256 |
| 6 | 08/12/1969 | WARRANTY D | WARRANTY DEED | | | | | $2,400.00 | 0 | 3320-503265 |
Payout Agreement
| No payout information available.. |