Property
Account |
| Property ID: | 28754 | Abbreviated Legal Description: | ARLENES #2 LOT 1 BLK 6 |
| Parcel Number: | 310807550601 | Agent Code: | |
| Type: | Real | | |
| Tax Area: | 328 - 400-M-5 | Land Use Code | 11 |
| Open Space: | N | DFL | N |
| Historic Property: | N | Remodel Property: | N |
| Multi-Family Redevelopment: | N | | |
| Township: | 8 | Section: | 7 |
| Range: | 31 |
Location |
| Address: | 239 RYAN AVE WA 99323 | Mapsco: | |
| Neighborhood: | G BURBANK SFR | Map ID: | |
| Neighborhood CD: | 214711 |
Owner |
| Name: | DREIER DEANNA M | Owner ID: | 72900 |
| Mailing Address: | 239 RYAN AVE BURBANK, WA 99323 | % Ownership: | 100.0000000000% |
| | | Exemptions: | |
Taxes and Assessment Details
Values
| (+) Improvement Homesite Value: | + | $0 | |
| (+) Improvement Non-Homesite Value: | + | $334,500 | |
| (+) Land Homesite Value: | + | $0 | |
| (+) Land Non-Homesite Value: | + | $75,000 | |
| (+) Curr Use (HS): | + | $0 | $0 |
| (+) Curr Use (NHS): | + | $0 | $0 |
| | | -------------------------- | |
| (=) Market Value: | = | $409,500 | |
| (–) Productivity Loss: | – | $0 | |
| | | -------------------------- | |
| (=) Subtotal: | = | $409,500 | |
| (+) Senior Appraised Value: | + | $0 | |
| (+) Non-Senior Appraised Value: | + | $409,500 | |
| | | -------------------------- | |
| (=) Total Appraised Value: | = | $409,500 | |
| (–) Senior Exemption Loss: | – | $0 | |
| (–) Exemption Loss: | – | $0 | |
| | | -------------------------- | |
| (=) Taxable Value: | = | $409,500 | |
Taxing Jurisdiction
| Owner: | DREIER DEANNA M | | |
| % Ownership: | 100.0000000000% | | |
| Total Value: | $409,500 | | |
| Tax Area: | 328 - 400-M-5 |
| CERFD | CURRENT EXPENSE REFUND 010 | 0.0000000000 | $409,500 | $409,500 | $0.00 | | |
| CURREXP | CURRENT EXPENSE 010 | 1.0175366760 | $409,500 | $409,500 | $416.68 | | |
| HUMNSERV | HUMAN SERVICES 119 | 0.0250000000 | $409,500 | $409,500 | $10.24 | | |
| SLDREL | SOLDIERS RELIEF 121 | 0.0155990005 | $409,500 | $409,500 | $6.39 | | |
| EMERGSER | EMS 147 | 0.3792580840 | $409,500 | $409,500 | $155.31 | | |
| EMSRFD | EMS REFUND 147 | 0.0000000000 | $409,500 | $409,500 | $0.00 | | |
| FD5EXP | FD #5 EXPENSE 689 | 1.2045331840 | $409,500 | $409,500 | $493.26 | | |
| RLBRFD | RURAL LIBRARY REFUND 623 | 0.0000000000 | $409,500 | $409,500 | $0.00 | | |
| RURALLIB | RURAL LIBRARY 623 | 0.3710609029 | $409,500 | $409,500 | $151.95 | | |
| PORTRFD | PORT REFUND 640 | 0.0000000000 | $409,500 | $409,500 | $0.00 | | |
| PORTWWGEN | PORT OF WW 640 | 0.2460186015 | $409,500 | $409,500 | $100.74 | | |
| SD400BOND | SD #400 BOND 793 | 0.0000000000 | $409,500 | $409,500 | $0.00 | | |
| SD400CAP | SD #400 CP 792 | 0.3443722657 | $409,500 | $409,500 | $141.02 | | |
| SD400GEN | SD #400 GENERAL 790 | 1.9278469916 | $409,500 | $409,500 | $789.45 | | |
| ST2 | STATE SCHOOL PART 2 600 | 0.8131451643 | $409,500 | $409,500 | $332.98 | | |
| STATESCHL | STATE SCHOOL 600 | 1.5158548041 | $409,500 | $409,500 | $620.74 | | |
| STREFUND | STATE REFUND LEVY 603 | 0.0000000000 | $409,500 | $409,500 | $0.00 | | |
| COROAD | COUNTY ROAD 115 | 1.6549953990 | $409,500 | $409,500 | $677.72 | | |
| CRPRD | COUNTY ROAD REFUND 115 | 0.0000000000 | $409,500 | $409,500 | $0.00 | | |
| | Total Tax Rate: | 9.5152210736 | | | | | |
| | | | | Taxes w/Current Exemptions: | $3,896.48 | | |
| | | | | Taxes w/o Exemptions: | $3,896.48 | | |
Improvement / Building
| Improvement #1: | RESIDENTIAL | State Code: | 11 | 1637.0 sqft | Value: | $334,500 |
| Exterior Wall: | VINYL | Heating/Cooling: | WARM & COOLED AIR | | Number of Bathrooms: | 2 | Number of Bedrooms: | 3 | | Plumbing: | 9 | Roof Covering: | COMP SHINGLE |
|
| | Type | Description | Class CD | Sub Class CD | Year Built | Area |
| | MA | Main Area | 1 | 30 | 1978 | 1637.0 |
| | SI1 | SITE IMPROVEMENT | 1 | 30 | 1978 | 4.0 |
| | ATG | Attached Garage | 1 | 30 | 1978 | 600.0 |
| | OPS | OPEN PORCH W/STEPS | 1 | 30 | 1978 | 72.0 |
| | S1F | Single One Story Fireplace | 1 | 30 | 1978 | 1.0 |
Sketch
Property Image
Land
| 1 | RES 1 | Converted: Residential | 0.5021 | 21870.00 | 0.00 | 0.00 | 1.00 | $75,000 | $0 |
Roll Value History
| 2025 | N/A | N/A | N/A | N/A | N/A |
| 2024 | $334,500 | $75,000 | $0 | $409,500 | $409,500 |
| 2023 | $334,500 | $75,000 | $0 | $409,500 | $409,500 |
| 2022 | $226,060 | $75,000 | $0 | $301,060 | $301,060 |
| 2021 | $161,470 | $75,000 | $0 | $236,470 | $236,470 |
| 2020 | $167,670 | $35,000 | $0 | $202,670 | $202,670 |
| 2019 | $167,670 | $35,000 | $0 | $202,670 | $202,670 |
| 2018 | $145,800 | $35,000 | $0 | $180,800 | $180,800 |
| 2017 | $138,860 | $35,000 | $0 | $173,860 | $173,860 |
| 2016 | $132,250 | $35,000 | $0 | $167,250 | $167,250 |
| 2015 | $125,950 | $35,000 | $0 | $160,950 | $160,950 |
| 2014 | $114,500 | $35,000 | $0 | $149,500 | $149,500 |
| 2013 | $114,500 | $35,000 | $0 | $149,500 | $149,500 |
| 2012 | $111,600 | $35,000 | $0 | $0 | $0 |
| 2011 | $98,300 | $35,000 | $0 | $0 | $0 |
| 2010 | $98,300 | $35,000 | $0 | $0 | $0 |
| 2009 | $137,100 | $25,000 | $0 | $0 | $0 |
| 2008 | $110,100 | $25,000 | $0 | $0 | $0 |
| 2007 | $110,100 | $25,000 | $0 | $0 | $0 |
| 2006 | $110,100 | $25,000 | $0 | $0 | $0 |
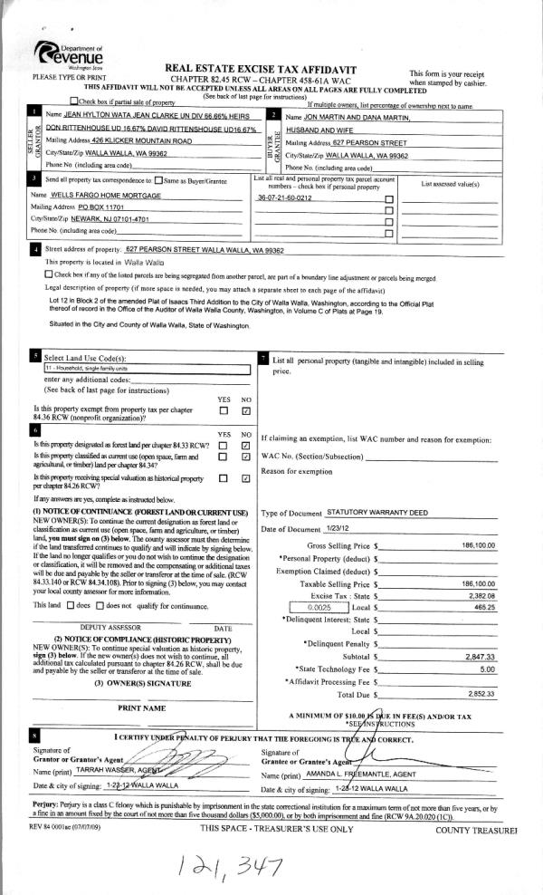
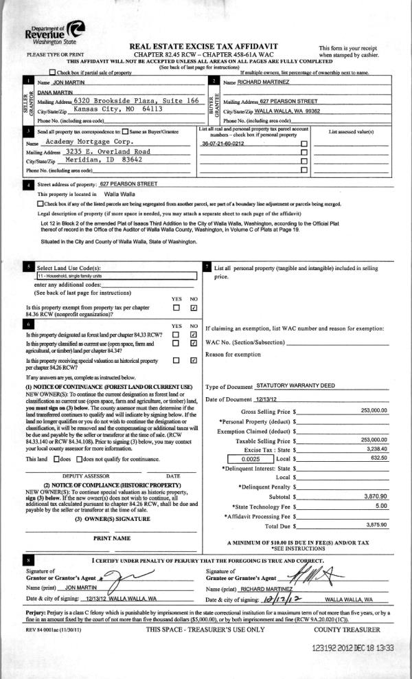
Deed and Sales History
| 1 | 11/10/2022 | QCD | QUIT CLAIM DEED | DREIER CHAD | DREIER DEANNA M | | | | 145005 | 2022-09069 |
| 2 | 11/10/2022 | SWD | STATUTORY WARRANTY DEED | SIEGFRIED CHRIS & MARIAFE | DREIER DEANNA M | | | $420,000.00 | 145004 | 2022-09068 |
| 3 | 06/07/2019 | SWD | STATUTORY WARRANTY DEED | HAWLEY CHRISTINE L | SIEGFRIED CHRIS & MARIAFE | | | $230,500.00 | 137040 | 2019-03945 |
| 4 | 05/31/2019 | QCD | QUIT CLAIM DEED | TURNER JONATHAN REGAN | HAWLEY CHRISTINE L | | | $0.00 | 136998 | 2019-03746 |
| 5 | 02/28/2014 | COURT CASE | COURT CASE | DAVIDSON JONATHAN R | TURNER JONATHAN REGAN | | | | 0 | CC 14 76434 |
| 6 | 11/01/2013 | QCD | QUIT CLAIM DEED | DAVIDSON, JONATHAN R | DAVIDSON, JONATHAN R | | | $65,179.00 | 124907 | 2013-10909 |
| 7 | 06/30/2011 | WARRANTY D | WARRANTY DEED | MEHLENBACHER, BRIAN J & MICHEL | DAVIDSON, JONATHAN R | | | $150,000.00 | 120337 | 2011-05051 |
| 8 | 08/13/2010 | QCD | QUIT CLAIM DEED | MEHLENBACHER, BRIAN J | MEHLENBACHER, BRIAN J & MICHEL | | | | 118866 | 2010-06258 |
| 9 | 12/30/2003 | WARRANTY D | WARRANTY DEED | DOTTA, DANIEL O & KIMBERLY J | MELENBACHER, BRIAN J | | | $138,200.00 | 103829 | 2003-19563 |
| 10 | 04/30/2001 | WARRANTY D | WARRANTY DEED | | | | | $113,500.00 | 97063 | 3120-104278 |
Payout Agreement
| No payout information available.. |