Property
Account |
| Property ID: | 28676 | Abbreviated Legal Description: | MULKEYS LOT 8 BLK 2 |
| Parcel Number: | 360730520208 | Agent Code: | |
| Type: | Real | | |
| Tax Area: | 1 - OL-140-F | Land Use Code | 11 |
| Open Space: | N | DFL | N |
| Historic Property: | N | Remodel Property: | N |
| Multi-Family Redevelopment: | N | | |
| Township: | 7 | Section: | 30 |
| Range: | 36 |
Location |
| Address: | 216 BENNETT ST WA 99362 | Mapsco: | |
| Neighborhood: | A-SFR | Map ID: | |
| Neighborhood CD: | 313011 |
Owner |
| Name: | WEIS DANIEL J & MICKA J | Owner ID: | 59863 |
| Mailing Address: | 216 BENNETT ST WALLA WALLA, WA 99362 | % Ownership: | 100.0000000000% |
| | | Exemptions: | |
Taxes and Assessment Details
Values
| (+) Improvement Homesite Value: | + | $0 | |
| (+) Improvement Non-Homesite Value: | + | $163,620 | |
| (+) Land Homesite Value: | + | $0 | |
| (+) Land Non-Homesite Value: | + | $59,400 | |
| (+) Curr Use (HS): | + | $0 | $0 |
| (+) Curr Use (NHS): | + | $0 | $0 |
| | | -------------------------- | |
| (=) Market Value: | = | $223,020 | |
| (–) Productivity Loss: | – | $0 | |
| | | -------------------------- | |
| (=) Subtotal: | = | $223,020 | |
| (+) Senior Appraised Value: | + | $0 | |
| (+) Non-Senior Appraised Value: | + | $223,020 | |
| | | -------------------------- | |
| (=) Total Appraised Value: | = | $223,020 | |
| (–) Senior Exemption Loss: | – | $0 | |
| (–) Exemption Loss: | – | $0 | |
| | | -------------------------- | |
| (=) Taxable Value: | = | $223,020 | |
Taxing Jurisdiction
| Owner: | WEIS DANIEL J & MICKA J | | |
| % Ownership: | 100.0000000000% | | |
| Total Value: | $223,020 | | |
| Tax Area: | 1 - OL-140-F |
| CERFD | CURRENT EXPENSE REFUND 010 | 0.0000000000 | $223,020 | $223,020 | $0.00 | | |
| CURREXP | CURRENT EXPENSE 010 | 1.0175366760 | $223,020 | $223,020 | $226.93 | | |
| HUMNSERV | HUMAN SERVICES 119 | 0.0250000000 | $223,020 | $223,020 | $5.58 | | |
| SLDREL | SOLDIERS RELIEF 121 | 0.0155990005 | $223,020 | $223,020 | $3.48 | | |
| EMERGSER | EMS 147 | 0.3792580840 | $223,020 | $223,020 | $84.58 | | |
| EMSRFD | EMS REFUND 147 | 0.0000000000 | $223,020 | $223,020 | $0.00 | | |
| PORTRFD | PORT REFUND 640 | 0.0000000000 | $223,020 | $223,020 | $0.00 | | |
| PORTWWGEN | PORT OF WW 640 | 0.2460186015 | $223,020 | $223,020 | $54.87 | | |
| SD140BOND | SD #140 BOND 764 | 0.8342371393 | $223,020 | $223,020 | $186.05 | | |
| SD140GEN | SD #140 GENERAL 760 | 2.0646500647 | $223,020 | $223,020 | $460.46 | | |
| ST2 | STATE SCHOOL PART 2 600 | 0.8131451643 | $223,020 | $223,020 | $181.35 | | |
| STATESCHL | STATE SCHOOL 600 | 1.5158548041 | $223,020 | $223,020 | $338.07 | | |
| STREFUND | STATE REFUND LEVY 603 | 0.0000000000 | $223,020 | $223,020 | $0.00 | | |
| CWWBOND | C OF WW BOND 643 | 0.2760494372 | $223,020 | $223,020 | $61.56 | | |
| CWWGEN | CITY OF WW 631 | 1.6100204973 | $223,020 | $223,020 | $359.07 | | |
| CWWRFD | CITY OF WALLA WALLA REFUND 631 | 0.0000000000 | $223,020 | $223,020 | $0.00 | | |
| | Total Tax Rate: | 8.7973694689 | | | | | |
| | | | | Taxes w/Current Exemptions: | $1,962.00 | | |
| | | | | Taxes w/o Exemptions: | $1,962.00 | | |
Improvement / Building
| Improvement #1: | RESIDENTIAL | State Code: | 11 | 1002.0 sqft | Value: | $163,620 |
| Exterior Wall: | HARDBOARD | Heating/Cooling: | MINI-SPLIT HP SYSTEM | | Number of Bathrooms: | 2 | Number of Bedrooms: | 4 | | Plumbing: | 8 | Roof Covering: | COMP SHINGLE |
|
| | Type | Description | Class CD | Sub Class CD | Year Built | Area |
| | MA | Main Area | 1 | 25 | 0 | 1002.0 |
| | CPCD | CARPORT/DIRT FLOOR | 1 | 25 | 0 | 308.0 |
| | SI1 | SITE IMPROVEMENT | 1 | 25 | 0 | 1.0 |
| | BASE | BASEMENT | 1 | 25 | 0 | 936.0 |
| | BPF | BASEMENT -PARTITIONED FINISH | 1 | 25 | 0 | 936.0 |
| | RPO | OPEN PORCH W/ROOF | 1 | 25 | 0 | 60.0 |
| | SOLR | SOLAR POWER PANELS | 1 | 25 | 2019 | 24.0 |
Sketch
Property Image
Land
| 1 | RES 1 | Converted: Residential | 0.1653 | 7200.00 | 0.00 | 0.00 | 1.00 | $59,400 | $0 |
Roll Value History
| 2025 | N/A | N/A | N/A | N/A | N/A |
| 2024 | $163,620 | $59,400 | $0 | $223,020 | $223,020 |
| 2023 | $163,620 | $59,400 | $0 | $223,020 | $223,020 |
| 2022 | $125,860 | $59,400 | $0 | $185,260 | $185,260 |
| 2021 | $145,230 | $25,200 | $0 | $170,430 | $170,430 |
| 2020 | $132,030 | $25,200 | $0 | $157,230 | $157,230 |
| 2019 | $132,030 | $25,200 | $0 | $157,230 | $157,230 |
| 2018 | $125,740 | $25,200 | $0 | $150,940 | $150,940 |
| 2017 | $104,790 | $25,200 | $0 | $129,990 | $129,990 |
| 2016 | $95,260 | $25,200 | $0 | $120,460 | $120,460 |
| 2015 | $93,800 | $25,200 | $0 | $119,000 | $119,000 |
| 2014 | $93,800 | $25,200 | $0 | $119,000 | $119,000 |
| 2013 | $93,800 | $25,200 | $0 | $119,000 | $119,000 |
| 2012 | $93,800 | $25,200 | $0 | $0 | $0 |
| 2011 | $95,800 | $25,200 | $0 | $0 | $0 |
| 2010 | $112,800 | $25,200 | $0 | $0 | $0 |
| 2009 | $132,700 | $12,600 | $0 | $0 | $0 |
| 2008 | $68,100 | $12,600 | $0 | $0 | $0 |
| 2007 | $68,100 | $12,600 | $0 | $0 | $0 |
| 2006 | $68,100 | $12,600 | $0 | $0 | $0 |
Deed and Sales History
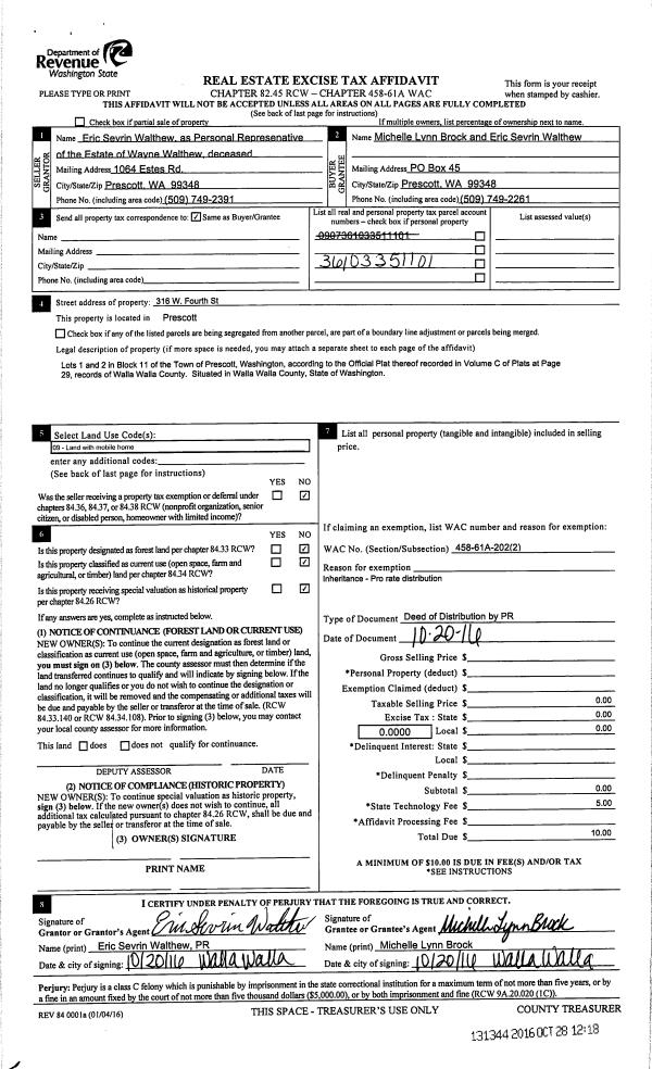
| 1 | 11/30/2020 | SURVEY | SURVEY | WEIS DANIEL J & MICKA J | | 13 | 239 | | 0 | 2020-12600 |
| 2 | 10/25/2016 | SWD | STATUTORY WARRANTY DEED | GARANZUAY JACKELINE | WEIS DANIEL J & MICKA J | | | $153,000.00 | 131310 | 2016-08834 |
| 3 | 07/13/2010 | WARRANTY D | WARRANTY DEED | SLOAN FAMILY TRUST | GARANZUAY, RUBEN | | | | 110814 | 2010-05387 |
| 4 | 06/29/2010 | PACD | PURCHASER'S ASSG CONTRACT&DEED | GARANZARY, RUBEN | GARANZUAY, JACKELINE | | | $120,000.00 | 118685 | 2010-05050 |
| 5 | 07/27/2006 | WARRANTY D | WARRANTY DEED | SLOAN, HARVEY I & RUTH E TRUST | GARANZARY, RUBEN | | | $149,900.00 | 110814 | 2006-08813 |
| 6 | 01/31/2005 | QCD | QUIT CLAIM DEED | MILLER, KERRY D & ELLIE | SLOAN, HARVEY I & RUTH E TRUST | | | | 106686 | 2005-01188 |
| 7 | 10/06/1994 | WARRANTY D | WARRANTY DEED | | | | | $79,000.00 | 82747 | 2249-411704 |
Payout Agreement
| No payout information available.. |