Property
Account |
| Property ID: | 28665 | Abbreviated Legal Description: | BRYANTS LT 22 BLK 3 |
| Parcel Number: | 360728530322 | Agent Code: | |
| Type: | Real | | |
| Tax Area: | 1 - OL-140-F | Land Use Code | 11 |
| Open Space: | N | DFL | N |
| Historic Property: | N | Remodel Property: | N |
| Multi-Family Redevelopment: | N | | |
| Township: | 7 | Section: | 28 |
| Range: | 36 |
Location |
| Address: | 511 JUNIPER ST WA 99362 | Mapsco: | |
| Neighborhood: | A Res | Map ID: | |
| Neighborhood CD: | 613011 |
Owner |
| Name: | STARR JOSEPH & MIRIAH | Owner ID: | 62910 |
| Mailing Address: | 511 JUNIPER ST WALLA WALLA, WA 99362 | % Ownership: | 100.0000000000% |
| | | Exemptions: | |
Taxes and Assessment Details
Values
| (+) Improvement Homesite Value: | + | $0 | |
| (+) Improvement Non-Homesite Value: | + | $213,550 | |
| (+) Land Homesite Value: | + | $0 | |
| (+) Land Non-Homesite Value: | + | $70,000 | |
| (+) Curr Use (HS): | + | $0 | $0 |
| (+) Curr Use (NHS): | + | $0 | $0 |
| | | -------------------------- | |
| (=) Market Value: | = | $283,550 | |
| (–) Productivity Loss: | – | $0 | |
| | | -------------------------- | |
| (=) Subtotal: | = | $283,550 | |
| (+) Senior Appraised Value: | + | $0 | |
| (+) Non-Senior Appraised Value: | + | $283,550 | |
| | | -------------------------- | |
| (=) Total Appraised Value: | = | $283,550 | |
| (–) Senior Exemption Loss: | – | $0 | |
| (–) Exemption Loss: | – | $0 | |
| | | -------------------------- | |
| (=) Taxable Value: | = | $283,550 | |
Taxing Jurisdiction
| Owner: | STARR JOSEPH & MIRIAH | | |
| % Ownership: | 100.0000000000% | | |
| Total Value: | $283,550 | | |
| Tax Area: | 1 - OL-140-F |
| CERFD | CURRENT EXPENSE REFUND 010 | 0.0000000000 | $283,550 | $283,550 | $0.00 | | |
| CURREXP | CURRENT EXPENSE 010 | 1.0175366760 | $283,550 | $283,550 | $288.52 | | |
| HUMNSERV | HUMAN SERVICES 119 | 0.0250000000 | $283,550 | $283,550 | $7.09 | | |
| SLDREL | SOLDIERS RELIEF 121 | 0.0155990005 | $283,550 | $283,550 | $4.42 | | |
| EMERGSER | EMS 147 | 0.3792580840 | $283,550 | $283,550 | $107.54 | | |
| EMSRFD | EMS REFUND 147 | 0.0000000000 | $283,550 | $283,550 | $0.00 | | |
| PORTRFD | PORT REFUND 640 | 0.0000000000 | $283,550 | $283,550 | $0.00 | | |
| PORTWWGEN | PORT OF WW 640 | 0.2460186015 | $283,550 | $283,550 | $69.76 | | |
| SD140BOND | SD #140 BOND 764 | 0.8342371393 | $283,550 | $283,550 | $236.55 | | |
| SD140GEN | SD #140 GENERAL 760 | 2.0646500647 | $283,550 | $283,550 | $585.43 | | |
| ST2 | STATE SCHOOL PART 2 600 | 0.8131451643 | $283,550 | $283,550 | $230.57 | | |
| STATESCHL | STATE SCHOOL 600 | 1.5158548041 | $283,550 | $283,550 | $429.82 | | |
| STREFUND | STATE REFUND LEVY 603 | 0.0000000000 | $283,550 | $283,550 | $0.00 | | |
| CWWBOND | C OF WW BOND 643 | 0.2760494372 | $283,550 | $283,550 | $78.27 | | |
| CWWGEN | CITY OF WW 631 | 1.6100204973 | $283,550 | $283,550 | $456.52 | | |
| CWWRFD | CITY OF WALLA WALLA REFUND 631 | 0.0000000000 | $283,550 | $283,550 | $0.00 | | |
| | Total Tax Rate: | 8.7973694689 | | | | | |
| | | | | Taxes w/Current Exemptions: | $2,494.49 | | |
| | | | | Taxes w/o Exemptions: | $2,494.49 | | |
Improvement / Building
| Improvement #1: | RESIDENTIAL | State Code: | 11 | 1211.0 sqft | Value: | $213,550 |
| Exterior Wall: | VINYL | Heating/Cooling: | WARM & COOLED AIR | | Number of Bathrooms: | 2 | Number of Bedrooms: | 3 | | Plumbing: | 9 | Roof Covering: | COMP SHINGLE |
|
| | Type | Description | Class CD | Sub Class CD | Year Built | Area |
| | MA | Main Area | 1 | 30 | 1902 | 1211.0 |
| | SI1 | SITE IMPROVEMENT | 1 | 30 | 1902 | 1.5 |
| | SWP | Solid Wall Porch | 1 | 30 | 1902 | 191.0 |
| | DTG | Detached Garage | 1 | 30 | 1902 | 308.0 |
Sketch
Property Image
Land
| 1 | RES 1 | Converted: Residential | 0.1377 | 6000.00 | 0.00 | 0.00 | 1.00 | $70,000 | $0 |
Roll Value History
| 2025 | N/A | N/A | N/A | N/A | N/A |
| 2024 | $213,550 | $70,000 | $0 | $283,550 | $283,550 |
| 2023 | $213,550 | $70,000 | $0 | $283,550 | $283,550 |
| 2022 | $213,550 | $55,000 | $0 | $268,550 | $268,550 |
| 2021 | $164,270 | $55,000 | $0 | $219,270 | $219,270 |
| 2020 | $121,680 | $55,000 | $0 | $176,680 | $176,680 |
| 2019 | $121,680 | $55,000 | $0 | $176,680 | $176,680 |
| 2018 | $136,290 | $36,000 | $0 | $172,290 | $172,290 |
| 2017 | $123,900 | $36,000 | $0 | $159,900 | $159,900 |
| 2016 | $118,000 | $36,000 | $0 | $154,000 | $154,000 |
| 2015 | $118,000 | $36,000 | $0 | $154,000 | $154,000 |
| 2014 | $118,000 | $36,000 | $0 | $154,000 | $154,000 |
| 2013 | $118,000 | $36,000 | $0 | $154,000 | $154,000 |
| 2012 | $118,000 | $36,000 | $0 | $0 | $0 |
| 2011 | $104,000 | $36,000 | $0 | $0 | $0 |
| 2010 | $92,400 | $36,000 | $0 | $0 | $0 |
| 2009 | $106,700 | $36,000 | $0 | $0 | $0 |
| 2008 | $106,700 | $36,000 | $0 | $0 | $0 |
| 2007 | $78,100 | $18,000 | $0 | $0 | $0 |
| 2006 | $78,100 | $18,000 | $0 | $0 | $0 |
Deed and Sales History
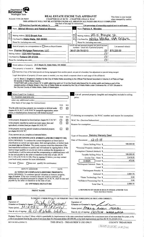
| 1 | 04/18/2018 | SWD | STATUTORY WARRANTY DEED | GARCIA EMMANUEL | STARR JOSEPH & MIRIAH | | | $174,900.00 | 134521 | 2018-03039 |
| 2 | 04/25/2017 | QCD | QUIT CLAIM DEED | GARCIA KIMBERLY MAY | GARCIA EMMANUEL | | | | 132259 | 2017-03095 |
| 3 | 06/25/2010 | WARRANTY D | WARRANTY DEED | BOWEN, JODY | GARCIA, EMMANUEL | | | $165,000.00 | 118664 | 2010-04945 |
| 4 | 10/09/2007 | WARRANTY D | WARRANTY DEED | BOWEN, DAVID R & PAMELA J | BOWEN, JODY | | | $160,000.00 | 113844 | 2007-11752 |
| 5 | 12/20/2002 | WARRANTY D | WARRANTY DEED | WARKENTIN, DAVE & JENNIFER | BOWEN, DAVID R & PAMELA J | | | $97,000.00 | 101059 | 2002-14649 |
| 6 | 03/28/2002 | WARRANTY D | WARRANTY DEED | | | | | $90,000.00 | 99188 | 2002-0003800 |
Payout Agreement
| No payout information available.. |