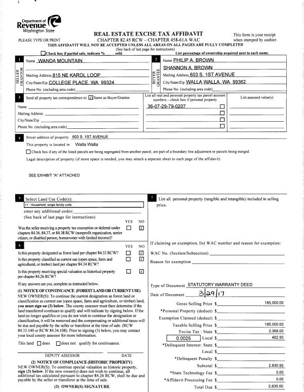
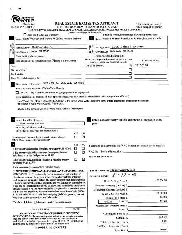
Property
Account |
| Property ID: | 28597 | Abbreviated Legal Description: | GREENS ANNEX TAX 1 LOT 4 BLK 2 LESS ST |
| Parcel Number: | 360721750212 | Agent Code: | |
| Type: | Real | | |
| Tax Area: | 1 - OL-140-F | Land Use Code | 11 |
| Open Space: | N | DFL | N |
| Historic Property: | N | Remodel Property: | N |
| Multi-Family Redevelopment: | N | | |
| Township: | 7 | Section: | 21 |
| Range: | 36 |
Location |
| Address: | 1637 WALLA WALLA AVE WA 99362 | Mapsco: | |
| Neighborhood: | A-SFR | Map ID: | |
| Neighborhood CD: | 513011 |
Owner |
| Name: | GAROFALO CHAD M & DEANNE V | Owner ID: | 61253 |
| Mailing Address: | 1637 WALLA WALLA WAVE WALLA WALLA, WA 99362 | % Ownership: | 100.0000000000% |
| | | Exemptions: | |
Taxes and Assessment Details
Values
| (+) Improvement Homesite Value: | + | $0 | |
| (+) Improvement Non-Homesite Value: | + | $340,510 | |
| (+) Land Homesite Value: | + | $0 | |
| (+) Land Non-Homesite Value: | + | $35,250 | |
| (+) Curr Use (HS): | + | $0 | $0 |
| (+) Curr Use (NHS): | + | $0 | $0 |
| | | -------------------------- | |
| (=) Market Value: | = | $375,760 | |
| (–) Productivity Loss: | – | $0 | |
| | | -------------------------- | |
| (=) Subtotal: | = | $375,760 | |
| (+) Senior Appraised Value: | + | $0 | |
| (+) Non-Senior Appraised Value: | + | $375,760 | |
| | | -------------------------- | |
| (=) Total Appraised Value: | = | $375,760 | |
| (–) Senior Exemption Loss: | – | $0 | |
| (–) Exemption Loss: | – | $0 | |
| | | -------------------------- | |
| (=) Taxable Value: | = | $375,760 | |
Taxing Jurisdiction
| Owner: | GAROFALO CHAD M & DEANNE V | | |
| % Ownership: | 100.0000000000% | | |
| Total Value: | $375,760 | | |
| Tax Area: | 1 - OL-140-F |
| CERFD | CURRENT EXPENSE REFUND 010 | 0.0000000000 | $375,760 | $375,760 | $0.00 | | |
| CURREXP | CURRENT EXPENSE 010 | 1.0175366760 | $375,760 | $375,760 | $382.35 | | |
| HUMNSERV | HUMAN SERVICES 119 | 0.0250000000 | $375,760 | $375,760 | $9.39 | | |
| SLDREL | SOLDIERS RELIEF 121 | 0.0155990005 | $375,760 | $375,760 | $5.86 | | |
| EMERGSER | EMS 147 | 0.3792580840 | $375,760 | $375,760 | $142.51 | | |
| EMSRFD | EMS REFUND 147 | 0.0000000000 | $375,760 | $375,760 | $0.00 | | |
| PORTRFD | PORT REFUND 640 | 0.0000000000 | $375,760 | $375,760 | $0.00 | | |
| PORTWWGEN | PORT OF WW 640 | 0.2460186015 | $375,760 | $375,760 | $92.44 | | |
| SD140BOND | SD #140 BOND 764 | 0.8342371393 | $375,760 | $375,760 | $313.47 | | |
| SD140GEN | SD #140 GENERAL 760 | 2.0646500647 | $375,760 | $375,760 | $775.81 | | |
| ST2 | STATE SCHOOL PART 2 600 | 0.8131451643 | $375,760 | $375,760 | $305.55 | | |
| STATESCHL | STATE SCHOOL 600 | 1.5158548041 | $375,760 | $375,760 | $569.60 | | |
| STREFUND | STATE REFUND LEVY 603 | 0.0000000000 | $375,760 | $375,760 | $0.00 | | |
| CWWBOND | C OF WW BOND 643 | 0.2760494372 | $375,760 | $375,760 | $103.73 | | |
| CWWGEN | CITY OF WW 631 | 1.6100204973 | $375,760 | $375,760 | $604.98 | | |
| CWWRFD | CITY OF WALLA WALLA REFUND 631 | 0.0000000000 | $375,760 | $375,760 | $0.00 | | |
| | Total Tax Rate: | 8.7973694689 | | | | | |
| | | | | Taxes w/Current Exemptions: | $3,305.69 | | |
| | | | | Taxes w/o Exemptions: | $3,305.69 | | |
Improvement / Building
| Improvement #1: | RESIDENTIAL | State Code: | 11 | 1864.0 sqft | Value: | $340,510 |
| Exterior Wall: | CEMENT FIBER | Heating/Cooling: | MINI-SPLIT HP SYSTEM | | Number of Bathrooms: | 4 | Number of Bedrooms: | 4 | | Plumbing: | 16 | Roof Covering: | COMP SHINGLE |
|
| | Type | Description | Class CD | Sub Class CD | Year Built | Area |
| | MA | Main Area | 4 | 30 | 1975 | 1864.0 |
| | UPFL | Upper Floor (included in main area) | 4 | 30 | 2022 | 520.0 |
| | SI1 | SITE IMPROVEMENT | 4 | 30 | 1975 | 3.0 |
| | BASE | BASEMENT | 4 | 30 | 1975 | 824.0 |
| | BPF | BASEMENT -PARTITIONED FINISH | 4 | 30 | 1975 | 824.0 |
| | OPS | OPEN PORCH W/STEPS | 4 | 30 | 1975 | 30.0 |
| | DTG | Detached Garage | 4 | 30 | 1975 | 468.0 |
Sketch
Property Image
Land
| 1 | RES 1 | Converted: Residential | 0.1295 | 5640.00 | 0.00 | 0.00 | 1.00 | $35,250 | $0 |
Roll Value History
| 2025 | N/A | N/A | N/A | N/A | N/A |
| 2024 | $345,050 | $56,400 | $0 | $401,450 | $401,450 |
| 2023 | $340,510 | $35,250 | $0 | $375,760 | $375,760 |
| 2022 | $262,140 | $35,250 | $0 | $297,390 | $297,390 |
| 2021 | $160,800 | $35,250 | $0 | $196,050 | $196,050 |
| 2020 | $123,690 | $35,250 | $0 | $158,940 | $158,940 |
| 2019 | $123,690 | $35,250 | $0 | $158,940 | $158,940 |
| 2018 | $117,800 | $35,250 | $0 | $153,050 | $153,050 |
| 2017 | $129,040 | $22,600 | $0 | $151,640 | $151,640 |
| 2016 | $117,310 | $22,600 | $0 | $139,910 | $139,910 |
| 2015 | $111,720 | $22,600 | $0 | $134,320 | $134,320 |
| 2014 | $106,400 | $22,600 | $0 | $129,000 | $129,000 |
| 2013 | $106,400 | $22,600 | $0 | $129,000 | $129,000 |
| 2012 | $106,400 | $22,600 | $0 | $0 | $0 |
| 2011 | $106,400 | $22,600 | $0 | $0 | $0 |
| 2010 | $97,100 | $22,600 | $0 | $0 | $0 |
| 2009 | $110,400 | $22,600 | $0 | $0 | $0 |
| 2008 | $72,600 | $22,600 | $0 | $0 | $0 |
| 2007 | $72,600 | $22,600 | $0 | $0 | $0 |
| 2006 | $58,300 | $11,300 | $0 | $0 | $0 |
Deed and Sales History
| 1 | 06/22/2017 | QCD | QUIT CLAIM DEED | GAROFALO CHAD M | GAROFALO CHAD M & DEANNE V | | | $0.00 | 132794 | 2017-05492 |
| 2 | 05/13/2010 | WARRANTY D | WARRANTY DEED | GAROFALO, ROGER | GAROFALO, CHAD M | | | $135,000.00 | 118463 | 2010-03645 |
| 3 | 05/13/2010 | QCD | QUIT CLAIM DEED | GAROFALO, DEANNE | GAROFALO, CHAD M | | | $0.00 | 118462 | 2010-03644 |
| 4 | 11/04/2005 | QCD | QUIT CLAIM DEED | GAROFALO, CHAD M & DEANNE | GAROFALO, ROGER | | | | 108950 | 2005-13937 |
| 5 | 10/18/2005 | QCD | QUIT CLAIM DEED | GAROFALO, ROGER & RAE ANN | GAROFALO, CHAD M & DEANNE V | | | | 108787 | 2005-13055 |
| 6 | 04/17/2003 | WARRANTY D | WARRANTY DEED | ASHBY, LAURA ANN | GAROFALO, ROGER & RAE ANN | | | $93,000.00 | 101863 | 2003-05452 |
| 7 | 09/10/1992 | WARRANTY D | WARRANTY DEED | | | | | $57,900.00 | 77567 | 1999-208024 |
Payout Agreement
| No payout information available.. |